4.9
Рейтинг на основании 120 отзывов
Дмитров
Опорный проезд 28Б
(индустриальный парк Ниагара)
Бренд "Дмитров-Дело" c 2008 года на рынке строительства в Дмитрове
Звоните 9:00 до 18:00 8 (915) 055-33-61
Бренд "Дмитров-Дело" c 2008 года на рынке строительства в Дмитрове

Магдебург-164

Стоимость проекта от:
79 200 ₽
БЕСПЛАТНО! ПРИ ЗАКАЗЕ СТРОИТЕЛЬСТВА
Стоимость строительства от:
13 155 840 ₽
Артикул ART-17238
Дата 26.12.2025
Архитектурный стиль Европейский
Количество надземных этажей 2
Круглогодичное проживание Да
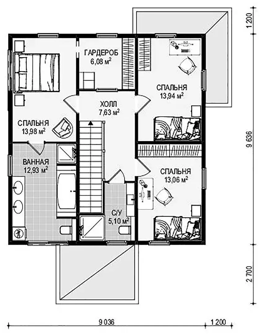
Площадь дома 176 м2
Санузлы 3
Спальни 3

Описание

Добро пожаловать в уютный уголок европейской элегантности — дом Magdeburg‑164. Он дарит гармонично организованное пространство: два надземных этажа разделены продуманными зонами общего пользования и приватными оазисами. Круглогодичное проживание здесь не только возможно, но и комфортно благодаря утепленным стенам из каркасно‑панельной технологии, которые гарантируют тепло и звуко‑изоляцию даже в самые холодные дни. Архитектурный стиль, вдохновленный классическими европейскими традициями, проявляется в тонких линиях, аккуратных деталях и симметричной композиции. Четырехскатная (вальмовая) крыша, выполненная из современных материалов, придаёт зданию благородный вид, а отсутствие лишних балконов и веранд позволяет сосредоточить внимание на открытой, живописной террасе — идеальном месте для беседа с друзьями, утреннего кофе на открытой крыше или вечерних закатов над окрестностями. Внутри — простые, но функциональные зоны: светлооборудованная гостиная, современная кухня, спальни и уютные уголки для чтения. Внешняя сторона дома подчёркивает минимализм без лишних деталей, позволяя сосредоточиться на самом главном — качестве жизни. Магдебург‑164 — это сочетание практичности и эстетики, которое сделает ваш дом настоящим домом для всей семьи.

Характеристики дома

Архитектурный стиль
Автоматизированное регулирование параметров теплоносителя
Нет
Балконы/лоджии
Отсутствуют
Чердачное помещение
Нет
Датчики протечки воды
Нет
Эксплуатируемая или зеленая кровля
Нет
Электроснабжение
Центральное
Газоснабжение
Не предусмотрено
Изоляция воздушного шума
Нет
Камин
Нет
Класс энергоэффективности
-
Класс энергосбережения
-
Количество надземных этажей
2
Круглогодичное проживание
Да
Материал кровли
Металлочерепица
Материал перекрытий
Деревянные
Материал внешних стен
Материал внутренних перегородок
Деревянные
Модульное строительство с конструкциями заводского изготовления
Да
Объем надземной части
-
Основной материал фасадов
Штукатурка
Отопление
Индивидуальное
Площадь дома
176 м2
Площадь застройки
160 м2
Подвальное помещение
Нет
Показатель компактности здания
-
Приборы учета тепловой энергии
Нет
Пристроенный гараж/крытая автостоянка
Нет
Противопожарная система
Нет
Санузлы
3
Совмещенная кухня-гостиная
Да
Спальни
3
Терраса
Да
Тип фундамента
Ленточный
Толщина внешних стен
168 мм
Толщина внутренних перегородок
168 мм
Улучшенные шумовые характеристики
Нет
Вентиляция
Естественная
Веранда
Нет
Водоотведение
Локальные очистные сооружения
Водоснабжение
Индивидуальное
Высота дома
-
Высота потолков
2.7 м

Планировка

Фасад дома

Александр

Закажите выезд инженера

Александр

Выездной инженер
Закажите выезд инженера для точной диагностики и профессиональной консультации по инженерным системам. Специалист приедет в удобное время, проведёт осмотр, рассчитает стоимость работ и подберёт оптимальные решения для вашего дома.


    Похожие проекты

    Ипотека и
    рассрочка
    Каркасный дом 50,1 кв.м
    Стоимость от:
    2 898 500
    Проект от: 22 500
    Этажей 1
    Санузлы 1
    Спальни 2
    Смотреть
    Ипотека и
    рассрочка
    Амур 62,75
    Стоимость от:
    3 935 140
    Проект от: 27 900
    Этажей 1
    Санузлы 1
    Спальни 2
    Смотреть
    Ипотека и
    рассрочка
    Дом из клееного бруса «Коломна»
    Стоимость от:
    12 559 560
    Проект от: 87 300
    Этажей 2
    Санузлы 2
    Спальни 3
    Смотреть
    Ипотека и
    рассрочка
    ДАЧА’83
    Стоимость от:
    9 396 000
    Проект от: 67 500
    Этажей 2
    Санузлы 2
    Спальни 3
    Смотреть
    Ипотека и
    рассрочка
    Загородный дом КД — 74
    Стоимость от:
    5 564 680
    Проект от: 33 300
    Этажей 1
    Санузлы 1
    Спальни 3
    Смотреть
    Ипотека и
    рассрочка
    Одноэтажный дом из камня «Сидли»
    Стоимость от:
    9 251 220
    Проект от: 58 950
    Этажей 1
    Санузлы 2
    Спальни 3
    Смотреть

    Как узнать стоимость дома

    back
    Оставляете заявку
    Вы заполняете форму на сайте или звоните нам. Менеджер Лайвкрафт связывается с вами для уточнения деталей: тип дома, площадь, материалы, участок строительства.
    back
    Консультация и подбор решения
    Наш специалист помогает выбрать оптимальный тип дома и конструкцию с учётом бюджета, сроков и целей — будь то дом для постоянного проживания или дача.
    back
    Расчёт предварительной стоимости
    Инженер делает первичный расчёт стоимости строительства по вашим параметрам: фундамент, коробка, кровля, отделка. Вы получаете смету с разбивкой по этапам.
    back
    Корректировка и утверждение сметы
    При необходимости вносим изменения — например, замену материалов или сокращение этапов. После согласования формируется окончательная фиксированная смета.
    back
    Заключение договора и старт работ
    После утверждения сметы заключаем официальный договор с гарантией. Вы получаете прозрачный график и точную стоимость — без скрытых расходов.

    Заказать конусльтацию по:Магдебург-164

    Фото 1 Магдебург-164


      Наши
      контакты

      Дмитров
      Опорный проезд 28Б
      (индустриальный парк Ниагара)
      9:00 до 18:00

      Корзина