4.9
Рейтинг на основании 120 отзывов
Дмитров
Опорный проезд 28Б
(индустриальный парк Ниагара)
Бренд "Дмитров-Дело" c 2008 года на рынке строительства в Дмитрове
Звоните 9:00 до 18:00 8 (915) 055-33-61
Бренд "Дмитров-Дело" c 2008 года на рынке строительства в Дмитрове

МБ-140

Стоимость проекта от:
60 300 ₽
БЕСПЛАТНО! ПРИ ЗАКАЗЕ СТРОИТЕЛЬСТВА
Стоимость строительства от:
8 031 960 ₽
Артикул ART-18852
Дата 26.12.2025
Архитектурный стиль Классический
Количество надземных этажей 2
Круглогодичное проживание Да
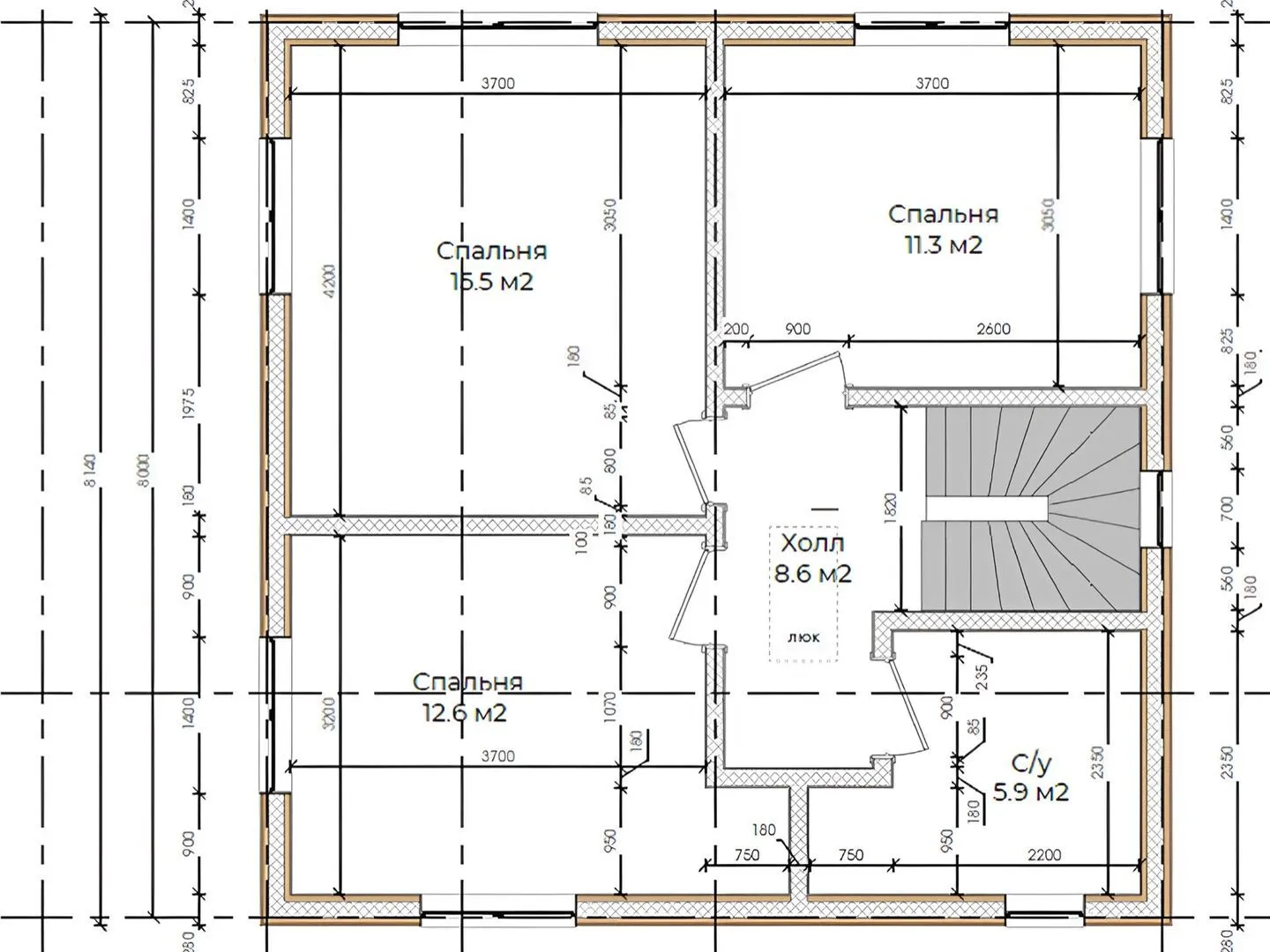
Площадь дома 134 м2
Санузлы 2
Спальни 4

Описание

Заглянув в «МБ‑140», вы сразу почувствуете, что встретили настоящий кусочек классической идиллии. Удобно разделенные на два надземных этажа, дома создают ощущение простора и комфорта, а ровный двускатный профиль придает ему благородный, но в то же время дружелюбный вид. Качка деревянного каркаса, обклеенного качественной отделкой, дарит тепло и естественность, а классический стиль — это сочетание строгих линий и нежности деталей, которое привлекает зрителей и делает каждый уголок уютным. Круглогодичное проживание — один из главных плюсов этого дома. Сбалансированная теплоизоляция и изысканная архитектура обеспечивают комфорт в любой сезон, от морозных зим до жарких летних дней. Внутри можно наслаждаться светлыми и просторными комнатами, свободной планировкой, позволяющей легко адаптировать пространство под любые потребности. Веранда и терраса — это дополнительные зоны для отдыха на свежем воздухе, где можно заварить чай, наблюдать рассвет или устроить небольшую барбекю‑сессию, создавая атмосферу уюта и гармонии. Хотя в «МБ‑140» и отсутствуют балконы, лоджии, крытая автостоянка и чердачное помещение, все остальные элементы дополняют картину идеального семейного жилища. Неожиданное отсутствие громоздких конструкций делает внешний вид легким и незатейливым, а наличие гаража в соседней постройке или на улице удобно для всех транспортных средств. Этот дом — идеальное решение для тех, кто ценит уют, традиции и простоту, но при этом желает жить в современном и комфортном месте. ✨

Характеристики дома

Архитектурный стиль
Автоматизированное регулирование параметров теплоносителя
Нет
Балконы/лоджии
Отсутствуют
Чердачное помещение
Нет
Датчики протечки воды
Нет
Эксплуатируемая или зеленая кровля
Нет
Электроснабжение
Центральное
Газоснабжение
Не предусмотрено
Изоляция воздушного шума
Нет
Камин
Нет
Класс энергоэффективности
-
Класс энергосбережения
-
Количество надземных этажей
2
Круглогодичное проживание
Да
Материал кровли
Металлочерепица
Материал перекрытий
Деревянные
Материал внешних стен
Материал внутренних перегородок
Гипсокартонные
Модульное строительство с конструкциями заводского изготовления
Нет
Объем надземной части
1203 м3
Основной материал фасадов
Дерево
Отопление
Индивидуальное
Площадь дома
134 м2
Площадь застройки
80 м2
Подвальное помещение
Нет
Показатель компактности здания
-
Приборы учета тепловой энергии
Нет
Пристроенный гараж/крытая автостоянка
Нет
Противопожарная система
Нет
Санузлы
2
Совмещенная кухня-гостиная
Да
Спальни
4
Терраса
Да
Тип фундамента
Свайный
Тип кровли
Толщина внешних стен
300 мм
Толщина внутренних перегородок
200 мм
Улучшенные шумовые характеристики
Нет
Вентиляция
Естественная
Веранда
Да
Водоотведение
Локальные очистные сооружения
Водоснабжение
Индивидуальное
Высота дома
9 м
Высота потолков
3 м

Планировка

Фасад дома

Александр

Закажите выезд инженера

Александр

Выездной инженер
Закажите выезд инженера для точной диагностики и профессиональной консультации по инженерным системам. Специалист приедет в удобное время, проведёт осмотр, рассчитает стоимость работ и подберёт оптимальные решения для вашего дома.


    Похожие проекты

    Ипотека и
    рассрочка
    Васильковые поля
    Стоимость от:
    9 533 760
    Проект от: 71 550
    Этажей 2
    Санузлы 2
    Спальни 4
    Смотреть
    Ипотека и
    рассрочка
    Одноэтажный дом БАРН-165
    Стоимость от:
    2 891 460
    Проект от: 23 400
    Этажей 1
    Санузлы 1
    Спальни 2
    Смотреть
    Ипотека и
    рассрочка
    Проект 13
    Стоимость от:
    7 415 100
    Проект от: 47 250
    Этажей 1
    Санузлы 1
    Спальни 3
    Смотреть
    Ипотека и
    рассрочка
    Дом в Радужном
    Стоимость от:
    14 267 000
    Проект от: 85 500
    Этажей 1
    Санузлы 4
    Спальни 3
    Смотреть
    Ипотека и
    рассрочка
    Одноэтажный небольшой дом «Уютный»
    Стоимость от:
    7 006 560
    Проект от: 39 600
    Этажей 1
    Санузлы 1
    Спальни 2
    Смотреть
    Ипотека и
    рассрочка
    Каркасный дом Спенсер v.43473
    Стоимость от:
    10 347 840
    Проект от: 70 200
    Этажей 2
    Санузлы 2
    Спальни 4
    Смотреть

    Как узнать стоимость дома

    back
    Оставляете заявку
    Вы заполняете форму на сайте или звоните нам. Менеджер Лайвкрафт связывается с вами для уточнения деталей: тип дома, площадь, материалы, участок строительства.
    back
    Консультация и подбор решения
    Наш специалист помогает выбрать оптимальный тип дома и конструкцию с учётом бюджета, сроков и целей — будь то дом для постоянного проживания или дача.
    back
    Расчёт предварительной стоимости
    Инженер делает первичный расчёт стоимости строительства по вашим параметрам: фундамент, коробка, кровля, отделка. Вы получаете смету с разбивкой по этапам.
    back
    Корректировка и утверждение сметы
    При необходимости вносим изменения — например, замену материалов или сокращение этапов. После согласования формируется окончательная фиксированная смета.
    back
    Заключение договора и старт работ
    После утверждения сметы заключаем официальный договор с гарантией. Вы получаете прозрачный график и точную стоимость — без скрытых расходов.

    Заказать конусльтацию по:МБ-140

    Фото 1 МБ-140


      Наши
      контакты

      Дмитров
      Опорный проезд 28Б
      (индустриальный парк Ниагара)
      9:00 до 18:00

      Корзина