4.9
Рейтинг на основании 120 отзывов
Дмитров
Опорный проезд 28Б
(индустриальный парк Ниагара)
Бренд "Дмитров-Дело" c 2008 года на рынке строительства в Дмитрове
Звоните 9:00 до 18:00 8 (915) 055-33-61
Бренд "Дмитров-Дело" c 2008 года на рынке строительства в Дмитрове

Модульный дом Барн 121

Стоимость проекта от:
51 750 ₽
БЕСПЛАТНО! ПРИ ЗАКАЗЕ СТРОИТЕЛЬСТВА
Стоимость строительства от:
7 046 050 ₽
Артикул ART-18396
Дата 26.12.2025
Архитектурный стиль Барнхаус
Количество надземных этажей 1
Круглогодичное проживание Да
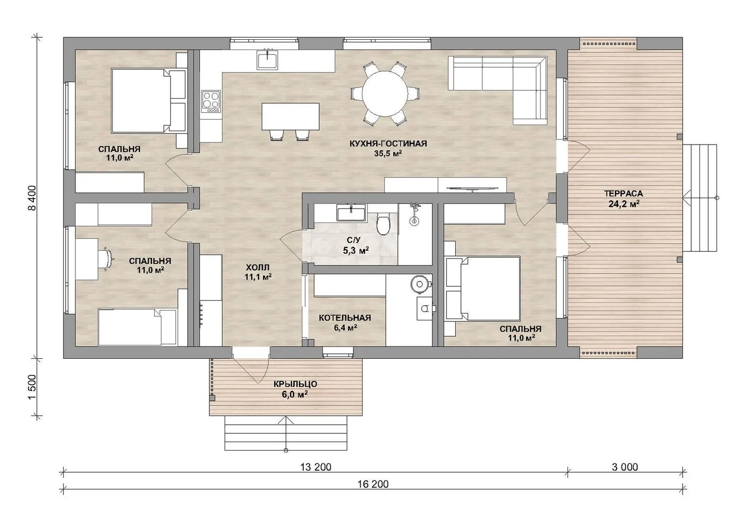
Площадь дома 115 м2
Санузлы 1
Спальни 3

Описание

Модульный дом “Барн 121” — это современный и теплый уголок, созданный в стиле барн‑хаус, где каждый элемент рассказывает о спокойной уютной жизни. На одну надземную планку возведён, но в нём ощущается простор и непорочный, почти «открытый» характер, который в сочетании с гранично‑панельной облицовкой создаёт впечатление крепкого, но при этом легкого дома. Двускатная крыша, словно укрывающая садовый уголок, придаёт зданию строгую элегантность и неповторимый шарм. Круглогодичное проживание стало возможным благодаря продуманному инженерному исполнению: от теплоизоляции до вентиляции, каждая деталь работает на ваш комфорт. Просторная терраса, открытая к бескрайним просторам, приглашает наслаждаться утренним кофе или вечерним закатом под звёздным небом. Хотя балконы и гараж отсутствуют, это только подчёркивает чистоту и простоту дизайна, позволяя сосредоточиться на истинных приоритетах: уюте, функциональности и эстетике. Если вы ищете дом, где современность сочетается с традиционным шармом, где материалная простота дарит комфорт, а архитектурный стиль вдохновляет — "Барн 121" станет идеальным выбором. Это не просто жильё, а пространство, где каждый день начинается с лёгкого дыхания свежего воздуха и завершается теплом домашнего очага.

Характеристики дома

Архитектурный стиль
Автоматизированное регулирование параметров теплоносителя
Да
Балконы/лоджии
Отсутствуют
Чердачное помещение
Нет
Датчики протечки воды
Нет
Эксплуатируемая или зеленая кровля
Нет
Электроснабжение
Центральное
Газоснабжение
Центральное
Изоляция воздушного шума
Нет
Камин
Нет
Класс энергоэффективности
-
Класс энергосбережения
-
Количество надземных этажей
1
Круглогодичное проживание
Да
Материал кровли
Металлические рулонные или листовые материалы
Материал перекрытий
Деревянные
Материал внешних стен
Материал внутренних перегородок
Деревянные
Модульное строительство с конструкциями заводского изготовления
Нет
Объем надземной части
-
Основной материал фасадов
Дерево
Отопление
Индивидуальное
Площадь дома
115 м2
Площадь застройки
160 м2
Подвальное помещение
Нет
Показатель компактности здания
-
Приборы учета тепловой энергии
Нет
Пристроенный гараж/крытая автостоянка
Нет
Противопожарная система
Да
Санузлы
1
Совмещенная кухня-гостиная
Да
Спальни
3
Терраса
Да
Тип фундамента
Свайный
Тип кровли
Толщина внешних стен
240 мм
Толщина внутренних перегородок
180 мм
Улучшенные шумовые характеристики
Да
Вентиляция
3 варианта
Веранда
Нет
Водоотведение
2 варианта
Водоснабжение
2 варианта
Высота дома
3.6 м
Высота потолков
2.7 м

Планировка

Фасад дома

Александр

Закажите выезд инженера

Александр

Выездной инженер
Закажите выезд инженера для точной диагностики и профессиональной консультации по инженерным системам. Специалист приедет в удобное время, проведёт осмотр, рассчитает стоимость работ и подберёт оптимальные решения для вашего дома.


    Похожие проекты

    Ипотека и
    рассрочка
    Загородное ранчо S3-123-2 (ZX106)
    Стоимость от:
    14 689 400
    Проект от: 85 500
    Этажей 1
    Санузлы 2
    Спальни 3
    Смотреть
    Ипотека и
    рассрочка
    Двухэтажный деревянный дом «Верона»
    Стоимость от:
    18 944 640
    Проект от: 124 200
    Этажей 2
    Санузлы 4
    Спальни 3
    Смотреть
    Ипотека и
    рассрочка
    Дом ИЖС 70
    Стоимость от:
    4 943 400
    Проект от: 31 500
    Этажей 1
    Санузлы 1
    Спальни 3
    Смотреть
    Ипотека и
    рассрочка
    Скандинавский с террасой 17-23КД.
    Стоимость от:
    5 775 770
    Проект от: 40 950
    Этажей 1
    Санузлы 2
    Спальни 2
    Смотреть
    Ипотека и
    рассрочка
    Проект ГБ-175
    Стоимость от:
    12 018 000
    Проект от: 78 750
    Этажей 2
    Санузлы 2
    Спальни 3
    Смотреть
    Ипотека и
    рассрочка
    Одноэтажный П-105
    Стоимость от:
    7 203 240
    Проект от: 45 900
    Этажей 1
    Санузлы 2
    Спальни 3
    Смотреть

    Как узнать стоимость дома

    back
    Оставляете заявку
    Вы заполняете форму на сайте или звоните нам. Менеджер Лайвкрафт связывается с вами для уточнения деталей: тип дома, площадь, материалы, участок строительства.
    back
    Консультация и подбор решения
    Наш специалист помогает выбрать оптимальный тип дома и конструкцию с учётом бюджета, сроков и целей — будь то дом для постоянного проживания или дача.
    back
    Расчёт предварительной стоимости
    Инженер делает первичный расчёт стоимости строительства по вашим параметрам: фундамент, коробка, кровля, отделка. Вы получаете смету с разбивкой по этапам.
    back
    Корректировка и утверждение сметы
    При необходимости вносим изменения — например, замену материалов или сокращение этапов. После согласования формируется окончательная фиксированная смета.
    back
    Заключение договора и старт работ
    После утверждения сметы заключаем официальный договор с гарантией. Вы получаете прозрачный график и точную стоимость — без скрытых расходов.

    Заказать конусльтацию по:Модульный дом Барн 121

    Фото 1 Модульный дом Барн 121


      Наши
      контакты

      Дмитров
      Опорный проезд 28Б
      (индустриальный парк Ниагара)
      9:00 до 18:00

      Корзина