4.9
Рейтинг на основании 120 отзывов
Дмитров
Опорный проезд 28Б
(индустриальный парк Ниагара)
Бренд "Дмитров-Дело" c 2008 года на рынке строительства в Дмитрове
Звоните 9:00 до 18:00 8 (915) 055-33-61
Бренд "Дмитров-Дело" c 2008 года на рынке строительства в Дмитрове

МС-69 Народный дом

Стоимость проекта от:
29 250 ₽
Стоимость строительства от:
4 546 800 ₽
Артикул ART-10493
Дата 25.12.2025
Архитектурный стиль Минимализм
Количество надземных этажей 2
Круглогодичное проживание Да
Площадь дома 65 м2
Санузлы 2
Спальни 2

Описание

Добро пожаловать в дом, где простота встречается с гармонией, а комфорт обретается в каждой детали. **МС‑69 Народный дом** воплощает минимализм в чистой форме: строгие линии фасада и лаконичный интерьер создают атмосферу спокойствия и элегантности. Благодаря двух надземным этажам вы получите достаточно пространства для семьи, а современный тип кровли — четырехскатная (вальмовая) — гарантирует хорошую вентиляцию и защищённость от непогоды, сохраняя тепло и уют в любое время года. Строительный материал — сборный железобетон — обеспечивает надёжность и долговечность. Такой фундамент устоит в любых климатических условиях, а плотные наружные стены не только защищают от шума и экстремальных температур, но и создают тихую, почти «сепсисическую» среду, где легко сосредоточиться на себе и близких. Отсутствие балконов, веранд и гаража позволяет сосредоточиться на создании максимально открытого и светлого внутреннего пространства, а отсутствие чердачного помещения избавляет от лишнего напряжения, делая ваш дом чистым и функциональным. Если вы ищете уютное, практичное жильё с современным архитектурным оформлением и гарантией надежности, **МС‑69 Народный дом** станет идеальным выбором. Позвольте себе насладиться качеством, которое говорит за себя, и ощутите, как минимализм становится вашим лучшим другом в повседневной жизни. Не упустите шанс стать владельцем этого великолепного дома – напишите нам прямо сейчас, и мы поможем сделать ваш выбор простым и приятным!

Характеристики дома

Архитектурный стиль
Минимализм
Автоматизированное регулирование параметров теплоносителя
Нет
Балконы/лоджии
Отсутствуют
Чердачное помещение
Нет
Датчики протечки воды
Нет
Эксплуатируемая или зеленая кровля
Нет
Электроснабжение
Не предусмотрено
Газоснабжение
Не предусмотрено
Изоляция воздушного шума
Нет
Камин
Нет
Класс энергоэффективности
-
Класс энергосбережения
-
Количество надземных этажей
2
Круглогодичное проживание
Да
Материал кровли
Металлочерепица
Материал перекрытий
Сборные железобетонные
Материал внешних стен
Сборный железобетон
Материал внутренних перегородок
Полистиролбетон
Модульное строительство с конструкциями заводского изготовления
Нет
Объем надземной части
277 м3
Основной материал фасадов
Штукатурка
Отопление
Не предусмотрено
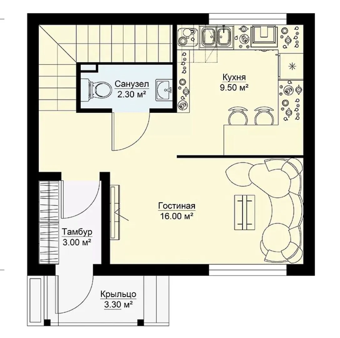
Площадь дома
65 м2
Площадь застройки
46 м2
Подвальное помещение
Нет
Показатель компактности здания
-
Приборы учета тепловой энергии
Нет
Пристроенный гараж/крытая автостоянка
Нет
Противопожарная система
Нет
Санузлы
2
Совмещенная кухня-гостиная
Нет
Спальни
2
Терраса
Нет
Тип фундамента
Плитный
Тип кровли
Четырехскатная (вальмовая)
Толщина внешних стен
270 мм
Толщина внутренних перегородок
100 мм
Улучшенные шумовые характеристики
Да
Вентиляция
Естественная
Веранда
Нет
Водоотведение
Не предусмотрено
Водоснабжение
Не предусмотрено
Высота дома
7.7 м
Высота потолков
2.7 м

Планировка

Фасад дома

Александр

Закажите выезд инженера

Александр

Выездной инженер
Закажите выезд инженера для точной диагностики и профессиональной консультации по инженерным системам. Специалист приедет в удобное время, проведёт осмотр, рассчитает стоимость работ и подберёт оптимальные решения для вашего дома.


    Похожие проекты

    Ипотека и
    рассрочка
    Проект двухэтажного каменного дома
    Стоимость от:
    9 659 760
    Проект от: 58 050
    Этажей 2
    Санузлы 3
    Спальни 5
    Смотреть
    Ипотека и
    рассрочка
    Каркасный дом «Андерс»
    Стоимость от:
    3 304 290
    Проект от: 25 650
    Этажей 1
    Санузлы 1
    Спальни 2
    Смотреть
    Ипотека и
    рассрочка
    D177-2
    Стоимость от:
    11 201 280
    Проект от: 77 400
    Этажей 2
    Санузлы 2
    Спальни 3
    Смотреть
    Ипотека и
    рассрочка
    Комфорт-006
    Стоимость от:
    6 239 860
    Проект от: 37 350
    Этажей 1
    Санузлы 2
    Спальни 3
    Смотреть
    Ипотека и
    рассрочка
    QF-127
    Стоимость от:
    7 676 240
    Проект от: 54 900
    Этажей 1
    Санузлы 2
    Спальни 3
    Смотреть
    Ипотека и
    рассрочка
    Жилой дом 6х6
    Стоимость от:
    4 584 240
    Проект от: 27 450
    Этажей 2
    Санузлы 1
    Спальни 2
    Смотреть

    Как узнать стоимость дома

    back
    Оставляете заявку
    Вы заполняете форму на сайте или звоните нам. Менеджер Лайвкрафт связывается с вами для уточнения деталей: тип дома, площадь, материалы, участок строительства.
    back
    Консультация и подбор решения
    Наш специалист помогает выбрать оптимальный тип дома и конструкцию с учётом бюджета, сроков и целей — будь то дом для постоянного проживания или дача.
    back
    Расчёт предварительной стоимости
    Инженер делает первичный расчёт стоимости строительства по вашим параметрам: фундамент, коробка, кровля, отделка. Вы получаете смету с разбивкой по этапам.
    back
    Корректировка и утверждение сметы
    При необходимости вносим изменения — например, замену материалов или сокращение этапов. После согласования формируется окончательная фиксированная смета.
    back
    Заключение договора и старт работ
    После утверждения сметы заключаем официальный договор с гарантией. Вы получаете прозрачный график и точную стоимость — без скрытых расходов.

    Заказать конусльтацию по:МС-69 Народный дом

    Фото 1 МС-69 Народный дом


      Наши
      контакты

      Дмитров
      Опорный проезд 28Б
      (индустриальный парк Ниагара)
      9:00 до 18:00

      Корзина