4.9
Рейтинг на основании 120 отзывов
Дмитров
Опорный проезд 28Б
(индустриальный парк Ниагара)
Бренд "Дмитров-Дело" c 2008 года на рынке строительства в Дмитрове
Звоните 9:00 до 18:00 8 (915) 055-33-61
Бренд "Дмитров-Дело" c 2008 года на рынке строительства в Дмитрове

Ньютон 3

Стоимость проекта от:
45 450 ₽
БЕСПЛАТНО! ПРИ ЗАКАЗЕ СТРОИТЕЛЬСТВА
Стоимость строительства от:
7 132 620 ₽
Артикул ART-15568
Дата 25.12.2025
Архитектурный стиль Минимализм
Количество надземных этажей 1
Круглогодичное проживание Да
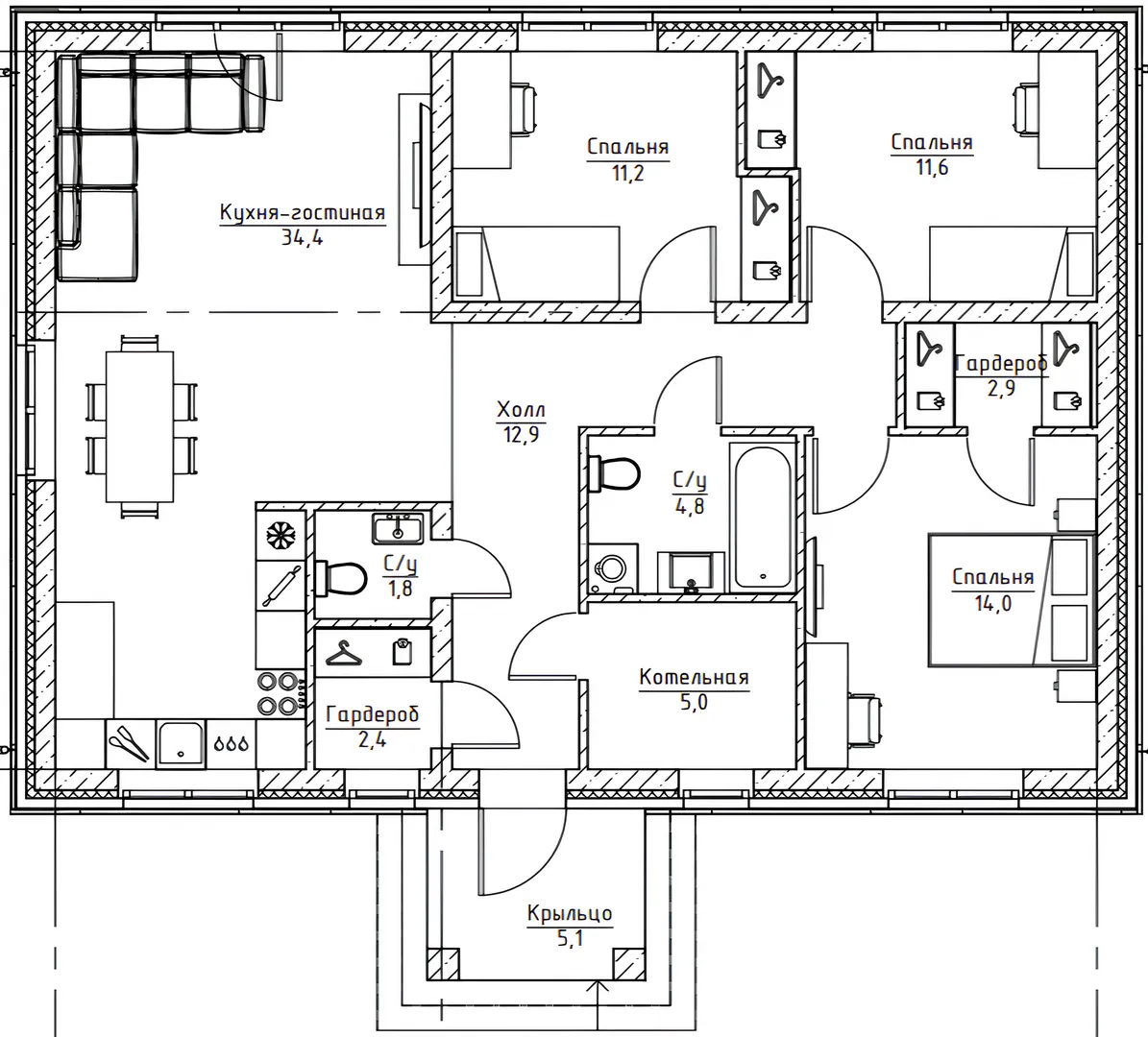
Площадь дома 101 м2
Санузлы 2
Спальни 3

Описание

В сердце современного города, где каждая деталь создаёт атмосферу уюта и спокойствия, стоит уютный дом Newton 3 – стильный уголок минимализма, открытый возможностям жить в гармонии с природой. Этот одноквартирный дом, рассчитанный на круглогодичную эксплуатацию, обеспечивает идеальную погоду в любое время года благодаря теплоизоляции из газобетонных блоков, которые дарят не только отличную звуко- и теплоизоляцию, но и лёгкость в работе с материалом. Архитектурный язык здания прост и элегантен: чистые линии, отсутствие перегородок, открытый и светлый интерьер создают ощущение простора и лёгкости, а четырёхскатная вальмовая крыша добавляет нотку традиционной устойчивости. Несмотря на отсутствие балконов, веранд и гаражей, каждый уголок дома служит своему назначению с максимальной практичностью. Плавные переходы между жилыми комнатами и кухней делают пространство не только визуально большим, но и функциональным: в этой обстановке легко организовать семейный коворкинг, уютный ужин или полноценный отдых. Пакет из качественного газобетона, ровная вальмовая крыша и продуманные конструкции позволяют уменьшить эксплуатационные затраты на отопление и кондиционирование, что делает Newton 3 идеальным выбором для тех, кто ценит комфорт и экономичность без компромиссов в дизайне. Для современных семей, ценящих простоту и элегантность, Newton 3 становится настоящим убежищем. Это дом, в котором каждый элемент — от выбора материала до формы крыши — призван сделать жизнь легче, а каждый вечер наполнен светом и тишиной. Добро пожаловать в ваш новый мир, где минимализм встречается с уютом, а каждая деталь работает на ваше благополучие.

Характеристики дома

Архитектурный стиль
Автоматизированное регулирование параметров теплоносителя
Да
Балконы/лоджии
Отсутствуют
Чердачное помещение
Нет
Датчики протечки воды
Нет
Эксплуатируемая или зеленая кровля
Нет
Электроснабжение
Центральное
Газоснабжение
Центральное
Изоляция воздушного шума
Нет
Камин
Нет
Класс энергоэффективности
-
Класс энергосбережения
-
Количество надземных этажей
1
Круглогодичное проживание
Да
Материал кровли
Металлочерепица
Материал перекрытий
Деревянные
Материал внешних стен
Материал внутренних перегородок
Блочные
Модульное строительство с конструкциями заводского изготовления
Нет
Объем надземной части
-
Основной материал фасадов
Облицовочный кирпич
Отопление
Индивидуальное
Площадь дома
101 м2
Площадь застройки
106 м2
Подвальное помещение
Нет
Показатель компактности здания
-
Приборы учета тепловой энергии
Нет
Пристроенный гараж/крытая автостоянка
Нет
Противопожарная система
Нет
Санузлы
2
Совмещенная кухня-гостиная
Да
Спальни
3
Терраса
Нет
Тип фундамента
Плитный
Толщина внешних стен
470 мм
Толщина внутренних перегородок
100 мм
Улучшенные шумовые характеристики
Нет
Вентиляция
Принудительная
Веранда
Нет
Водоотведение
Локальные очистные сооружения
Водоснабжение
Индивидуальное
Высота дома
5.6 м
Высота потолков
3 м

Планировка

Фасад дома

Александр

Закажите выезд инженера

Александр

Выездной инженер
Закажите выезд инженера для точной диагностики и профессиональной консультации по инженерным системам. Специалист приедет в удобное время, проведёт осмотр, рассчитает стоимость работ и подберёт оптимальные решения для вашего дома.


    Похожие проекты

    Ипотека и
    рассрочка
    Дом 76м2
    Стоимость от:
    5 714 720
    Проект от: 34 200
    Этажей 1
    Санузлы 2
    Спальни 3
    Смотреть
    Ипотека и
    рассрочка
    Современное шале №106
    Стоимость от:
    12 787 920
    Проект от: 82 350
    Этажей 2
    Санузлы 2
    Спальни 4
    Смотреть
    Ипотека и
    рассрочка
    Двухэтажный дом С-2
    Стоимость от:
    7 569 840
    Проект от: 45 450
    Этажей 2
    Санузлы 1
    Спальни 3
    Смотреть
    Ипотека и
    рассрочка
    Покров 100
    Стоимость от:
    6 842 000
    Проект от: 45 000
    Этажей 1
    Санузлы 2
    Спальни 3
    Смотреть
    Ипотека и
    рассрочка
    Дом с двойным светом
    Стоимость от:
    9 915 840
    Проект от: 59 400
    Этажей 1
    Санузлы 2
    Спальни 3
    Смотреть
    Ипотека и
    рассрочка
    Ручей
    Стоимость от:
    9 647 220
    Проект от: 63 450
    Этажей 1
    Санузлы 2
    Спальни 4
    Смотреть

    Как узнать стоимость дома

    back
    Оставляете заявку
    Вы заполняете форму на сайте или звоните нам. Менеджер Лайвкрафт связывается с вами для уточнения деталей: тип дома, площадь, материалы, участок строительства.
    back
    Консультация и подбор решения
    Наш специалист помогает выбрать оптимальный тип дома и конструкцию с учётом бюджета, сроков и целей — будь то дом для постоянного проживания или дача.
    back
    Расчёт предварительной стоимости
    Инженер делает первичный расчёт стоимости строительства по вашим параметрам: фундамент, коробка, кровля, отделка. Вы получаете смету с разбивкой по этапам.
    back
    Корректировка и утверждение сметы
    При необходимости вносим изменения — например, замену материалов или сокращение этапов. После согласования формируется окончательная фиксированная смета.
    back
    Заключение договора и старт работ
    После утверждения сметы заключаем официальный договор с гарантией. Вы получаете прозрачный график и точную стоимость — без скрытых расходов.

    Заказать конусльтацию по:Ньютон 3

    Фото 1 Ньютон 3


      Наши
      контакты

      Дмитров
      Опорный проезд 28Б
      (индустриальный парк Ниагара)
      9:00 до 18:00

      Корзина