4.9
Рейтинг на основании 120 отзывов
Дмитров
Опорный проезд 28Б
(индустриальный парк Ниагара)
Бренд "Дмитров-Дело" c 2008 года на рынке строительства в Дмитрове
Звоните 9:00 до 18:00 8 (915) 055-33-61
Бренд "Дмитров-Дело" c 2008 года на рынке строительства в Дмитрове

Одноэтажный барн Уют

Стоимость проекта от:
47 250 ₽
БЕСПЛАТНО! ПРИ ЗАКАЗЕ СТРОИТЕЛЬСТВА
Стоимость строительства от:
5 855 850 ₽
Артикул ART-14804
Дата 25.12.2025
Архитектурный стиль Барнхаус
Количество надземных этажей 1
Круглогодичное проживание Да
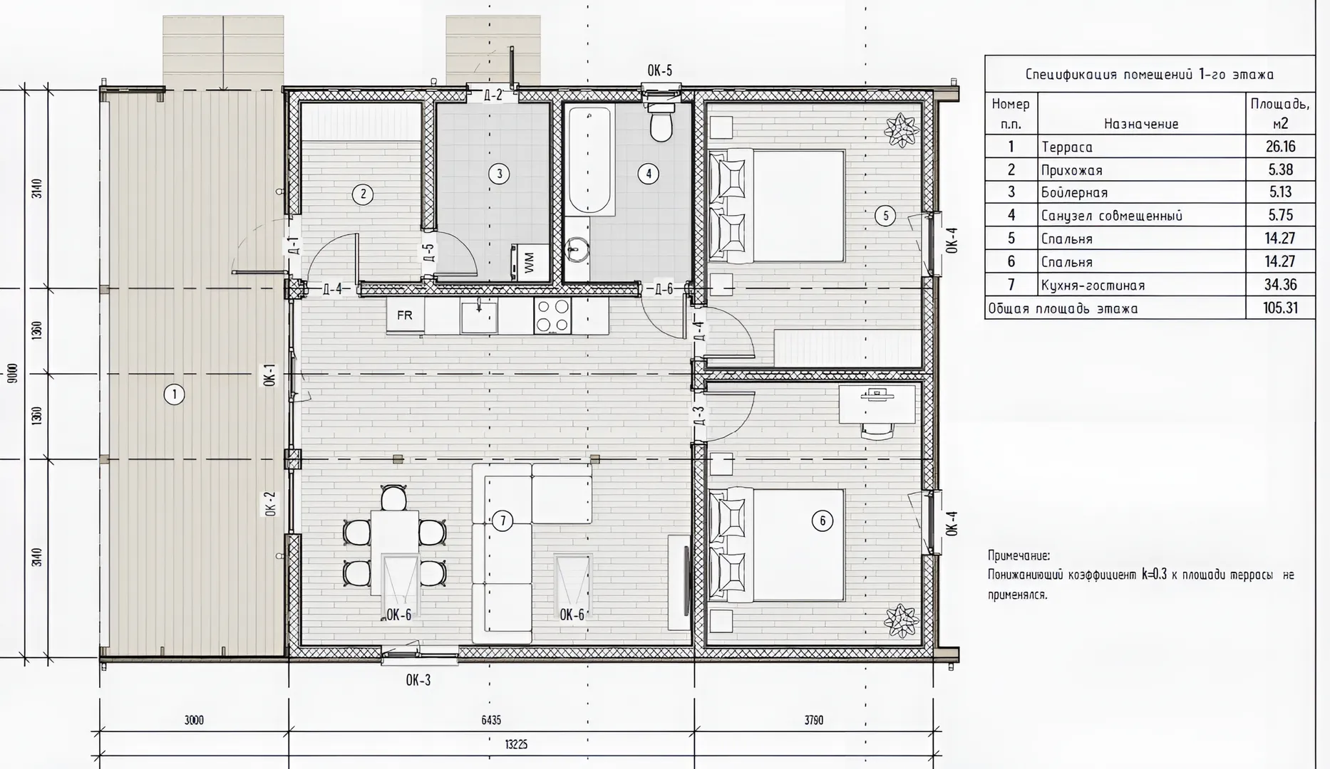
Площадь дома 105 м2
Санузлы 1
Спальни 2

Описание

Вас приветствует уютный одноэтажный дом в стиле барнхаус – идеальное сочетание традиционных материалов и современной эстетики. Эта просторная, непринуждённая резиденция, выполненная из прочного деревянного каркаса, предлагает круглогодичное проживание в гармонии с природой. Широкие открытые зоны, изящные линий и классический двускатный черепок создают ощущение простора и тепла, а безмятежность единого уровня позволяет свободно перемещаться даже при небольших порогах. Дом украшает изысканная терраса, приглашая к уютным вечерним собраниям и наслаждению свежим воздухом. Отсутствие балконов и лестниц, а также открытая веранда дарят целостность и непрерывность пространства, создавая уникальный визуальный поток между внутренним и внешним мирами. Ваша семья сможет оценить простоту и функциональность, ведь в барнхаусе нет лишних перегородок – каждый угол наполнен светом и комфортом. Всё, что нужно для вашего комфорта – уже предусмотрено: от уютных деревянных стен до изящного двускатного крыла и практичной террасы. Это место, где гармония старого и нового сливается в безмятежной атмосфере, предлагая вам идеальный дом для непрерывного проживания в любой сезон. Приветствуем вас в новом уровне уюта и стиля – добро пожаловать в ваш личный уголок уюта!

Характеристики дома

Архитектурный стиль
Автоматизированное регулирование параметров теплоносителя
Нет
Балконы/лоджии
Отсутствуют
Чердачное помещение
Нет
Датчики протечки воды
Нет
Эксплуатируемая или зеленая кровля
Нет
Электроснабжение
Не предусмотрено
Газоснабжение
Не предусмотрено
Изоляция воздушного шума
Нет
Камин
Нет
Класс энергоэффективности
-
Класс энергосбережения
-
Количество надземных этажей
1
Круглогодичное проживание
Да
Материал кровли
Фальцевая кровля Кликфальц
Материал перекрытий
Деревянные по металлическим балкам
Материал внешних стен
Материал внутренних перегородок
Деревянные
Модульное строительство с конструкциями заводского изготовления
Нет
Объем надземной части
301 м3
Основной материал фасадов
Дерево
Отопление
Не предусмотрено
Площадь дома
105 м2
Площадь застройки
119 м2
Подвальное помещение
Нет
Показатель компактности здания
-
Приборы учета тепловой энергии
Нет
Пристроенный гараж/крытая автостоянка
Нет
Противопожарная система
Нет
Санузлы
1
Совмещенная кухня-гостиная
Да
Спальни
2
Терраса
Да
Тип фундамента
Свайный
Тип кровли
Толщина внешних стен
245 мм
Толщина внутренних перегородок
180 мм
Улучшенные шумовые характеристики
Нет
Вентиляция
Естественная
Веранда
Нет
Водоотведение
Не предусмотрено
Водоснабжение
Не предусмотрено
Высота дома
4.3 м
Высота потолков
3.4 м

Планировка

Фасад дома

Александр

Закажите выезд инженера

Александр

Выездной инженер
Закажите выезд инженера для точной диагностики и профессиональной консультации по инженерным системам. Специалист приедет в удобное время, проведёт осмотр, рассчитает стоимость работ и подберёт оптимальные решения для вашего дома.


    Похожие проекты

    Ипотека и
    рассрочка
    Дом Фахверк два этажа — MAXI UP
    Стоимость от:
    14 506 800
    Проект от: 99 000
    Этажей 2
    Санузлы 4
    Спальни 4
    Смотреть
    Ипотека и
    рассрочка
    Загородный дом C-I 79
    Стоимость от:
    3 468 300
    Проект от: 27 000
    Этажей 1
    Санузлы 1
    Спальни 2
    Смотреть
    Ипотека и
    рассрочка
    Загородный дом «Меридиан 1»
    Стоимость от:
    10 102 080
    Проект от: 63 900
    Этажей 2
    Санузлы 2
    Спальни 4
    Смотреть
    Ипотека и
    рассрочка
    «Сидоров»
    Стоимость от:
    4 013 160
    Проект от: 30 150
    Этажей 2
    Санузлы 1
    Спальни 3
    Смотреть
    Ипотека и
    рассрочка
    Проект «Родниковое»
    Стоимость от:
    6 450 620
    Проект от: 36 450
    Этажей 1
    Санузлы 2
    Спальни 3
    Смотреть
    Ипотека и
    рассрочка
    Одноэтажный барнхаус LATO-76
    Стоимость от:
    3 391 905
    Проект от: 27 450
    Этажей 1
    Санузлы 1
    Спальни 2
    Смотреть

    Как узнать стоимость дома

    back
    Оставляете заявку
    Вы заполняете форму на сайте или звоните нам. Менеджер Лайвкрафт связывается с вами для уточнения деталей: тип дома, площадь, материалы, участок строительства.
    back
    Консультация и подбор решения
    Наш специалист помогает выбрать оптимальный тип дома и конструкцию с учётом бюджета, сроков и целей — будь то дом для постоянного проживания или дача.
    back
    Расчёт предварительной стоимости
    Инженер делает первичный расчёт стоимости строительства по вашим параметрам: фундамент, коробка, кровля, отделка. Вы получаете смету с разбивкой по этапам.
    back
    Корректировка и утверждение сметы
    При необходимости вносим изменения — например, замену материалов или сокращение этапов. После согласования формируется окончательная фиксированная смета.
    back
    Заключение договора и старт работ
    После утверждения сметы заключаем официальный договор с гарантией. Вы получаете прозрачный график и точную стоимость — без скрытых расходов.

    Заказать конусльтацию по:Одноэтажный барн Уют

    Фото 1 Одноэтажный барн Уют


      Наши
      контакты

      Дмитров
      Опорный проезд 28Б
      (индустриальный парк Ниагара)
      9:00 до 18:00

      Корзина