Одноэтажный дом «Флоки 106»
Описание
Характеристики дома
Архитектурный стиль
Автоматизированное регулирование параметров теплоносителя
-
Балконы/лоджии
Отсутствуют
Чердачное помещение
Нет
Датчики протечки воды
-
Эксплуатируемая или зеленая кровля
-
Электроснабжение
Центральное
Газоснабжение
Индивидуальное
Изоляция воздушного шума
-
Камин
Нет
Класс энергоэффективности
-
Класс энергосбережения
-
Количество надземных этажей
1
Круглогодичное проживание
Да
Материал кровли
Металлочерепица
Материал перекрытий
Деревянные
Материал внешних стен
Материал внутренних перегородок
Деревянные
Модульное строительство с конструкциями заводского изготовления
Нет
Объем надземной части
-
Основной материал фасадов
Дерево
Отопление
Индивидуальное
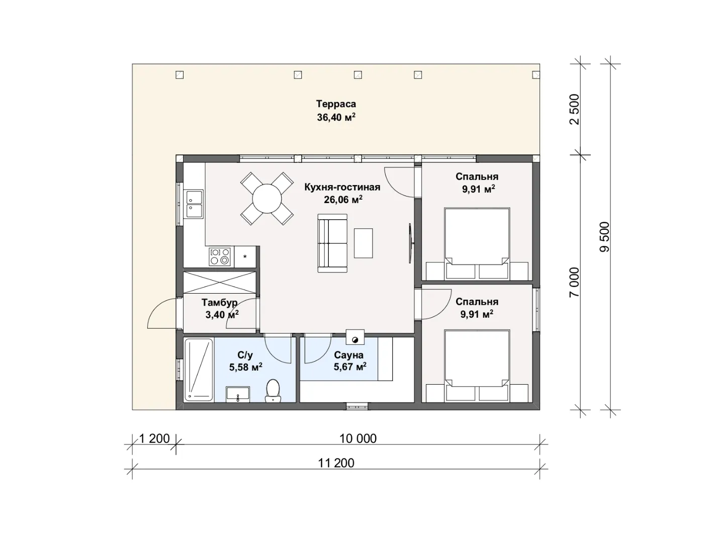
Площадь дома
106 м2
Площадь застройки
106 м2
Подвальное помещение
Нет
Показатель компактности здания
-
Приборы учета тепловой энергии
-
Пристроенный гараж/крытая автостоянка
Нет
Противопожарная система
Нет
Санузлы
1
Совмещенная кухня-гостиная
Да
Спальни
2
Терраса
Да
Тип фундамента
Свайно-винтовой
Тип кровли
Толщина внешних стен
150 мм
Толщина внутренних перегородок
100 мм
Улучшенные шумовые характеристики
-
Вентиляция
Естественная
Веранда
Нет
Водоотведение
Локальные очистные сооружения
Водоснабжение
Индивидуальное
Высота дома
4 м
Высота потолков
2.8 м
Фасад дома
Информация скоро появится.
Категории проекта
Строительство домовСтроительство домов без балкона или лоджииСтроительство домов без гаражаСтроительство домов без чердакаСтроительство домов в Скандинавском стилеСтроительство домов для круглогодичного проживанияСтроительство домов из деревянных блоковСтроительство домов с верандойСтроительство домов с двускатной крышейСтроительство домов с террасойСтроительство одноэтажных домов
Закажите выезд инженера
Александр
Выездной инженер
Закажите выезд инженера для точной диагностики и профессиональной консультации по инженерным
системам. Специалист приедет в удобное время, проведёт осмотр, рассчитает стоимость работ и подберёт
оптимальные решения для вашего дома.
Как узнать стоимость дома
Заказать конусльтацию по:Одноэтажный дом «Флоки 106»
Наши
контакты
Дмитров
Опорный проезд 28Б
(индустриальный парк Ниагара)
Опорный проезд 28Б
(индустриальный парк Ниагара)
9:00 до 18:00