4.9
Рейтинг на основании 120 отзывов
Дмитров
Опорный проезд 28Б
(индустриальный парк Ниагара)
Бренд "Дмитров-Дело" c 2008 года на рынке строительства в Дмитрове
Звоните 9:00 до 18:00 8 (915) 055-33-61
Бренд "Дмитров-Дело" c 2008 года на рынке строительства в Дмитрове

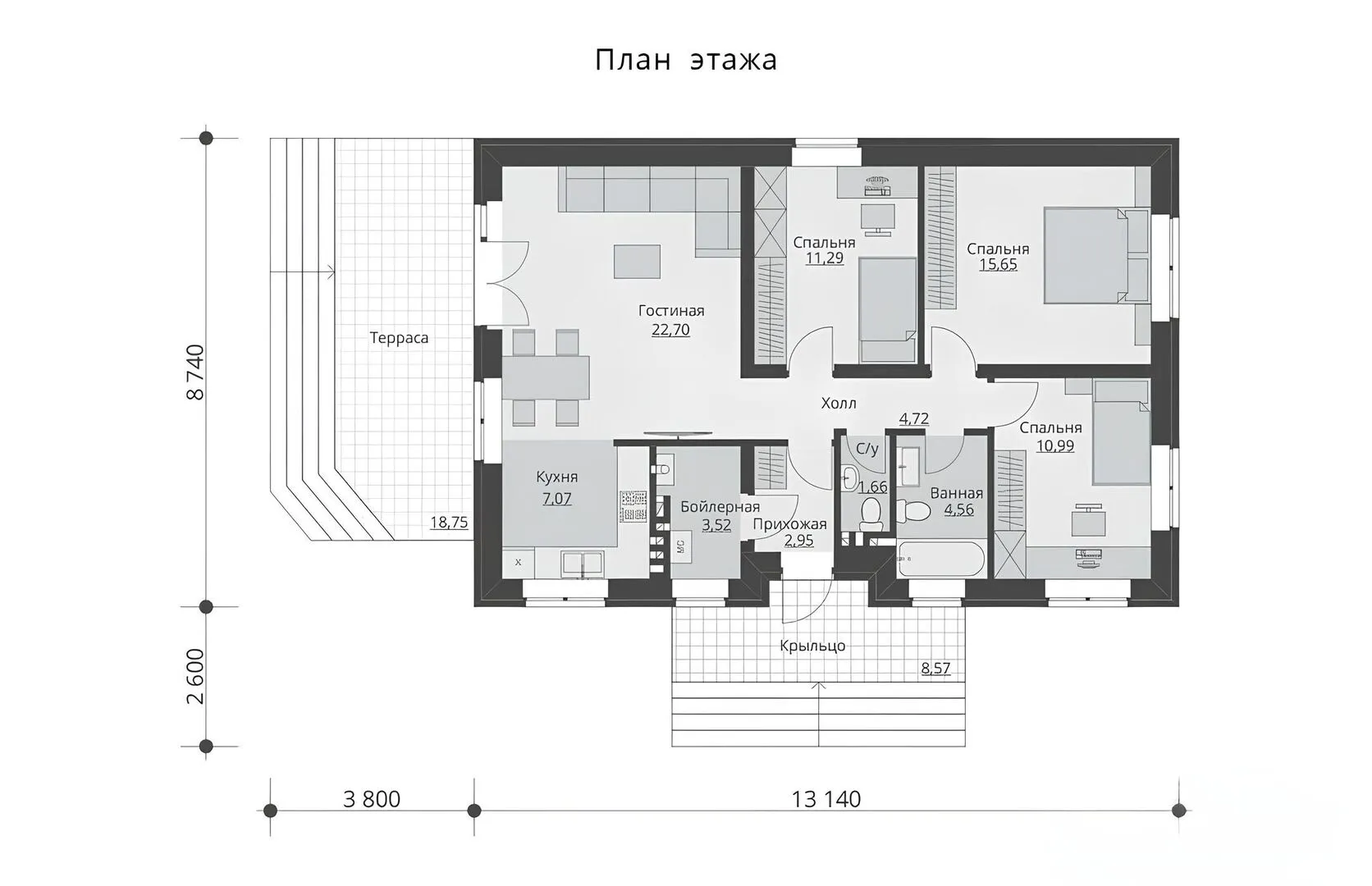
Одноэтажный дом с тремя спальнями и кухней-гостиной

Стоимость проекта от:
45 900 ₽
БЕСПЛАТНО! ПРИ ЗАКАЗЕ СТРОИТЕЛЬСТВА
Стоимость строительства от:
7 665 240 ₽
Артикул ART-17163
Дата 26.12.2025
Архитектурный стиль Классический
Количество надземных этажей 1
Круглогодичное проживание Да
Площадь дома 102 м2
Санузлы 2
Спальни 3

Описание

Сияющий классический дизайн этого загородного дома из газобетонных блоков приглашает гостей войти в пространство, где каждая деталь продумана для уюта и комфорта. Одноэтажное расположение с тремя светлыми спальнями и открытой кухней‑гостиной создаёт ощущение простора, одновременно обеспечивая максимальную практичность и приватность. Плавные линии крыши‑двускатной формы подчёркивают строгую элегантность фасада, а открытая терраса выходит наружу, приглашая наслаждаться свежим воздухом и закатами прямо из гостиной. Внутренняя планировка объединяет кухни, столовой и живая часть в одном большом, светлом зале, где изящное освещение и высокие потолки делают пространство особенно гостеприимным. Три уютные спальни обрамлены естественным светом и вместительными гардеробными, обеспечивая тихую гавань после долгого дня. Простота и функциональность – вот основной принцип: современный гарнитур в кухне с барной зоной, просторная ванная с дизайнерским дезайном, а благодаря материалам из газобетона и обшивке – естественная тепло- и звукоизоляция, позволяющая жить круглый год без лишних затрат. Отсутствие балконов и пристроенного гаража гарантирует более чистый вид фасада и возможность использовать пространство под собственные нужды, будь то небольшая грядка или уютный оазис. Трёхуровневые открытые зоны террасы – идеальное место для семейных барбекю, летних ужинов или тихих вечеров с книгой. Это спокойное, уютное место, где каждый уголок говорит о домашнем тепле и гармонии, а конструктивная надёжность делает его идеальным выбором для тех, кто ценит комфорт и стиль без компромиссов.

Характеристики дома

Архитектурный стиль
Автоматизированное регулирование параметров теплоносителя
Нет
Балконы/лоджии
Отсутствуют
Чердачное помещение
Нет
Датчики протечки воды
Нет
Эксплуатируемая или зеленая кровля
Нет
Электроснабжение
Не предусмотрено
Газоснабжение
Не предусмотрено
Изоляция воздушного шума
Нет
Камин
Нет
Класс энергоэффективности
-
Класс энергосбережения
-
Количество надземных этажей
1
Круглогодичное проживание
Да
Материал кровли
Металлочерепица
Материал перекрытий
Деревянные
Материал внешних стен
Материал внутренних перегородок
Блочные
Модульное строительство с конструкциями заводского изготовления
Нет
Объем надземной части
306 м3
Основной материал фасадов
Облицовочный кирпич
Отопление
Индивидуальное
Площадь дома
102 м2
Площадь застройки
102 м2
Подвальное помещение
Нет
Показатель компактности здания
-
Приборы учета тепловой энергии
Нет
Пристроенный гараж/крытая автостоянка
Нет
Противопожарная система
Нет
Санузлы
2
Совмещенная кухня-гостиная
Да
Спальни
3
Терраса
Да
Тип фундамента
Свайно-ростверковый
Тип кровли
Толщина внешних стен
400 мм
Толщина внутренних перегородок
100 мм
Улучшенные шумовые характеристики
Нет
Вентиляция
Естественная
Веранда
Нет
Водоотведение
Не предусмотрено
Водоснабжение
Не предусмотрено
Высота дома
6.3 м
Высота потолков
3 м

Планировка

Фасад дома

Александр

Закажите выезд инженера

Александр

Выездной инженер
Закажите выезд инженера для точной диагностики и профессиональной консультации по инженерным системам. Специалист приедет в удобное время, проведёт осмотр, рассчитает стоимость работ и подберёт оптимальные решения для вашего дома.


    Похожие проекты

    Ипотека и
    рассрочка
    Одноэтажный кирпичный дом GS-66
    Стоимость от:
    4 964 520
    Проект от: 29 700
    Этажей 1
    Санузлы 1
    Спальни 3
    Смотреть
    Ипотека и
    рассрочка
    WG-теглицы
    Стоимость от:
    11 087 340
    Проект от: 70 650
    Этажей 1
    Санузлы 2
    Спальни 4
    Смотреть
    Ипотека и
    рассрочка
    Скандик
    Стоимость от:
    6 956 400
    Проект от: 54 000
    Этажей 1
    Санузлы 2
    Спальни 3
    Смотреть
    Ипотека и
    рассрочка
    Барн КЕДР-100
    Стоимость от:
    4 350 060
    Проект от: 35 100
    Этажей 1
    Санузлы 1
    Спальни 3
    Смотреть
    Ипотека и
    рассрочка
    Одноэтажный Фахверк ONE 80
    Стоимость от:
    5 077 600
    Проект от: 36 000
    Этажей 1
    Санузлы 2
    Спальни 2
    Смотреть
    Ипотека и
    рассрочка
    Индивидуальный жилой дом АТЛАНТ-4
    Стоимость от:
    7 762 320
    Проект от: 50 850
    Этажей 2
    Санузлы 3
    Спальни 4
    Смотреть

    Как узнать стоимость дома

    back
    Оставляете заявку
    Вы заполняете форму на сайте или звоните нам. Менеджер Лайвкрафт связывается с вами для уточнения деталей: тип дома, площадь, материалы, участок строительства.
    back
    Консультация и подбор решения
    Наш специалист помогает выбрать оптимальный тип дома и конструкцию с учётом бюджета, сроков и целей — будь то дом для постоянного проживания или дача.
    back
    Расчёт предварительной стоимости
    Инженер делает первичный расчёт стоимости строительства по вашим параметрам: фундамент, коробка, кровля, отделка. Вы получаете смету с разбивкой по этапам.
    back
    Корректировка и утверждение сметы
    При необходимости вносим изменения — например, замену материалов или сокращение этапов. После согласования формируется окончательная фиксированная смета.
    back
    Заключение договора и старт работ
    После утверждения сметы заключаем официальный договор с гарантией. Вы получаете прозрачный график и точную стоимость — без скрытых расходов.

    Заказать конусльтацию по:Одноэтажный дом с тремя спальнями и кухней-гостиной

    Фото 1 Одноэтажный дом с тремя спальнями и кухней-гостиной


      Наши
      контакты

      Дмитров
      Опорный проезд 28Б
      (индустриальный парк Ниагара)
      9:00 до 18:00

      Корзина