4.9
Рейтинг на основании 120 отзывов
Дмитров
Опорный проезд 28Б
(индустриальный парк Ниагара)
Бренд "Дмитров-Дело" c 2008 года на рынке строительства в Дмитрове
Звоните 9:00 до 18:00 8 (915) 055-33-61
Бренд "Дмитров-Дело" c 2008 года на рынке строительства в Дмитрове

Одноэтажный дом «УЮТНЫЙ-1»

Стоимость проекта от:
29 700 ₽
БЕСПЛАТНО! ПРИ ЗАКАЗЕ СТРОИТЕЛЬСТВА
Стоимость строительства от:
4 964 520 ₽
Артикул ART-12960
Дата 25.12.2025
Архитектурный стиль Европейский
Количество надземных этажей 1
Круглогодичное проживание Да
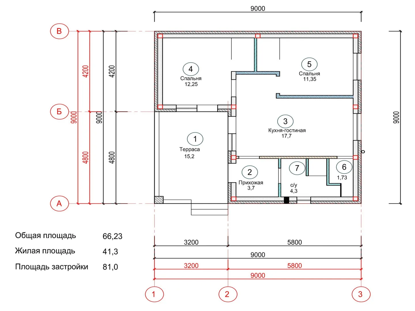
Площадь дома 66 м2
Санузлы 1
Спальни 2

Описание

Приветственный свет мягко окутывает уютный одноэтажный дом «УЮТНЫЙ‑1», воплотив в себе истинный европейский стиль, где каждая деталь задумывалась так, чтобы дарить ощущение домашнего тепла и комфорта. Отдавая предпочтение безмятежной гармонии, дом избавлен от громоздких веранд и балконов, чтобы всё пространство было посвящено внутреннему уюту и просторам, где легко и приятно проводить время с близкими. Непревзойденная теплоизоляция газобетонных блоков и двойственная скатная крыша создают идеальные условия для круглогодичного проживания: в холодное время он сохраняет тепло, а лето — прохладно и свежо. Непосредственное ощущение европейского шика усиливает мягкая архитектура, позволяя свету нежно переливаться через большие окна, наполняя комнаты ярким, но не обидным светом. Вместо привычной крытой автостоянки здесь предусмотрено отдельное место, где можно удобно расположить свой автомобиль, а свободное пространство вокруг дома открывает возможности для творчества и организации собственных зон отдыха. Надежно закрепленная терраса – это идеальное место для ароматных летних ужинов, бесед за чашкой чая под звёздным небом и просто для наслаждения свежим воздухом. В «УЮТНОМ‑1» каждое мгновение ощущается как приглашение к уюту, а европейская эстетика встречается с практичностью: здесь нет лишних помещений, которые только загромождают, а есть пространство, которое вдохновляет на создание домашнего счастья. Если вы ищете дом, где каждая зона продумана до мелочей и где легко строить свои мечты, то «УЮТНЫЙ‑1» – ваш идеальный выбор.

Характеристики дома

Архитектурный стиль
Автоматизированное регулирование параметров теплоносителя
Нет
Балконы/лоджии
Отсутствуют
Чердачное помещение
Нет
Датчики протечки воды
Нет
Эксплуатируемая или зеленая кровля
Нет
Электроснабжение
Центральное
Газоснабжение
Центральное
Изоляция воздушного шума
Нет
Камин
Нет
Класс энергоэффективности
-
Класс энергосбережения
-
Количество надземных этажей
1
Круглогодичное проживание
Да
Материал кровли
Металлочерепица
Материал перекрытий
Деревянные
Материал внешних стен
Материал внутренних перегородок
Блочные
Модульное строительство с конструкциями заводского изготовления
Нет
Объем надземной части
405 м3
Основной материал фасадов
Облицовочный кирпич
Отопление
Индивидуальное
Площадь дома
66 м2
Площадь застройки
81 м2
Подвальное помещение
Нет
Показатель компактности здания
-
Приборы учета тепловой энергии
Нет
Пристроенный гараж/крытая автостоянка
Нет
Противопожарная система
Нет
Санузлы
1
Совмещенная кухня-гостиная
Да
Спальни
2
Терраса
Да
Тип фундамента
Свайно-ростверковый
Тип кровли
Толщина внешних стен
350 мм
Толщина внутренних перегородок
150 мм
Улучшенные шумовые характеристики
Нет
Вентиляция
Естественная
Веранда
Нет
Водоотведение
Локальные очистные сооружения
Водоснабжение
Центральное
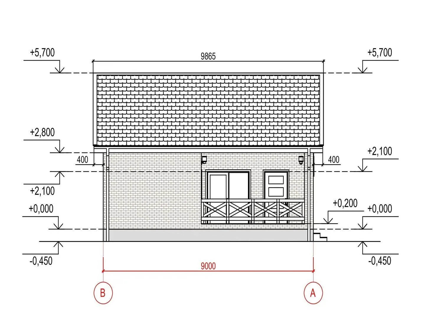
Высота дома
5.7 м
Высота потолков
2.9 м

Планировка

Фасад дома

Александр

Закажите выезд инженера

Александр

Выездной инженер
Закажите выезд инженера для точной диагностики и профессиональной консультации по инженерным системам. Специалист приедет в удобное время, проведёт осмотр, рассчитает стоимость работ и подберёт оптимальные решения для вашего дома.


    Похожие проекты

    Ипотека и
    рассрочка
    Двухэтажный дом с витражом из арболита с вторым светом
    Стоимость от:
    15 040 320
    Проект от: 93 600
    Этажей 2
    Санузлы 2
    Спальни 3
    Смотреть
    Ипотека и
    рассрочка
    WOODY-10
    Стоимость от:
    11 265 540
    Проект от: 90 900
    Этажей 1
    Санузлы 2
    Спальни 3
    Смотреть
    Ипотека и
    рассрочка
    Грата 2-100-М
    Стоимость от:
    7 320 240
    Проект от: 45 450
    Этажей 2
    Санузлы 2
    Спальни 4
    Смотреть
    Ипотека и
    рассрочка
    Дом 4
    Стоимость от:
    6 212 360
    Проект от: 35 100
    Этажей 1
    Санузлы 1
    Спальни 3
    Смотреть
    Ипотека и
    рассрочка
    Дом с широким остеклением и деревянными элементами отделки S3-122-1
    Стоимость от:
    12 197 520
    Проект от: 73 350
    Этажей 2
    Санузлы 3
    Спальни 3
    Смотреть
    Ипотека и
    рассрочка
    Стильный проект дома Ренс
    Стоимость от:
    15 359 040
    Проект от: 97 200
    Этажей 2
    Санузлы 3
    Спальни 4
    Смотреть

    Как узнать стоимость дома

    back
    Оставляете заявку
    Вы заполняете форму на сайте или звоните нам. Менеджер Лайвкрафт связывается с вами для уточнения деталей: тип дома, площадь, материалы, участок строительства.
    back
    Консультация и подбор решения
    Наш специалист помогает выбрать оптимальный тип дома и конструкцию с учётом бюджета, сроков и целей — будь то дом для постоянного проживания или дача.
    back
    Расчёт предварительной стоимости
    Инженер делает первичный расчёт стоимости строительства по вашим параметрам: фундамент, коробка, кровля, отделка. Вы получаете смету с разбивкой по этапам.
    back
    Корректировка и утверждение сметы
    При необходимости вносим изменения — например, замену материалов или сокращение этапов. После согласования формируется окончательная фиксированная смета.
    back
    Заключение договора и старт работ
    После утверждения сметы заключаем официальный договор с гарантией. Вы получаете прозрачный график и точную стоимость — без скрытых расходов.

    Заказать конусльтацию по:Одноэтажный дом «УЮТНЫЙ-1»

    Фото 1 Одноэтажный дом «УЮТНЫЙ-1»


      Наши
      контакты

      Дмитров
      Опорный проезд 28Б
      (индустриальный парк Ниагара)
      9:00 до 18:00

      Корзина