4.9
Рейтинг на основании 120 отзывов
Дмитров
Опорный проезд 28Б
(индустриальный парк Ниагара)
Бренд "Дмитров-Дело" c 2008 года на рынке строительства в Дмитрове
Звоните 9:00 до 18:00 8 (915) 055-33-61
Бренд "Дмитров-Дело" c 2008 года на рынке строительства в Дмитрове

Одноэтажный дом «Велета»

Стоимость проекта от:
33 750 ₽
Стоимость строительства от:
5 296 500 ₽
Артикул ART-10083
Дата 25.12.2025
Архитектурный стиль Скандинавский
Количество надземных этажей 1
Круглогодичное проживание Да
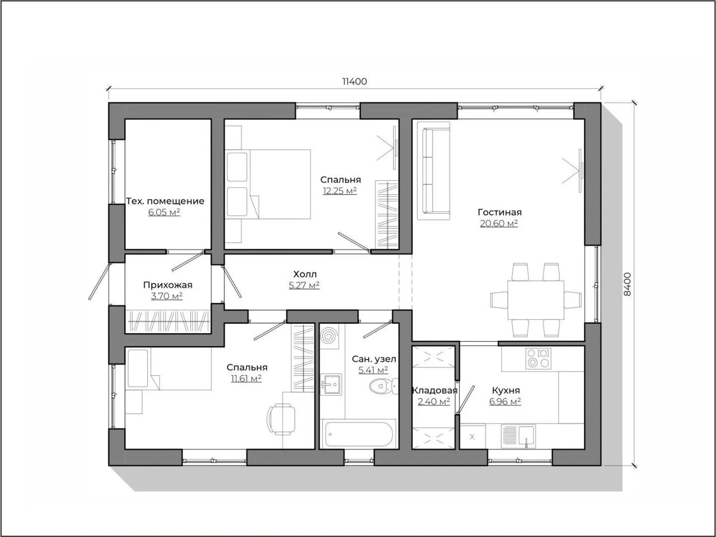
Площадь дома 75 м2
Санузлы 1
Спальни 2

Описание

**Дом “Велета”** – это лаконичное и уютное произведение скандинавского дизайна, созданное для тех, кто ценит простоту, но не в ущерб комфортным условиям круглогодичного проживания. Однокомнатный, но просторный, он раскрывается светлым, просторным главным залом, где стены из газобетонных блоков придают ощущение легкости и тепла, а большие окна наполняют пространство лучами солнца. Двускатная крыша с мягкими линиями подчёркивает скандинавскую строгость, а открытая кухня‑спальня оставляет пространство свободным и открытым, чтобы вы могли наслаждаться каждым свободным уголком. Специальное чердачное помещение, превращённое в уютный уголок отдыха или домашнего офиса, добавляет функциональности. Здесь легко разместить небольшую библиотеку, рабочий стол или тихую комнату для медитации. Внутреннее убранство – нейтральные тона и натуральные материалы – создают атмосферу безмятежности, где каждый куток обретает свою уникальную роль без лишнего шума. Дом “Велета” – это идеальное сочетание скандинавского минимализма и практичности: он лёгок в обслуживании, энергоэффективен благодаря газобетонным стенам, а простая, но изысканная планировка предоставляет свободу для вашего личного интерьера. Для тех, кто ищет уютную, но стильную обитель, открывающую просторы светлой эстетики, этот дом станет истинным воплощением современного комфорта.

Характеристики дома

Архитектурный стиль
Скандинавский
Автоматизированное регулирование параметров теплоносителя
-
Балконы/лоджии
Отсутствуют
Чердачное помещение
Да
Датчики протечки воды
-
Эксплуатируемая или зеленая кровля
-
Электроснабжение
Индивидуальное
Газоснабжение
Индивидуальное
Изоляция воздушного шума
-
Камин
Нет
Класс энергоэффективности
-
Класс энергосбережения
-
Количество надземных этажей
1
Круглогодичное проживание
Да
Материал кровли
Металлочерепица
Материал перекрытий
Деревянные
Материал внешних стен
Газобетонные блоки
Материал внутренних перегородок
Блочные
Модульное строительство с конструкциями заводского изготовления
Нет
Объем надземной части
-
Основной материал фасадов
Штукатурка
Отопление
Индивидуальное
Площадь дома
75 м2
Площадь застройки
96 м2
Подвальное помещение
Нет
Показатель компактности здания
-
Приборы учета тепловой энергии
-
Пристроенный гараж/крытая автостоянка
Нет
Противопожарная система
Нет
Санузлы
1
Совмещенная кухня-гостиная
Нет
Спальни
2
Терраса
Нет
Тип фундамента
Плитный
Тип кровли
Двускатная
Толщина внешних стен
375 мм
Толщина внутренних перегородок
100 мм
Улучшенные шумовые характеристики
-
Вентиляция
Естественная
Веранда
Нет
Водоотведение
Локальные очистные сооружения
Водоснабжение
Индивидуальное
Высота дома
5.32 м
Высота потолков
2.8 м

Планировка

Фасад дома

Александр

Закажите выезд инженера

Александр

Выездной инженер
Закажите выезд инженера для точной диагностики и профессиональной консультации по инженерным системам. Специалист приедет в удобное время, проведёт осмотр, рассчитает стоимость работ и подберёт оптимальные решения для вашего дома.


    Похожие проекты

    Ипотека и
    рассрочка
    Двухэтажный коттедж С95
    Стоимость от:
    9 062 640
    Проект от: 54 450
    Этажей 2
    Санузлы 2
    Спальни 3
    Смотреть
    Ипотека и
    рассрочка
    Проект4
    Стоимость от:
    9 438 440
    Проект от: 54 900
    Этажей 1
    Санузлы 3
    Спальни 3
    Смотреть
    Ипотека и
    рассрочка
    БГ 57
    Стоимость от:
    15 461 600
    Проект от: 90 000
    Этажей 1
    Санузлы 2
    Спальни 3
    Смотреть
    Ипотека и
    рассрочка
    Мансардный дом «Лазарь» 7*7
    Стоимость от:
    5 098 200
    Проект от: 38 250
    Этажей 2
    Санузлы 1
    Спальни 3
    Смотреть
    Ипотека и
    рассрочка
    Быстровозводимый дом «EFFECT LIGHT 118»
    Стоимость от:
    7 628 700
    Проект от: 53 100
    Этажей 2
    Санузлы 3
    Спальни 4
    Смотреть
    Ипотека и
    рассрочка
    Дом с мансардным этажом «Босбер 1.0»
    Стоимость от:
    8 660 160
    Проект от: 55 800
    Этажей 2
    Санузлы 2
    Спальни 5
    Смотреть

    Как узнать стоимость дома

    back
    Оставляете заявку
    Вы заполняете форму на сайте или звоните нам. Менеджер Лайвкрафт связывается с вами для уточнения деталей: тип дома, площадь, материалы, участок строительства.
    back
    Консультация и подбор решения
    Наш специалист помогает выбрать оптимальный тип дома и конструкцию с учётом бюджета, сроков и целей — будь то дом для постоянного проживания или дача.
    back
    Расчёт предварительной стоимости
    Инженер делает первичный расчёт стоимости строительства по вашим параметрам: фундамент, коробка, кровля, отделка. Вы получаете смету с разбивкой по этапам.
    back
    Корректировка и утверждение сметы
    При необходимости вносим изменения — например, замену материалов или сокращение этапов. После согласования формируется окончательная фиксированная смета.
    back
    Заключение договора и старт работ
    После утверждения сметы заключаем официальный договор с гарантией. Вы получаете прозрачный график и точную стоимость — без скрытых расходов.

    Заказать конусльтацию по:Одноэтажный дом «Велета»

    Фото 1 Одноэтажный дом «Велета»


      Наши
      контакты

      Дмитров
      Опорный проезд 28Б
      (индустриальный парк Ниагара)
      9:00 до 18:00

      Корзина