4.9
Рейтинг на основании 120 отзывов
Дмитров
Опорный проезд 28Б
(индустриальный парк Ниагара)
Бренд "Дмитров-Дело" c 2008 года на рынке строительства в Дмитрове
Звоните 9:00 до 18:00 8 (915) 055-33-61
Бренд "Дмитров-Дело" c 2008 года на рынке строительства в Дмитрове

Одноэтажный кирпичный дом ТП-128

Стоимость проекта от:
53 100 ₽
БЕСПЛАТНО! ПРИ ЗАКАЗЕ СТРОИТЕЛЬСТВА
Стоимость строительства от:
8 865 560 ₽
Артикул ART-12238
Дата 25.12.2025
Архитектурный стиль Европейский
Количество надземных этажей 1
Круглогодичное проживание Да
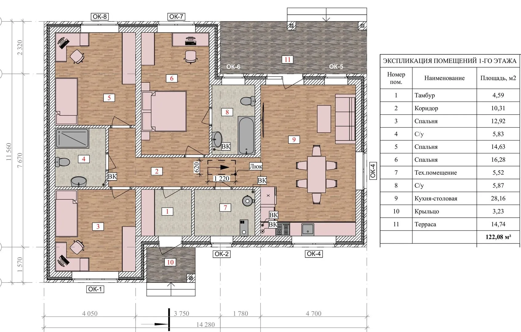
Площадь дома 118 м2
Санузлы 2
Спальни 3

Описание

Представляем вам уютный односеточный дом ТП‑128 – воплощение классической европейской архитектуры в современном исполнении. Каменное покрытие фасада из керамических блоков придаёт зданию надёжный, но при этом лёгкий вид, а четырёхскатная вальмовая крыша подчёркивает его элегантность и гармоничность линий. Дом рассчитан на круглогодичную жизнь: утеплённые стены и защищённый от ветра фасад делают ваш уголок комфортным даже в прохладные зимние дни. Внутри дома простая, но продуманная планировка в одном уровне обеспечивает свободу перемещения и открытые пространства. Отсутствие балконов и веранд не мешает ощутить тепло и уют: просторный внутренний двор и терраса создают идеальное место для отдыха на свежем воздухе с видом на живописный ландшафт. Отдельно стоит отметить отсутствие лишних строительных конструкций – нет пристройки гаража, чердака и под крышей, что позволяет максимизировать жилой площадь. Этот дом – идеальный вариант для тех, кто ценит простоту, эстетическую гармонию и практичность. ТП‑128 соединяет в себе традиционный стиль с современными удобствами, создавая при этом неповторимую атмосферу уюта и комфорта. Приглашаем вас открыть для себя новый уровень спокойствия и благополучия в вашем собственном европейском доме.

Характеристики дома

Архитектурный стиль
Автоматизированное регулирование параметров теплоносителя
Нет
Балконы/лоджии
Отсутствуют
Чердачное помещение
Нет
Датчики протечки воды
Нет
Эксплуатируемая или зеленая кровля
Нет
Электроснабжение
Центральное
Газоснабжение
Не предусмотрено
Изоляция воздушного шума
Нет
Камин
Нет
Класс энергоэффективности
-
Класс энергосбережения
-
Количество надземных этажей
1
Круглогодичное проживание
Да
Материал кровли
Металлочерепица
Материал перекрытий
Деревянные
Материал внешних стен
Материал внутренних перегородок
Кирпичные
Модульное строительство с конструкциями заводского изготовления
Нет
Объем надземной части
291 м3
Основной материал фасадов
Облицовочный кирпич
Отопление
Индивидуальное
Площадь дома
118 м2
Площадь застройки
152 м2
Подвальное помещение
Нет
Показатель компактности здания
-
Приборы учета тепловой энергии
Нет
Пристроенный гараж/крытая автостоянка
Нет
Противопожарная система
Нет
Санузлы
2
Совмещенная кухня-гостиная
Да
Спальни
3
Терраса
Да
Тип фундамента
Свайно-ростверковый
Толщина внешних стен
500 мм
Толщина внутренних перегородок
120 мм
Улучшенные шумовые характеристики
Нет
Вентиляция
Естественная
Веранда
Нет
Водоотведение
Локальные очистные сооружения
Водоснабжение
Индивидуальное
Высота дома
5.5 м
Высота потолков
2.8 м

Планировка

Фасад дома

Александр

Закажите выезд инженера

Александр

Выездной инженер
Закажите выезд инженера для точной диагностики и профессиональной консультации по инженерным системам. Специалист приедет в удобное время, проведёт осмотр, рассчитает стоимость работ и подберёт оптимальные решения для вашего дома.


    Похожие проекты

    Ипотека и
    рассрочка
    СЕРИЯ «БАРНХАУС» ПРОЕКТ КД-20
    Стоимость от:
    2 509 650
    Проект от: 20 250
    Этажей 1
    Санузлы 1
    Спальни 1
    Смотреть
    Ипотека и
    рассрочка
    Загородный дом — Нисса
    Стоимость от:
    7 585 440
    Проект от: 54 450
    Этажей 2
    Санузлы 1
    Спальни 2
    Смотреть
    Ипотека и
    рассрочка
    ИЖС ЭП-Ч6-2024
    Стоимость от:
    7 420 160
    Проект от: 57 600
    Этажей 1
    Санузлы 1
    Спальни 3
    Смотреть
    Ипотека и
    рассрочка
    Мансардный дом 90м2
    Стоимость от:
    5 755 920
    Проект от: 39 150
    Этажей 2
    Санузлы 2
    Спальни 2
    Смотреть
    Ипотека и
    рассрочка
    Vst-85
    Стоимость от:
    6 768 300
    Проект от: 38 250
    Этажей 1
    Санузлы 1
    Спальни 3
    Смотреть
    Ипотека и
    рассрочка
    Дом с мансардным этажом «Юрма 3.0»
    Стоимость от:
    6 564 960
    Проект от: 42 300
    Этажей 2
    Санузлы 2
    Спальни 4
    Смотреть

    Как узнать стоимость дома

    back
    Оставляете заявку
    Вы заполняете форму на сайте или звоните нам. Менеджер Лайвкрафт связывается с вами для уточнения деталей: тип дома, площадь, материалы, участок строительства.
    back
    Консультация и подбор решения
    Наш специалист помогает выбрать оптимальный тип дома и конструкцию с учётом бюджета, сроков и целей — будь то дом для постоянного проживания или дача.
    back
    Расчёт предварительной стоимости
    Инженер делает первичный расчёт стоимости строительства по вашим параметрам: фундамент, коробка, кровля, отделка. Вы получаете смету с разбивкой по этапам.
    back
    Корректировка и утверждение сметы
    При необходимости вносим изменения — например, замену материалов или сокращение этапов. После согласования формируется окончательная фиксированная смета.
    back
    Заключение договора и старт работ
    После утверждения сметы заключаем официальный договор с гарантией. Вы получаете прозрачный график и точную стоимость — без скрытых расходов.

    Заказать конусльтацию по:Одноэтажный кирпичный дом ТП-128

    Фото 1 Одноэтажный кирпичный дом ТП-128


      Наши
      контакты

      Дмитров
      Опорный проезд 28Б
      (индустриальный парк Ниагара)
      9:00 до 18:00

      Корзина