4.9
Рейтинг на основании 120 отзывов
Дмитров
Опорный проезд 28Б
(индустриальный парк Ниагара)
Бренд "Дмитров-Дело" c 2008 года на рынке строительства в Дмитрове
Звоните 9:00 до 18:00 8 (915) 055-33-61
Бренд "Дмитров-Дело" c 2008 года на рынке строительства в Дмитрове

Загородный дом — Нисса

Стоимость проекта от:
54 450 ₽
БЕСПЛАТНО! ПРИ ЗАКАЗЕ СТРОИТЕЛЬСТВА
Стоимость строительства от:
7 585 440 ₽
Артикул ART-11142
Дата 25.12.2025
Архитектурный стиль Барнхаус
Количество надземных этажей 2
Круглогодичное проживание Да
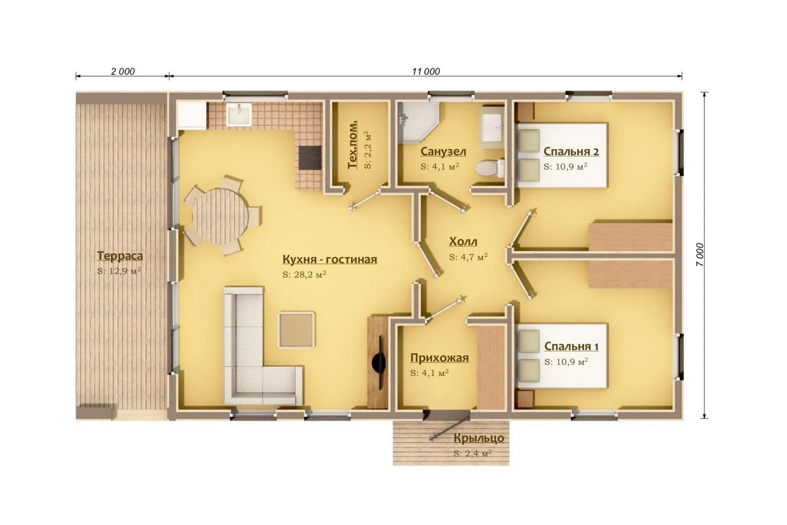
Площадь дома 121 м2
Санузлы 1
Спальни 2

Описание

Прекрасная загородная резиденция «Нисса» приглашает в мир уюта, простоты и природной гармонии. Его два надземных этажа соединяются теплой деревянной рамы, создавая атмосферу настоящего барнхауса, где каждая комната наполнена светом и ароматом свежего воздуха. Круглогодичное проживание стало реальностью благодаря тщательной теплоизоляции и двойной крыши «двускатной» конструкции, позволяющей насладиться всеми сезонами без компромиссов. Внутри дома вы найдете просторные открытые зоны, которые легко адаптируются под любые нужды: семейные обеды, креативные хобби или тихий отдых. Теплые деревянные балки, естественные материалы и лаконичный минимализм делают интерьер гармоничным и расслабляющим, словно обертывающий вас природой. На крыше уютная терраса предлагает идеальное место для завтрака под звёздами или вечерних бесед с близкими, чтобы чувствовать связь со всеми четырьмя сезонами. «Нисса» — это не просто дом, а настоящее убежище для тех, кто ценит сочетание функциональности и эстетики, но при этом желает сохранить простоту и дружелюбие. Здесь нет лишних балконов, веранд или автостоянки, но есть всё, что нужно для беззаботной жизни: открытые окна, тёплый деревянный интерьер, и возможность наслаждаться живописными видами, словно вы находитесь в самом сердце природы. Это ваш шанс открыть новую главу, наполненную гармонией и комфортом, в доме, который говорит о вашем стиля жизни, но при этом остаётся скромным и гостеприимным.

Характеристики дома

Архитектурный стиль
Автоматизированное регулирование параметров теплоносителя
Да
Балконы/лоджии
Отсутствуют
Чердачное помещение
Нет
Датчики протечки воды
Да
Эксплуатируемая или зеленая кровля
Нет
Электроснабжение
Индивидуальное
Газоснабжение
Индивидуальное
Изоляция воздушного шума
Да
Камин
Нет
Класс энергоэффективности
-
Класс энергосбережения
-
Количество надземных этажей
2
Круглогодичное проживание
Да
Материал кровли
Фальцевая кровля Кликфальц
Материал перекрытий
Деревянные
Материал внешних стен
Материал внутренних перегородок
Деревянные
Модульное строительство с конструкциями заводского изготовления
Нет
Объем надземной части
-
Основной материал фасадов
Дерево
Отопление
Индивидуальное
Площадь дома
121 м2
Площадь застройки
106 м2
Подвальное помещение
Нет
Показатель компактности здания
-
Приборы учета тепловой энергии
Да
Пристроенный гараж/крытая автостоянка
Нет
Противопожарная система
Нет
Санузлы
1
Совмещенная кухня-гостиная
Да
Спальни
2
Терраса
Да
Тип фундамента
Плитный
Тип кровли
Толщина внешних стен
300 мм
Толщина внутренних перегородок
200 мм
Улучшенные шумовые характеристики
Да
Вентиляция
Естественная
Веранда
Нет
Водоотведение
Локальные очистные сооружения
Водоснабжение
Индивидуальное
Высота дома
6.4 м
Высота потолков
2.7 м

Планировка

Фасад дома

Александр

Закажите выезд инженера

Александр

Выездной инженер
Закажите выезд инженера для точной диагностики и профессиональной консультации по инженерным системам. Специалист приедет в удобное время, проведёт осмотр, рассчитает стоимость работ и подберёт оптимальные решения для вашего дома.


    Похожие проекты

    Ипотека и
    рассрочка
    Одноэтажный дом АН 122
    Стоимость от:
    8 790 540
    Проект от: 52 650
    Этажей 1
    Санузлы 2
    Спальни 3
    Смотреть
    Ипотека и
    рассрочка
    Статус 8х8,5 Ария
    Стоимость от:
    6 583 500
    Проект от: 49 500
    Этажей 2
    Санузлы 2
    Спальни 4
    Смотреть
    Ипотека и
    рассрочка
    Ай-Петри
    Стоимость от:
    7 140 100
    Проект от: 42 750
    Этажей 1
    Санузлы 2
    Спальни 3
    Смотреть
    Ипотека и
    рассрочка
    Проект Каркасный дом ДСС-0612
    Стоимость от:
    4 855 620
    Проект от: 37 800
    Этажей 1
    Санузлы 1
    Спальни 2
    Смотреть
    Ипотека и
    рассрочка
    Современный двухэтажный дом №212
    Стоимость от:
    13 765 680
    Проект от: 88 650
    Этажей 2
    Санузлы 3
    Спальни 5
    Смотреть
    Ипотека и
    рассрочка
    Бёрстуга
    Стоимость от:
    6 202 790
    Проект от: 48 150
    Этажей 1
    Санузлы 2
    Спальни 2
    Смотреть

    Как узнать стоимость дома

    back
    Оставляете заявку
    Вы заполняете форму на сайте или звоните нам. Менеджер Лайвкрафт связывается с вами для уточнения деталей: тип дома, площадь, материалы, участок строительства.
    back
    Консультация и подбор решения
    Наш специалист помогает выбрать оптимальный тип дома и конструкцию с учётом бюджета, сроков и целей — будь то дом для постоянного проживания или дача.
    back
    Расчёт предварительной стоимости
    Инженер делает первичный расчёт стоимости строительства по вашим параметрам: фундамент, коробка, кровля, отделка. Вы получаете смету с разбивкой по этапам.
    back
    Корректировка и утверждение сметы
    При необходимости вносим изменения — например, замену материалов или сокращение этапов. После согласования формируется окончательная фиксированная смета.
    back
    Заключение договора и старт работ
    После утверждения сметы заключаем официальный договор с гарантией. Вы получаете прозрачный график и точную стоимость — без скрытых расходов.

    Заказать конусльтацию по:Загородный дом — Нисса

    Фото 1 Загородный дом — Нисса


      Наши
      контакты

      Дмитров
      Опорный проезд 28Б
      (индустриальный парк Ниагара)
      9:00 до 18:00

      Корзина