4.9
Рейтинг на основании 120 отзывов
Дмитров
Опорный проезд 28Б
(индустриальный парк Ниагара)
Бренд "Дмитров-Дело" c 2008 года на рынке строительства в Дмитрове
Звоните 9:00 до 18:00 8 (915) 055-33-61
Бренд "Дмитров-Дело" c 2008 года на рынке строительства в Дмитрове

Одноэтажный семейный дом Аист-2 (2 спальни)

Стоимость проекта от:
44 100 ₽
БЕСПЛАТНО! ПРИ ЗАКАЗЕ СТРОИТЕЛЬСТВА
Стоимость строительства от:
6 203 890 ₽
Артикул ART-17067
Дата 26.12.2025
Архитектурный стиль Классический
Количество надземных этажей 1
Круглогодичное проживание Да
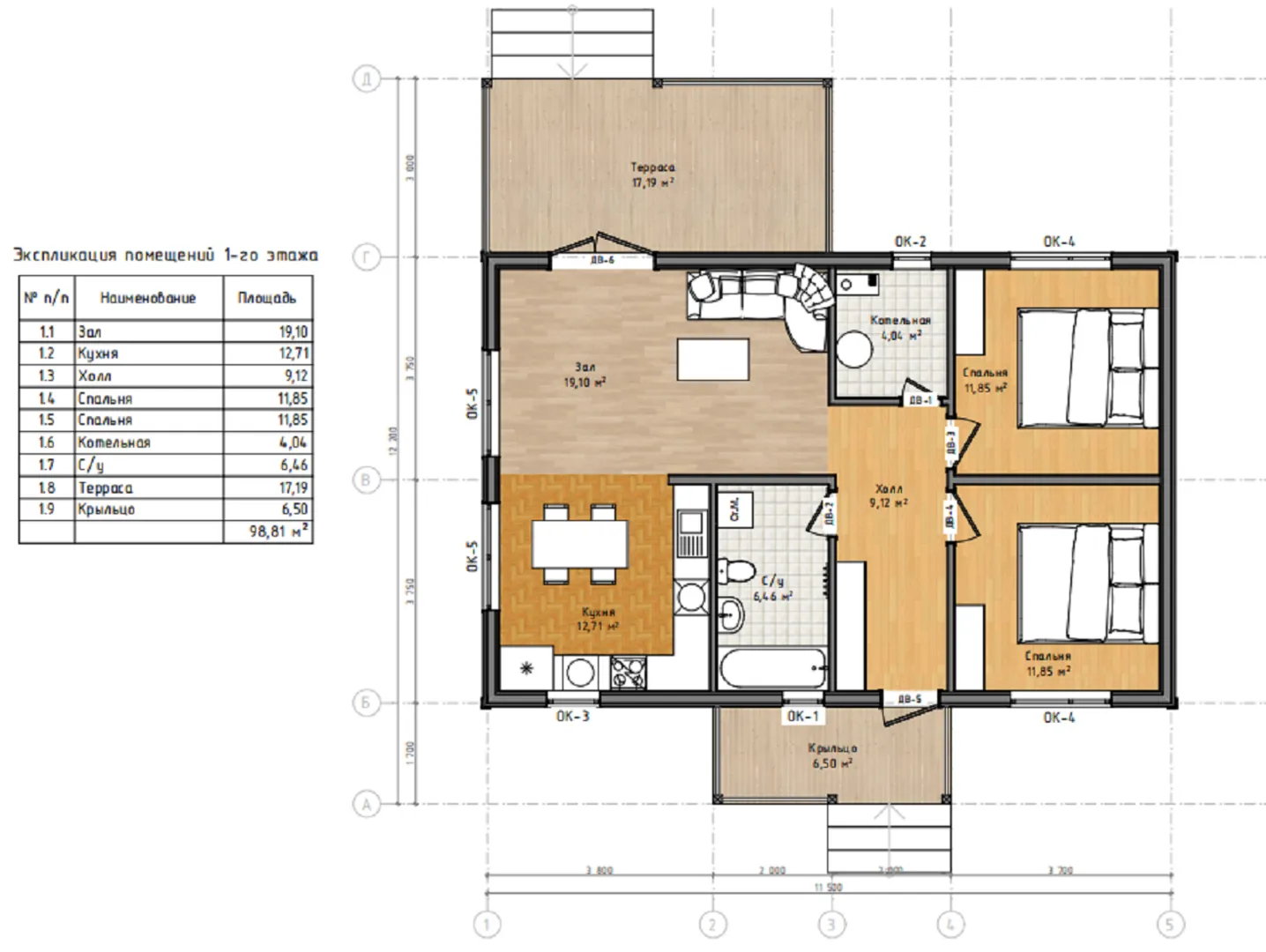
Площадь дома 98 м2
Санузлы 1
Спальни 2

Описание

Погрузитесь в атмосферу домашнего уюта с одноэтажным домом Аист‑2 – идеальное решение для семейного гнездышка. Просторные, светлые комнаты, выполненные в классическом стиле, создают ощущение тепла и надёжности. Зимой и летом этот дом обеспечивает комфортное проживание, а его акустика и теплоизоляция позволят забыть о внешних погодных простудах. Дом снабжен удобным чердачным помещением, которое может стать дополнительной спальней, кладовой или уютным уголком для творчества. Круглую площадку вокруг дома украшает простая, но элегантная терраса, где можно наслаждаться летними вечерами и свежим ароматом садовых цветов. Приёмная крытая часть, выполненная по технологии каркасно‑панельного строительства, гарантирует долговечность и простоту обслуживания. Хотя гаража и веранда отсутствуют, дом компенсирует эти недостатки своей практичностью: крытая автостоянка вблизи, простая навесная конструкция и легкость обслуживания каркасных стен. Двускатная кровля не только подчёркивает классический стиль, но и обеспечивает надёжную защиту от погодных условий. Аист‑2 – ваш просторный, безопасный и уютный уголок, где каждый миг наполнен теплом и комфортом.

Характеристики дома

Архитектурный стиль
Автоматизированное регулирование параметров теплоносителя
Да
Балконы/лоджии
Отсутствуют
Чердачное помещение
Да
Датчики протечки воды
Нет
Эксплуатируемая или зеленая кровля
Нет
Электроснабжение
Центральное
Газоснабжение
Не предусмотрено
Изоляция воздушного шума
Нет
Камин
Нет
Класс энергоэффективности
-
Класс энергосбережения
-
Количество надземных этажей
1
Круглогодичное проживание
Да
Материал кровли
Металлочерепица
Материал перекрытий
Деревянные
Материал внешних стен
Материал внутренних перегородок
Деревянные
Модульное строительство с конструкциями заводского изготовления
Нет
Объем надземной части
219 м3
Основной материал фасадов
Сайдинг
Отопление
Индивидуальное
Площадь дома
98 м2
Площадь застройки
112 м2
Подвальное помещение
Нет
Показатель компактности здания
-
Приборы учета тепловой энергии
Нет
Пристроенный гараж/крытая автостоянка
Нет
Противопожарная система
Нет
Санузлы
1
Совмещенная кухня-гостиная
Да
Спальни
2
Терраса
Да
Тип фундамента
Свайно-винтовой
Тип кровли
Толщина внешних стен
240 мм
Толщина внутренних перегородок
170 мм
Улучшенные шумовые характеристики
Да
Вентиляция
Естественная
Веранда
Нет
Водоотведение
Локальные очистные сооружения
Водоснабжение
Индивидуальное
Высота дома
4.9 м
Высота потолков
2.92 м

Планировка

Фасад дома

Александр

Закажите выезд инженера

Александр

Выездной инженер
Закажите выезд инженера для точной диагностики и профессиональной консультации по инженерным системам. Специалист приедет в удобное время, проведёт осмотр, рассчитает стоимость работ и подберёт оптимальные решения для вашего дома.


    Похожие проекты

    Ипотека и
    рассрочка
    Загородный дом ИСЛАНДИЯ 80
    Стоимость от:
    8 826 180
    Проект от: 58 050
    Этажей 1
    Санузлы 2
    Спальни 2
    Смотреть
    Ипотека и
    рассрочка
    Одноэтажный дом «Норвегия»
    Стоимость от:
    10 183 360
    Проект от: 57 600
    Этажей 1
    Санузлы 2
    Спальни 3
    Смотреть
    Ипотека и
    рассрочка
    ART
    Стоимость от:
    17 926 920
    Проект от: 110 700
    Этажей 1
    Санузлы 3
    Спальни 6
    Смотреть
    Ипотека и
    рассрочка
    ДК-08
    Стоимость от:
    3 179 275
    Проект от: 24 750
    Этажей 1
    Санузлы 1
    Спальни 2
    Смотреть
    Ипотека и
    рассрочка
    Одноэтажный дом Фюссен 9,3х12.5
    Стоимость от:
    7 184 100
    Проект от: 47 250
    Этажей 1
    Санузлы 1
    Спальни 3
    Смотреть
    Ипотека и
    рассрочка
    Чойс
    Стоимость от:
    5 268 000
    Проект от: 36 000
    Этажей 2
    Санузлы 2
    Спальни 4
    Смотреть

    Как узнать стоимость дома

    back
    Оставляете заявку
    Вы заполняете форму на сайте или звоните нам. Менеджер Лайвкрафт связывается с вами для уточнения деталей: тип дома, площадь, материалы, участок строительства.
    back
    Консультация и подбор решения
    Наш специалист помогает выбрать оптимальный тип дома и конструкцию с учётом бюджета, сроков и целей — будь то дом для постоянного проживания или дача.
    back
    Расчёт предварительной стоимости
    Инженер делает первичный расчёт стоимости строительства по вашим параметрам: фундамент, коробка, кровля, отделка. Вы получаете смету с разбивкой по этапам.
    back
    Корректировка и утверждение сметы
    При необходимости вносим изменения — например, замену материалов или сокращение этапов. После согласования формируется окончательная фиксированная смета.
    back
    Заключение договора и старт работ
    После утверждения сметы заключаем официальный договор с гарантией. Вы получаете прозрачный график и точную стоимость — без скрытых расходов.

    Заказать конусльтацию по:Одноэтажный семейный дом Аист-2 (2 спальни)

    Фото 1 Одноэтажный семейный дом Аист-2 (2 спальни)


      Наши
      контакты

      Дмитров
      Опорный проезд 28Б
      (индустриальный парк Ниагара)
      9:00 до 18:00

      Корзина