4.9
Рейтинг на основании 120 отзывов
Дмитров
Опорный проезд 28Б
(индустриальный парк Ниагара)
Бренд "Дмитров-Дело" c 2008 года на рынке строительства в Дмитрове
Звоните 9:00 до 18:00 8 (915) 055-33-61
Бренд "Дмитров-Дело" c 2008 года на рынке строительства в Дмитрове

Плутос

Стоимость проекта от:
50 850 ₽
БЕСПЛАТНО! ПРИ ЗАКАЗЕ СТРОИТЕЛЬСТВА
Стоимость строительства от:
7 317 720 ₽
Артикул ART-12755
Дата 25.12.2025
Архитектурный стиль Классический
Количество надземных этажей 2
Круглогодичное проживание Да
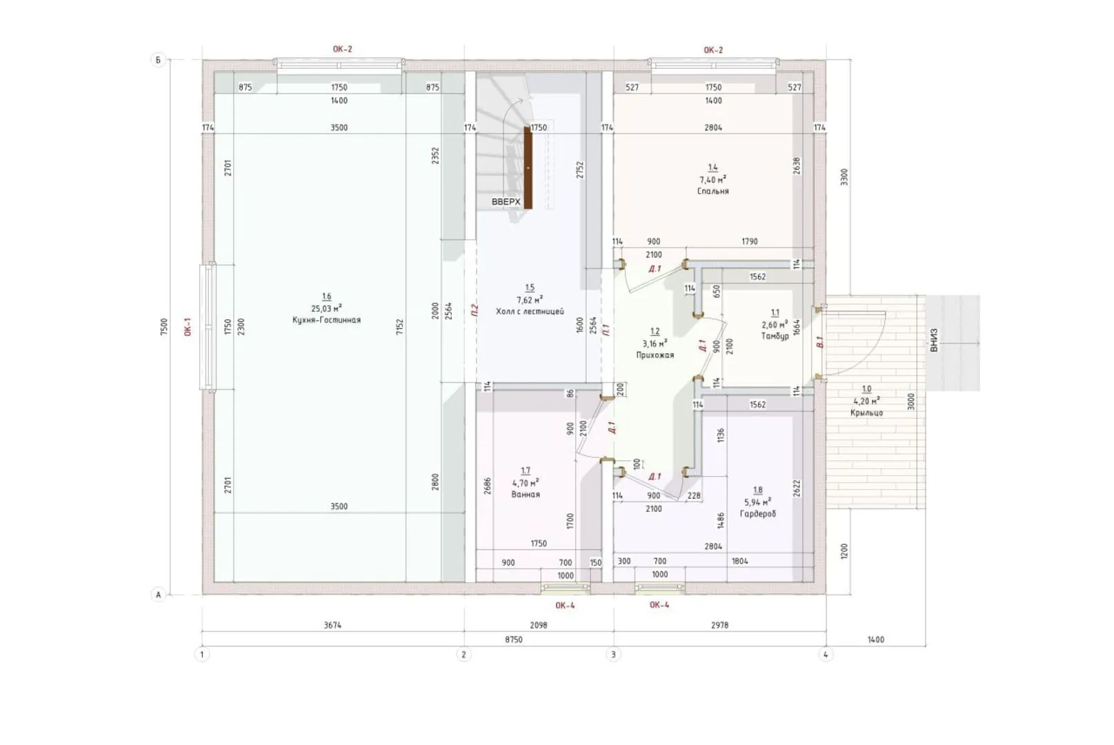
Площадь дома 113 м2
Санузлы 2
Спальни 4

Описание

Погрузитесь в уют классического дома, где каждая деталь продумана до совершенства. На первых двух уровнях гармония классических фасадов сочетается с современными решениями: стены, выполненные из SIP‑панелей, обеспечивают энергоэффективность и долговечность, а четырехскатный профиль крыши добавляет элегантности и защищает от непогоды. Это — идеальное место для круглогодичного проживания, где холодные зимы и жаркие лета встречаются с комфортом и стабильной температурой внутри. Внутренний простор расширяется благодаря чердачному помещению, которое открывает неожиданные возможности: будь то уютная библиотека, рабочий кабинет или альтернатива для гостей, этот задворок добавляет жизни и гибкости. Отсутствие балконов, террас и веранд подчеркивает простоту и лаконичность проекта, делая пространство полностью адаптируемым к вашим желаниям и потребностям. Удобная двухуровневая планировка позволяет организовать приватные зоны, а компактная площадь делает этот дом идеальным для семей, ценящих уют и функциональность. И хотя в доме нет прикреплённого гаража, вы найдете всё необходимое для хранения и организации пространства — от встроенных шкафов до практичных подвальных помещений. Этот дом – сочетание элегантного стиля, современных технологий и простого, но продуманного дизайна, который превратит любой день в особенное событие. Если вы ищете место, где классика встречается с современностью, где каждая часть пространства служит вам, то этот дом ждет именно вас.

Характеристики дома

Архитектурный стиль
Автоматизированное регулирование параметров теплоносителя
Нет
Балконы/лоджии
Отсутствуют
Чердачное помещение
Да
Датчики протечки воды
Нет
Эксплуатируемая или зеленая кровля
Нет
Электроснабжение
Не предусмотрено
Газоснабжение
Не предусмотрено
Изоляция воздушного шума
Нет
Камин
Нет
Класс энергоэффективности
A++
Класс энергосбережения
A++
Количество надземных этажей
2
Круглогодичное проживание
Да
Материал кровли
Битумная черепица
Материал перекрытий
Деревянные
Материал внешних стен
Материал внутренних перегородок
Деревянные
Модульное строительство с конструкциями заводского изготовления
Нет
Объем надземной части
329 м3
Основной материал фасадов
Фасадная плитка
Отопление
Не предусмотрено
Площадь дома
113 м2
Площадь застройки
65 м2
Подвальное помещение
Нет
Показатель компактности здания
1
Приборы учета тепловой энергии
Нет
Пристроенный гараж/крытая автостоянка
Нет
Противопожарная система
Нет
Санузлы
2
Совмещенная кухня-гостиная
Да
Спальни
4
Терраса
Нет
Тип фундамента
Свайный
Толщина внешних стен
174 мм
Толщина внутренних перегородок
120 мм
Улучшенные шумовые характеристики
Нет
Вентиляция
Рекуперация
Веранда
Нет
Водоотведение
Не предусмотрено
Водоснабжение
Не предусмотрено
Высота дома
8.1 м
Высота потолков
2.8 м

Планировка

Фасад дома

Александр

Закажите выезд инженера

Александр

Выездной инженер
Закажите выезд инженера для точной диагностики и профессиональной консультации по инженерным системам. Специалист приедет в удобное время, проведёт осмотр, рассчитает стоимость работ и подберёт оптимальные решения для вашего дома.


    Похожие проекты

    Ипотека и
    рассрочка
    Каркасный жилой дом ДК-98
    Стоимость от:
    5 465 460
    Проект от: 44 100
    Этажей 1
    Санузлы 1
    Спальни 3
    Смотреть
    Ипотека и
    рассрочка
    Загородный дом Ливерпуль
    Стоимость от:
    33 545 280
    Проект от: 212 400
    Этажей 2
    Санузлы 3
    Спальни 5
    Смотреть
    Ипотека и
    рассрочка
    Одноэтажный дом с кабинетом
    Стоимость от:
    7 838 820
    Проект от: 49 950
    Этажей 1
    Санузлы 2
    Спальни 2
    Смотреть
    Ипотека и
    рассрочка
    ТЕН-1
    Стоимость от:
    8 277 280
    Проект от: 46 800
    Этажей 1
    Санузлы 1
    Спальни 3
    Смотреть
    Ипотека и
    рассрочка
    Загородный дом «Лорен»
    Стоимость от:
    5 725 720
    Проект от: 40 950
    Этажей 1
    Санузлы 1
    Спальни 2
    Смотреть
    Ипотека и
    рассрочка
    Проект Уют
    Стоимость от:
    8 229 600
    Проект от: 49 500
    Этажей 2
    Санузлы 2
    Спальни 3
    Смотреть

    Как узнать стоимость дома

    back
    Оставляете заявку
    Вы заполняете форму на сайте или звоните нам. Менеджер Лайвкрафт связывается с вами для уточнения деталей: тип дома, площадь, материалы, участок строительства.
    back
    Консультация и подбор решения
    Наш специалист помогает выбрать оптимальный тип дома и конструкцию с учётом бюджета, сроков и целей — будь то дом для постоянного проживания или дача.
    back
    Расчёт предварительной стоимости
    Инженер делает первичный расчёт стоимости строительства по вашим параметрам: фундамент, коробка, кровля, отделка. Вы получаете смету с разбивкой по этапам.
    back
    Корректировка и утверждение сметы
    При необходимости вносим изменения — например, замену материалов или сокращение этапов. После согласования формируется окончательная фиксированная смета.
    back
    Заключение договора и старт работ
    После утверждения сметы заключаем официальный договор с гарантией. Вы получаете прозрачный график и точную стоимость — без скрытых расходов.

    Заказать конусльтацию по:Плутос

    Фото 1 Плутос


      Наши
      контакты

      Дмитров
      Опорный проезд 28Б
      (индустриальный парк Ниагара)
      9:00 до 18:00

      Корзина