4.9
Рейтинг на основании 120 отзывов
Дмитров
Опорный проезд 28Б
(индустриальный парк Ниагара)
Бренд "Дмитров-Дело" c 2008 года на рынке строительства в Дмитрове
Звоните 9:00 до 18:00 8 (915) 055-33-61
Бренд "Дмитров-Дело" c 2008 года на рынке строительства в Дмитрове

Проект Дом с мансардным этажом «Асгард 4.0»

Стоимость проекта от:
58 050 ₽
БЕСПЛАТНО! ПРИ ЗАКАЗЕ СТРОИТЕЛЬСТВА
Стоимость строительства от:
9 016 560 ₽
Артикул ART-15867
Дата 25.12.2025
Архитектурный стиль Европейский
Количество надземных этажей 2
Круглогодичное проживание Да
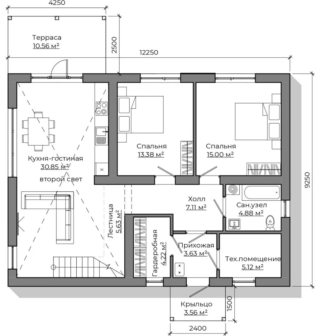
Площадь дома 129 м2
Санузлы 2
Спальни 3

Описание

Откройте дверь в современное европейское гостеприимство с проектом «Асгард 4.0» — идеальным решением для тех, кто ценит комфорт и стиль в одном лице. Этот двухэтажный дом с мансардным этажом совмещает в себе изысканную архитектуру и практичность: просторные комнаты, продуманные зоны отдыха и светлые, воздушные пространства, которые позволяют чувствовать себя дома круглый год. Каждая деталь проекта продумана до мелочей: облицовка керамическим блоком придает фасаду элегантный характер, а двускатная крыша создаёт ощущение уюта и защищённости. Примусовая терраса приглашает к вечерним беседам на свежем воздухе, а отсутствие лишних отделок, как веранда, балконы или гараж, позволяет сосредоточиться на самом главном — создании пространства, где удобно жить и отдыхать. Выбирая «Асгард 4.0» вы получаете не просто дом, а место, где каждый уголок дарит ощущение домашнего уюта и современного комфорта. Это идеальный вариант для тех, кто ищет сочетание европейской элегантности, функционального дизайна и непревзойденного качества строительства.

Характеристики дома

Архитектурный стиль
Автоматизированное регулирование параметров теплоносителя
Нет
Балконы/лоджии
Отсутствуют
Чердачное помещение
Нет
Датчики протечки воды
Нет
Эксплуатируемая или зеленая кровля
Нет
Электроснабжение
Индивидуальное
Газоснабжение
Индивидуальное
Изоляция воздушного шума
Нет
Камин
Нет
Класс энергоэффективности
-
Класс энергосбережения
-
Количество надземных этажей
2
Круглогодичное проживание
Да
Материал кровли
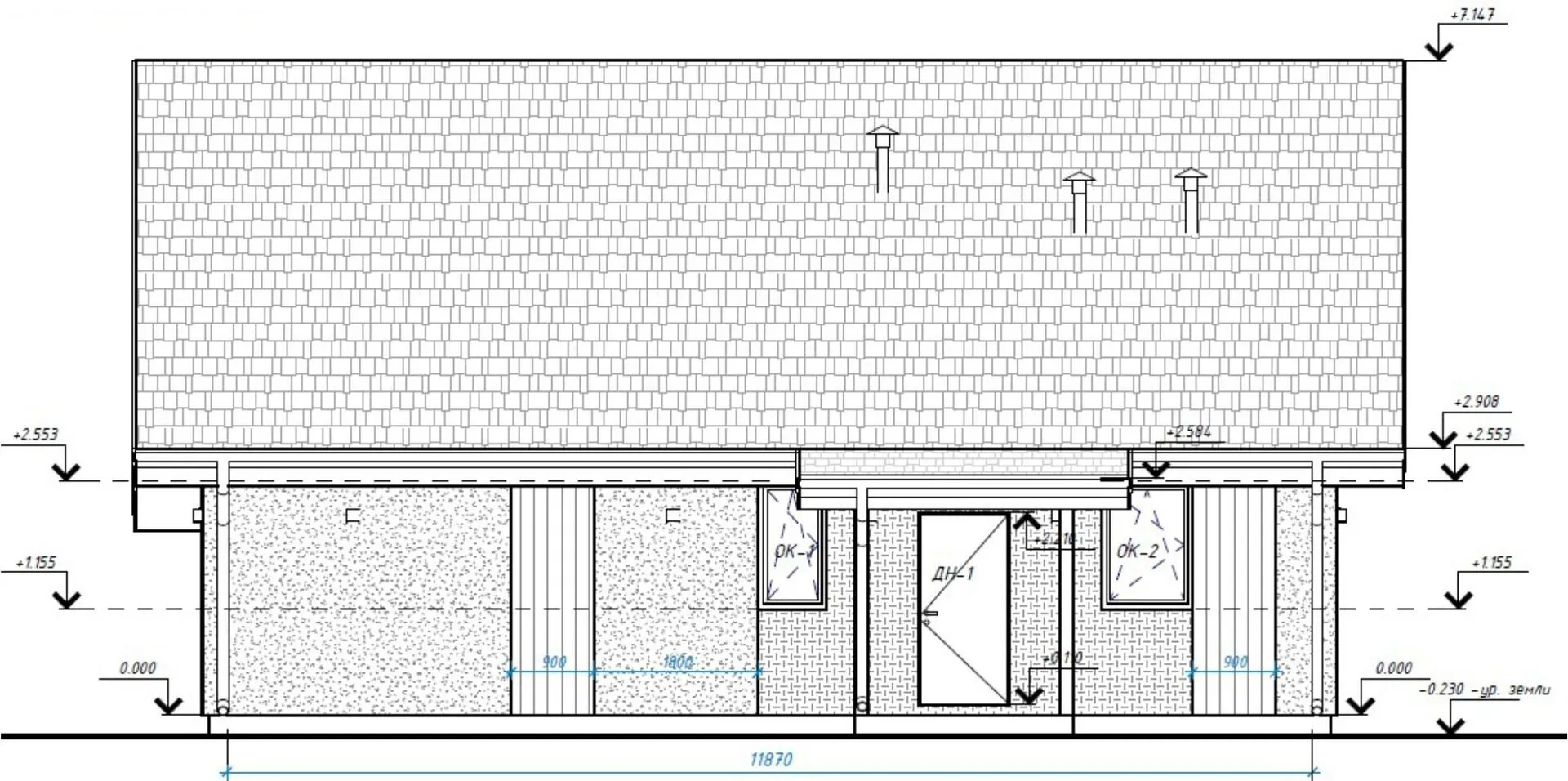
Металлочерепица
Материал перекрытий
Сборные железобетонные многопустотные плиты
Материал внешних стен
Материал внутренних перегородок
Кирпичные
Модульное строительство с конструкциями заводского изготовления
Нет
Объем надземной части
-
Основной материал фасадов
Штукатурка
Отопление
Индивидуальное
Площадь дома
129 м2
Площадь застройки
127 м2
Подвальное помещение
Нет
Показатель компактности здания
-
Приборы учета тепловой энергии
Нет
Пристроенный гараж/крытая автостоянка
Нет
Противопожарная система
Нет
Санузлы
2
Совмещенная кухня-гостиная
Да
Спальни
3
Терраса
Да
Тип фундамента
Плитный
Тип кровли
Толщина внешних стен
380 мм
Толщина внутренних перегородок
120 мм
Улучшенные шумовые характеристики
Нет
Вентиляция
Естественная
Веранда
Нет
Водоотведение
Локальные очистные сооружения
Водоснабжение
Индивидуальное
Высота дома
7.14 м
Высота потолков
3 м

Планировка

Фасад дома

Александр

Закажите выезд инженера

Александр

Выездной инженер
Закажите выезд инженера для точной диагностики и профессиональной консультации по инженерным системам. Специалист приедет в удобное время, проведёт осмотр, рассчитает стоимость работ и подберёт оптимальные решения для вашего дома.


    Похожие проекты

    Ипотека и
    рассрочка
    Тайгет 139
    Стоимость от:
    7 696 260
    Проект от: 62 100
    Этажей 1
    Санузлы 2
    Спальни 3
    Смотреть
    Ипотека и
    рассрочка
    Каркасный дом Сидней 148
    Стоимость от:
    380 160
    Проект от: 64 800
    Этажей 2
    Санузлы 2
    Спальни 7
    Смотреть
    Ипотека и
    рассрочка
    Проект Дом с террасой Просто 154
    Стоимость от:
    10 863 380
    Проект от: 67 050
    Этажей 1
    Санузлы 2
    Спальни 4
    Смотреть
    Ипотека и
    рассрочка
    Авторский проект «Руен»
    Стоимость от:
    11 111 760
    Проект от: 71 550
    Этажей 2
    Санузлы 2
    Спальни 5
    Смотреть
    Ипотека и
    рассрочка
    Дом из профилированного бруса
    Стоимость от:
    8 331 600
    Проект от: 51 750
    Этажей 2
    Санузлы 2
    Спальни 3
    Смотреть
    Ипотека и
    рассрочка
    Каркасный дом Финляндия 12
    Стоимость от:
    6 260 760
    Проект от: 48 600
    Этажей 1
    Санузлы 2
    Спальни 3
    Смотреть

    Как узнать стоимость дома

    back
    Оставляете заявку
    Вы заполняете форму на сайте или звоните нам. Менеджер Лайвкрафт связывается с вами для уточнения деталей: тип дома, площадь, материалы, участок строительства.
    back
    Консультация и подбор решения
    Наш специалист помогает выбрать оптимальный тип дома и конструкцию с учётом бюджета, сроков и целей — будь то дом для постоянного проживания или дача.
    back
    Расчёт предварительной стоимости
    Инженер делает первичный расчёт стоимости строительства по вашим параметрам: фундамент, коробка, кровля, отделка. Вы получаете смету с разбивкой по этапам.
    back
    Корректировка и утверждение сметы
    При необходимости вносим изменения — например, замену материалов или сокращение этапов. После согласования формируется окончательная фиксированная смета.
    back
    Заключение договора и старт работ
    После утверждения сметы заключаем официальный договор с гарантией. Вы получаете прозрачный график и точную стоимость — без скрытых расходов.

    Заказать конусльтацию по:Проект Дом с мансардным этажом «Асгард 4.0»

    Фото 1 Проект Дом с мансардным этажом «Асгард 4.0»


      Наши
      контакты

      Дмитров
      Опорный проезд 28Б
      (индустриальный парк Ниагара)
      9:00 до 18:00

      Корзина