4.9
Рейтинг на основании 120 отзывов
Дмитров
Опорный проезд 28Б
(индустриальный парк Ниагара)
Бренд "Дмитров-Дело" c 2008 года на рынке строительства в Дмитрове
Звоните 9:00 до 18:00 8 (915) 055-33-61
Бренд "Дмитров-Дело" c 2008 года на рынке строительства в Дмитрове

Проект «Дубна»

Стоимость проекта от:
84 600 ₽
БЕСПЛАТНО! ПРИ ЗАКАЗЕ СТРОИТЕЛЬСТВА
Стоимость строительства от:
13 129 920 ₽
Артикул ART-16036
Дата 25.12.2025
Архитектурный стиль Классический
Количество надземных этажей 2
Круглогодичное проживание Да
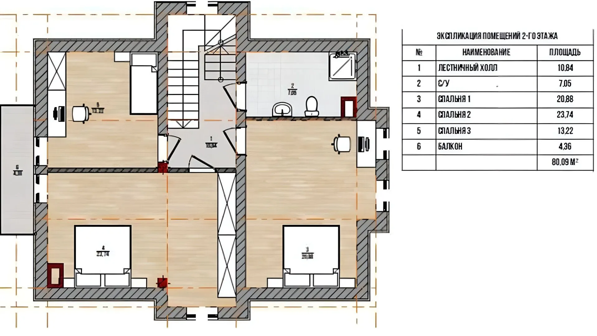
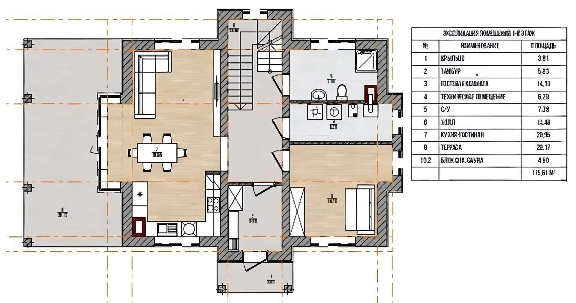
Площадь дома 188 м2
Санузлы 2
Спальни 3

Описание

Добро пожаловать в «Дубну» – истинный шедевр классической архитектуры, воплощающий в себе уют и элегантность, присущие самым изысканным европейским усадьбам. Два надземных этажа создают просторную, светлую планировку, где каждый уголок наполнен теплом и гармонией. В круглогодичном обитании дом дарит комфорт даже в суровые зима и жаркие лета, благодаря использованию качественных газобетонных блоков, отводящих тепло и защищающих от перепадов температур. Великолепный четырёхскатный (вальмовой) крыша, выполненный в строгом стиле, подчеркивает элегантность фасада и придает дому благородный «протяжённый» облик. На первом этаже располагается уютный балкон/лоджия, где можно насладиться рассветом, а на втором – просторная терраса, открывающая панорамный вид на зелёные окрестности. Дизайн дома сочетает в себе традиционные элементы и современные решения – всё, чтобы проживание было не только эстетически приятным, но и функциональным. «Дубна» – идеальное решение для тех, кто ценит качество, спокойствие и стиль. Без пристроенного гаража вы можете организовать удобную подземную парковку согласно вашим потребностям, а отсутствие чердака обеспечивает простоту управления внутренним пространством. Этот дом создан для того, чтобы в нём каждый день был наполнен мелочами радости: от ароматического кофе на балконе до семейных вечеров на тёплой террасе. Выбирая «Дубну», вы делаете ставку на неповторимую атмосферу, которая становится домом на долгие годы.

Характеристики дома

Архитектурный стиль
Автоматизированное регулирование параметров теплоносителя
Да
Балконы/лоджии
1
Чердачное помещение
Нет
Датчики протечки воды
Нет
Эксплуатируемая или зеленая кровля
Нет
Электроснабжение
Центральное
Газоснабжение
Центральное
Изоляция воздушного шума
Да
Камин
Нет
Класс энергоэффективности
-
Класс энергосбережения
-
Количество надземных этажей
2
Круглогодичное проживание
Да
Материал кровли
Металлочерепица
Материал перекрытий
Монолитные железобетонные
Материал внешних стен
Материал внутренних перегородок
Пенобетонные
Модульное строительство с конструкциями заводского изготовления
Нет
Объем надземной части
890 м3
Основной материал фасадов
Штукатурка
Отопление
Индивидуальное
Площадь дома
188 м2
Площадь застройки
107 м2
Подвальное помещение
Нет
Показатель компактности здания
-
Приборы учета тепловой энергии
Нет
Пристроенный гараж/крытая автостоянка
Нет
Противопожарная система
Нет
Санузлы
2
Совмещенная кухня-гостиная
Да
Спальни
3
Терраса
Да
Тип фундамента
Плитный
Толщина внешних стен
400 мм
Толщина внутренних перегородок
200 мм
Улучшенные шумовые характеристики
Да
Вентиляция
Естественная
Веранда
Нет
Водоотведение
Локальные очистные сооружения
Водоснабжение
Центральное
Высота дома
8.35 м
Высота потолков
3 м

Планировка

Фасад дома

Александр

Закажите выезд инженера

Александр

Выездной инженер
Закажите выезд инженера для точной диагностики и профессиональной консультации по инженерным системам. Специалист приедет в удобное время, проведёт осмотр, рассчитает стоимость работ и подберёт оптимальные решения для вашего дома.


    Похожие проекты

    Ипотека и
    рассрочка
    Каменный дом Rock
    Стоимость от:
    7 203 240
    Проект от: 45 900
    Этажей 1
    Санузлы 1
    Спальни 3
    Смотреть
    Ипотека и
    рассрочка
    Сканди СПБ 93 — Одноэтажный Сканди СПБ ВМ 93
    Стоимость от:
    5 839 240
    Проект от: 41 400
    Этажей 1
    Санузлы 2
    Спальни 2
    Смотреть
    Ипотека и
    рассрочка
    Райт графит 202 с навесом
    Стоимость от:
    13 047 980
    Проект от: 80 550
    Этажей 1
    Санузлы 2
    Спальни 3
    Смотреть
    Ипотека и
    рассрочка
    Мичиган
    Стоимость от:
    12 927 600
    Проект от: 83 250
    Этажей 2
    Санузлы 2
    Спальни 5
    Смотреть
    Ипотека и
    рассрочка
    Дом одноэтажный из профилированного бруса 145*145
    Стоимость от:
    4 569 840
    Проект от: 32 400
    Этажей 1
    Санузлы 1
    Спальни 3
    Смотреть
    Ипотека и
    рассрочка
    Дом с мансардным этажом ГББ-1
    Стоимость от:
    10 476 000
    Проект от: 67 500
    Этажей 2
    Санузлы 2
    Спальни 3
    Смотреть

    Как узнать стоимость дома

    back
    Оставляете заявку
    Вы заполняете форму на сайте или звоните нам. Менеджер Лайвкрафт связывается с вами для уточнения деталей: тип дома, площадь, материалы, участок строительства.
    back
    Консультация и подбор решения
    Наш специалист помогает выбрать оптимальный тип дома и конструкцию с учётом бюджета, сроков и целей — будь то дом для постоянного проживания или дача.
    back
    Расчёт предварительной стоимости
    Инженер делает первичный расчёт стоимости строительства по вашим параметрам: фундамент, коробка, кровля, отделка. Вы получаете смету с разбивкой по этапам.
    back
    Корректировка и утверждение сметы
    При необходимости вносим изменения — например, замену материалов или сокращение этапов. После согласования формируется окончательная фиксированная смета.
    back
    Заключение договора и старт работ
    После утверждения сметы заключаем официальный договор с гарантией. Вы получаете прозрачный график и точную стоимость — без скрытых расходов.

    Заказать конусльтацию по:Проект «Дубна»

    Фото 1 Проект «Дубна»


      Наши
      контакты

      Дмитров
      Опорный проезд 28Б
      (индустриальный парк Ниагара)
      9:00 до 18:00

      Корзина