4.9
Рейтинг на основании 120 отзывов
Дмитров
Опорный проезд 28Б
(индустриальный парк Ниагара)
Бренд "Дмитров-Дело" c 2008 года на рынке строительства в Дмитрове
Звоните 9:00 до 18:00 8 (915) 055-33-61
Бренд "Дмитров-Дело" c 2008 года на рынке строительства в Дмитрове

Проект «Родниковое»

Стоимость проекта от:
36 450 ₽
БЕСПЛАТНО! ПРИ ЗАКАЗЕ СТРОИТЕЛЬСТВА
Стоимость строительства от:
6 450 620 ₽
Артикул ART-12120
Дата 25.12.2025
Архитектурный стиль Европейский
Количество надземных этажей 1
Круглогодичное проживание Да
Площадь дома 81 м2
Санузлы 2
Спальни 3

Описание

**Родниковое** – это уютная семейная усадьба, где каждый уголок пропитан европейским шармом и гармонией. Одноэтажный дом с двускатной крышей выполнен из газобетонных блоков, благодаря которым он остаётся тепло- и шумо­изолированным в любое время года. Великолепная планировка и светлые интерьеры создают атмосферу, где ощущается настоящий комфорт и спокойствие. Европейский стиль в данном проекте проявляется в элегантных фасадных решениях, чистых линиях и гармоничном сочетании материалов. Никаких балконов или веранды, зато просторная терраса приглашает к отдыха­нию на свежем воздухе – будь то летние барбекю, праздничные ужины или уютные вечеринки с друзьями. Удобная открытая планировка и большие панорамные окна наполняют дом естественным светом, делая каждую комнату светлой и яркой. Дом «Родниковое» идеально подходит для круглогодичного проживания: утеплённые стены, качественный стеклянный профиль и надежная крыша обеспечивают защиту от холода и влаги. Пристроенный гараж отсутствует, однако предусмотрено место под машину, а открытая площадка рядом с домом создаёт дополнительное удобство. Этот дом – воплощение спокойствия, стиля и функциональности, которое станет настоящим оазисом для вашей семьи.

Характеристики дома

Архитектурный стиль
Автоматизированное регулирование параметров теплоносителя
Нет
Балконы/лоджии
Отсутствуют
Чердачное помещение
Нет
Датчики протечки воды
Нет
Эксплуатируемая или зеленая кровля
Нет
Электроснабжение
Центральное
Газоснабжение
Центральное
Изоляция воздушного шума
Нет
Камин
Нет
Класс энергоэффективности
-
Класс энергосбережения
-
Количество надземных этажей
1
Круглогодичное проживание
Да
Материал кровли
Металлочерепица
Материал перекрытий
Деревянные
Материал внешних стен
Материал внутренних перегородок
Блочные
Модульное строительство с конструкциями заводского изготовления
Нет
Объем надземной части
244 м3
Основной материал фасадов
Штукатурка
Отопление
Индивидуальное
Площадь дома
81 м2
Площадь застройки
102 м2
Подвальное помещение
Нет
Показатель компактности здания
-
Приборы учета тепловой энергии
Нет
Пристроенный гараж/крытая автостоянка
Нет
Противопожарная система
Нет
Санузлы
2
Совмещенная кухня-гостиная
Да
Спальни
3
Терраса
Да
Тип фундамента
Ленточный
Тип кровли
Толщина внешних стен
200 мм
Толщина внутренних перегородок
200 мм
Улучшенные шумовые характеристики
Нет
Вентиляция
Естественная
Веранда
Нет
Водоотведение
Локальные очистные сооружения
Водоснабжение
Индивидуальное
Высота дома
5.25 м
Высота потолков
3 м

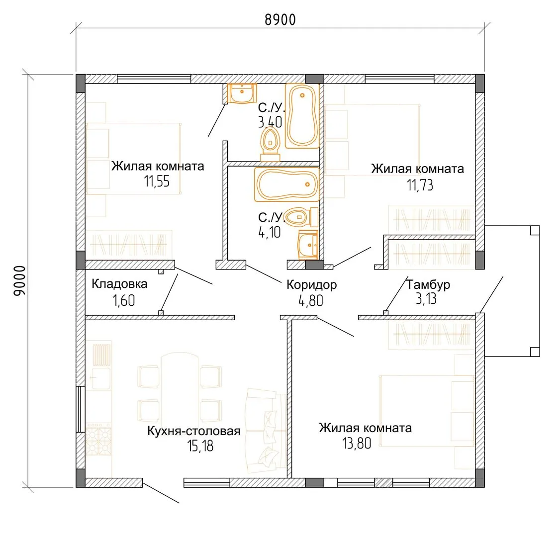
Планировка

Фасад дома

Александр

Закажите выезд инженера

Александр

Выездной инженер
Закажите выезд инженера для точной диагностики и профессиональной консультации по инженерным системам. Специалист приедет в удобное время, проведёт осмотр, рассчитает стоимость работ и подберёт оптимальные решения для вашего дома.


    Похожие проекты

    Ипотека и
    рассрочка
    КАСТОР-3 С ГАРАЖОМ
    Стоимость от:
    9 843 900
    Проект от: 60 750
    Этажей 1
    Санузлы 2
    Спальни 3
    Смотреть
    Ипотека и
    рассрочка
    EH-60
    Стоимость от:
    4 782 800
    Проект от: 27 000
    Этажей 1
    Санузлы 1
    Спальни 2
    Смотреть
    Ипотека и
    рассрочка
    СЕРИЯ «БАРНХАУС» ПРОЕКТ КД-19
    Стоимость от:
    7 334 880
    Проект от: 52 650
    Этажей 2
    Санузлы 2
    Спальни 4
    Смотреть
    Ипотека и
    рассрочка
    FK-98 в Колосовке
    Стоимость от:
    5 887 365
    Проект от: 41 850
    Этажей 1
    Санузлы 1
    Спальни 3
    Смотреть
    Ипотека и
    рассрочка
    Ульяновка — 98
    Стоимость от:
    6 689 980
    Проект от: 40 050
    Этажей 1
    Санузлы 2
    Спальни 3
    Смотреть
    Ипотека и
    рассрочка
    Двухэтажный дом СМ-18
    Стоимость от:
    7 719 120
    Проект от: 46 350
    Этажей 2
    Санузлы 2
    Спальни 4
    Смотреть

    Как узнать стоимость дома

    back
    Оставляете заявку
    Вы заполняете форму на сайте или звоните нам. Менеджер Лайвкрафт связывается с вами для уточнения деталей: тип дома, площадь, материалы, участок строительства.
    back
    Консультация и подбор решения
    Наш специалист помогает выбрать оптимальный тип дома и конструкцию с учётом бюджета, сроков и целей — будь то дом для постоянного проживания или дача.
    back
    Расчёт предварительной стоимости
    Инженер делает первичный расчёт стоимости строительства по вашим параметрам: фундамент, коробка, кровля, отделка. Вы получаете смету с разбивкой по этапам.
    back
    Корректировка и утверждение сметы
    При необходимости вносим изменения — например, замену материалов или сокращение этапов. После согласования формируется окончательная фиксированная смета.
    back
    Заключение договора и старт работ
    После утверждения сметы заключаем официальный договор с гарантией. Вы получаете прозрачный график и точную стоимость — без скрытых расходов.

    Заказать конусльтацию по:Проект «Родниковое»

    Фото 1 Проект «Родниковое»


      Наши
      контакты

      Дмитров
      Опорный проезд 28Б
      (индустриальный парк Ниагара)
      9:00 до 18:00

      Корзина