4.9
Рейтинг на основании 120 отзывов
Дмитров
Опорный проезд 28Б
(индустриальный парк Ниагара)
Бренд "Дмитров-Дело" c 2008 года на рынке строительства в Дмитрове
Звоните 9:00 до 18:00 8 (915) 055-33-61
Бренд "Дмитров-Дело" c 2008 года на рынке строительства в Дмитрове

Проект «Вестерн Барн»

Стоимость проекта от:
54 000 ₽
Стоимость строительства от:
7 048 800 ₽
Артикул ART-16152
Дата 25.12.2025
Архитектурный стиль Барнхаус
Количество надземных этажей 2
Круглогодичное проживание Да
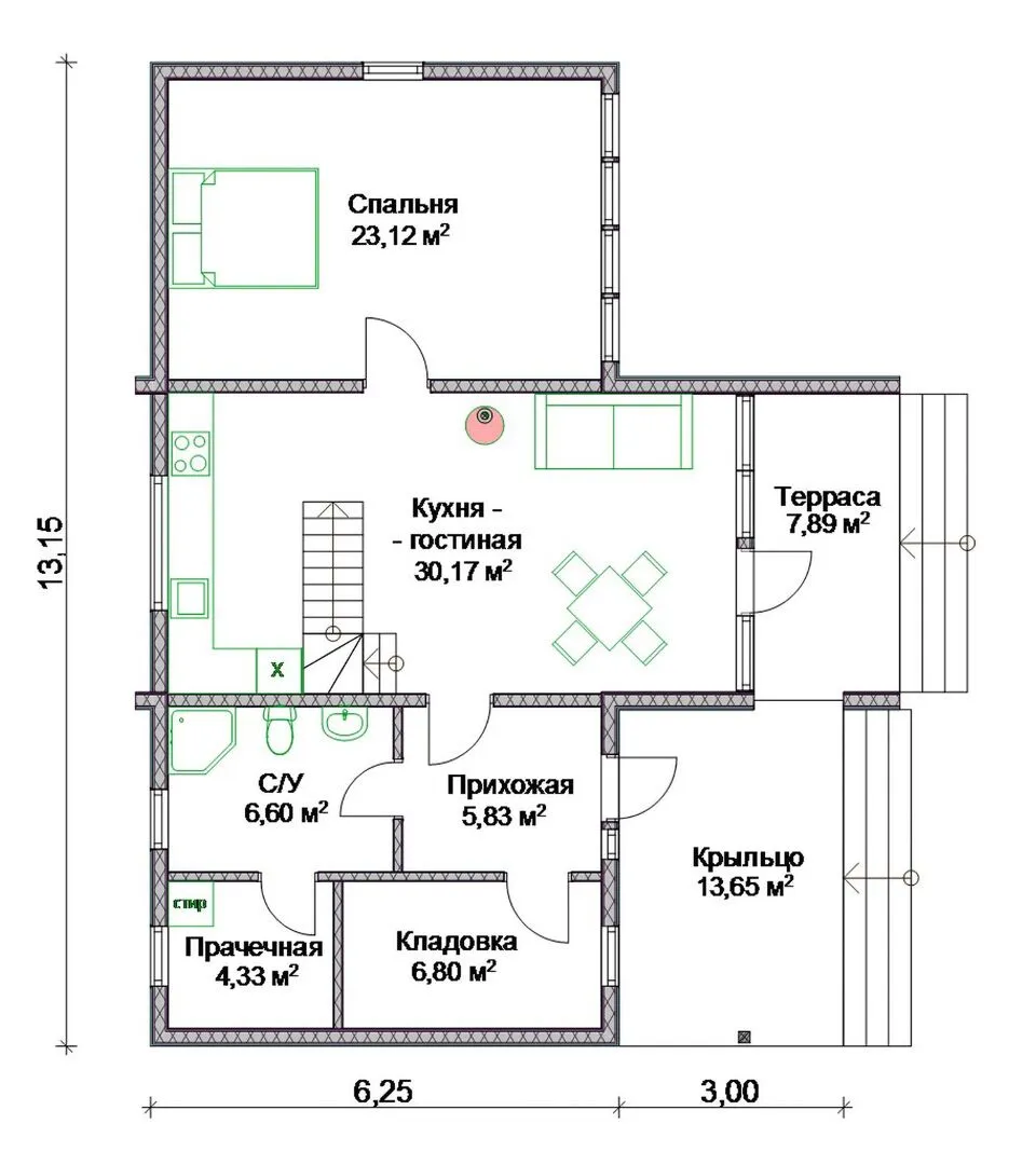
Площадь дома 120 м2
Санузлы 1
Спальни 2

Описание

Встречайте «Вестерн Барн» – дом, в котором сливаются уют сельской идиллии и современный комфорт. Его два надземных этажа раскинутся над живописной площадкой, а двухскатная крыша и деревянные каркасы создадут атмосферу истинного баунти, где каждый элемент напоминает о простоте и тепле загородной жизни. Пригодное к круглогодичному проживанию, пространство выдержано в барнхаус‑стиле: открытые полки, массивные деревянные балки и элегантные детали позволяют чувствовать себя свободно и одновременно защищённо. Великолепный балкон с панорамным видом открывает окно в мир природы, а просторная терраса приглашает к вечерним беседам и романтическим ужинам под звёздным небом. Внутри гармоничное сочетание натуральных материалов и умелого освещения подчёркивает очарование отдалённой охраны, оставив при этом все удобства современного образа жизни. Звонкая кухня, большие окна, продуманная планировка – всё это создаст ощущение непринужденного семейного отдыха, где каждый день начинается с дыхания свежего воздуха и завершается приятной домашней атмосферой. Если вы ищете место, где природа встречается с уютом, а стиль – с устойчивой практичностью, «Вестерн Барн» будет лучшим выбором. Этот дом – ваш личный уголок спокойствия, где каждая деталь продумана, чтобы дарить радость и вдохновение в течение всего года.

Характеристики дома

Архитектурный стиль
Барнхаус
Автоматизированное регулирование параметров теплоносителя
Да
Балконы/лоджии
1
Чердачное помещение
Нет
Датчики протечки воды
Нет
Эксплуатируемая или зеленая кровля
Нет
Электроснабжение
Не предусмотрено
Газоснабжение
Не предусмотрено
Изоляция воздушного шума
Да
Камин
Нет
Класс энергоэффективности
-
Класс энергосбережения
-
Количество надземных этажей
2
Круглогодичное проживание
Да
Материал кровли
Металлические листовые гофрированные профили
Материал перекрытий
Деревянные
Материал внешних стен
Деревянные каркасные
Материал внутренних перегородок
Деревянные
Модульное строительство с конструкциями заводского изготовления
Нет
Объем надземной части
530 м3
Основной материал фасадов
Фальцевая кровля кликфальц
Отопление
Индивидуальное
Площадь дома
120 м2
Площадь застройки
114 м2
Подвальное помещение
Нет
Показатель компактности здания
-
Приборы учета тепловой энергии
Нет
Пристроенный гараж/крытая автостоянка
Нет
Противопожарная система
Нет
Санузлы
1
Совмещенная кухня-гостиная
Да
Спальни
2
Терраса
Да
Тип фундамента
Свайный
Тип кровли
Двускатная
Толщина внешних стен
250 мм
Толщина внутренних перегородок
140 мм
Улучшенные шумовые характеристики
Да
Вентиляция
Естественная
Веранда
Нет
Водоотведение
Локальные очистные сооружения
Водоснабжение
Не предусмотрено
Высота дома
7 м
Высота потолков
2.9 м

Планировка

Фасад дома

Александр

Закажите выезд инженера

Александр

Выездной инженер
Закажите выезд инженера для точной диагностики и профессиональной консультации по инженерным системам. Специалист приедет в удобное время, проведёт осмотр, рассчитает стоимость работ и подберёт оптимальные решения для вашего дома.


    Похожие проекты

    Ипотека и
    рассрочка
    Каменный дом по проекту Неаполь 101
    Стоимость от:
    8 333 160
    Проект от: 53 100
    Этажей 1
    Санузлы 2
    Спальни 3
    Смотреть
    Ипотека и
    рассрочка
    706А «Истра» -двухэтажный дом в стиле Райта, 4 спальни, терраса
    Стоимость от:
    12 710 880
    Проект от: 81 900
    Этажей 2
    Санузлы 3
    Спальни 4
    Смотреть
    Ипотека и
    рассрочка
    NorFin 140
    Стоимость от:
    9 715 640
    Проект от: 63 900
    Этажей 1
    Санузлы 2
    Спальни 3
    Смотреть
    Ипотека и
    рассрочка
    Двухэтажный проект дома «Райт»
    Стоимость от:
    11 717 280
    Проект от: 72 900
    Этажей 2
    Санузлы 3
    Спальни 3
    Смотреть
    Ипотека и
    рассрочка
    SKANDIK-33
    Стоимость от:
    1 855 040
    Проект от: 14 400
    Этажей 1
    Санузлы 1
    Спальни 1
    Смотреть
    Ипотека и
    рассрочка
    Ключи 2
    Стоимость от:
    5 896 110
    Проект от: 45 900
    Этажей 1
    Санузлы 1
    Спальни 3
    Смотреть

    Как узнать стоимость дома

    back
    Оставляете заявку
    Вы заполняете форму на сайте или звоните нам. Менеджер Лайвкрафт связывается с вами для уточнения деталей: тип дома, площадь, материалы, участок строительства.
    back
    Консультация и подбор решения
    Наш специалист помогает выбрать оптимальный тип дома и конструкцию с учётом бюджета, сроков и целей — будь то дом для постоянного проживания или дача.
    back
    Расчёт предварительной стоимости
    Инженер делает первичный расчёт стоимости строительства по вашим параметрам: фундамент, коробка, кровля, отделка. Вы получаете смету с разбивкой по этапам.
    back
    Корректировка и утверждение сметы
    При необходимости вносим изменения — например, замену материалов или сокращение этапов. После согласования формируется окончательная фиксированная смета.
    back
    Заключение договора и старт работ
    После утверждения сметы заключаем официальный договор с гарантией. Вы получаете прозрачный график и точную стоимость — без скрытых расходов.

    Заказать конусльтацию по:Проект «Вестерн Барн»

    Фото 1 Проект «Вестерн Барн»


      Наши
      контакты

      Дмитров
      Опорный проезд 28Б
      (индустриальный парк Ниагара)
      9:00 до 18:00