4.9
Рейтинг на основании 120 отзывов
Дмитров
Опорный проезд 28Б
(индустриальный парк Ниагара)
Бренд "Дмитров-Дело" c 2008 года на рынке строительства в Дмитрове
Звоните 9:00 до 18:00 8 (915) 055-33-61
Бренд "Дмитров-Дело" c 2008 года на рынке строительства в Дмитрове

Проект загородного дома с террасой и гаражом на 2 машины S-292

Стоимость проекта от:
133 200 ₽
БЕСПЛАТНО! ПРИ ЗАКАЗЕ СТРОИТЕЛЬСТВА
Стоимость строительства от:
20 672 640 ₽
Артикул ART-3077
Дата 26.12.2025
Архитектурный стиль Европейский
Количество надземных этажей 2
Круглогодичное проживание Да
Площадь дома 296 м2
Санузлы 3
Спальни 3

Описание

**Откройте для себя идеальное сочетание уюта и стиля – ваш новый загородный дом мечты** Вдохновленный европейскими традициями, проект домом с двумя надземными этажами предлагает комфорт круглогодичного проживания. Просторные, светлые комнаты с открытыми планировками создают ощущение легкости и воздушности, а большие окна пропускают свет от рассвета до заката, превращая каждый уголок в живописный вид. Веранда и один уютный балкон/лоджия – идеальные места для вечеров с друзьями или тихих часов чтения, а прилегающий к дому прибрежный участок открывает перспективу для приятных летних барбекю и семейных прогулок. **Функциональность и практичность:** - Пристроенный однокрытый гараж на две машины, который сохраняет ваши автомобили защищёнными от непогоды и не тратит ваше время на поиски парковки. - Стены из пеноблока обеспечивают отличную тепло- и звукоизоляцию, а вальмовая четырехскатная крыша добавляет в дом характерный, а также надёжный, элемент. - Отсутствие чердачного помещения делает проект простым и удобным в обслуживании, а наличие веранд и балконов добавляет дополнительное пространство для отдыха. **Здесь каждый момент – это радость и забота о ваших близких.** Приглашаем вас познакомиться поближе с проектом дома S‑292: архитектурный шедевр, воплощающий в себе современные технологии и традиционный европейский вкус. Не упустите шанс стать владельцем дома, где уют встречается с функциональностью, а каждая деталь продумана до мелочей. 📞 Свяжитесь с нами уже сегодня – открытие нового уровня жизни начинается здесь.

Характеристики дома

Архитектурный стиль
Автоматизированное регулирование параметров теплоносителя
Да
Балконы/лоджии
1
Чердачное помещение
Нет
Датчики протечки воды
Да
Эксплуатируемая или зеленая кровля
Нет
Электроснабжение
Центральное
Газоснабжение
Центральное
Изоляция воздушного шума
Да
Камин
Да
Класс энергоэффективности
-
Класс энергосбережения
-
Количество надземных этажей
2
Круглогодичное проживание
Да
Материал кровли
Металлочерепица
Материал перекрытий
Монолитные железобетонные
Материал внешних стен
Материал внутренних перегородок
Блочные
Модульное строительство с конструкциями заводского изготовления
Нет
Объем надземной части
-
Основной материал фасадов
Штукатурка
Отопление
Центральное
Площадь дома
296 м2
Площадь застройки
355 м2
Подвальное помещение
Нет
Показатель компактности здания
-
Приборы учета тепловой энергии
Да
Пристроенный гараж/крытая автостоянка
Да
Противопожарная система
Нет
Санузлы
3
Совмещенная кухня-гостиная
Да
Спальни
3
Терраса
Нет
Тип фундамента
Плитный
Толщина внешних стен
400 мм
Толщина внутренних перегородок
100 мм
Улучшенные шумовые характеристики
Да
Вентиляция
Естественная
Веранда
Да
Водоотведение
Локальные очистные сооружения
Водоснабжение
Центральное
Высота дома
9.08 м
Высота потолков
3 м

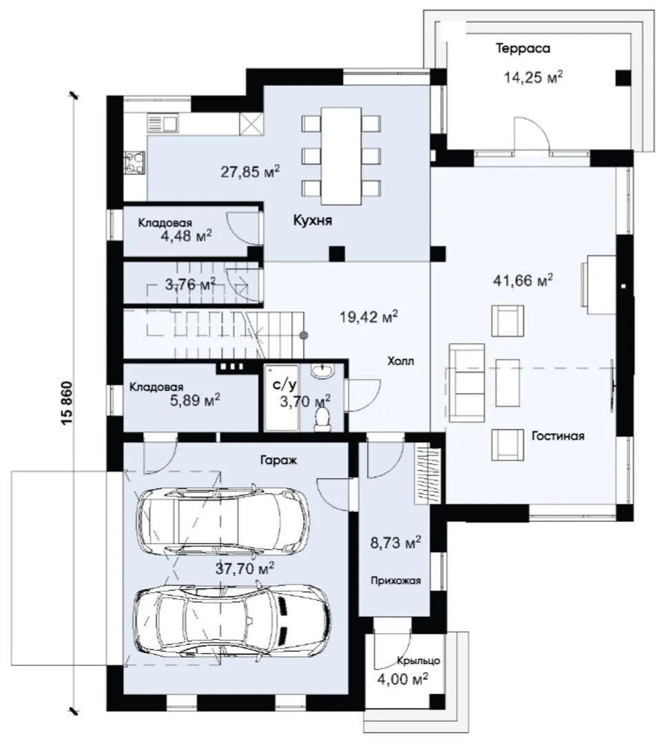
Планировка

Фасад дома

Александр

Закажите выезд инженера

Александр

Выездной инженер
Закажите выезд инженера для точной диагностики и профессиональной консультации по инженерным системам. Специалист приедет в удобное время, проведёт осмотр, рассчитает стоимость работ и подберёт оптимальные решения для вашего дома.


    Похожие проекты

    Ипотека и
    рассрочка
    Двухэтажный дом с четырьмя спальнями S-204
    Стоимость от:
    17 956 080
    Проект от: 115 650
    Этажей 2
    Санузлы 2
    Спальни 4
    Смотреть
    Ипотека и
    рассрочка
    Райт 128
    Стоимость от:
    9 090 620
    Проект от: 54 450
    Этажей 1
    Санузлы 2
    Спальни 3
    Смотреть
    Ипотека и
    рассрочка
    Классик
    Стоимость от:
    3 680 820
    Проект от: 29 700
    Этажей 1
    Санузлы 1
    Спальни 2
    Смотреть
    Ипотека и
    рассрочка
    Проект загородного дома NHD-110
    Стоимость от:
    7 753 680
    Проект от: 48 150
    Этажей 2
    Санузлы 2
    Спальни 3
    Смотреть
    Ипотека и
    рассрочка
    Barnhouse 8х16 H
    Стоимость от:
    5 949 735
    Проект от: 48 150
    Этажей 1
    Санузлы 2
    Спальни 3
    Смотреть
    Ипотека и
    рассрочка
    Дом 78
    Стоимость от:
    5 508 360
    Проект от: 35 100
    Этажей 1
    Санузлы 1
    Спальни 2
    Смотреть

    Как узнать стоимость дома

    back
    Оставляете заявку
    Вы заполняете форму на сайте или звоните нам. Менеджер Лайвкрафт связывается с вами для уточнения деталей: тип дома, площадь, материалы, участок строительства.
    back
    Консультация и подбор решения
    Наш специалист помогает выбрать оптимальный тип дома и конструкцию с учётом бюджета, сроков и целей — будь то дом для постоянного проживания или дача.
    back
    Расчёт предварительной стоимости
    Инженер делает первичный расчёт стоимости строительства по вашим параметрам: фундамент, коробка, кровля, отделка. Вы получаете смету с разбивкой по этапам.
    back
    Корректировка и утверждение сметы
    При необходимости вносим изменения — например, замену материалов или сокращение этапов. После согласования формируется окончательная фиксированная смета.
    back
    Заключение договора и старт работ
    После утверждения сметы заключаем официальный договор с гарантией. Вы получаете прозрачный график и точную стоимость — без скрытых расходов.

    Заказать конусльтацию по:Проект загородного дома с террасой и гаражом на 2 машины S-292

    Фото 1 Проект загородного дома с террасой и гаражом на 2 машины S-292


      Наши
      контакты

      Дмитров
      Опорный проезд 28Б
      (индустриальный парк Ниагара)
      9:00 до 18:00

      Корзина