4.9
Рейтинг на основании 120 отзывов
Дмитров
Опорный проезд 28Б
(индустриальный парк Ниагара)
Бренд "Дмитров-Дело" c 2008 года на рынке строительства в Дмитрове
Звоните 9:00 до 18:00 8 (915) 055-33-61
Бренд "Дмитров-Дело" c 2008 года на рынке строительства в Дмитрове

Райли

Стоимость проекта от:
39 150 ₽
БЕСПЛАТНО! ПРИ ЗАКАЗЕ СТРОИТЕЛЬСТВА
Стоимость строительства от:
5 952 540 ₽
Артикул ART-18593
Дата 26.12.2025
Архитектурный стиль Классический
Количество надземных этажей 1
Круглогодичное проживание Да
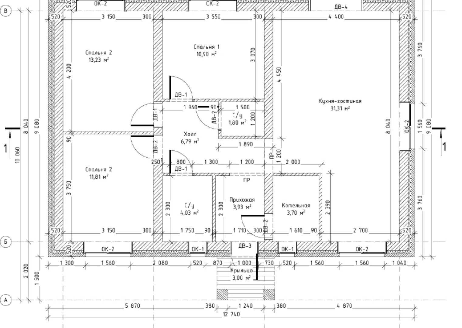
Площадь дома 87 м2
Санузлы 2
Спальни 3

Описание

Сияние классики встречается с уютом современного быта в этом уютном одноквартельном доме. Его элегантный фасад, выполненный из керамзитобетонных блоков, излучает тепло и прочность, легко выдерживая любые климатические испытания. Плавная архитектура с четырёхскатной, вальмовой крышей подчёркивает строгую геометрию и классическую эстетику, а просторный чердак открывает неожиданные возможности для хранения или творческого переоборудования. Годовое проживание в этом доме превращается в настоящий комфорт: просторные внутренние помещения, ровные полы и высокие потолки создают ощущение открытого пространства, а большие окна впускают мягкий дневной свет. Здесь нет балконов или веранд, зато есть уютный внутренний двор, который можно превратить в тихий уголок отдыха или детскую игровую площадку. Пространство чердака, легко доступное с лестницы, идеально подходит для организации личного офиса, хранилища сезонной техники или просто для сохранения семейных сокровищ. Этот дом — идеальное решение для тех, кто ценит стабильность и изысканность в каждой детали. Его классический стиль, энергоэффективные материалы и продуманная планировка делают его идеальным приютом как для семей с детьми, так и для тех, кто ищет спокойствие и уют в центре жизни. В нём каждый день будет напоминать о гармонии между простотой и элегантностью, создавая вдохновляющий образ жизни на каждый сезон.

Характеристики дома

Архитектурный стиль
Автоматизированное регулирование параметров теплоносителя
Нет
Балконы/лоджии
Отсутствуют
Чердачное помещение
Да
Датчики протечки воды
Нет
Эксплуатируемая или зеленая кровля
Нет
Электроснабжение
Индивидуальное
Газоснабжение
Центральное
Изоляция воздушного шума
Нет
Камин
Нет
Класс энергоэффективности
-
Класс энергосбережения
-
Количество надземных этажей
1
Круглогодичное проживание
Да
Материал кровли
Битумная черепица
Материал перекрытий
Деревянные
Материал внешних стен
Материал внутренних перегородок
Блочные
Модульное строительство с конструкциями заводского изготовления
Нет
Объем надземной части
-
Основной материал фасадов
Облицовочный кирпич
Отопление
Индивидуальное
Площадь дома
87 м2
Площадь застройки
118 м2
Подвальное помещение
Нет
Показатель компактности здания
-
Приборы учета тепловой энергии
Нет
Пристроенный гараж/крытая автостоянка
Нет
Противопожарная система
Нет
Санузлы
2
Совмещенная кухня-гостиная
Да
Спальни
3
Терраса
Нет
Тип фундамента
Плитный
Толщина внешних стен
300 мм
Толщина внутренних перегородок
100 мм
Улучшенные шумовые характеристики
Нет
Вентиляция
Естественная
Веранда
Нет
Водоотведение
Локальные очистные сооружения
Водоснабжение
Индивидуальное
Высота дома
4.9 м
Высота потолков
2.8 м

Планировка

Фасад дома

Александр

Закажите выезд инженера

Александр

Выездной инженер
Закажите выезд инженера для точной диагностики и профессиональной консультации по инженерным системам. Специалист приедет в удобное время, проведёт осмотр, рассчитает стоимость работ и подберёт оптимальные решения для вашего дома.


    Похожие проекты

    Ипотека и
    рассрочка
    «OKSODOMIK-93 в 1 этаж»
    Стоимость от:
    6 363 060
    Проект от: 41 850
    Этажей 1
    Санузлы 1
    Спальни 3
    Смотреть
    Ипотека и
    рассрочка
    Проект дома из сип-панелей «Алькор»
    Стоимость от:
    6 399 480
    Проект от: 43 650
    Этажей 2
    Санузлы 2
    Спальни 2
    Смотреть
    Ипотека и
    рассрочка
    Одноэтажный дом 190м2
    Стоимость от:
    12 999 800
    Проект от: 85 500
    Этажей 1
    Санузлы 2
    Спальни 3
    Смотреть
    Ипотека и
    рассрочка
    Суксун-159
    Стоимость от:
    9 684 240
    Проект от: 63 450
    Этажей 2
    Санузлы 2
    Спальни 4
    Смотреть
    Ипотека и
    рассрочка
    Проект двухэтажного дома «Алексей Дмитриевич»
    Стоимость от:
    13 763 280
    Проект от: 84 150
    Этажей 2
    Санузлы 3
    Спальни 4
    Смотреть
    Ипотека и
    рассрочка
    HOUSE204
    Стоимость от:
    12 757 470
    Проект от: 90 450
    Этажей 1
    Санузлы 2
    Спальни 3
    Смотреть

    Как узнать стоимость дома

    back
    Оставляете заявку
    Вы заполняете форму на сайте или звоните нам. Менеджер Лайвкрафт связывается с вами для уточнения деталей: тип дома, площадь, материалы, участок строительства.
    back
    Консультация и подбор решения
    Наш специалист помогает выбрать оптимальный тип дома и конструкцию с учётом бюджета, сроков и целей — будь то дом для постоянного проживания или дача.
    back
    Расчёт предварительной стоимости
    Инженер делает первичный расчёт стоимости строительства по вашим параметрам: фундамент, коробка, кровля, отделка. Вы получаете смету с разбивкой по этапам.
    back
    Корректировка и утверждение сметы
    При необходимости вносим изменения — например, замену материалов или сокращение этапов. После согласования формируется окончательная фиксированная смета.
    back
    Заключение договора и старт работ
    После утверждения сметы заключаем официальный договор с гарантией. Вы получаете прозрачный график и точную стоимость — без скрытых расходов.

    Заказать конусльтацию по:Райли

    Фото 1 Райли


      Наши
      контакты

      Дмитров
      Опорный проезд 28Б
      (индустриальный парк Ниагара)
      9:00 до 18:00

      Корзина