Райт 179 с печь-барбекю
Описание
Характеристики дома
Архитектурный стиль
Автоматизированное регулирование параметров теплоносителя
-
Балконы/лоджии
2
Чердачное помещение
Нет
Датчики протечки воды
-
Эксплуатируемая или зеленая кровля
-
Электроснабжение
Центральное
Газоснабжение
Не предусмотрено
Изоляция воздушного шума
-
Камин
Да
Класс энергоэффективности
-
Класс энергосбережения
-
Количество надземных этажей
1
Круглогодичное проживание
Да
Материал кровли
Битумная черепица
Материал перекрытий
Деревянные
Материал внешних стен
Материал внутренних перегородок
Кирпичные
Модульное строительство с конструкциями заводского изготовления
Нет
Объем надземной части
-
Основной материал фасадов
Облицовочный кирпич
Отопление
Индивидуальное
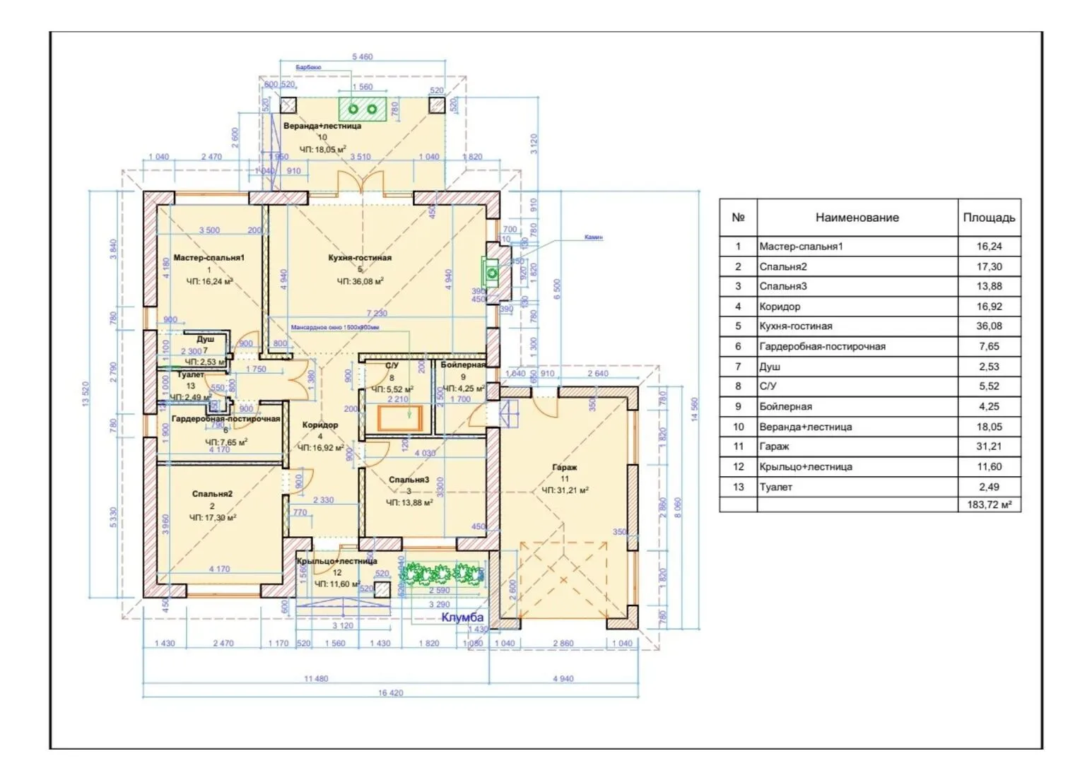
Площадь дома
179 м2
Площадь застройки
179 м2
Подвальное помещение
Нет
Показатель компактности здания
-
Приборы учета тепловой энергии
-
Пристроенный гараж/крытая автостоянка
Да
Противопожарная система
Нет
Санузлы
3
Совмещенная кухня-гостиная
Да
Спальни
3
Терраса
Да
Тип фундамента
Ленточный
Тип кровли
Толщина внешних стен
450 мм
Толщина внутренних перегородок
200 мм
Улучшенные шумовые характеристики
-
Вентиляция
Естественная
Веранда
Да
Водоотведение
Локальные очистные сооружения
Водоснабжение
Индивидуальное
Высота дома
7 м
Высота потолков
3 м
Категории проекта
Строительство домовСтроительство домов без верандыСтроительство домов без чердакаСтроительство домов в Американском/Канадском стилеСтроительство домов для круглогодичного проживанияСтроительство домов из газобетонных блоковСтроительство домов с балконом или лоджиейСтроительство домов с гаражомСтроительство домов с комбинированной кровлейСтроительство домов с террасойСтроительство одноэтажных домов
Закажите выезд инженера
Александр
Выездной инженер
Закажите выезд инженера для точной диагностики и профессиональной консультации по инженерным
системам. Специалист приедет в удобное время, проведёт осмотр, рассчитает стоимость работ и подберёт
оптимальные решения для вашего дома.
Как узнать стоимость дома
Заказать конусльтацию по:Райт 179 с печь-барбекю
Наши
контакты
Дмитров
Опорный проезд 28Б
(индустриальный парк Ниагара)
Опорный проезд 28Б
(индустриальный парк Ниагара)
9:00 до 18:00