4.9
Рейтинг на основании 120 отзывов
Дмитров
Опорный проезд 28Б
(индустриальный парк Ниагара)
Бренд "Дмитров-Дело" c 2008 года на рынке строительства в Дмитрове
Звоните 9:00 до 18:00 8 (915) 055-33-61
Бренд "Дмитров-Дело" c 2008 года на рынке строительства в Дмитрове

Резиденция у озера

Стоимость проекта от:
100 800 ₽
Стоимость строительства от:
15 644 160 ₽
Артикул ART-1641
Дата 26.12.2025
Архитектурный стиль Европейский
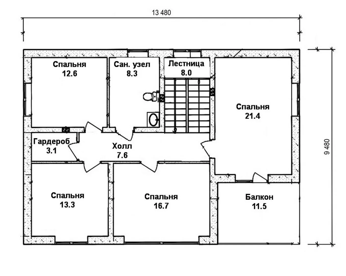
Количество надземных этажей 2
Круглогодичное проживание Да
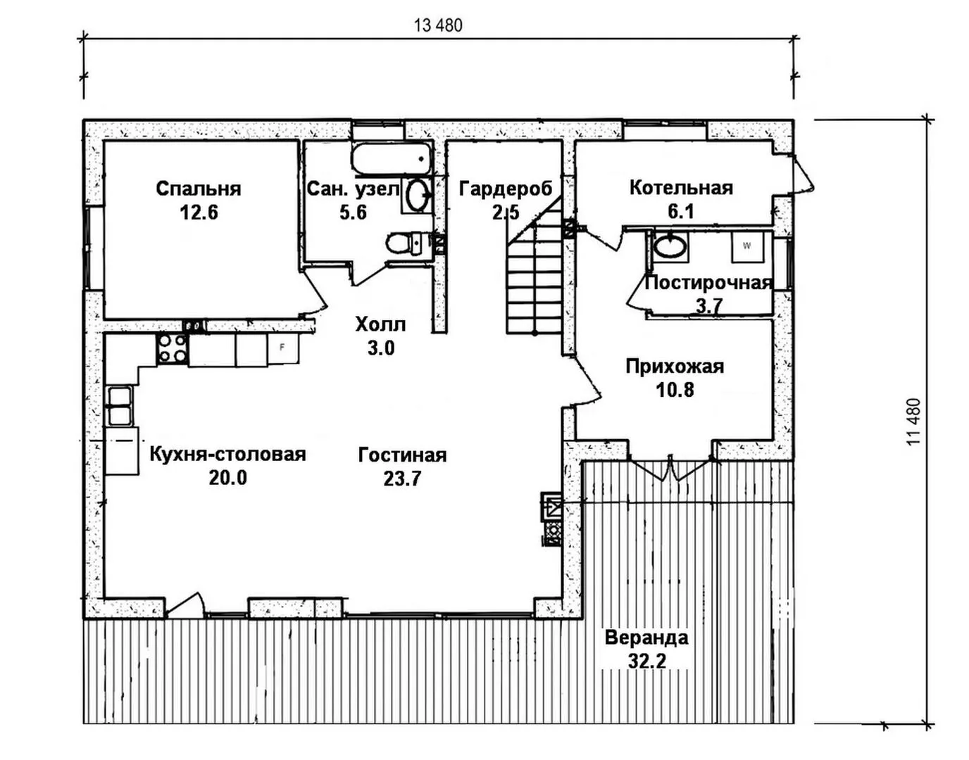
Площадь дома 224 м2
Санузлы 2
Спальни 5

Описание

Проживание у озера в нашей новой резиденции — это возможность обрести свой собственный уголок гармонии и уюта, где каждый день начинается с бодрящего взгляда на тёплую, зеркальную поверхность воды. Погрузившись в атмосферу европейской элегантности, вы почувствуете, как простота и красота классического дизайна проникают в каждую из двух надземных летних площадей. Небольшое пространство балкона и отдельная веранда приглашают проводить вечера на свежем воздухе, наслаждаясь лёгким ветерком и звуками природы, оставаясь в тёплом и уютном доме. Резиденция спроектирована с мыслью о круглогодичном комфортном проживании: утеплённые газобетонные стены и четыре скатных крыша создают надежную защиту от холода и дождя, а наличие чердачного помещения открывает дополнительные возможности для хранения или даже будущего творчества. Несмотря на отсутствие пригоста для автомобиля, просторный участок вокруг дома компенсирует это удобством, создавая ощущение свободы и приватности. Здесь каждый элемент обдуман до мелочей, чтобы вы могли полностью отдеться от повседневной суеты и наслаждаться тишиной, которую дарит живописный ландшафт озера.

Характеристики дома

Архитектурный стиль
Европейский
Автоматизированное регулирование параметров теплоносителя
Да
Балконы/лоджии
1
Чердачное помещение
Да
Датчики протечки воды
Нет
Эксплуатируемая или зеленая кровля
Нет
Электроснабжение
Центральное
Газоснабжение
Центральное
Изоляция воздушного шума
Нет
Камин
Да
Класс энергоэффективности
-
Класс энергосбережения
C
Количество надземных этажей
2
Круглогодичное проживание
Да
Материал кровли
Металлочерепица
Материал перекрытий
Монолитные железобетонные
Материал внешних стен
Газобетонные блоки
Материал внутренних перегородок
Блочные
Модульное строительство с конструкциями заводского изготовления
Нет
Объем надземной части
784 м3
Основной материал фасадов
Штукатурка
Отопление
Индивидуальное
Площадь дома
224 м2
Площадь застройки
156 м2
Подвальное помещение
Нет
Показатель компактности здания
-
Приборы учета тепловой энергии
Нет
Пристроенный гараж/крытая автостоянка
Нет
Противопожарная система
Нет
Санузлы
2
Совмещенная кухня-гостиная
Да
Спальни
5
Терраса
Нет
Тип фундамента
Плитный
Тип кровли
Четырехскатная (вальмовая)
Толщина внешних стен
390 мм
Толщина внутренних перегородок
100 мм
Улучшенные шумовые характеристики
Да
Вентиляция
Рекуперация
Веранда
Да
Водоотведение
Локальные очистные сооружения
Водоснабжение
Центральное
Высота дома
10 м
Высота потолков
3 м

Планировка

Фасад дома

Александр

Закажите выезд инженера

Александр

Выездной инженер
Закажите выезд инженера для точной диагностики и профессиональной консультации по инженерным системам. Специалист приедет в удобное время, проведёт осмотр, рассчитает стоимость работ и подберёт оптимальные решения для вашего дома.


    Похожие проекты

    Ипотека и
    рассрочка
    Миллениум
    Стоимость от:
    7 417 410
    Проект от: 59 850
    Этажей 1
    Санузлы 1
    Спальни 3
    Смотреть
    Ипотека и
    рассрочка
    ALM-104
    Стоимость от:
    7 880 180
    Проект от: 44 550
    Этажей 1
    Санузлы 3
    Спальни 3
    Смотреть
    Ипотека и
    рассрочка
    Загородный дом из клееного бруса «Эллада»
    Стоимость от:
    5 225 880
    Проект от: 33 300
    Этажей 1
    Санузлы 1
    Спальни 2
    Смотреть
    Ипотека и
    рассрочка
    ONE 85
    Стоимость от:
    7 890 300
    Проект от: 47 250
    Этажей 1
    Санузлы 1
    Спальни 2
    Смотреть
    Ипотека и
    рассрочка
    Двухэтажный дом с облицовкой кирпичом в стиле Райт S-201
    Стоимость от:
    18 977 760
    Проект от: 114 300
    Этажей 2
    Санузлы 3
    Спальни 3
    Смотреть
    Ипотека и
    рассрочка
    Двухэтажный загородный дом «Цюрих»
    Стоимость от:
    10 773 000
    Проект от: 81 000
    Этажей 2
    Санузлы 2
    Спальни 4
    Смотреть

    Как узнать стоимость дома

    back
    Оставляете заявку
    Вы заполняете форму на сайте или звоните нам. Менеджер Лайвкрафт связывается с вами для уточнения деталей: тип дома, площадь, материалы, участок строительства.
    back
    Консультация и подбор решения
    Наш специалист помогает выбрать оптимальный тип дома и конструкцию с учётом бюджета, сроков и целей — будь то дом для постоянного проживания или дача.
    back
    Расчёт предварительной стоимости
    Инженер делает первичный расчёт стоимости строительства по вашим параметрам: фундамент, коробка, кровля, отделка. Вы получаете смету с разбивкой по этапам.
    back
    Корректировка и утверждение сметы
    При необходимости вносим изменения — например, замену материалов или сокращение этапов. После согласования формируется окончательная фиксированная смета.
    back
    Заключение договора и старт работ
    После утверждения сметы заключаем официальный договор с гарантией. Вы получаете прозрачный график и точную стоимость — без скрытых расходов.

    Заказать конусльтацию по:Резиденция у озера

    Фото 1 Резиденция у озера


      Наши
      контакты

      Дмитров
      Опорный проезд 28Б
      (индустриальный парк Ниагара)
      9:00 до 18:00