4.9
Рейтинг на основании 120 отзывов
Дмитров
Опорный проезд 28Б
(индустриальный парк Ниагара)
Бренд "Дмитров-Дело" c 2008 года на рынке строительства в Дмитрове
Звоните 9:00 до 18:00 8 (915) 055-33-61
Бренд "Дмитров-Дело" c 2008 года на рынке строительства в Дмитрове

Русский дом

Стоимость проекта от:
92 250 ₽
Стоимость строительства от:
13 094 400 ₽
Артикул ART-12644
Дата 25.12.2025
Архитектурный стиль Скандинавский
Количество надземных этажей 2
Круглогодичное проживание Да
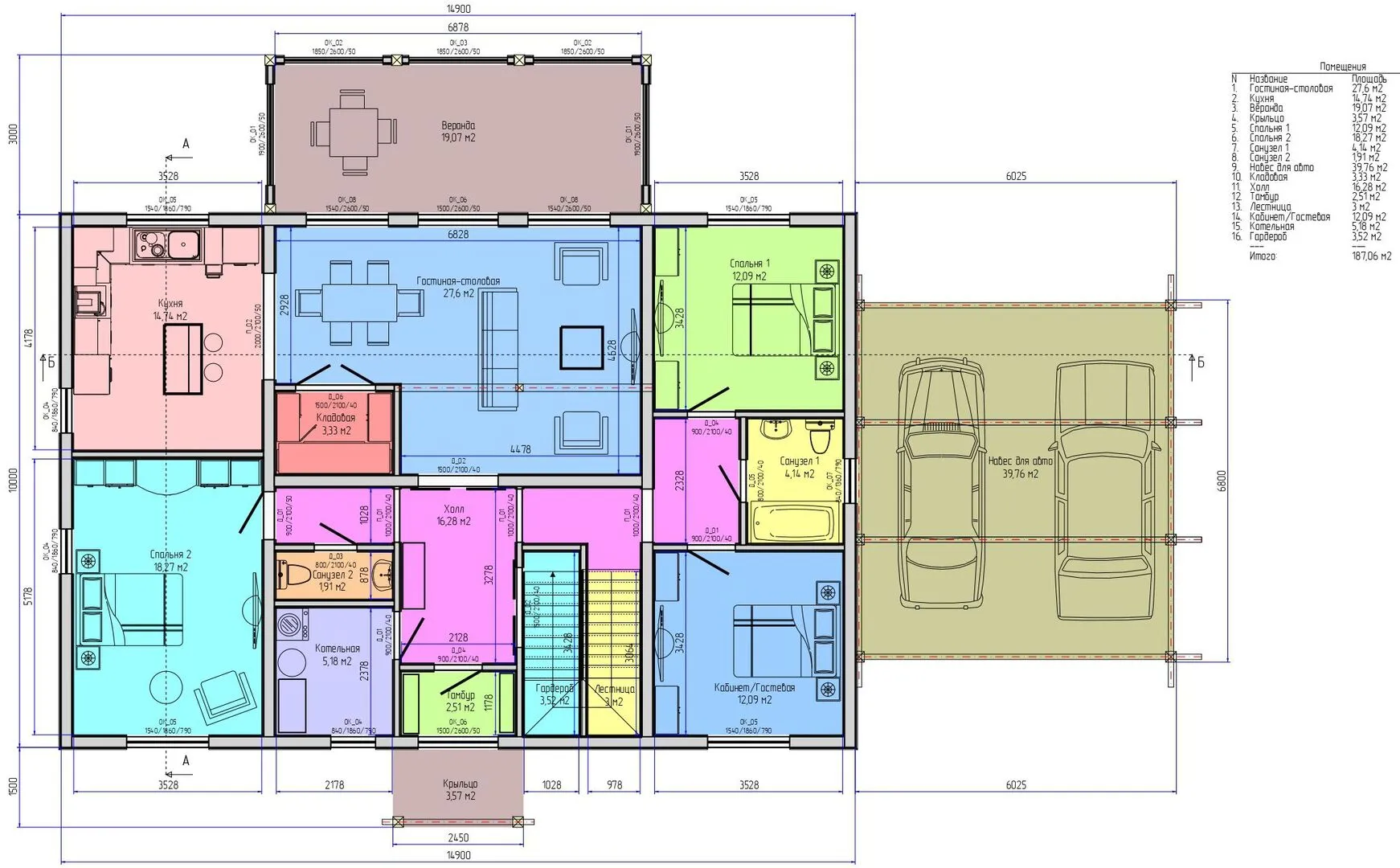
Площадь дома 205 м2
Санузлы 3
Спальни 4

Описание

Этот дом — настоящий пример гармоничного соединения скандинавского минимализма с уютом русской традиции. Две надземные площадки располагаются над аккуратным деревянным каркасом, а двойное скандинавское кровельное покрытие в стиле двускатной крыши создаёт ощущение простора и надёжности. Круглогодичное проживание здесь становится реальностью: тепло от стёков и изоляции, скандинавский подход к функциональности и безупречная работа вентиляционных систем гарантируют комфорт даже в самые суровые зимы. Уникальный элемент интерьера — большая веранда, которая становится живописной «притомой» для семейных собраний, утреннего кофе или вечерних посиделок под солнцем. Пристроенный гараж придаёт дому практичность и защищённость – вы не боитесь непогоды и внезапного дождя, когда ваша машина стоит в защитном покрывальном пространстве. Внутри пространство организовано логично и удобно: открытая планировка, светлые тона, естественное освещение делают каждый уголок привлекательным для ваших самых больших желаний. Отсутствие балконов и террас не ограничивает ваш вид на мир, ведь веранда вместе с аккуратными деревянными дверями открывает внутренний двор, где можно отдохнуть в тени или в полной солнечной обстановке. Не забудьте, что каждая деталь этого дома продумана: от выбора материалов до мелких декоративных элементов. Он предназначен не только как место жительства, но и как источник вдохновения, где ваше сердце будет биться в унисон с природными ритмами и уютом сибирской природы. Ведь здесь вы живете в гармонии с собой и с окружающим миром, наслаждаясь простотой скандинавского дизайна и тепло русского дома.

Характеристики дома

Архитектурный стиль
Скандинавский
Автоматизированное регулирование параметров теплоносителя
Да
Балконы/лоджии
Отсутствуют
Чердачное помещение
Нет
Датчики протечки воды
Нет
Эксплуатируемая или зеленая кровля
Нет
Электроснабжение
2 варианта
Газоснабжение
2 варианта
Изоляция воздушного шума
Да
Камин
Нет
Класс энергоэффективности
A+
Класс энергосбережения
A+
Количество надземных этажей
2
Круглогодичное проживание
Да
Материал кровли
Металлочерепица
Материал перекрытий
Деревянные
Материал внешних стен
Деревянные каркасные
Материал внутренних перегородок
Деревянные
Модульное строительство с конструкциями заводского изготовления
Нет
Объем надземной части
-
Основной материал фасадов
Дерево
Отопление
2 варианта
Площадь дома
205 м2
Площадь застройки
215 м2
Подвальное помещение
Нет
Показатель компактности здания
1
Приборы учета тепловой энергии
Да
Пристроенный гараж/крытая автостоянка
Да
Противопожарная система
Нет
Санузлы
3
Совмещенная кухня-гостиная
Да
Спальни
4
Терраса
Нет
Тип фундамента
Плитный
Тип кровли
Двускатная
Толщина внешних стен
263 мм
Толщина внутренних перегородок
235 мм
Улучшенные шумовые характеристики
Да
Вентиляция
Естественная
Веранда
Да
Водоотведение
2 варианта
Водоснабжение
2 варианта
Высота дома
8.1 м
Высота потолков
3 м

Планировка

Фасад дома

Александр

Закажите выезд инженера

Александр

Выездной инженер
Закажите выезд инженера для точной диагностики и профессиональной консультации по инженерным системам. Специалист приедет в удобное время, проведёт осмотр, рассчитает стоимость работ и подберёт оптимальные решения для вашего дома.


    Похожие проекты

    Ипотека и
    рассрочка
    Встреча
    Стоимость от:
    5 114 560
    Проект от: 30 600
    Этажей 1
    Санузлы 1
    Спальни 2
    Смотреть
    Ипотека и
    рассрочка
    S 2-101-1
    Стоимость от:
    7 093 920
    Проект от: 44 100
    Этажей 2
    Санузлы 2
    Спальни 3
    Смотреть
    Ипотека и
    рассрочка
    Двухэтажный дом FK-130 Верхний Услон
    Стоимость от:
    9 405 600
    Проект от: 58 500
    Этажей 2
    Санузлы 2
    Спальни 3
    Смотреть
    Ипотека и
    рассрочка
    Каркасный дом 8х11 м с панорамными окнами и вторым светом
    Стоимость от:
    4 695 570
    Проект от: 36 450
    Этажей 1
    Санузлы 1
    Спальни 3
    Смотреть
    Ипотека и
    рассрочка
    VH «118-13» Сангрия
    Стоимость от:
    2 757 150
    Проект от: 20 250
    Этажей 1
    Санузлы 1
    Спальни 2
    Смотреть
    Ипотека и
    рассрочка
    Фортуна
    Стоимость от:
    19 631 040
    Проект от: 128 700
    Этажей 2
    Санузлы 3
    Спальни 4
    Смотреть

    Как узнать стоимость дома

    back
    Оставляете заявку
    Вы заполняете форму на сайте или звоните нам. Менеджер Лайвкрафт связывается с вами для уточнения деталей: тип дома, площадь, материалы, участок строительства.
    back
    Консультация и подбор решения
    Наш специалист помогает выбрать оптимальный тип дома и конструкцию с учётом бюджета, сроков и целей — будь то дом для постоянного проживания или дача.
    back
    Расчёт предварительной стоимости
    Инженер делает первичный расчёт стоимости строительства по вашим параметрам: фундамент, коробка, кровля, отделка. Вы получаете смету с разбивкой по этапам.
    back
    Корректировка и утверждение сметы
    При необходимости вносим изменения — например, замену материалов или сокращение этапов. После согласования формируется окончательная фиксированная смета.
    back
    Заключение договора и старт работ
    После утверждения сметы заключаем официальный договор с гарантией. Вы получаете прозрачный график и точную стоимость — без скрытых расходов.

    Заказать конусльтацию по:Русский дом

    Фото 1 Русский дом


      Наши
      контакты

      Дмитров
      Опорный проезд 28Б
      (индустриальный парк Ниагара)
      9:00 до 18:00