4.9
Рейтинг на основании 120 отзывов
Дмитров
Опорный проезд 28Б
(индустриальный парк Ниагара)
Бренд "Дмитров-Дело" c 2008 года на рынке строительства в Дмитрове
Звоните 9:00 до 18:00 8 (915) 055-33-61
Бренд "Дмитров-Дело" c 2008 года на рынке строительства в Дмитрове

С.Е.С.-1-п-142

Стоимость проекта от:
63 900 ₽
БЕСПЛАТНО! ПРИ ЗАКАЗЕ СТРОИТЕЛЬСТВА
Стоимость строительства от:
10 353 640 ₽
Артикул ART-6091
Дата 26.12.2025
Архитектурный стиль Хайтек
Количество надземных этажей 1
Круглогодичное проживание Да
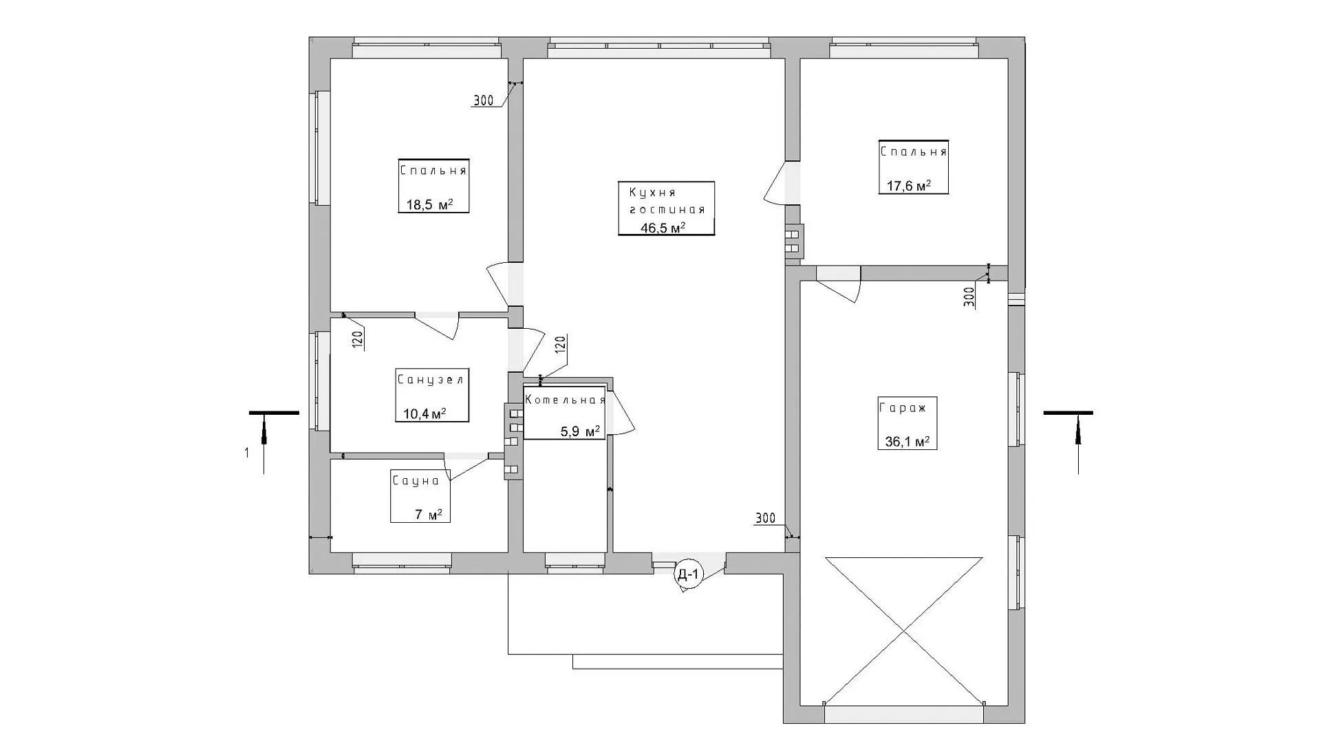
Площадь дома 142 м2
Санузлы 2
Спальни 2

Описание

С.Е.С.-1‑П‑142 — это изысканный одноэтажный дом, созданный для тех, кто ценит современную эстетику и комфорт. Внешний вид, выполненный в стильном хай‑теке, сочетает строгие линии и лаконичность, а газобетонные блоки придают фасаду лёгкость и износостойкость. Плоская крыша без лишних украшений подчёркивает чистоту форм и создаёт просторную, светлую атмосферу, которую легко «поднять» даже в любое время года. Дом предназначен для круглогодичного проживания: утеплённые стены, качественная теплоизоляция и грамотное планирование энергосбережения позволяют создать тепловой комфорт даже в самые холодные дни. Пристроенный гараж/крытая автостоянка избавляет от лишних хлопот, обеспечивая надёжное хранение автомобиля и удобный доступ к дому. Отсутствие балконов и веранд не умаляет уюта: вместо этого внутренний двор и просторные открытые помещения создают ощущения простора и свободы. Эта квартира — идеальный вариант для молодой семьи или современных профессионалов, ищущих современный, функциональный и стильный дом. Инвестируя в С.Е.С.-1‑П‑142, вы получаете не просто жильё, а пространство, где каждая деталь продумана, а комфорт – приоритет.

Характеристики дома

Архитектурный стиль
Автоматизированное регулирование параметров теплоносителя
Нет
Балконы/лоджии
Отсутствуют
Чердачное помещение
Нет
Датчики протечки воды
Нет
Эксплуатируемая или зеленая кровля
Да
Электроснабжение
Индивидуальное
Газоснабжение
Индивидуальное
Изоляция воздушного шума
Нет
Камин
Нет
Класс энергоэффективности
-
Класс энергосбережения
-
Количество надземных этажей
1
Круглогодичное проживание
Да
Материал кровли
Рулонные битумно-полимерные покрытия
Материал перекрытий
Сборные железобетонные многопустотные плиты
Материал внешних стен
Материал внутренних перегородок
Кирпичные
Модульное строительство с конструкциями заводского изготовления
Нет
Объем надземной части
733 м3
Основной материал фасадов
Штукатурка
Отопление
Индивидуальное
Площадь дома
142 м2
Площадь застройки
151 м2
Подвальное помещение
Нет
Показатель компактности здания
-
Приборы учета тепловой энергии
Нет
Пристроенный гараж/крытая автостоянка
Да
Противопожарная система
Нет
Санузлы
2
Совмещенная кухня-гостиная
Да
Спальни
2
Терраса
Нет
Тип фундамента
Свайно-ростверковый
Тип кровли
Толщина внешних стен
350 мм
Толщина внутренних перегородок
120 мм
Улучшенные шумовые характеристики
Нет
Вентиляция
Естественная
Веранда
Нет
Водоотведение
Не предусмотрено
Водоснабжение
Индивидуальное
Высота дома
4.74 м
Высота потолков
2.9 м

Планировка

Фасад дома

Александр

Закажите выезд инженера

Александр

Выездной инженер
Закажите выезд инженера для точной диагностики и профессиональной консультации по инженерным системам. Специалист приедет в удобное время, проведёт осмотр, рассчитает стоимость работ и подберёт оптимальные решения для вашего дома.


    Похожие проекты

    Ипотека и
    рассрочка
    Авторский проект «Браун»
    Стоимость от:
    6 497 040
    Проект от: 41 400
    Этажей 1
    Санузлы 1
    Спальни 3
    Смотреть
    Ипотека и
    рассрочка
    «Загородный дом Аполлон»
    Стоимость от:
    10 024 520
    Проект от: 56 700
    Этажей 1
    Санузлы 2
    Спальни 3
    Смотреть
    Ипотека и
    рассрочка
    Скандинавский дом «Орхус»
    Стоимость от:
    222 640
    Проект от: 41 400
    Этажей 1
    Санузлы 1
    Спальни 2
    Смотреть
    Ипотека и
    рассрочка
    Каркасный дом «Рейн»
    Стоимость от:
    7 312 680
    Проект от: 54 900
    Этажей 2
    Санузлы 2
    Спальни 5
    Смотреть
    Ипотека и
    рассрочка
    Мечта 92
    Стоимость от:
    6 512 000
    Проект от: 45 000
    Этажей 1
    Санузлы 1
    Спальни 3
    Смотреть
    Ипотека и
    рассрочка
    Азов 2-169
    Стоимость от:
    12 028 560
    Проект от: 76 050
    Этажей 2
    Санузлы 2
    Спальни 3
    Смотреть

    Как узнать стоимость дома

    back
    Оставляете заявку
    Вы заполняете форму на сайте или звоните нам. Менеджер Лайвкрафт связывается с вами для уточнения деталей: тип дома, площадь, материалы, участок строительства.
    back
    Консультация и подбор решения
    Наш специалист помогает выбрать оптимальный тип дома и конструкцию с учётом бюджета, сроков и целей — будь то дом для постоянного проживания или дача.
    back
    Расчёт предварительной стоимости
    Инженер делает первичный расчёт стоимости строительства по вашим параметрам: фундамент, коробка, кровля, отделка. Вы получаете смету с разбивкой по этапам.
    back
    Корректировка и утверждение сметы
    При необходимости вносим изменения — например, замену материалов или сокращение этапов. После согласования формируется окончательная фиксированная смета.
    back
    Заключение договора и старт работ
    После утверждения сметы заключаем официальный договор с гарантией. Вы получаете прозрачный график и точную стоимость — без скрытых расходов.

    Заказать конусльтацию по:С.Е.С.-1-п-142

    Фото 1 С.Е.С.-1-п-142


      Наши
      контакты

      Дмитров
      Опорный проезд 28Б
      (индустриальный парк Ниагара)
      9:00 до 18:00

      Корзина