4.9
Рейтинг на основании 120 отзывов
Дмитров
Опорный проезд 28Б
(индустриальный парк Ниагара)
Бренд "Дмитров-Дело" c 2008 года на рынке строительства в Дмитрове
Звоните 9:00 до 18:00 8 (915) 055-33-61
Бренд "Дмитров-Дело" c 2008 года на рынке строительства в Дмитрове

Сканди-115 двухэтажный с террасой

Стоимость проекта от:
48 600 ₽
БЕСПЛАТНО! ПРИ ЗАКАЗЕ СТРОИТЕЛЬСТВА
Стоимость строительства от:
7 168 320 ₽
Артикул ART-11332
Дата 25.12.2025
Архитектурный стиль Скандинавский
Количество надземных этажей 2
Круглогодичное проживание Да
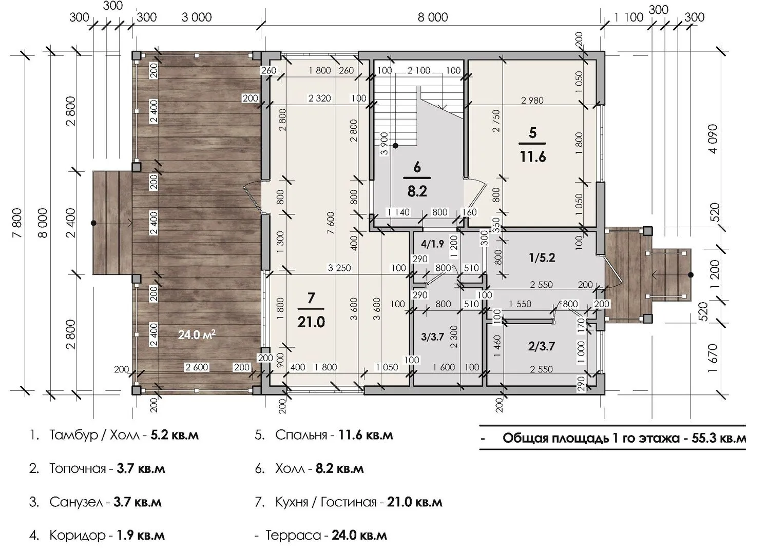
Площадь дома 108 м2
Санузлы 2
Спальни 4

Описание

Уникальный дом‑коттедж в скандинавском стиле, спроектированный с акцентом на простоту и гармонию с природой, приглашает окунуться в атмосферу уюта и спокойствия. Двухэтажная конструкция обеспечивает оптимальное разделение зон: открытую, светлую гостиную с большой панорамной верандой, где можно наслаждаться рассветами и закатами, и уютный жилой блок, где каждый элемент проработан до мелочей — от деревянных каркасных стен до гексагомных полок, способных хранить ваш мир. Внутри дом наполнен теплом, а естественное освещение проникает сквозь большие окна и просторные двери, создавая ощущение связи с окружающим садом. Небольшая, но функциональная терраса и веранда, соединяющие внутренние пространства с открытой площадью, превращают каждое утро в прогулку и вечерний отдых на свежем воздухе. Чистый, минималистичный дизайн с гладкими линиями, сочетаясь с натуральной древесиной, придает дому элегантность и спокойствие, которое легко восстанавливает эмоциональное равновесие после долгого дня. Плюс, в гексагомных черновиках скрываются современные инженерные решения, обеспечивающие тепло и энергоэффективность круглый год. Исключительной особенностью этого дома является два надземных этажа, полностью рассчитанные на комфортное круглогодичное проживание: отопление, вентиляция и современные коммуникации позволяют вам чувствовать себя в безопасности и комфорте в любое время года. Без лишних балконов и пристроенного гаража проект сохраняет чистоту линий, а отсутствие чердачного или подвесного пространства делает пространство более открытым и свободным. Если вы ищете сочетание простоты, качества и современного комфорта в одном вдохновляющем доме, сканди-115 — это то, что вам нужно.

Характеристики дома

Архитектурный стиль
Автоматизированное регулирование параметров теплоносителя
Нет
Балконы/лоджии
Отсутствуют
Чердачное помещение
Нет
Датчики протечки воды
Нет
Эксплуатируемая или зеленая кровля
Нет
Электроснабжение
Центральное
Газоснабжение
Центральное
Изоляция воздушного шума
Нет
Камин
Нет
Класс энергоэффективности
-
Класс энергосбережения
-
Количество надземных этажей
2
Круглогодичное проживание
Да
Материал кровли
Металлочерепица
Материал перекрытий
Деревянные
Материал внешних стен
Материал внутренних перегородок
Деревянные
Модульное строительство с конструкциями заводского изготовления
Нет
Объем надземной части
-
Основной материал фасадов
Сайдинг
Отопление
Индивидуальное
Площадь дома
108 м2
Площадь застройки
56 м2
Подвальное помещение
Нет
Показатель компактности здания
-
Приборы учета тепловой энергии
Нет
Пристроенный гараж/крытая автостоянка
Нет
Противопожарная система
Нет
Санузлы
2
Совмещенная кухня-гостиная
Да
Спальни
4
Терраса
Да
Тип фундамента
Свайно-ростверковый
Тип кровли
Толщина внешних стен
222 мм
Толщина внутренних перегородок
125 мм
Улучшенные шумовые характеристики
Нет
Вентиляция
2 варианта
Веранда
Да
Водоотведение
Локальные очистные сооружения
Водоснабжение
Индивидуальное
Высота дома
9 м
Высота потолков
2.7 м

Планировка

Фасад дома

Александр

Закажите выезд инженера

Александр

Выездной инженер
Закажите выезд инженера для точной диагностики и профессиональной консультации по инженерным системам. Специалист приедет в удобное время, проведёт осмотр, рассчитает стоимость работ и подберёт оптимальные решения для вашего дома.


    Похожие проекты

    Ипотека и
    рассрочка
    Одноэтажный дом «Виктория»
    Стоимость от:
    9 090 620
    Проект от: 54 450
    Этажей 1
    Санузлы 2
    Спальни 3
    Смотреть
    Ипотека и
    рассрочка
    Одноэтажный каменный дом КД-22
    Стоимость от:
    6 840 020
    Проект от: 40 950
    Этажей 1
    Санузлы 2
    Спальни 3
    Смотреть
    Ипотека и
    рассрочка
    Двухэтажный дом из кирпича для среднестатистической семьи
    Стоимость от:
    12 439 680
    Проект от: 77 400
    Этажей 2
    Санузлы 2
    Спальни 4
    Смотреть
    Ипотека и
    рассрочка
    П1-85-СП3/2024
    Стоимость от:
    5 331 480
    Проект от: 37 800
    Этажей 1
    Санузлы 1
    Спальни 3
    Смотреть
    Ипотека и
    рассрочка
    Скандик
    Стоимость от:
    6 956 400
    Проект от: 54 000
    Этажей 1
    Санузлы 2
    Спальни 3
    Смотреть
    Ипотека и
    рассрочка
    Проект ГБ-120
    Стоимость от:
    8 380 800
    Проект от: 54 000
    Этажей 2
    Санузлы 2
    Спальни 4
    Смотреть

    Как узнать стоимость дома

    back
    Оставляете заявку
    Вы заполняете форму на сайте или звоните нам. Менеджер Лайвкрафт связывается с вами для уточнения деталей: тип дома, площадь, материалы, участок строительства.
    back
    Консультация и подбор решения
    Наш специалист помогает выбрать оптимальный тип дома и конструкцию с учётом бюджета, сроков и целей — будь то дом для постоянного проживания или дача.
    back
    Расчёт предварительной стоимости
    Инженер делает первичный расчёт стоимости строительства по вашим параметрам: фундамент, коробка, кровля, отделка. Вы получаете смету с разбивкой по этапам.
    back
    Корректировка и утверждение сметы
    При необходимости вносим изменения — например, замену материалов или сокращение этапов. После согласования формируется окончательная фиксированная смета.
    back
    Заключение договора и старт работ
    После утверждения сметы заключаем официальный договор с гарантией. Вы получаете прозрачный график и точную стоимость — без скрытых расходов.

    Заказать конусльтацию по:Сканди-115 двухэтажный с террасой

    Фото 1 Сканди-115 двухэтажный с террасой


      Наши
      контакты

      Дмитров
      Опорный проезд 28Б
      (индустриальный парк Ниагара)
      9:00 до 18:00

      Корзина