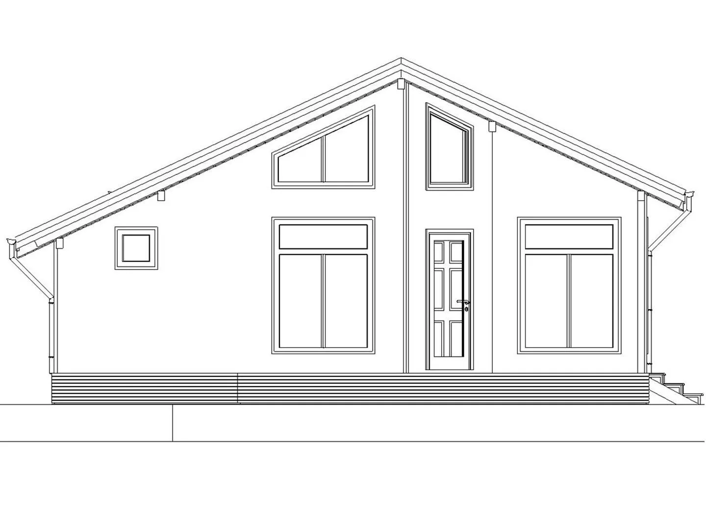
Скандинавский дом «Орхус»
Описание
Характеристики дома
Архитектурный стиль
-
Автоматизированное регулирование параметров теплоносителя
Нет
Балконы/лоджии
Отсутствуют
Чердачное помещение
Да
Датчики протечки воды
Нет
Эксплуатируемая или зеленая кровля
Нет
Электроснабжение
-
Газоснабжение
-
Изоляция воздушного шума
Нет
Камин
Нет
Класс энергоэффективности
-
Класс энергосбережения
-
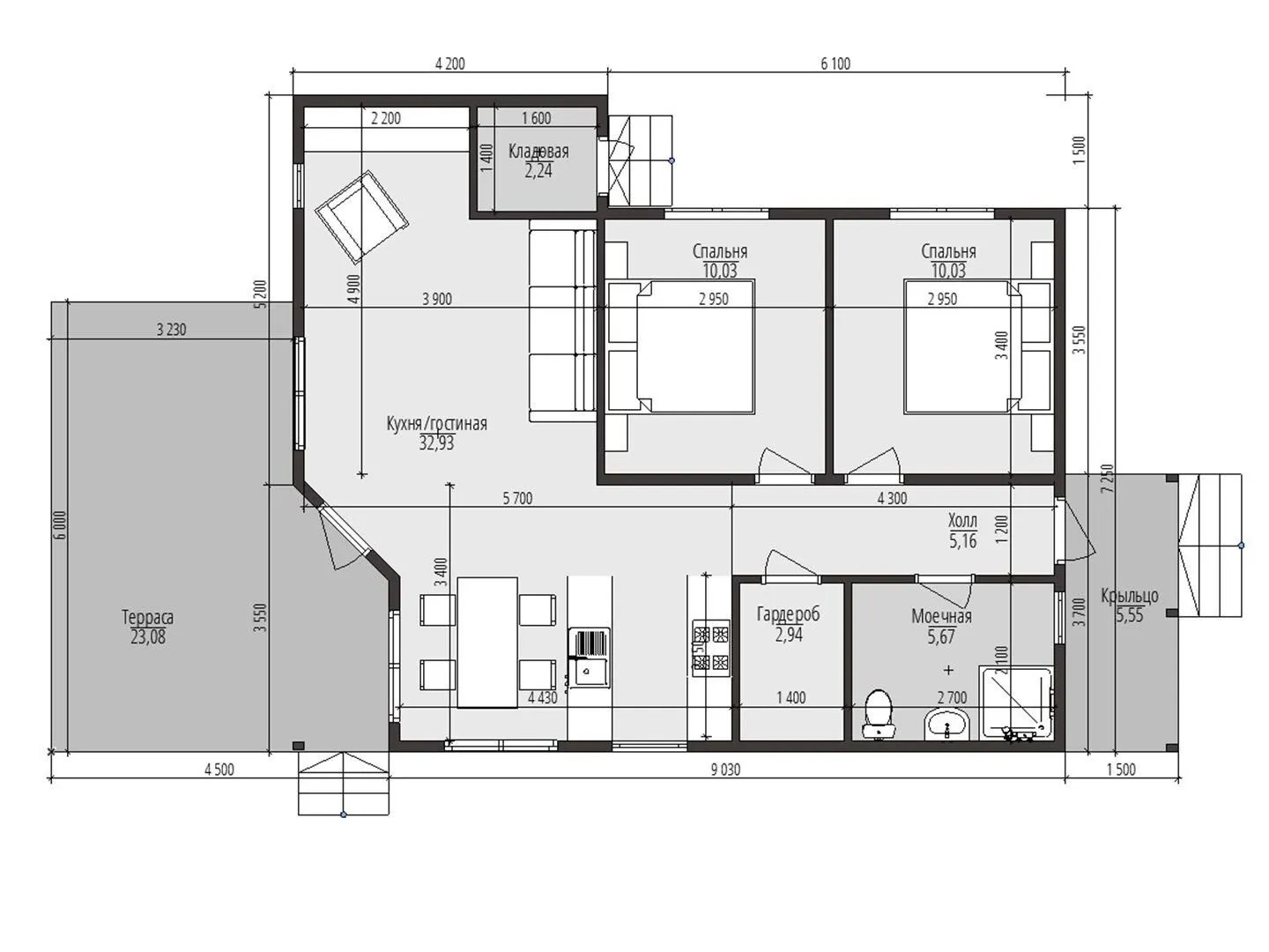
Количество надземных этажей
1
Круглогодичное проживание
Да
Материал кровли
-
Материал перекрытий
-
Материал внешних стен
-
Материал внутренних перегородок
-
Модульное строительство с конструкциями заводского изготовления
Нет
Объем надземной части
224 м3
Основной материал фасадов
-
Отопление
-
Площадь дома
92 м2
Площадь застройки
106 м2
Подвальное помещение
Нет
Показатель компактности здания
-
Приборы учета тепловой энергии
Нет
Пристроенный гараж/крытая автостоянка
Нет
Противопожарная система
Нет
Санузлы
1
Совмещенная кухня-гостиная
Да
Спальни
2
Терраса
Да
Тип фундамента
-
Тип кровли
-
Толщина внешних стен
203 мм
Толщина внутренних перегородок
175 мм
Улучшенные шумовые характеристики
Нет
Вентиляция
-
Веранда
Нет
Водоотведение
-
Водоснабжение
-
Высота дома
4.5 м
Высота потолков
2.5 м
Категории проекта
Закажите выезд инженера
Александр
Выездной инженер
Закажите выезд инженера для точной диагностики и профессиональной консультации по инженерным
системам. Специалист приедет в удобное время, проведёт осмотр, рассчитает стоимость работ и подберёт
оптимальные решения для вашего дома.
Как узнать стоимость дома
Заказать конусльтацию по:Скандинавский дом «Орхус»
Наши
контакты
Дмитров
Опорный проезд 28Б
(индустриальный парк Ниагара)
Опорный проезд 28Б
(индустриальный парк Ниагара)
9:00 до 18:00