4.9
Рейтинг на основании 120 отзывов
Дмитров
Опорный проезд 28Б
(индустриальный парк Ниагара)
Бренд "Дмитров-Дело" c 2008 года на рынке строительства в Дмитрове
Звоните 9:00 до 18:00 8 (915) 055-33-61
Бренд "Дмитров-Дело" c 2008 года на рынке строительства в Дмитрове

SKY HOUSE

Стоимость проекта от:
75 150 ₽
БЕСПЛАТНО! ПРИ ЗАКАЗЕ СТРОИТЕЛЬСТВА
Стоимость строительства от:
11 426 140 ₽
Артикул ART-13327
Дата 25.12.2025
Архитектурный стиль Европейский
Количество надземных этажей 1
Круглогодичное проживание Да
Площадь дома 167 м2
Санузлы 2
Спальни 3

Описание

Представляем вашему вниманию «Sky House» – ваш личный оазис в сердцевине города. Этот уникальный одноповерхний дом сочетает в себе элегантность европейского стиля и современные удобства, позволяющие вам наслаждаться комфортом круглый год. Лёгкие газобетонные стены придают ему тепло и звукоизоляцию, а плоская крыша открывает простор для стильных летних устроев и тихого ночного отдыха. Каждый из трёх балконов/лоджий приглашает к уютным семейным сборным вечерам, где можно подышать свежим воздухом и любоваться городским пейзажем. Пристроенный гараж и крытая автостоянка гарантируют безопасность и удобство для вашего автомобиля в любое время года. Благодаря продуманной планировке внутреннего пространства «Sky House» выглядит как небольшое замкнутое гнездо – где каждая комната пронизана светом и свободой. Этот дом создан для тех, кто ценит гармонию между классикой и современностью, ищет место, где каждый день будет начинаться и заканчиваться в атмосфере спокойствия и вдохновения. Не упустите шанс стать владельцем этого незабываемого уголка – здесь каждый момент превратится в настоящее искусство жить.

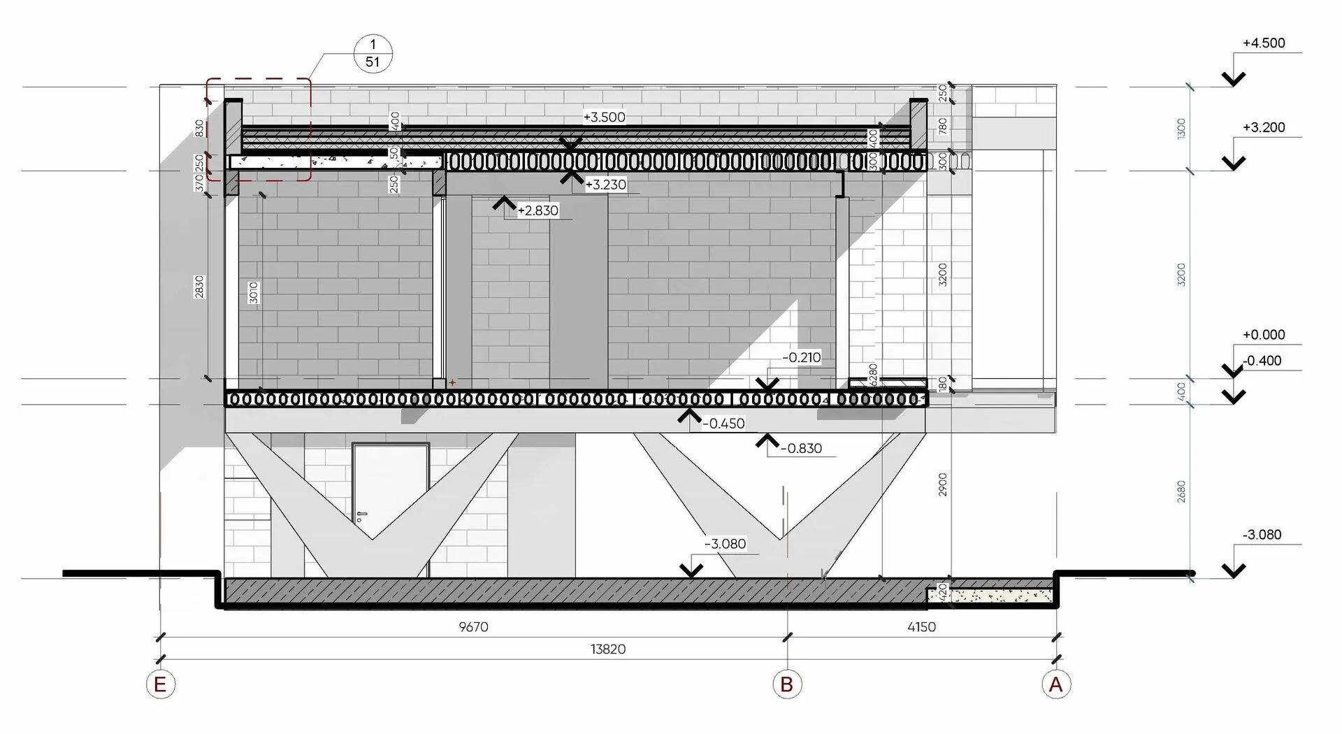
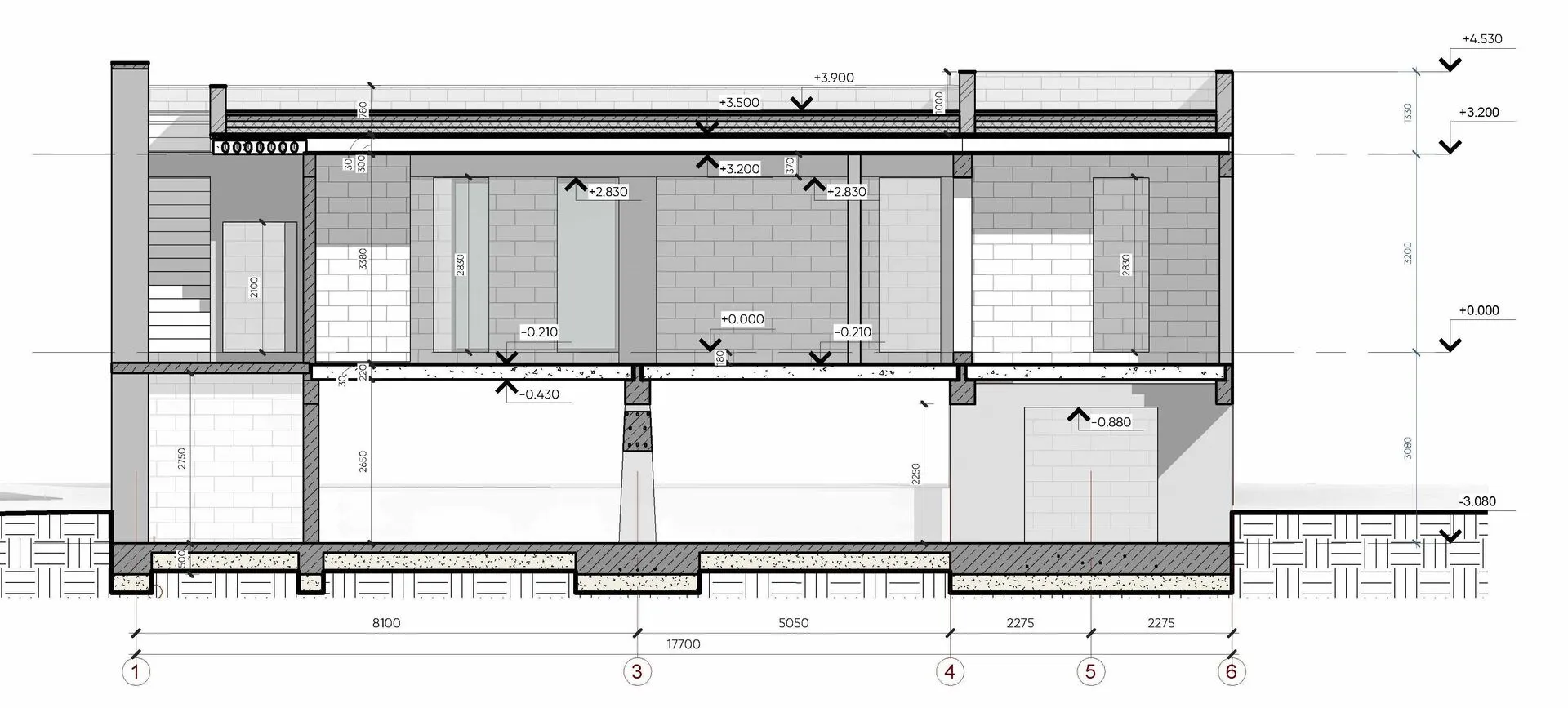
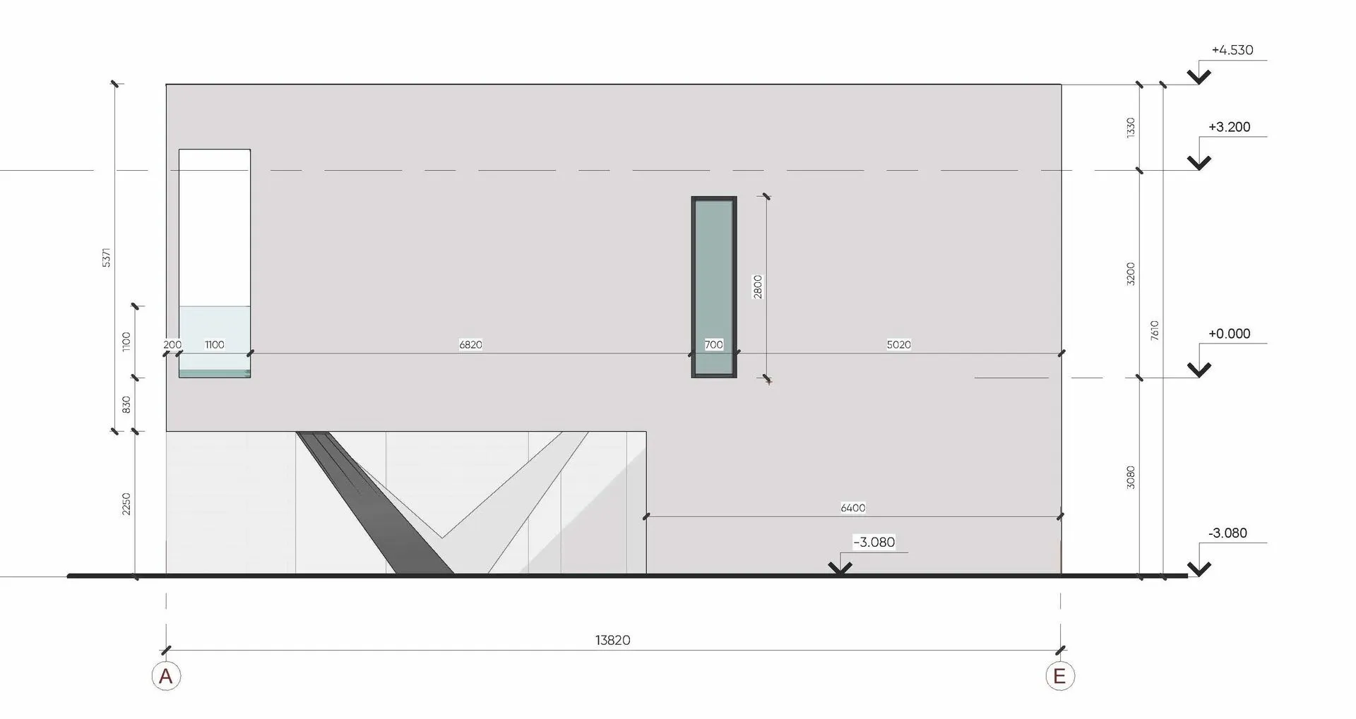
Характеристики дома

Архитектурный стиль
Автоматизированное регулирование параметров теплоносителя
Да
Балконы/лоджии
3
Чердачное помещение
Нет
Датчики протечки воды
Да
Эксплуатируемая или зеленая кровля
Да
Электроснабжение
Центральное
Газоснабжение
Центральное
Изоляция воздушного шума
Да
Камин
Нет
Класс энергоэффективности
-
Класс энергосбережения
-
Количество надземных этажей
1
Круглогодичное проживание
Да
Материал кровли
Рулонные битумные покрытия
Материал перекрытий
Сборные железобетонные предварительно напряженные пустотные плиты
Материал внешних стен
Материал внутренних перегородок
Блочные
Модульное строительство с конструкциями заводского изготовления
Нет
Объем надземной части
1786 м3
Основной материал фасадов
Штукатурка
Отопление
Центральное
Площадь дома
167 м2
Площадь застройки
233 м2
Подвальное помещение
Да
Показатель компактности здания
-
Приборы учета тепловой энергии
Да
Пристроенный гараж/крытая автостоянка
Да
Противопожарная система
Да
Санузлы
2
Совмещенная кухня-гостиная
Да
Спальни
3
Терраса
Нет
Тип фундамента
Плитный
Тип кровли
Толщина внешних стен
600 мм
Толщина внутренних перегородок
200 мм
Улучшенные шумовые характеристики
Да
Вентиляция
Естественная
Веранда
Нет
Водоотведение
Центральное
Водоснабжение
Центральное
Высота дома
4.53 м
Высота потолков
3.2 м

Планировка

Фасад дома

Александр

Закажите выезд инженера

Александр

Выездной инженер
Закажите выезд инженера для точной диагностики и профессиональной консультации по инженерным системам. Специалист приедет в удобное время, проведёт осмотр, рассчитает стоимость работ и подберёт оптимальные решения для вашего дома.


    Похожие проекты

    Ипотека и
    рассрочка
    Виктория
    Стоимость от:
    5 414 640
    Проект от: 32 400
    Этажей 1
    Санузлы 1
    Спальни 3
    Смотреть
    Ипотека и
    рассрочка
    Одноэтажный дом Норвегия 80
    Стоимость от:
    5 881 920
    Проект от: 43 200
    Этажей 1
    Санузлы 1
    Спальни 2
    Смотреть
    Ипотека и
    рассрочка
    Дом из клееного бруса по проекту №105/В
    Стоимость от:
    6 283 530
    Проект от: 44 550
    Этажей 1
    Санузлы 2
    Спальни 3
    Смотреть
    Ипотека и
    рассрочка
    Варяг
    Стоимость от:
    7 016 280
    Проект от: 52 650
    Этажей 2
    Санузлы 2
    Спальни 3
    Смотреть
    Ипотека и
    рассрочка
    ДомPRO 96-3К-КТ
    Стоимость от:
    7 641 920
    Проект от: 43 200
    Этажей 1
    Санузлы 2
    Спальни 3
    Смотреть
    Ипотека и
    рассрочка
    Скандинавский кирпич
    Стоимость от:
    10 262 780
    Проект от: 58 050
    Этажей 1
    Санузлы 2
    Спальни 3
    Смотреть

    Как узнать стоимость дома

    back
    Оставляете заявку
    Вы заполняете форму на сайте или звоните нам. Менеджер Лайвкрафт связывается с вами для уточнения деталей: тип дома, площадь, материалы, участок строительства.
    back
    Консультация и подбор решения
    Наш специалист помогает выбрать оптимальный тип дома и конструкцию с учётом бюджета, сроков и целей — будь то дом для постоянного проживания или дача.
    back
    Расчёт предварительной стоимости
    Инженер делает первичный расчёт стоимости строительства по вашим параметрам: фундамент, коробка, кровля, отделка. Вы получаете смету с разбивкой по этапам.
    back
    Корректировка и утверждение сметы
    При необходимости вносим изменения — например, замену материалов или сокращение этапов. После согласования формируется окончательная фиксированная смета.
    back
    Заключение договора и старт работ
    После утверждения сметы заключаем официальный договор с гарантией. Вы получаете прозрачный график и точную стоимость — без скрытых расходов.

    Заказать конусльтацию по:SKY HOUSE

    Фото 1 SKY HOUSE


      Наши
      контакты

      Дмитров
      Опорный проезд 28Б
      (индустриальный парк Ниагара)
      9:00 до 18:00

      Корзина