4.9
Рейтинг на основании 120 отзывов
Дмитров
Опорный проезд 28Б
(индустриальный парк Ниагара)
Бренд "Дмитров-Дело" c 2008 года на рынке строительства в Дмитрове
Звоните 9:00 до 18:00 8 (915) 055-33-61
Бренд "Дмитров-Дело" c 2008 года на рынке строительства в Дмитрове

ТКС1

Стоимость проекта от:
68 850 ₽
БЕСПЛАТНО! ПРИ ЗАКАЗЕ СТРОИТЕЛЬСТВА
Стоимость строительства от:
10 468 260 ₽
Артикул ART-14101
Дата 25.12.2025
Архитектурный стиль Скандинавский
Количество надземных этажей 1
Круглогодичное проживание Да
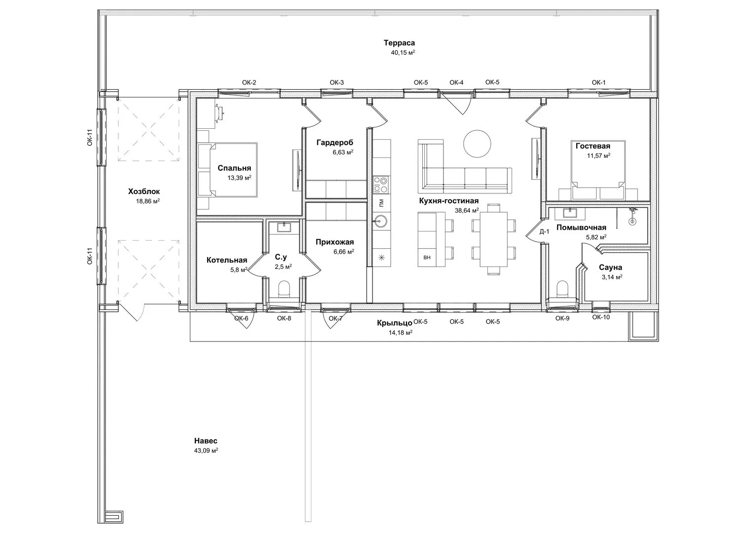
Площадь дома 153 м2
Санузлы 2
Спальни 2

Описание

Небольшой, но изысканный деревянный шедевр, построенный по принципам скандинавского дизайна, предлагает идеальное сочетание простоты и утончённости. На один открытый надземный этаж распирается просторный и светлый пентхаус, где каждая зона, от уютного уголка для завтрака до функциональной кухни, открыта к естественному свету, проникающему через большие окна. Благодаря использованию каркасно‑панельной технологии, дом сохраняет тепло зимой и прохладу летом, а плоская крыша — это не только современный акцент, но и удобство на заднем дворе, где можно разместить гриль или устроить мини‑сад. Идеальное решение для круглогодичного проживания, это жильё без балконов и веранд, но с просторной террасой, которая становится продолжением внутреннего пространства. Здесь каждый может провести летний вечер на открытой площадке, наслаждаясь свежим воздухом, а в зимний период — уютно укутаться в плед, сидя у камина. Пристроенный гараж и крытая автостоянка обеспечивают надёжную и удобную парковку, оставляя вам свободное пространство для творчества и расслабления. Ключевой особенностью является сочетание функциональности и эстетики: простая, но современная форма, натуральные материалы и минималистические интерьеры создают атмосферу спокойствия и гармонии. Это дом, где каждый элемент продуман до мельчайших деталей, а общая концепция приглашает в мир уюта, простоты и экологической ответственности. Готовы открыть дверь в новую эру комфорта и стиля?

Характеристики дома

Архитектурный стиль
Автоматизированное регулирование параметров теплоносителя
Нет
Балконы/лоджии
Отсутствуют
Чердачное помещение
Нет
Датчики протечки воды
Да
Эксплуатируемая или зеленая кровля
Нет
Электроснабжение
2 варианта
Газоснабжение
2 варианта
Изоляция воздушного шума
Нет
Камин
Нет
Класс энергоэффективности
-
Класс энергосбережения
-
Количество надземных этажей
1
Круглогодичное проживание
Да
Материал кровли
Битумная черепица
Материал перекрытий
Деревянные по металлическим балкам
Материал внешних стен
Материал внутренних перегородок
Деревянные
Модульное строительство с конструкциями заводского изготовления
Нет
Объем надземной части
940 м3
Основной материал фасадов
Дерево
Отопление
Индивидуальное
Площадь дома
153 м2
Площадь застройки
250 м2
Подвальное помещение
Нет
Показатель компактности здания
-
Приборы учета тепловой энергии
Нет
Пристроенный гараж/крытая автостоянка
Да
Противопожарная система
Нет
Санузлы
2
Совмещенная кухня-гостиная
Да
Спальни
2
Терраса
Да
Тип фундамента
Плитный
Тип кровли
Толщина внешних стен
350 мм
Толщина внутренних перегородок
300 мм
Улучшенные шумовые характеристики
Нет
Вентиляция
Рекуперация
Веранда
Нет
Водоотведение
2 варианта
Водоснабжение
2 варианта
Высота дома
3.75 м
Высота потолков
3.1 м

Планировка

Фасад дома

Александр

Закажите выезд инженера

Александр

Выездной инженер
Закажите выезд инженера для точной диагностики и профессиональной консультации по инженерным системам. Специалист приедет в удобное время, проведёт осмотр, рассчитает стоимость работ и подберёт оптимальные решения для вашего дома.


    Похожие проекты

    Ипотека и
    рассрочка
    Двухэтажный загородный дом «Спрингсайд»
    Стоимость от:
    7 062 300
    Проект от: 53 100
    Этажей 2
    Санузлы 2
    Спальни 4
    Смотреть
    Ипотека и
    рассрочка
    ИЖС Европейский
    Стоимость от:
    8 262 540
    Проект от: 52 650
    Этажей 1
    Санузлы 2
    Спальни 4
    Смотреть
    Ипотека и
    рассрочка
    Рубин К130
    Стоимость от:
    5 573 760
    Проект от: 42 750
    Этажей 2
    Санузлы 2
    Спальни 4
    Смотреть
    Ипотека и
    рассрочка
    ГОТИКА
    Стоимость от:
    7 959 600
    Проект от: 45 000
    Этажей 1
    Санузлы 2
    Спальни 3
    Смотреть
    Ипотека и
    рассрочка
    Жилой дом с мансардой Н-90
    Стоимость от:
    8 465 520
    Проект от: 50 850
    Этажей 2
    Санузлы 2
    Спальни 2
    Смотреть
    Ипотека и
    рассрочка
    Дом №20
    Стоимость от:
    8 992 060
    Проект от: 50 850
    Этажей 1
    Санузлы 1
    Спальни 3
    Смотреть

    Как узнать стоимость дома

    back
    Оставляете заявку
    Вы заполняете форму на сайте или звоните нам. Менеджер Лайвкрафт связывается с вами для уточнения деталей: тип дома, площадь, материалы, участок строительства.
    back
    Консультация и подбор решения
    Наш специалист помогает выбрать оптимальный тип дома и конструкцию с учётом бюджета, сроков и целей — будь то дом для постоянного проживания или дача.
    back
    Расчёт предварительной стоимости
    Инженер делает первичный расчёт стоимости строительства по вашим параметрам: фундамент, коробка, кровля, отделка. Вы получаете смету с разбивкой по этапам.
    back
    Корректировка и утверждение сметы
    При необходимости вносим изменения — например, замену материалов или сокращение этапов. После согласования формируется окончательная фиксированная смета.
    back
    Заключение договора и старт работ
    После утверждения сметы заключаем официальный договор с гарантией. Вы получаете прозрачный график и точную стоимость — без скрытых расходов.

    Заказать конусльтацию по:ТКС1

    Фото 1 ТКС1


      Наши
      контакты

      Дмитров
      Опорный проезд 28Б
      (индустриальный парк Ниагара)
      9:00 до 18:00

      Корзина