4.9
Рейтинг на основании 120 отзывов
Дмитров
Опорный проезд 28Б
(индустриальный парк Ниагара)
Бренд "Дмитров-Дело" c 2008 года на рынке строительства в Дмитрове
Звоните 9:00 до 18:00 8 (915) 055-33-61
Бренд "Дмитров-Дело" c 2008 года на рынке строительства в Дмитрове

Васнецово

Стоимость проекта от:
65 700 ₽
БЕСПЛАТНО! ПРИ ЗАКАЗЕ СТРОИТЕЛЬСТВА
Стоимость строительства от:
8 142 420 ₽
Артикул ART-19991
Дата 26.12.2025
Архитектурный стиль Русский
Количество надземных этажей 1
Круглогодичное проживание Да
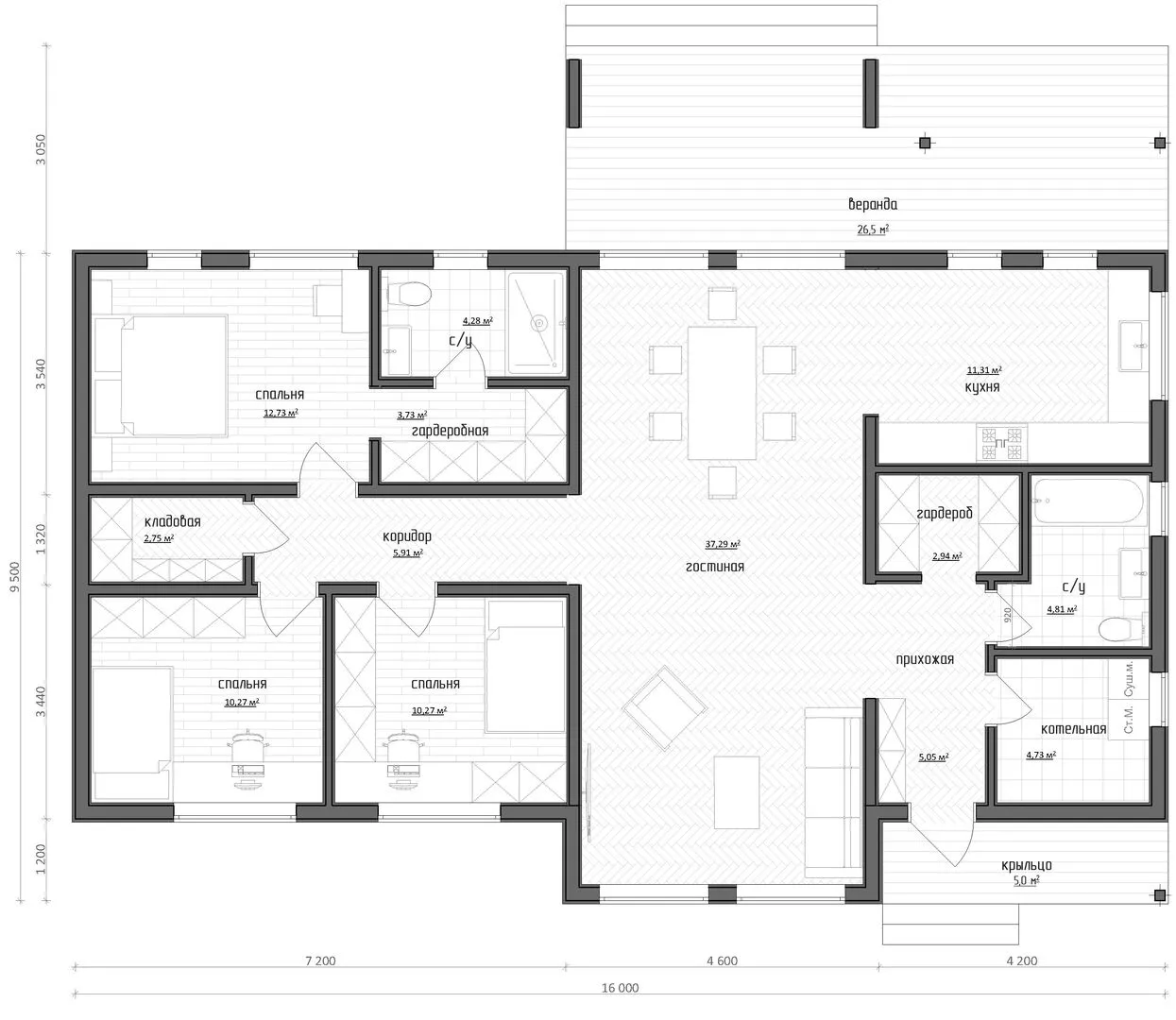
Площадь дома 146 м2
Санузлы 2
Спальни 3

Описание

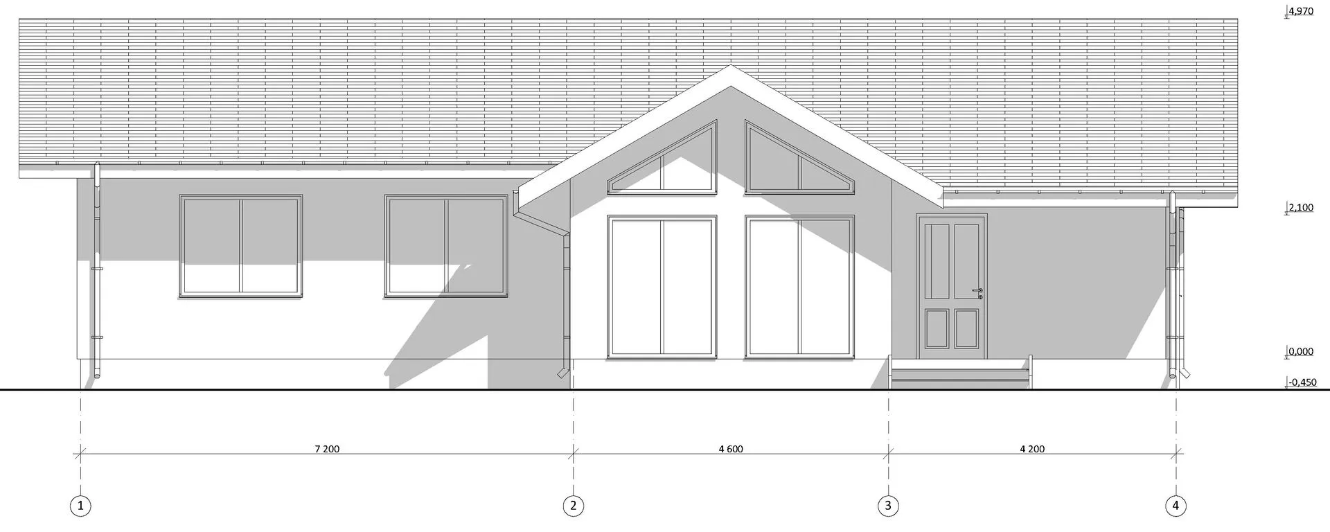
Васнецово – это место, где традиции и уют находят идеальный баланс. Дом, спроектированный в классическом русском стиле, приглашает своих будущих жильцов ощутить по-настоящему домашнее тепло: деревянный каркас, обрамляющий каждую комнату, создаёт атмосферу простоты и устойчивости, а двускатная крыша добавляет нотки элегантности и исторической связи. Приходя сюда, вы открываете для себя пространство, где каждая деталь будто шепчет о заботе и внимании к деталям – от тщательно продуманного чернового изоляционного слоя до тщательно продуманной вентиляции, позволяющей поддерживать комфорт даже в самые прохладные дни. Главное, что делает этот дом особенным – это его простота и практичность. Утренний свет проникает сквозь большие окна, наполняя комнаты мягким, живым светом, а веранда, открытая к внешнему миру, предоставляет идеальное место для неспешных чаепитий или чтения на свежем воздухе. Отсутствие балконов и лоджий в данном случае не умоляет комфорта – наоборот, это позволяет полностью сконцентрироваться на внутреннем пространстве, где каждая комната обустроена таким образом, чтобы вы чувствовали себя как дома с первого дня. При этом в доме отсутствуют подводные сложности: нет пристроенного гаража, чердака или террасы, что делает план дома лаконичным и современным, без лишних отвлечений и дополнительных расходов. Это ваш шанс окунуться в атмосферу традиционного русского дома в самом сердце Васнецово, где каждый уголок дарит чувство уюта, а простор и функциональность делают его идеальным местом для круглетогого проживания. ✨

Характеристики дома

Архитектурный стиль
Автоматизированное регулирование параметров теплоносителя
Нет
Балконы/лоджии
Отсутствуют
Чердачное помещение
Нет
Датчики протечки воды
Нет
Эксплуатируемая или зеленая кровля
Нет
Электроснабжение
Центральное
Газоснабжение
Центральное
Изоляция воздушного шума
Да
Камин
Нет
Класс энергоэффективности
A+
Класс энергосбережения
A+
Количество надземных этажей
1
Круглогодичное проживание
Да
Материал кровли
Битумная черепица
Материал перекрытий
Деревянные
Материал внешних стен
Материал внутренних перегородок
Деревянные
Модульное строительство с конструкциями заводского изготовления
Нет
Объем надземной части
585 м3
Основной материал фасадов
Дерево
Отопление
Индивидуальное
Площадь дома
146 м2
Площадь застройки
172 м2
Подвальное помещение
Нет
Показатель компактности здания
1.1
Приборы учета тепловой энергии
Нет
Пристроенный гараж/крытая автостоянка
Нет
Противопожарная система
Нет
Санузлы
2
Совмещенная кухня-гостиная
Нет
Спальни
3
Терраса
Нет
Тип фундамента
Свайный
Тип кровли
Толщина внешних стен
200 мм
Толщина внутренних перегородок
150 мм
Улучшенные шумовые характеристики
Да
Вентиляция
Естественная
Веранда
Да
Водоотведение
2 варианта
Водоснабжение
2 варианта
Высота дома
4.9 м
Высота потолков
3.9 м

Планировка

Фасад дома

Александр

Закажите выезд инженера

Александр

Выездной инженер
Закажите выезд инженера для точной диагностики и профессиональной консультации по инженерным системам. Специалист приедет в удобное время, проведёт осмотр, рассчитает стоимость работ и подберёт оптимальные решения для вашего дома.


    Похожие проекты

    Ипотека и
    рассрочка
    Заповедный 1
    Стоимость от:
    6 355 800
    Проект от: 40 500
    Этажей 1
    Санузлы 1
    Спальни 3
    Смотреть
    Ипотека и
    рассрочка
    Индивидуальный жилой дом АТЛАНТ-5
    Стоимость от:
    13 825 920
    Проект от: 84 600
    Этажей 2
    Санузлы 2
    Спальни 4
    Смотреть
    Ипотека и
    рассрочка
    Одноэтажный жилой дом «Уровень -127»
    Стоимость от:
    10 103 940
    Проект от: 57 150
    Этажей 1
    Санузлы 2
    Спальни 3
    Смотреть
    Ипотека и
    рассрочка
    Загородный жилой дом №6
    Стоимость от:
    8 940 580
    Проект от: 53 550
    Этажей 1
    Санузлы 3
    Спальни 2
    Смотреть
    Ипотека и
    рассрочка
    958
    Стоимость от:
    7 263 360
    Проект от: 46 800
    Этажей 2
    Санузлы 2
    Спальни 3
    Смотреть
    Ипотека и
    рассрочка
    Одноэтажный дом 100м2
    Стоимость от:
    8 039 020
    Проект от: 45 450
    Этажей 1
    Санузлы 1
    Спальни 3
    Смотреть

    Как узнать стоимость дома

    back
    Оставляете заявку
    Вы заполняете форму на сайте или звоните нам. Менеджер Лайвкрафт связывается с вами для уточнения деталей: тип дома, площадь, материалы, участок строительства.
    back
    Консультация и подбор решения
    Наш специалист помогает выбрать оптимальный тип дома и конструкцию с учётом бюджета, сроков и целей — будь то дом для постоянного проживания или дача.
    back
    Расчёт предварительной стоимости
    Инженер делает первичный расчёт стоимости строительства по вашим параметрам: фундамент, коробка, кровля, отделка. Вы получаете смету с разбивкой по этапам.
    back
    Корректировка и утверждение сметы
    При необходимости вносим изменения — например, замену материалов или сокращение этапов. После согласования формируется окончательная фиксированная смета.
    back
    Заключение договора и старт работ
    После утверждения сметы заключаем официальный договор с гарантией. Вы получаете прозрачный график и точную стоимость — без скрытых расходов.

    Заказать конусльтацию по:Васнецово

    Фото 1 Васнецово


      Наши
      контакты

      Дмитров
      Опорный проезд 28Б
      (индустриальный парк Ниагара)
      9:00 до 18:00

      Корзина