4.9
Рейтинг на основании 120 отзывов
Дмитров
Опорный проезд 28Б
(индустриальный парк Ниагара)
Бренд "Дмитров-Дело" c 2008 года на рынке строительства в Дмитрове
Звоните 9:00 до 18:00 8 (915) 055-33-61
Бренд "Дмитров-Дело" c 2008 года на рынке строительства в Дмитрове

Верба 100

Стоимость проекта от:
35 100 ₽
БЕСПЛАТНО! ПРИ ЗАКАЗЕ СТРОИТЕЛЬСТВА
Стоимость строительства от:
4 574 700 ₽
Артикул ART-4806
Дата 26.12.2025
Архитектурный стиль Хайтек
Количество надземных этажей 2
Круглогодичное проживание Да
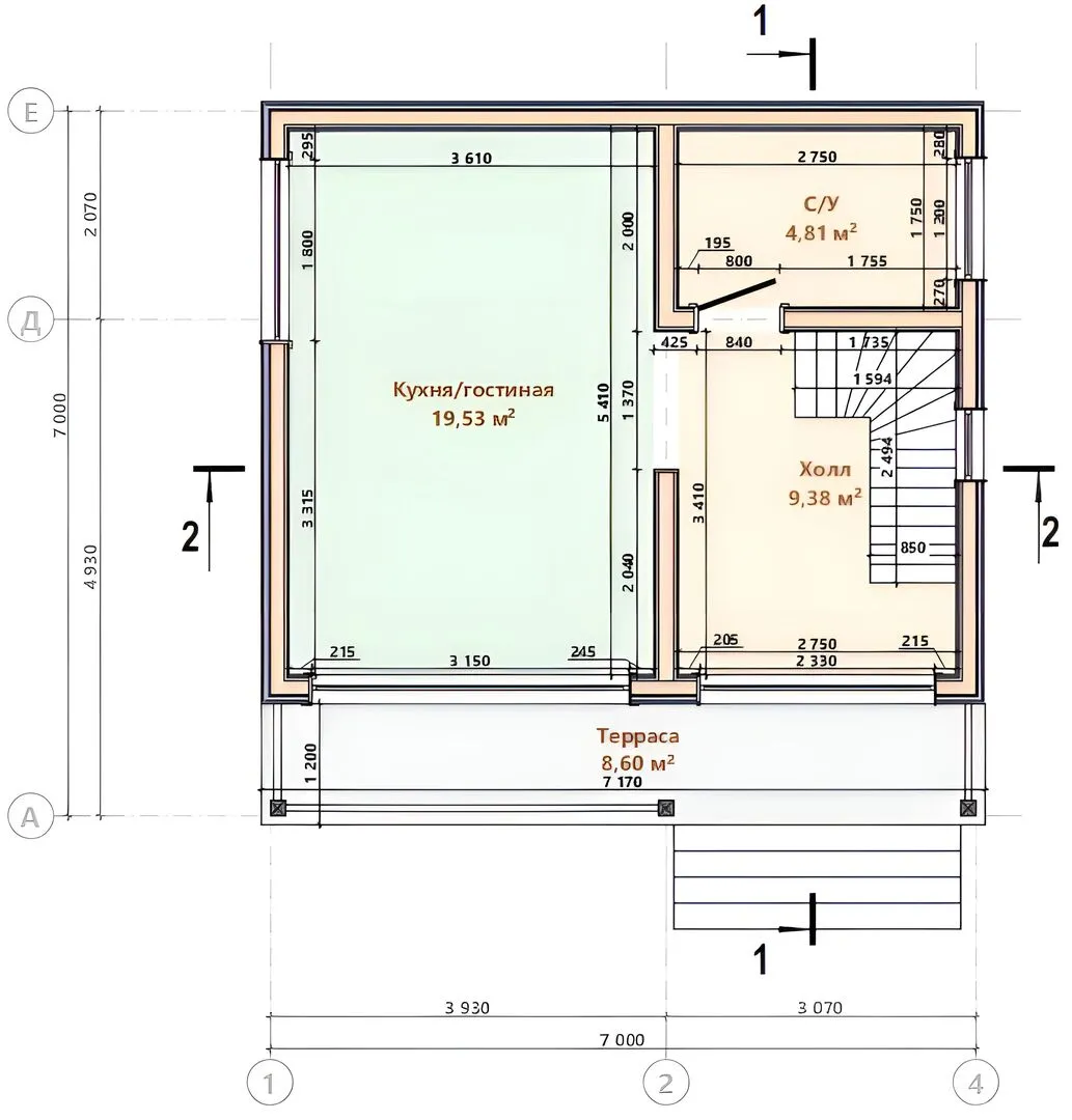
Площадь дома 78 м2
Санузлы 2
Спальни 3

Описание

Дом «Верба 100» – это смелый аккорд современности, написанный в тонком язычестве хай‑тековой эстетики. Две надземные этажи открывают просторные, светлые квартиры, где высокие потолки и большие окна создают ощущение воздушности и лёгкости. Благодаря плоской крыше и продуманной планировке, в доме комфортно чувствовать себя круглый год, а из каждой комнаты открываются живописные виды, придающие каждой минуте особую атмосферу тепла и уюта. Особенностью «Вербы 100» является простая, но впечатляющая конструкция деревянного каркаса. Её естественная текстура и природный материал придают дому душевный характер, а экологичность сооружения заботится о вашем здоровье и благополучии. На втором этаже уютный балкон, а внизу просторная терраса – идеальное место для семейных посиделок, завтраков на свежем воздухе или вечерних барбекю. В доме нет лишних элементов, как веранда или прицепный гараж, но это подчёркивает лаконичность и целостность дизайна, делая акцент на чистоте форм и практичности решения. Выбирая «Вербу 100», вы инвестируете в стильное, практичное и благоприятное пространство, где каждая деталь работает на ваш комфорт и удовольствие от жизни. Это не просто дом, а современное убежище, где гармония, простор и уют объединяются в единое целое.

Характеристики дома

Архитектурный стиль
Автоматизированное регулирование параметров теплоносителя
-
Балконы/лоджии
1
Чердачное помещение
Нет
Датчики протечки воды
-
Эксплуатируемая или зеленая кровля
-
Электроснабжение
Индивидуальное
Газоснабжение
Не предусмотрено
Изоляция воздушного шума
-
Камин
Нет
Класс энергоэффективности
-
Класс энергосбережения
-
Количество надземных этажей
2
Круглогодичное проживание
Да
Материал кровли
Рулонные битумные покрытия
Материал перекрытий
Деревянные
Материал внешних стен
Материал внутренних перегородок
Деревянные
Модульное строительство с конструкциями заводского изготовления
Нет
Объем надземной части
-
Основной материал фасадов
Планкен
Отопление
Индивидуальное
Площадь дома
78 м2
Площадь застройки
51 м2
Подвальное помещение
Нет
Показатель компактности здания
-
Приборы учета тепловой энергии
-
Пристроенный гараж/крытая автостоянка
Нет
Противопожарная система
Нет
Санузлы
2
Совмещенная кухня-гостиная
Да
Спальни
3
Терраса
Да
Тип фундамента
Свайно-винтовой
Тип кровли
Толщина внешних стен
320 мм
Толщина внутренних перегородок
140 мм
Улучшенные шумовые характеристики
-
Вентиляция
Естественная
Веранда
Нет
Водоотведение
Локальные очистные сооружения
Водоснабжение
Индивидуальное
Высота дома
6.88 м
Высота потолков
2.7 м

Планировка

Фасад дома

Александр

Закажите выезд инженера

Александр

Выездной инженер
Закажите выезд инженера для точной диагностики и профессиональной консультации по инженерным системам. Специалист приедет в удобное время, проведёт осмотр, рассчитает стоимость работ и подберёт оптимальные решения для вашего дома.


    Похожие проекты

    Ипотека и
    рассрочка
    Загородный дом HT-232
    Стоимость от:
    18 532 800
    Проект от: 121 500
    Этажей 2
    Санузлы 4
    Спальни 5
    Смотреть
    Ипотека и
    рассрочка
    Проект загородного дома NHD-120
    Стоимость от:
    9 342 960
    Проект от: 58 050
    Этажей 2
    Санузлы 2
    Спальни 4
    Смотреть
    Ипотека и
    рассрочка
    Дом из клееного бруса AVGUST
    Стоимость от:
    21 790 080
    Проект от: 140 400
    Этажей 2
    Санузлы 3
    Спальни 4
    Смотреть
    Ипотека и
    рассрочка
    Коттедж Финский Дом
    Стоимость от:
    5 585 360
    Проект от: 39 600
    Этажей 1
    Санузлы 1
    Спальни 3
    Смотреть
    Ипотека и
    рассрочка
    D99
    Стоимость от:
    6 765 000
    Проект от: 40 500
    Этажей 1
    Санузлы 2
    Спальни 3
    Смотреть
    Ипотека и
    рассрочка
    Рейн-3
    Стоимость от:
    14 465 880
    Проект от: 89 100
    Этажей 3
    Санузлы 5
    Спальни 3
    Смотреть

    Как узнать стоимость дома

    back
    Оставляете заявку
    Вы заполняете форму на сайте или звоните нам. Менеджер Лайвкрафт связывается с вами для уточнения деталей: тип дома, площадь, материалы, участок строительства.
    back
    Консультация и подбор решения
    Наш специалист помогает выбрать оптимальный тип дома и конструкцию с учётом бюджета, сроков и целей — будь то дом для постоянного проживания или дача.
    back
    Расчёт предварительной стоимости
    Инженер делает первичный расчёт стоимости строительства по вашим параметрам: фундамент, коробка, кровля, отделка. Вы получаете смету с разбивкой по этапам.
    back
    Корректировка и утверждение сметы
    При необходимости вносим изменения — например, замену материалов или сокращение этапов. После согласования формируется окончательная фиксированная смета.
    back
    Заключение договора и старт работ
    После утверждения сметы заключаем официальный договор с гарантией. Вы получаете прозрачный график и точную стоимость — без скрытых расходов.

    Заказать конусльтацию по:Верба 100

    Фото 1 Верба 100


      Наши
      контакты

      Дмитров
      Опорный проезд 28Б
      (индустриальный парк Ниагара)
      9:00 до 18:00

      Корзина