4.9
Рейтинг на основании 120 отзывов
Дмитров
Опорный проезд 28Б
(индустриальный парк Ниагара)
Бренд "Дмитров-Дело" c 2008 года на рынке строительства в Дмитрове
Звоните 9:00 до 18:00 8 (915) 055-33-61
Бренд "Дмитров-Дело" c 2008 года на рынке строительства в Дмитрове

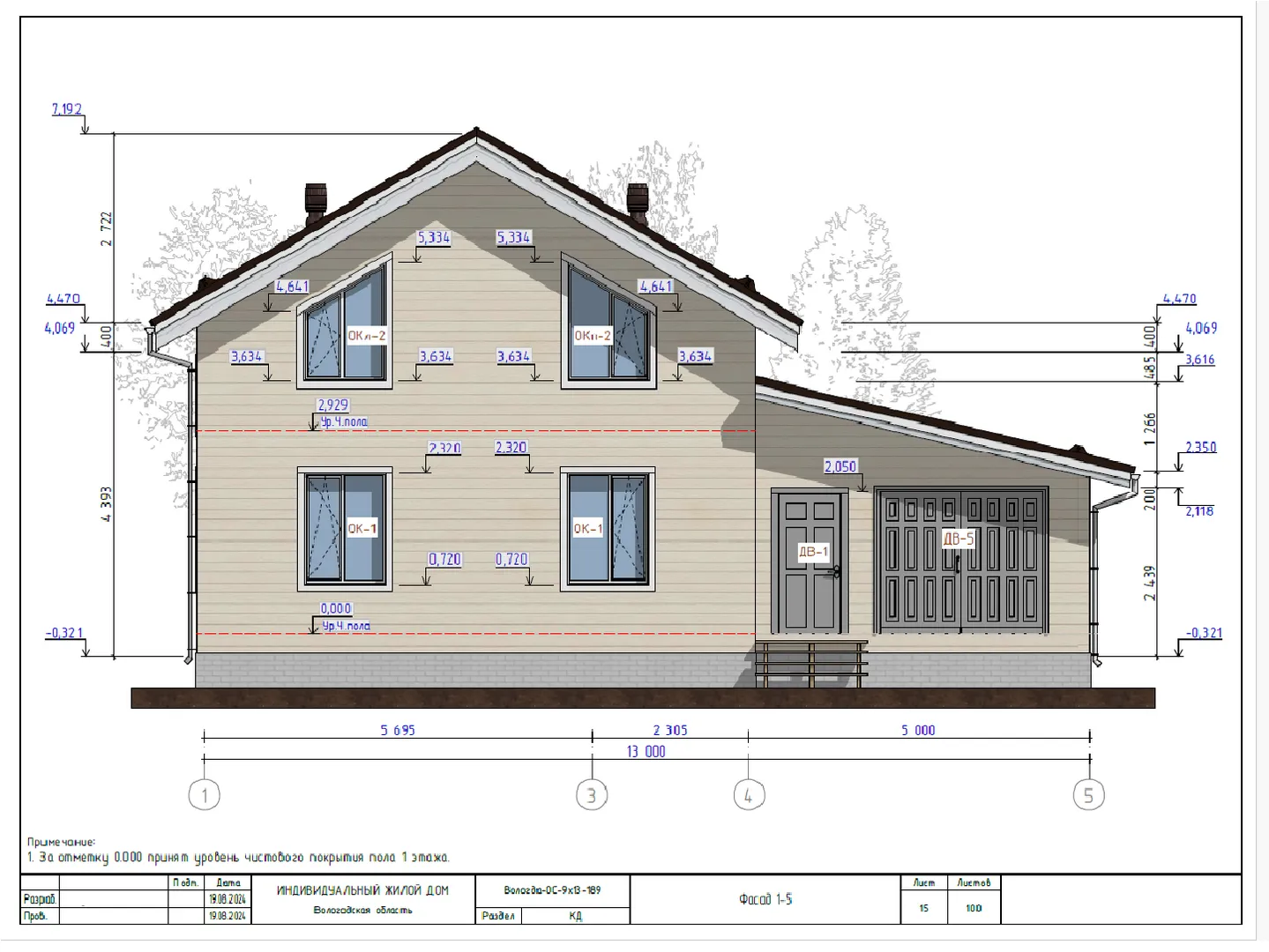
Вологда-ОС-9х13-189

Стоимость проекта от:
72 000 ₽
БЕСПЛАТНО! ПРИ ЗАКАЗЕ СТРОИТЕЛЬСТВА
Стоимость строительства от:
11 001 600 ₽
Артикул ART-17983
Дата 26.12.2025
Архитектурный стиль Европейский
Количество надземных этажей 2
Круглогодичное проживание Да
Площадь дома 160 м2
Санузлы 2
Спальни 3

Описание

Наша уютная резиденция в Вологде — это сочетание европейской элегантности и практичности русского деревянного строительства. Два надземных этажа предлагают просторное и светлое пространство, где каждый уголок пропитан теплом и вниманием к деталям. Круглогодичное проживание стало реальностью благодаря прочно выполненные наружные стены из деревянного каркаса и двускатную крышу, способную удерживать тепло даже в самые холодные зимы. Это дом, где можно чувствовать себя дома в любое время года, внести в него частичку европейского романтизма, но при этом не отказываться от привычных русских уютных деталей. Внутри вас ждёт открытая планировка с гибкой зоной гостиной, кухонной и светлыми спальнями, где естественное освещение становится вашим лучшим другом. Отсутствие балконов не является недостатком; наоборот, это сделало внутреннее пространство более компактным и энергоэффективным, позволяя создать яркое и гармоничное проживание. Дополнительное чердачное помещение предоставляет множество возможностей – от хранения до превращения в личный уголок творчества или уютное студийное пространство. Для удобства современного семейного ритма в доме предусмотрён пристороный гараж и крытая автостоянка, чтобы ваш автомобиль всегда был под надёжной крышей и защищён от непогоды. Поскольку в этом доме нет внешних балконов и веранд, все важные элементы, которые нужны для отдыха на свежем воздухе, организованы в виде обустроенной внутренней площадки с уютным камином и большим окном, при этом в открытое окно можно погрузиться в живописный вид на зимний сад в Вологде. Такой дом сочетает в себе эстетическую привлекательность, практичность и душевный комфорт, привлекая тех, кто ценит уют, качество и европейскую элегантность в самом сердце России.

Характеристики дома

Архитектурный стиль
Автоматизированное регулирование параметров теплоносителя
Нет
Балконы/лоджии
Отсутствуют
Чердачное помещение
Да
Датчики протечки воды
Нет
Эксплуатируемая или зеленая кровля
Нет
Электроснабжение
Не предусмотрено
Газоснабжение
Не предусмотрено
Изоляция воздушного шума
Нет
Камин
Нет
Класс энергоэффективности
-
Класс энергосбережения
-
Количество надземных этажей
2
Круглогодичное проживание
Да
Материал кровли
Металлочерепица
Материал перекрытий
Деревянные
Материал внешних стен
Материал внутренних перегородок
Деревянные
Модульное строительство с конструкциями заводского изготовления
Нет
Объем надземной части
-
Основной материал фасадов
Сайдинг
Отопление
Индивидуальное
Площадь дома
160 м2
Площадь застройки
119 м2
Подвальное помещение
Нет
Показатель компактности здания
-
Приборы учета тепловой энергии
Нет
Пристроенный гараж/крытая автостоянка
Да
Противопожарная система
Нет
Санузлы
2
Совмещенная кухня-гостиная
Да
Спальни
3
Терраса
Нет
Тип фундамента
Ленточный
Тип кровли
Толщина внешних стен
150 мм
Толщина внутренних перегородок
100 мм
Улучшенные шумовые характеристики
Нет
Вентиляция
Естественная
Веранда
Нет
Водоотведение
Не предусмотрено
Водоснабжение
Не предусмотрено
Высота дома
7.2 м
Высота потолков
2.6 м

Планировка

Фасад дома

Александр

Закажите выезд инженера

Александр

Выездной инженер
Закажите выезд инженера для точной диагностики и профессиональной консультации по инженерным системам. Специалист приедет в удобное время, проведёт осмотр, рассчитает стоимость работ и подберёт оптимальные решения для вашего дома.


    Похожие проекты

    Ипотека и
    рассрочка
    Шале 38
    Стоимость от:
    2 112 990
    Проект от: 17 100
    Этажей 1
    Санузлы 1
    Спальни 1
    Смотреть
    Ипотека и
    рассрочка
    Проект дома 73 м.кв 3 спальни НД-170-2 из СИП панелей
    Стоимость от:
    5 815 260
    Проект от: 32 850
    Этажей 1
    Санузлы 1
    Спальни 3
    Смотреть
    Ипотека и
    рассрочка
    «Колесникова»
    Стоимость от:
    2 935 860
    Проект от: 22 050
    Этажей 2
    Санузлы 1
    Спальни 2
    Смотреть
    Ипотека и
    рассрочка
    Двухэтажное шале №247
    Стоимость от:
    14 287 440
    Проект от: 85 950
    Этажей 2
    Санузлы 2
    Спальни 4
    Смотреть
    Ипотека и
    рассрочка
    Кёльн-136
    Стоимость от:
    12 857 280
    Проект от: 77 400
    Этажей 2
    Санузлы 3
    Спальни 3
    Смотреть
    Ипотека и
    рассрочка
    Дом Каролина
    Стоимость от:
    4 682 205
    Проект от: 36 450
    Этажей 1
    Санузлы 1
    Спальни 2
    Смотреть

    Как узнать стоимость дома

    back
    Оставляете заявку
    Вы заполняете форму на сайте или звоните нам. Менеджер Лайвкрафт связывается с вами для уточнения деталей: тип дома, площадь, материалы, участок строительства.
    back
    Консультация и подбор решения
    Наш специалист помогает выбрать оптимальный тип дома и конструкцию с учётом бюджета, сроков и целей — будь то дом для постоянного проживания или дача.
    back
    Расчёт предварительной стоимости
    Инженер делает первичный расчёт стоимости строительства по вашим параметрам: фундамент, коробка, кровля, отделка. Вы получаете смету с разбивкой по этапам.
    back
    Корректировка и утверждение сметы
    При необходимости вносим изменения — например, замену материалов или сокращение этапов. После согласования формируется окончательная фиксированная смета.
    back
    Заключение договора и старт работ
    После утверждения сметы заключаем официальный договор с гарантией. Вы получаете прозрачный график и точную стоимость — без скрытых расходов.

    Заказать конусльтацию по:Вологда-ОС-9х13-189

    Фото 1 Вологда-ОС-9х13-189


      Наши
      контакты

      Дмитров
      Опорный проезд 28Б
      (индустриальный парк Ниагара)
      9:00 до 18:00

      Корзина