4.9
Рейтинг на основании 120 отзывов
Дмитров
Опорный проезд 28Б
(индустриальный парк Ниагара)
Бренд "Дмитров-Дело" c 2008 года на рынке строительства в Дмитрове
Звоните 9:00 до 18:00 8 (915) 055-33-61
Бренд "Дмитров-Дело" c 2008 года на рынке строительства в Дмитрове

Загородный дом 155

Стоимость проекта от:
69 750 ₽
БЕСПЛАТНО! ПРИ ЗАКАЗЕ СТРОИТЕЛЬСТВА
Стоимость строительства от:
10 832 400 ₽
Артикул ART-15347
Дата 25.12.2025
Архитектурный стиль Классический
Количество надземных этажей 2
Круглогодичное проживание Да
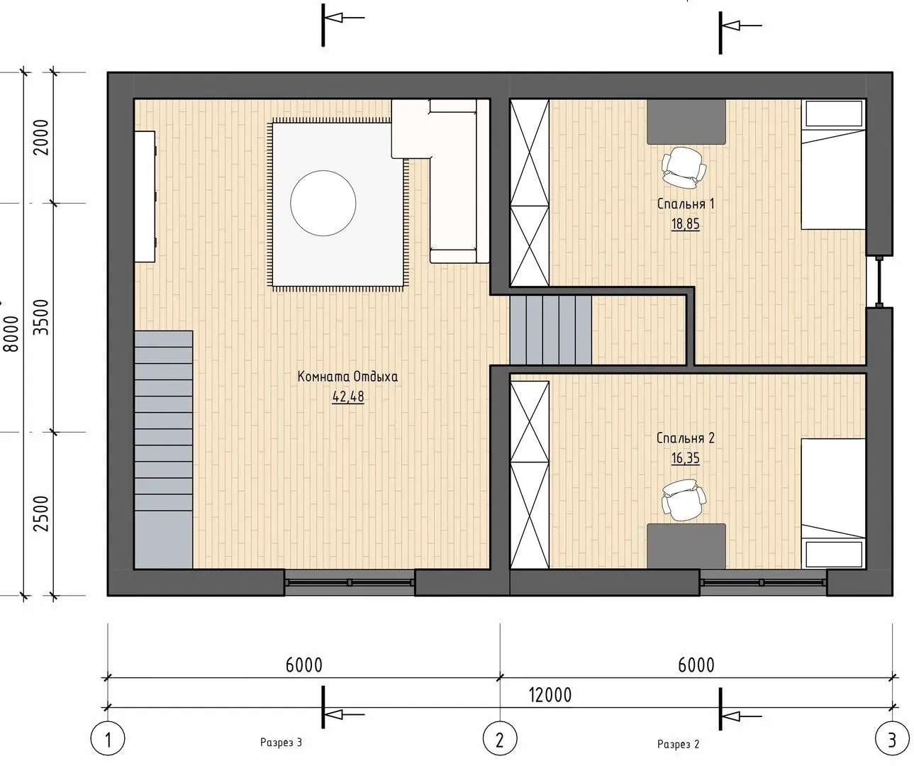
Площадь дома 155 м2
Санузлы 1
Спальни 2

Описание

Притягательный загородный дом площадью 155 м², расположенный в живописном уголке природы, сочетает в себе элегантную классическую архитектуру и современные решения комфорта. Благодаря двум надземным этажам планировка распределена так, чтобы каждый пространство дарило ощущение уюта и простора: просторный гостиной на первом уровне, практичные кухонные зоны, а во втором этаже – уютные спальни и удобный кабинет. Круглогодичное проживание обеспечено качественной теплоизоляцией, а наружные стены из керамзитобетонных блоков защищают от сквозняков и сохраняют тепло, даря ощущение гармонии с природой. Дом не требует забот о верандах, балконах или террасах – все внимание уделено внутреннему пространству, где современные инженерные решения (односкатная крыша, подогреванные подвалы) создают надёжное и теплой атмосферу. Пристроенный гараж и крытая автостоянка гарантируют удобство и безопасность вашего транспорта даже в ненастные дни. Этот классический, но при этом функциональный дом – настоящий оазис спокойствия, где каждая деталь продумана с мыслью о комфорте и благополучии вашей семьи.

Характеристики дома

Архитектурный стиль
Автоматизированное регулирование параметров теплоносителя
Нет
Балконы/лоджии
Отсутствуют
Чердачное помещение
Нет
Датчики протечки воды
Нет
Эксплуатируемая или зеленая кровля
Нет
Электроснабжение
Не предусмотрено
Газоснабжение
Не предусмотрено
Изоляция воздушного шума
Нет
Камин
Да
Класс энергоэффективности
-
Класс энергосбережения
-
Количество надземных этажей
2
Круглогодичное проживание
Да
Материал кровли
Металлочерепица
Материал перекрытий
Деревянные
Материал внешних стен
Материал внутренних перегородок
Пенобетонные
Модульное строительство с конструкциями заводского изготовления
Нет
Объем надземной части
-
Основной материал фасадов
Штукатурка
Отопление
Не предусмотрено
Площадь дома
155 м2
Площадь застройки
96 м2
Подвальное помещение
Нет
Показатель компактности здания
-
Приборы учета тепловой энергии
Нет
Пристроенный гараж/крытая автостоянка
Да
Противопожарная система
Нет
Санузлы
1
Совмещенная кухня-гостиная
Нет
Спальни
2
Терраса
Нет
Тип фундамента
Плитный
Тип кровли
Толщина внешних стен
400 мм
Толщина внутренних перегородок
300 мм
Улучшенные шумовые характеристики
Нет
Вентиляция
Естественная
Веранда
Нет
Водоотведение
Не предусмотрено
Водоснабжение
Не предусмотрено
Высота дома
7.29 м
Высота потолков
3 м

Планировка

Фасад дома

Александр

Закажите выезд инженера

Александр

Выездной инженер
Закажите выезд инженера для точной диагностики и профессиональной консультации по инженерным системам. Специалист приедет в удобное время, проведёт осмотр, рассчитает стоимость работ и подберёт оптимальные решения для вашего дома.


    Похожие проекты

    Ипотека и
    рассрочка
    Загородный дом АС-258
    Стоимость от:
    22 725 840
    Проект от: 148 950
    Этажей 2
    Санузлы 3
    Спальни 3
    Смотреть
    Ипотека и
    рассрочка
    Одноэтажный дом с крыльцом и терассой БРАИТ-5Г
    Стоимость от:
    8 992 060
    Проект от: 50 850
    Этажей 1
    Санузлы 1
    Спальни 2
    Смотреть
    Ипотека и
    рассрочка
    Каркасный дом «Диез»
    Стоимость от:
    5 098 200
    Проект от: 38 250
    Этажей 2
    Санузлы 1
    Спальни 4
    Смотреть
    Ипотека и
    рассрочка
    Одноэтажный дом «Ронда» 81 м2
    Стоимость от:
    6 089 820
    Проект от: 36 450
    Этажей 1
    Санузлы 1
    Спальни 2
    Смотреть
    Ипотека и
    рассрочка
    Одноэтажный дом «Зигрид 150»
    Стоимость от:
    8 340 750
    Проект от: 67 500
    Этажей 1
    Санузлы 1
    Спальни 2
    Смотреть
    Ипотека и
    рассрочка
    Дом брусовой двух-этажный.
    Стоимость от:
    8 042 640
    Проект от: 49 950
    Этажей 2
    Санузлы 2
    Спальни 3
    Смотреть

    Как узнать стоимость дома

    back
    Оставляете заявку
    Вы заполняете форму на сайте или звоните нам. Менеджер Лайвкрафт связывается с вами для уточнения деталей: тип дома, площадь, материалы, участок строительства.
    back
    Консультация и подбор решения
    Наш специалист помогает выбрать оптимальный тип дома и конструкцию с учётом бюджета, сроков и целей — будь то дом для постоянного проживания или дача.
    back
    Расчёт предварительной стоимости
    Инженер делает первичный расчёт стоимости строительства по вашим параметрам: фундамент, коробка, кровля, отделка. Вы получаете смету с разбивкой по этапам.
    back
    Корректировка и утверждение сметы
    При необходимости вносим изменения — например, замену материалов или сокращение этапов. После согласования формируется окончательная фиксированная смета.
    back
    Заключение договора и старт работ
    После утверждения сметы заключаем официальный договор с гарантией. Вы получаете прозрачный график и точную стоимость — без скрытых расходов.

    Заказать конусльтацию по:Загородный дом 155

    Фото 1 Загородный дом 155


      Наши
      контакты

      Дмитров
      Опорный проезд 28Б
      (индустриальный парк Ниагара)
      9:00 до 18:00

      Корзина