4.9
Рейтинг на основании 120 отзывов
Дмитров
Опорный проезд 28Б
(индустриальный парк Ниагара)
Бренд "Дмитров-Дело" c 2008 года на рынке строительства в Дмитрове
Звоните 9:00 до 18:00 8 (915) 055-33-61
Бренд "Дмитров-Дело" c 2008 года на рынке строительства в Дмитрове

Загородный дом C-I 79

Стоимость проекта от:
27 000 ₽
БЕСПЛАТНО! ПРИ ЗАКАЗЕ СТРОИТЕЛЬСТВА
Стоимость строительства от:
3 468 300 ₽
Артикул ART-18379
Дата 26.12.2025
Архитектурный стиль Классический
Количество надземных этажей 1
Круглогодичное проживание Да
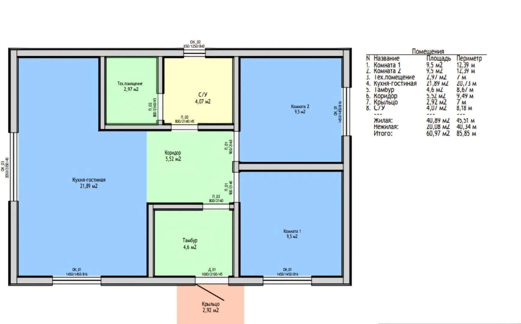
Площадь дома 60 м2
Санузлы 1
Спальни 2

Описание

Вас приветствует настоящий уголок уюта и гармонии, где каждая деталь пронизана теплом и классической эстетикой. Дом C‑I 79, изящно выполненный в классическом стиле, представляет собой цельный образ единого дома, построенного на один надземный этаж. Благодаря деревянному каркасному облику и двускатной крыше, он дарит ощущение уюта, а тепло древесины становится истинным источником комфорта даже в прохладный сезон. Он рассчитан на круглогодичное проживание и при этом сохраняет атмосферу природы, погружая вас в мир уединения и спокойствия. Внутри просторные комнаты и яркое естественное освещение делают каждый уголок гостеприимным и функциональным. Хотя в доме нет балконов, веранд и гаража, его простая и лаконичная планировка позволяет легко использовать доступное пространство: от кухни и гостиной до кладовых и кладов. Вы будете наслаждаться спокойствием, не отвлекаясь на лишние детали: отсутствие чердака, террас и пристроенных гаражей сохраняет в интерьере чистоту и простоту, позволяя полностью погрузиться в атмосферу расслабленности. Это идеальный дом для тех, кто ищет уединение и при этом хочет жить по полной, наслаждаясь преимуществами деревенской жизни и близостью к природе.

Характеристики дома

Архитектурный стиль
Автоматизированное регулирование параметров теплоносителя
Да
Балконы/лоджии
Отсутствуют
Чердачное помещение
Нет
Датчики протечки воды
Нет
Эксплуатируемая или зеленая кровля
Нет
Электроснабжение
Центральное
Газоснабжение
Не предусмотрено
Изоляция воздушного шума
Нет
Камин
Нет
Класс энергоэффективности
-
Класс энергосбережения
-
Количество надземных этажей
1
Круглогодичное проживание
Да
Материал кровли
Металлочерепица
Материал перекрытий
Деревянные
Материал внешних стен
Материал внутренних перегородок
Деревянные
Модульное строительство с конструкциями заводского изготовления
Нет
Объем надземной части
230 м3
Основной материал фасадов
Сайдинг
Отопление
2 варианта
Площадь дома
60 м2
Площадь застройки
79 м2
Подвальное помещение
Нет
Показатель компактности здания
-
Приборы учета тепловой энергии
Нет
Пристроенный гараж/крытая автостоянка
Нет
Противопожарная система
Нет
Санузлы
1
Совмещенная кухня-гостиная
Да
Спальни
2
Терраса
Нет
Тип фундамента
Свайно-винтовой
Тип кровли
Толщина внешних стен
200 мм
Толщина внутренних перегородок
100 мм
Улучшенные шумовые характеристики
Нет
Вентиляция
Принудительная
Веранда
Нет
Водоотведение
2 варианта
Водоснабжение
2 варианта
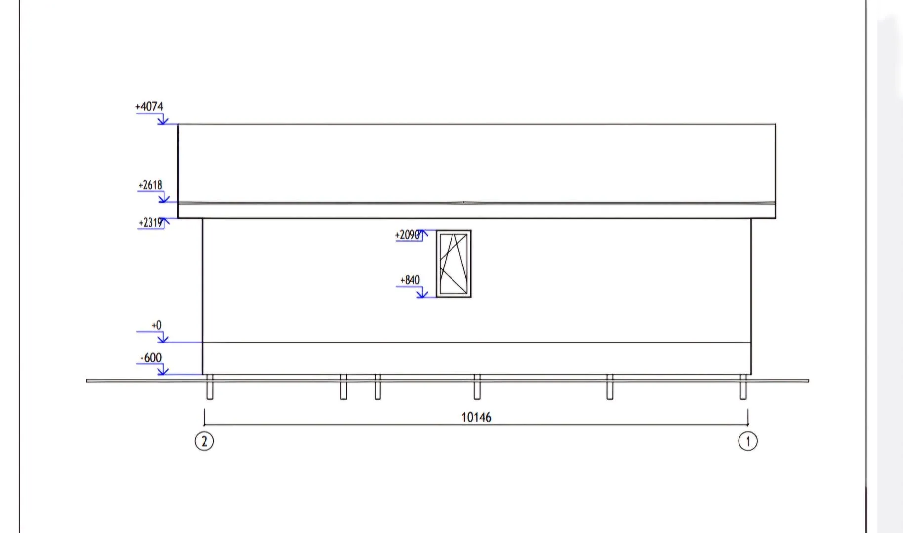
Высота дома
4.07 м
Высота потолков
2.7 м

Планировка

Фасад дома

Александр

Закажите выезд инженера

Александр

Выездной инженер
Закажите выезд инженера для точной диагностики и профессиональной консультации по инженерным системам. Специалист приедет в удобное время, проведёт осмотр, рассчитает стоимость работ и подберёт оптимальные решения для вашего дома.


    Похожие проекты

    Ипотека и
    рассрочка
    Одноэтажный дом Fixplans — 1115
    Стоимость от:
    6 214 560
    Проект от: 39 600
    Этажей 1
    Санузлы 2
    Спальни 3
    Смотреть
    Ипотека и
    рассрочка
    Одноэтажный дом в современном стиле с гаражом на 2 авто SS-303
    Стоимость от:
    25 589 080
    Проект от: 168 300
    Этажей 1
    Санузлы 3
    Спальни 4
    Смотреть
    Ипотека и
    рассрочка
    94
    Стоимость от:
    7 665 240
    Проект от: 45 900
    Этажей 1
    Санузлы 2
    Спальни 3
    Смотреть
    Ипотека и
    рассрочка
    Одноэтажный МД-85
    Стоимость от:
    7 140 100
    Проект от: 42 750
    Этажей 1
    Санузлы 2
    Спальни 3
    Смотреть
    Ипотека и
    рассрочка
    Индивидуальный проект Сыктывкар 2.0
    Стоимость от:
    7 659 905
    Проект от: 54 450
    Этажей 1
    Санузлы 1
    Спальни 3
    Смотреть
    Ипотека и
    рассрочка
    Дом из клееного бруса «Ангелия»
    Стоимость от:
    6 494 620
    Проект от: 47 700
    Этажей 1
    Санузлы 1
    Спальни 2
    Смотреть

    Как узнать стоимость дома

    back
    Оставляете заявку
    Вы заполняете форму на сайте или звоните нам. Менеджер Лайвкрафт связывается с вами для уточнения деталей: тип дома, площадь, материалы, участок строительства.
    back
    Консультация и подбор решения
    Наш специалист помогает выбрать оптимальный тип дома и конструкцию с учётом бюджета, сроков и целей — будь то дом для постоянного проживания или дача.
    back
    Расчёт предварительной стоимости
    Инженер делает первичный расчёт стоимости строительства по вашим параметрам: фундамент, коробка, кровля, отделка. Вы получаете смету с разбивкой по этапам.
    back
    Корректировка и утверждение сметы
    При необходимости вносим изменения — например, замену материалов или сокращение этапов. После согласования формируется окончательная фиксированная смета.
    back
    Заключение договора и старт работ
    После утверждения сметы заключаем официальный договор с гарантией. Вы получаете прозрачный график и точную стоимость — без скрытых расходов.

    Заказать конусльтацию по:Загородный дом C-I 79

    Фото 1 Загородный дом C-I 79


      Наши
      контакты

      Дмитров
      Опорный проезд 28Б
      (индустриальный парк Ниагара)
      9:00 до 18:00

      Корзина