4.9
Рейтинг на основании 120 отзывов
Дмитров
Опорный проезд 28Б
(индустриальный парк Ниагара)
Бренд "Дмитров-Дело" c 2008 года на рынке строительства в Дмитрове
Звоните 9:00 до 18:00 8 (915) 055-33-61
Бренд "Дмитров-Дело" c 2008 года на рынке строительства в Дмитрове

Загородный дом ROOMY 8*6

Стоимость проекта от:
17 550 ₽
Стоимость строительства от:
2 389 530 ₽
Артикул ART-14344
Дата 25.12.2025
Архитектурный стиль Европейский
Количество надземных этажей 1
Круглогодичное проживание Да
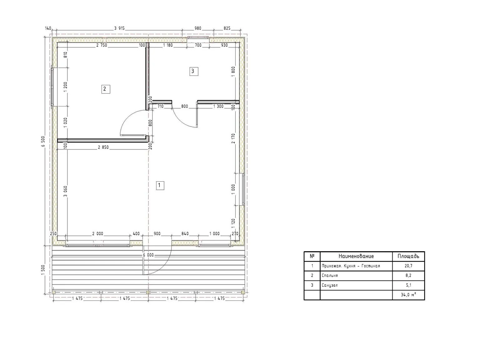
Площадь дома 39 м2
Санузлы 1
Спальни 1

Описание

В этом уютном загородном доме **ROOMY 8 × 6** вы найдёте идеальное сочетание европейского шарма и практичности. Одноэтажная структура, выполненная по каркасно‑панельной технологии, открывает непременную простоту и тепло круглый год. Прибор, отдохните в открытой гостиной, где обилие естественного света делает каждый момент особенным. Внутри просторные комнаты, где легко разместить семейных питомцев, гости и уютный уголок для чтения. Не ищите балконов — здесь их нет. Вместо этого дом дарит вам частную террасу, где в тёплое лето можно устроить барбекю, а весной насладиться ароматом первых цветов. Крыша, выполненная в классическом двускатном стиле, придаёт дому ощущение непоколебимости и защищенности от непогоды. Хотя прицепный гараж отсутствует, на свежем воздухе легко разместить автомобиль или велосипед, а вокруг дома можно вырастить сад, где будут радоваться детям и взрослым. Уже сегодня представьте, как вы проводите вечера на террасе, обнимаетесь у камина со своими близкими, и как ваш дом становится убежищем от суеты. Это место, которое вы будете с удовольствием открывать для новых гостей и где каждое утро встречает только свежий воздух и тёплый свет. Свяжитесь с нами, и мы поможем сделать вашу мечту о простом, но стильном и уютном доме реальностью.

Характеристики дома

Архитектурный стиль
Европейский
Автоматизированное регулирование параметров теплоносителя
Нет
Балконы/лоджии
Отсутствуют
Чердачное помещение
Нет
Датчики протечки воды
Нет
Эксплуатируемая или зеленая кровля
Нет
Электроснабжение
Индивидуальное
Газоснабжение
Не предусмотрено
Изоляция воздушного шума
Нет
Камин
Нет
Класс энергоэффективности
-
Класс энергосбережения
-
Количество надземных этажей
1
Круглогодичное проживание
Да
Материал кровли
Металлические листовые гофрированные профили
Материал перекрытий
Деревянные
Материал внешних стен
Каркасно-панельная технология
Материал внутренних перегородок
Деревянные
Модульное строительство с конструкциями заводского изготовления
Нет
Объем надземной части
142 м3
Основной материал фасадов
Дерево
Отопление
Индивидуальное
Площадь дома
39 м2
Площадь застройки
48 м2
Подвальное помещение
Нет
Показатель компактности здания
-
Приборы учета тепловой энергии
Нет
Пристроенный гараж/крытая автостоянка
Нет
Противопожарная система
Нет
Санузлы
1
Совмещенная кухня-гостиная
Да
Спальни
1
Терраса
Да
Тип фундамента
Свайный
Тип кровли
Двускатная
Толщина внешних стен
170 мм
Толщина внутренних перегородок
100 мм
Улучшенные шумовые характеристики
Нет
Вентиляция
3 варианта
Веранда
Нет
Водоотведение
Локальные очистные сооружения
Водоснабжение
Индивидуальное
Высота дома
3 м
Высота потолков
2.8 м

Планировка

Фасад дома

Александр

Закажите выезд инженера

Александр

Выездной инженер
Закажите выезд инженера для точной диагностики и профессиональной консультации по инженерным системам. Специалист приедет в удобное время, проведёт осмотр, рассчитает стоимость работ и подберёт оптимальные решения для вашего дома.


    Похожие проекты

    Ипотека и
    рассрочка
    Проект 5
    Стоимость от:
    5 191 340
    Проект от: 30 150
    Этажей 1
    Санузлы 1
    Спальни 2
    Смотреть
    Ипотека и
    рассрочка
    ЛАКЕ
    Стоимость от:
    8 808 800
    Проект от: 63 000
    Этажей 1
    Санузлы 2
    Спальни 3
    Смотреть
    Ипотека и
    рассрочка
    Каменный одноэтажный коттедж Тверь
    Стоимость от:
    22 852 280
    Проект от: 150 300
    Этажей 1
    Санузлы 3
    Спальни 4
    Смотреть
    Ипотека и
    рассрочка
    WOODY-12
    Стоимость от:
    6 214 560
    Проект от: 39 600
    Этажей 1
    Санузлы 1
    Спальни 3
    Смотреть
    Ипотека и
    рассрочка
    Каменный дом M-160
    Стоимость от:
    11 157 960
    Проект от: 71 100
    Этажей 1
    Санузлы 2
    Спальни 4
    Смотреть
    Ипотека и
    рассрочка
    Каркасный дом «Азимут»
    Стоимость от:
    6 666 550
    Проект от: 51 750
    Этажей 1
    Санузлы 2
    Спальни 3
    Смотреть

    Как узнать стоимость дома

    back
    Оставляете заявку
    Вы заполняете форму на сайте или звоните нам. Менеджер Лайвкрафт связывается с вами для уточнения деталей: тип дома, площадь, материалы, участок строительства.
    back
    Консультация и подбор решения
    Наш специалист помогает выбрать оптимальный тип дома и конструкцию с учётом бюджета, сроков и целей — будь то дом для постоянного проживания или дача.
    back
    Расчёт предварительной стоимости
    Инженер делает первичный расчёт стоимости строительства по вашим параметрам: фундамент, коробка, кровля, отделка. Вы получаете смету с разбивкой по этапам.
    back
    Корректировка и утверждение сметы
    При необходимости вносим изменения — например, замену материалов или сокращение этапов. После согласования формируется окончательная фиксированная смета.
    back
    Заключение договора и старт работ
    После утверждения сметы заключаем официальный договор с гарантией. Вы получаете прозрачный график и точную стоимость — без скрытых расходов.

    Заказать конусльтацию по:Загородный дом ROOMY 8*6

    Фото 1 Загородный дом ROOMY 8*6


      Наши
      контакты

      Дмитров
      Опорный проезд 28Б
      (индустриальный парк Ниагара)
      9:00 до 18:00