4.9
Рейтинг на основании 120 отзывов
Дмитров
Опорный проезд 28Б
(индустриальный парк Ниагара)
Бренд "Дмитров-Дело" c 2008 года на рынке строительства в Дмитрове
Звоните 9:00 до 18:00 8 (915) 055-33-61
Бренд "Дмитров-Дело" c 2008 года на рынке строительства в Дмитрове

Загородный дом СД-114

Стоимость проекта от:
45 450 ₽
Стоимость строительства от:
6 188 270 ₽
Артикул ART-12492
Дата 25.12.2025
Архитектурный стиль Классический
Количество надземных этажей 1
Круглогодичное проживание Да
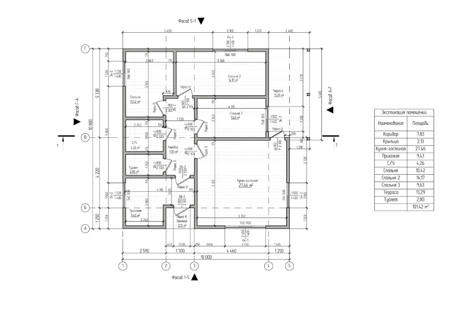
Площадь дома 101 м2
Санузлы 1
Спальни 2

Описание

Быть хозяином собственного уголка на природе никогда не было таким легким и приятным, как в загородном доме СД‑114. Его единственный надземный уровень – это просторный и светлый «головной» уровень, где каждый уголок пропитан теплом классического дизайна. В интерьере сочетается уютное ощущение старинных домов и современные удобства: от обогрева до качественной теплоизоляции – всё создано для круглогодичного проживания. На фасаде видны изящные детали традиционного аркадного стиля, а большие стеклянные окна оставляют наружу только свежий воздух, а не шум города. Особенностью этого дома является терраса, которая открывает удивительные виды на открытые пространства, окружённые зеленью. Площадь террасы – идеальное место для летних барбекю, уединенных завтраков или просто для того, чтобы наслаждаться закаты на тихой окне. Хранить вещи удобно благодаря функциональному чердачному помещению, а использование SIP‑панелей придаёт фасаду современную прочность и энергоэффективность. Крыша в вальмовой четырёхскатной конструкции не только защищает от непогоды, но и добавляет дому особый шарм, как будто он вырос прямо из сказочных старинных деревенских традиций. СД‑114 – это сочетание классической эстетики, практичности и комфорта, которое позволят вам ощутить, что каждый день в таком доме – это гармония с природой и собственным внутренним миром. И пусть ваше новое пристанище станет местом, где хочется возвращаться снова и снова.

Характеристики дома

Архитектурный стиль
Классический
Автоматизированное регулирование параметров теплоносителя
Да
Балконы/лоджии
Отсутствуют
Чердачное помещение
Да
Датчики протечки воды
Нет
Эксплуатируемая или зеленая кровля
Нет
Электроснабжение
Центральное
Газоснабжение
Не предусмотрено
Изоляция воздушного шума
Да
Камин
Нет
Класс энергоэффективности
A
Класс энергосбережения
A
Количество надземных этажей
1
Круглогодичное проживание
Да
Материал кровли
Битумная черепица
Материал перекрытий
Деревянные
Материал внешних стен
SIP-панели
Материал внутренних перегородок
Гипсокартонные
Модульное строительство с конструкциями заводского изготовления
Да
Объем надземной части
542 м3
Основной материал фасадов
Фасадная плитка
Отопление
Индивидуальное
Площадь дома
101 м2
Площадь застройки
114 м2
Подвальное помещение
Нет
Показатель компактности здания
0.82
Приборы учета тепловой энергии
Да
Пристроенный гараж/крытая автостоянка
Нет
Противопожарная система
Нет
Санузлы
1
Совмещенная кухня-гостиная
Да
Спальни
2
Терраса
Да
Тип фундамента
Свайный
Тип кровли
Четырехскатная (вальмовая)
Толщина внешних стен
174 мм
Толщина внутренних перегородок
200 мм
Улучшенные шумовые характеристики
Да
Вентиляция
Естественная
Веранда
Нет
Водоотведение
Локальные очистные сооружения
Водоснабжение
Индивидуальное
Высота дома
5.8 м
Высота потолков
2.8 м

Планировка

Фасад дома

Александр

Закажите выезд инженера

Александр

Выездной инженер
Закажите выезд инженера для точной диагностики и профессиональной консультации по инженерным системам. Специалист приедет в удобное время, проведёт осмотр, рассчитает стоимость работ и подберёт оптимальные решения для вашего дома.


    Похожие проекты

    Ипотека и
    рассрочка
    Загородный дом АС-254
    Стоимость от:
    31 986 720
    Проект от: 206 100
    Этажей 2
    Санузлы 4
    Спальни 5
    Смотреть
    Ипотека и
    рассрочка
    Университетский 109
    Стоимость от:
    8 820 680
    Проект от: 51 300
    Этажей 1
    Санузлы 2
    Спальни 3
    Смотреть
    Ипотека и
    рассрочка
    Алиса 2023
    Стоимость от:
    17 644 800
    Проект от: 108 000
    Этажей 2
    Санузлы 2
    Спальни 3
    Смотреть
    Ипотека и
    рассрочка
    КД 11-22 «Скопин»
    Стоимость от:
    3 237 080
    Проект от: 25 200
    Этажей 1
    Санузлы 1
    Спальни 2
    Смотреть
    Ипотека и
    рассрочка
    Небольшой двухэтажный дом с уютной перголой S3-97-2 (Z489)
    Стоимость от:
    7 271 280
    Проект от: 43 650
    Этажей 2
    Санузлы 2
    Спальни 3
    Смотреть
    Ипотека и
    рассрочка
    Проект ГБ-361
    Стоимость от:
    25 002 720
    Проект от: 161 100
    Этажей 2
    Санузлы 4
    Спальни 5
    Смотреть

    Как узнать стоимость дома

    back
    Оставляете заявку
    Вы заполняете форму на сайте или звоните нам. Менеджер Лайвкрафт связывается с вами для уточнения деталей: тип дома, площадь, материалы, участок строительства.
    back
    Консультация и подбор решения
    Наш специалист помогает выбрать оптимальный тип дома и конструкцию с учётом бюджета, сроков и целей — будь то дом для постоянного проживания или дача.
    back
    Расчёт предварительной стоимости
    Инженер делает первичный расчёт стоимости строительства по вашим параметрам: фундамент, коробка, кровля, отделка. Вы получаете смету с разбивкой по этапам.
    back
    Корректировка и утверждение сметы
    При необходимости вносим изменения — например, замену материалов или сокращение этапов. После согласования формируется окончательная фиксированная смета.
    back
    Заключение договора и старт работ
    После утверждения сметы заключаем официальный договор с гарантией. Вы получаете прозрачный график и точную стоимость — без скрытых расходов.

    Заказать конусльтацию по:Загородный дом СД-114

    Фото 1 Загородный дом СД-114


      Наши
      контакты

      Дмитров
      Опорный проезд 28Б
      (индустриальный парк Ниагара)
      9:00 до 18:00