4.9
Рейтинг на основании 120 отзывов
Дмитров
Опорный проезд 28Б
(индустриальный парк Ниагара)
Бренд "Дмитров-Дело" c 2008 года на рынке строительства в Дмитрове
Звоните 9:00 до 18:00 8 (915) 055-33-61
Бренд "Дмитров-Дело" c 2008 года на рынке строительства в Дмитрове

Загородный дом «Земляника»

Стоимость проекта от:
36 450 ₽
БЕСПЛАТНО! ПРИ ЗАКАЗЕ СТРОИТЕЛЬСТВА
Стоимость строительства от:
5 664 240 ₽
Артикул ART-3955
Дата 26.12.2025
Архитектурный стиль Скандинавский
Количество надземных этажей 2
Круглогодичное проживание Да
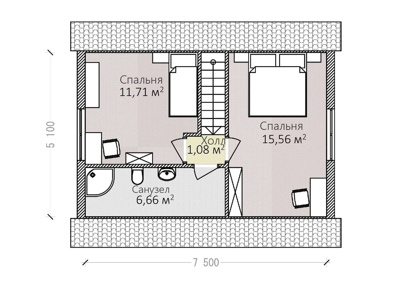
Площадь дома 81 м2
Санузлы 2
Спальни 3

Описание

Загородный дом «Земляника» — это воплощение спокойствия и лаконичной элегантности в стиле скандинавского дизайна. Двухэтажная монолитная конструкция, выполненная из железобетона, обеспечивает надежность и тепло в любой сезон: здесь можно жить круглый год, не задумываясь о перепадах погоды. Строгая гильдиская крыша, подчёркнутая простыми линиями, дополняет общую схему и подчёркивает чистоту архитектурных форм. Внутреннее пространство создано для живого взаимодействия с природой: большие окна пропускают мёдовый свет, а открытые зоны переходят в уютные уголки для семейных встреч. Отсутствие балконов, веранд и крытых стоянок не мешает ощутить в доме открытость и простоту: всё сосредоточено именно там, где вам комфортнее — в душевном интерьере и тихой, зеленой окрестности. Поскольку структура дома монолитна, шумоизоляция и теплоизоляция находятся на высоком уровне, а двускатная крыша с надёжной водонепроницаемой отделкой гарантирует уют даже в самые влажные недели. Дом «Земляника» предлагает идеальное сочетание практичности и эстетики. Изысканный скандинавский стиль, продуманное планировочное решение и высокобетонная фундация делают его идеальной недвижимостью для тех, кто ценит простоту, безопасность и гармонию с природой. Это место, где можно не просто жить, а наслаждаться каждым моментом в уютной, надёжной обстановке.

Характеристики дома

Архитектурный стиль
Автоматизированное регулирование параметров теплоносителя
Нет
Балконы/лоджии
Отсутствуют
Чердачное помещение
Нет
Датчики протечки воды
Нет
Эксплуатируемая или зеленая кровля
Нет
Электроснабжение
Центральное
Газоснабжение
Центральное
Изоляция воздушного шума
Нет
Камин
Нет
Класс энергоэффективности
-
Класс энергосбережения
-
Количество надземных этажей
2
Круглогодичное проживание
Да
Материал кровли
Металлочерепица
Материал перекрытий
Деревянные
Материал внешних стен
Материал внутренних перегородок
Гипсокартонные
Модульное строительство с конструкциями заводского изготовления
Нет
Объем надземной части
225 м3
Основной материал фасадов
Штукатурка
Отопление
Индивидуальное
Площадь дома
81 м2
Площадь застройки
56 м2
Подвальное помещение
Нет
Показатель компактности здания
-
Приборы учета тепловой энергии
Нет
Пристроенный гараж/крытая автостоянка
Нет
Противопожарная система
Нет
Санузлы
2
Совмещенная кухня-гостиная
Да
Спальни
3
Терраса
Нет
Тип фундамента
Плитный
Тип кровли
Толщина внешних стен
250 мм
Толщина внутренних перегородок
100 мм
Улучшенные шумовые характеристики
Нет
Вентиляция
Естественная
Веранда
Нет
Водоотведение
Локальные очистные сооружения
Водоснабжение
Центральное
Высота дома
8 м
Высота потолков
2.5 м

Планировка

Фасад дома

Александр

Закажите выезд инженера

Александр

Выездной инженер
Закажите выезд инженера для точной диагностики и профессиональной консультации по инженерным системам. Специалист приедет в удобное время, проведёт осмотр, рассчитает стоимость работ и подберёт оптимальные решения для вашего дома.


    Похожие проекты

    Ипотека и
    рассрочка
    Жилой дом №2
    Стоимость от:
    4 901 600
    Проект от: 36 000
    Этажей 1
    Санузлы 1
    Спальни 3
    Смотреть
    Ипотека и
    рассрочка
    Одноэтажный дом FK-110 Большие Кабаны
    Стоимость от:
    8 265 400
    Проект от: 49 500
    Этажей 1
    Санузлы 2
    Спальни 3
    Смотреть
    Ипотека и
    рассрочка
    Дом Каролина
    Стоимость от:
    4 682 205
    Проект от: 36 450
    Этажей 1
    Санузлы 1
    Спальни 2
    Смотреть
    Ипотека и
    рассрочка
    GS-100
    Стоимость от:
    7 290 140
    Проект от: 43 650
    Этажей 1
    Санузлы 2
    Спальни 3
    Смотреть
    Ипотека и
    рассрочка
    Барн ЭД-100
    Стоимость от:
    5 301 300
    Проект от: 36 900
    Этажей 2
    Санузлы 2
    Спальни 4
    Смотреть
    Ипотека и
    рассрочка
    795А «Аметист» — одноэтажный дом, 3 спальни, терраса
    Стоимость от:
    12 999 800
    Проект от: 85 500
    Этажей 1
    Санузлы 2
    Спальни 3
    Смотреть

    Как узнать стоимость дома

    back
    Оставляете заявку
    Вы заполняете форму на сайте или звоните нам. Менеджер Лайвкрафт связывается с вами для уточнения деталей: тип дома, площадь, материалы, участок строительства.
    back
    Консультация и подбор решения
    Наш специалист помогает выбрать оптимальный тип дома и конструкцию с учётом бюджета, сроков и целей — будь то дом для постоянного проживания или дача.
    back
    Расчёт предварительной стоимости
    Инженер делает первичный расчёт стоимости строительства по вашим параметрам: фундамент, коробка, кровля, отделка. Вы получаете смету с разбивкой по этапам.
    back
    Корректировка и утверждение сметы
    При необходимости вносим изменения — например, замену материалов или сокращение этапов. После согласования формируется окончательная фиксированная смета.
    back
    Заключение договора и старт работ
    После утверждения сметы заключаем официальный договор с гарантией. Вы получаете прозрачный график и точную стоимость — без скрытых расходов.

    Заказать конусльтацию по:Загородный дом «Земляника»

    Фото 1 Загородный дом «Земляника»


      Наши
      контакты

      Дмитров
      Опорный проезд 28Б
      (индустриальный парк Ниагара)
      9:00 до 18:00

      Корзина