4.9
Рейтинг на основании 120 отзывов
Дмитров
Опорный проезд 28Б
(индустриальный парк Ниагара)
Бренд "Дмитров-Дело" c 2008 года на рынке строительства в Дмитрове
Звоните 9:00 до 18:00 8 (915) 055-33-61
Бренд "Дмитров-Дело" c 2008 года на рынке строительства в Дмитрове

Запад 2- 83.28

Стоимость проекта от:
37 350 ₽
БЕСПЛАТНО! ПРИ ЗАКАЗЕ СТРОИТЕЛЬСТВА
Стоимость строительства от:
6 019 920 ₽
Артикул ART-19865
Дата 26.12.2025
Архитектурный стиль Русский
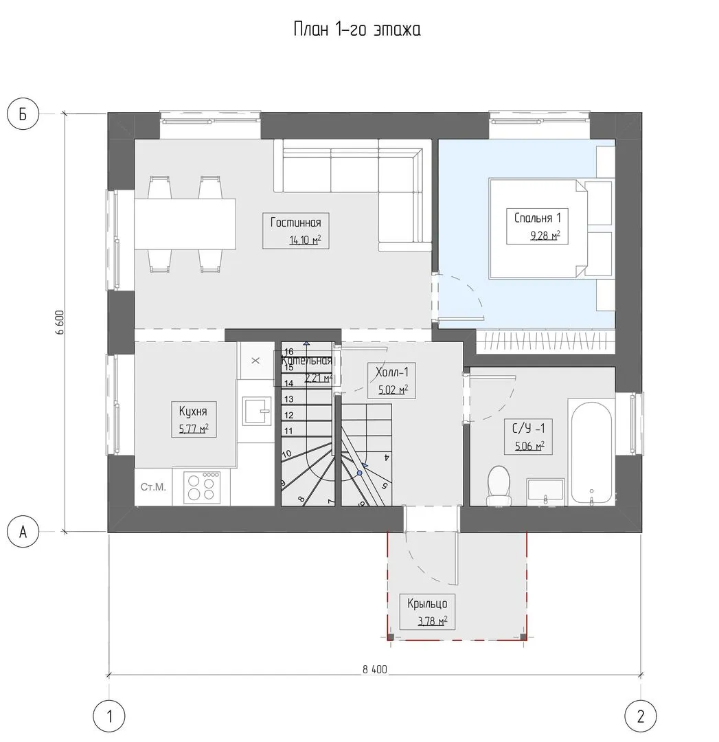
Количество надземных этажей 2
Круглогодичное проживание Да
Площадь дома 83 м2
Санузлы 1
Спальни 3

Описание

Вас ждёт уютная двухуровневая мастерская, построенная в традиционном русском стиле. Дом, завершённый в 83.28, сочетает в себе простоту и тепло классической архитектуры. Его внешняя облицовка из газобетонных блоков придаёт конструкции надёжность и изысканность, а двускатная крыша, словно два крыла, защищает от всех погодных нюансов, гарантируя круглогодичное проживание без лишних забот. Система отопления и вентилирования позволяет ощущать комфорт в любое время года – от весёлого весеннего утра до тихих зимних вечеров. Внутреннее пространство разума и душевного спокойствия. Удобное планировочное решение с достаточным количеством светло-воздушных помещений создаёт атмосферу гармонии и простора. При отсутствии балконов, веранд и гаражных помещений в дизайне сосредотачивается на максимальном использовании каждого квадратного метра: просторные коридоры, открытые комнаты, плавные переходы между зонами – всё это приглашает в дом, где каждый уголок радует глаз и дарит умиротворение. Всё, что вы ищете – уют, тепло и традиционный русский шарм – уже здесь. Этот дом – не просто место для жизни, а настоящий уголок спокойствия, где каждый день начинается с вдохновения, а завершает душевное тепло семейного очага. Позвольте себе окунуться в атмосферу дома, где прошлое встречается с будущим, а каждая деталь создана для вашего комфорта.

Характеристики дома

Архитектурный стиль
Автоматизированное регулирование параметров теплоносителя
Нет
Балконы/лоджии
Отсутствуют
Чердачное помещение
Нет
Датчики протечки воды
Нет
Эксплуатируемая или зеленая кровля
Нет
Электроснабжение
Центральное
Газоснабжение
Не предусмотрено
Изоляция воздушного шума
Нет
Камин
Нет
Класс энергоэффективности
-
Класс энергосбережения
-
Количество надземных этажей
2
Круглогодичное проживание
Да
Материал кровли
Металлочерепица
Материал перекрытий
Деревянные
Материал внешних стен
Материал внутренних перегородок
Блочные
Модульное строительство с конструкциями заводского изготовления
Нет
Объем надземной части
168 м3
Основной материал фасадов
Штукатурка
Отопление
Индивидуальное
Площадь дома
83 м2
Площадь застройки
55 м2
Подвальное помещение
Нет
Показатель компактности здания
-
Приборы учета тепловой энергии
Нет
Пристроенный гараж/крытая автостоянка
Нет
Противопожарная система
Нет
Санузлы
1
Совмещенная кухня-гостиная
Нет
Спальни
3
Терраса
Нет
Тип фундамента
Свайно-ростверковый
Тип кровли
Толщина внешних стен
300 мм
Толщина внутренних перегородок
200 мм
Улучшенные шумовые характеристики
Нет
Вентиляция
Естественная
Веранда
Нет
Водоотведение
Локальные очистные сооружения
Водоснабжение
Индивидуальное
Высота дома
7.76 м
Высота потолков
3 м

Планировка

Фасад дома

Александр

Закажите выезд инженера

Александр

Выездной инженер
Закажите выезд инженера для точной диагностики и профессиональной консультации по инженерным системам. Специалист приедет в удобное время, проведёт осмотр, рассчитает стоимость работ и подберёт оптимальные решения для вашего дома.


    Похожие проекты

    Ипотека и
    рассрочка
    Загородный дом — Тип 2
    Стоимость от:
    7 562 500
    Проект от: 42 750
    Этажей 1
    Санузлы 1
    Спальни 2
    Смотреть
    Ипотека и
    рассрочка
    Дом из CLT «Заречная»
    Стоимость от:
    2 007 120
    Проект от: 190 350
    Этажей 2
    Санузлы 3
    Спальни 6
    Смотреть
    Ипотека и
    рассрочка
    Красивый двухэтажный дом с большими балконами S-240
    Стоимость от:
    25 035 600
    Проект от: 150 750
    Этажей 2
    Санузлы 3
    Спальни 5
    Смотреть
    Ипотека и
    рассрочка
    Одноэтажный дом с гаражом ПРОРЫВ-2024
    Стоимость от:
    17 623 760
    Проект от: 102 600
    Этажей 1
    Санузлы 1
    Спальни 3
    Смотреть
    Ипотека и
    рассрочка
    Уютный дом 178
    Стоимость от:
    12 178 760
    Проект от: 80 100
    Этажей 1
    Санузлы 3
    Спальни 4
    Смотреть
    Ипотека и
    рассрочка
    Родниковые Пруды
    Стоимость от:
    11 084 040
    Проект от: 72 900
    Этажей 1
    Санузлы 3
    Спальни 3
    Смотреть

    Как узнать стоимость дома

    back
    Оставляете заявку
    Вы заполняете форму на сайте или звоните нам. Менеджер Лайвкрафт связывается с вами для уточнения деталей: тип дома, площадь, материалы, участок строительства.
    back
    Консультация и подбор решения
    Наш специалист помогает выбрать оптимальный тип дома и конструкцию с учётом бюджета, сроков и целей — будь то дом для постоянного проживания или дача.
    back
    Расчёт предварительной стоимости
    Инженер делает первичный расчёт стоимости строительства по вашим параметрам: фундамент, коробка, кровля, отделка. Вы получаете смету с разбивкой по этапам.
    back
    Корректировка и утверждение сметы
    При необходимости вносим изменения — например, замену материалов или сокращение этапов. После согласования формируется окончательная фиксированная смета.
    back
    Заключение договора и старт работ
    После утверждения сметы заключаем официальный договор с гарантией. Вы получаете прозрачный график и точную стоимость — без скрытых расходов.

    Заказать конусльтацию по:Запад 2- 83.28

    Фото 1 Запад 2- 83.28


      Наши
      контакты

      Дмитров
      Опорный проезд 28Б
      (индустриальный парк Ниагара)
      9:00 до 18:00

      Корзина