4.9
Рейтинг на основании 120 отзывов
Дмитров
Опорный проезд 28Б
(индустриальный парк Ниагара)
Бренд "Дмитров-Дело" c 2008 года на рынке строительства в Дмитрове
Звоните 9:00 до 18:00 8 (915) 055-33-61
Бренд "Дмитров-Дело" c 2008 года на рынке строительства в Дмитрове

Жилой дом 7х8

Стоимость проекта от:
21 600 ₽
БЕСПЛАТНО! ПРИ ЗАКАЗЕ СТРОИТЕЛЬСТВА
Стоимость строительства от:
3 829 760 ₽
Артикул ART-14119
Дата 25.12.2025
Архитектурный стиль Классический
Количество надземных этажей 1
Круглогодичное проживание Да
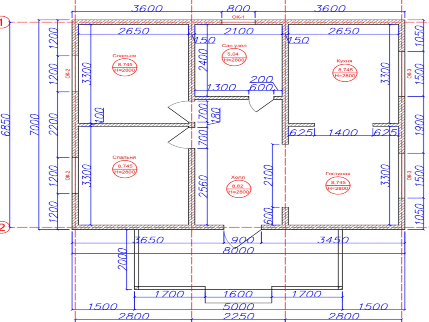
Площадь дома 48 м2
Санузлы 1
Спальни 2

Описание

Приглашаем вас узнать о нашем уютном одноэтажном семейном доме площадью 7 × 8 метров – идеальном решении для тех, кто ценит классическую элегантность в сочетании с практичностью и экономичностью. Внутри вы найдёте просторный открытому плану, прекрасно освещенный естественным светом, а наличие надземного этажа предоставляет дополнительное пространство – будь то дополнительная спальня, кабинет или уютный уголок отдыха. Круглогодичная проживаемость не подводит: SIP‑панели, используемые в наружных стенах, обеспечивают отличную тепло- и звукоизоляцию, способствуя созданию комфортного микроклимата даже в самые холодные месяцы. Дом оформлен в классическом стиле, где каждая деталь говорит о вкусе и заботе о комфорте. Отсутствие балконов и веранд не мешает вам наслаждаться природой – рядом вы найдете просторную террасу, где можно устроить летний барбекю‑пикник, а зимой – уютный уголок для чтения. Крыша выполнена в комбинированном исполнении, что сочетает в себе эстетический вид и надёжную защиту от осадков. На территории отсутствует прицепленный гараж, но компактная крытая автостоянка обеспечит удобный пристрой для вашего автомобиля, а наличие подземного уровня открывает возможности для хранения или функционального помещения – например, домашний кинотеатр, спортзал или мастерская. Всё это делает наш дом идеальным местом для постоянного проживания: от молодой пары, ищущей уютное гнездышко, до родителей, застрявших в поисках уединённой, но удобной зоны для жизни. Приезжайте, посмотрите и убедитесь, что этот дом – более чем просто пространство, это ваш новый стиль жизни.

Характеристики дома

Архитектурный стиль
Автоматизированное регулирование параметров теплоносителя
Нет
Балконы/лоджии
Отсутствуют
Чердачное помещение
Нет
Датчики протечки воды
Нет
Эксплуатируемая или зеленая кровля
Нет
Электроснабжение
Центральное
Газоснабжение
Индивидуальное
Изоляция воздушного шума
Нет
Камин
Нет
Класс энергоэффективности
-
Класс энергосбережения
-
Количество надземных этажей
1
Круглогодичное проживание
Да
Материал кровли
Металлочерепица
Материал перекрытий
Деревянные
Материал внешних стен
Материал внутренних перегородок
Гипсокартонные
Модульное строительство с конструкциями заводского изготовления
Нет
Объем надземной части
202 м3
Основной материал фасадов
Сайдинг
Отопление
Индивидуальное
Площадь дома
48 м2
Площадь застройки
66 м2
Подвальное помещение
Нет
Показатель компактности здания
-
Приборы учета тепловой энергии
Нет
Пристроенный гараж/крытая автостоянка
Нет
Противопожарная система
Нет
Санузлы
1
Совмещенная кухня-гостиная
Да
Спальни
2
Терраса
Да
Тип фундамента
Ленточный
Тип кровли
Толщина внешних стен
150 мм
Толщина внутренних перегородок
100 мм
Улучшенные шумовые характеристики
Да
Вентиляция
Естественная
Веранда
Нет
Водоотведение
Не предусмотрено
Водоснабжение
Индивидуальное
Высота дома
3.22 м
Высота потолков
2.92 м

Планировка

Фасад дома

Александр

Закажите выезд инженера

Александр

Выездной инженер
Закажите выезд инженера для точной диагностики и профессиональной консультации по инженерным системам. Специалист приедет в удобное время, проведёт осмотр, рассчитает стоимость работ и подберёт оптимальные решения для вашего дома.


    Похожие проекты

    Ипотека и
    рассрочка
    Морейн-60
    Стоимость от:
    4 664 440
    Проект от: 27 900
    Этажей 1
    Санузлы 1
    Спальни 3
    Смотреть
    Ипотека и
    рассрочка
    Рубцово
    Стоимость от:
    6 843 760
    Проект от: 50 400
    Этажей 1
    Санузлы 2
    Спальни 3
    Смотреть
    Ипотека и
    рассрочка
    Индивидуальный проект — Проводник
    Стоимость от:
    12 645 380
    Проект от: 71 550
    Этажей 1
    Санузлы 3
    Спальни 4
    Смотреть
    Ипотека и
    рассрочка
    Одноэтажный дом 130
    Стоимость от:
    10 522 380
    Проект от: 67 050
    Этажей 1
    Санузлы 1
    Спальни 3
    Смотреть
    Ипотека и
    рассрочка
    Hi-Tech M 2.0
    Стоимость от:
    14 026 100
    Проект от: 92 250
    Этажей 1
    Санузлы 2
    Спальни 3
    Смотреть
    Ипотека и
    рассрочка
    А-ФРЕЙМ FARM-VILLAGE
    Стоимость от:
    7 421 400
    Проект от: 55 800
    Этажей 2
    Санузлы 1
    Спальни 2
    Смотреть

    Как узнать стоимость дома

    back
    Оставляете заявку
    Вы заполняете форму на сайте или звоните нам. Менеджер Лайвкрафт связывается с вами для уточнения деталей: тип дома, площадь, материалы, участок строительства.
    back
    Консультация и подбор решения
    Наш специалист помогает выбрать оптимальный тип дома и конструкцию с учётом бюджета, сроков и целей — будь то дом для постоянного проживания или дача.
    back
    Расчёт предварительной стоимости
    Инженер делает первичный расчёт стоимости строительства по вашим параметрам: фундамент, коробка, кровля, отделка. Вы получаете смету с разбивкой по этапам.
    back
    Корректировка и утверждение сметы
    При необходимости вносим изменения — например, замену материалов или сокращение этапов. После согласования формируется окончательная фиксированная смета.
    back
    Заключение договора и старт работ
    После утверждения сметы заключаем официальный договор с гарантией. Вы получаете прозрачный график и точную стоимость — без скрытых расходов.

    Заказать конусльтацию по:Жилой дом 7х8

    Фото 1 Жилой дом 7х8


      Наши
      контакты

      Дмитров
      Опорный проезд 28Б
      (индустриальный парк Ниагара)
      9:00 до 18:00

      Корзина