4.9
Рейтинг на основании 120 отзывов
Дмитров
Опорный проезд 28Б
(индустриальный парк Ниагара)
Бренд "Дмитров-Дело" c 2008 года на рынке строительства в Дмитрове
Звоните 9:00 до 18:00 8 (915) 055-33-61
Бренд "Дмитров-Дело" c 2008 года на рынке строительства в Дмитрове

БарнХаус — КМ61

Стоимость проекта от:
39 150 ₽
БЕСПЛАТНО! ПРИ ЗАКАЗЕ СТРОИТЕЛЬСТВА
Стоимость строительства от:
4 851 990 ₽
Артикул ART-19364
Дата 26.12.2025
Архитектурный стиль Барнхаус
Количество надземных этажей 1
Круглогодичное проживание Да
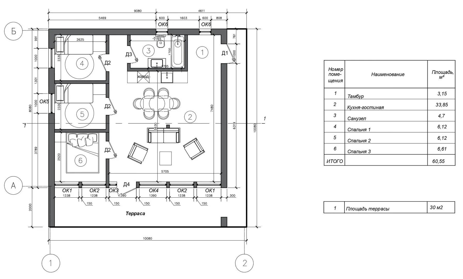
Площадь дома 87 м2
Санузлы 1
Спальни 3

Описание

*Господство над простотой и уютом воплощено в каждом измерении этого Барнхауса – дома КМ61. Один надземный этаж, открытый и светлый, предлагает уютное пространство, где каждый уголок пронизан теплом и гармонией. Круглогодичное проживание стало реальностью благодаря тщательному подходу к теплоизоляции и вентиляции, позволяющим наслаждаться комфортом даже в самые суровые дни.* *Атмосфера Барнхауса живёт в деревянном каркасном внешнем облике и живописной двускатной крыше, которые создают ощущение связи с природой и историческим наследием. Несмотря на отсутствие балконов, веранд и пристройки гаража, этот дом приглашает к релаксации на просторной террасе, где можно наслаждаться рассветом и закатами, не покидая приватного уголка.* *Идеальный баланс между функциональностью и эстетикой делает КМ61 уникальным предложением для тех, кто ценит аутентичность, тепло и надёжность. Если вы ищете дом, в котором традиции встречаются с современностью, а уют обрамлен природой, этот Барнхаус обещает стать вашим личным оазисом.*

Характеристики дома

Архитектурный стиль
Автоматизированное регулирование параметров теплоносителя
Да
Балконы/лоджии
Отсутствуют
Чердачное помещение
Нет
Датчики протечки воды
Нет
Эксплуатируемая или зеленая кровля
Нет
Электроснабжение
Центральное
Газоснабжение
Не предусмотрено
Изоляция воздушного шума
Нет
Камин
Нет
Класс энергоэффективности
-
Класс энергосбережения
-
Количество надземных этажей
1
Круглогодичное проживание
Да
Материал кровли
Фальцевая кровля Кликфальц
Материал перекрытий
Деревянные
Материал внешних стен
Материал внутренних перегородок
Деревянные
Модульное строительство с конструкциями заводского изготовления
Нет
Объем надземной части
406 м3
Основной материал фасадов
Планкен
Отопление
Индивидуальное
Площадь дома
87 м2
Площадь застройки
116 м2
Подвальное помещение
Нет
Показатель компактности здания
-
Приборы учета тепловой энергии
Нет
Пристроенный гараж/крытая автостоянка
Нет
Противопожарная система
Нет
Санузлы
1
Совмещенная кухня-гостиная
Да
Спальни
3
Терраса
Да
Тип фундамента
Свайный
Тип кровли
Толщина внешних стен
300 мм
Толщина внутренних перегородок
150 мм
Улучшенные шумовые характеристики
Да
Вентиляция
Естественная
Веранда
Нет
Водоотведение
Не предусмотрено
Водоснабжение
Не предусмотрено
Высота дома
3.9 м
Высота потолков
3.5 м

Планировка

Фасад дома

Александр

Закажите выезд инженера

Александр

Выездной инженер
Закажите выезд инженера для точной диагностики и профессиональной консультации по инженерным системам. Специалист приедет в удобное время, проведёт осмотр, рассчитает стоимость работ и подберёт оптимальные решения для вашего дома.


    Похожие проекты

    Ипотека и
    рассрочка
    Одноэтажный дом размером 9*12
    Стоимость от:
    8 594 960
    Проект от: 48 600
    Этажей 1
    Санузлы 1
    Спальни 3
    Смотреть
    Ипотека и
    рассрочка
    Дом из сборного железобетона FP-8 «Optima»
    Стоимость от:
    7 115 680
    Проект от: 46 800
    Этажей 1
    Санузлы 1
    Спальни 3
    Смотреть
    Ипотека и
    рассрочка
    Двухэтажное Шале 220м2
    Стоимость от:
    580 800
    Проект от: 99 000
    Этажей 2
    Санузлы 3
    Спальни 5
    Смотреть
    Ипотека и
    рассрочка
    Одноэтажный дом FIXPLANS — 2249
    Стоимость от:
    14 830 200
    Проект от: 94 500
    Этажей 1
    Санузлы 2
    Спальни 3
    Смотреть
    Ипотека и
    рассрочка
    Одноэтажный дом Мария
    Стоимость от:
    3 924 910
    Проект от: 27 900
    Этажей 1
    Санузлы 1
    Спальни 2
    Смотреть
    Ипотека и
    рассрочка
    Одноэтажный дом FIXPLANS — 1556
    Стоимость от:
    11 087 340
    Проект от: 70 650
    Этажей 1
    Санузлы 2
    Спальни 3
    Смотреть

    Как узнать стоимость дома

    back
    Оставляете заявку
    Вы заполняете форму на сайте или звоните нам. Менеджер Лайвкрафт связывается с вами для уточнения деталей: тип дома, площадь, материалы, участок строительства.
    back
    Консультация и подбор решения
    Наш специалист помогает выбрать оптимальный тип дома и конструкцию с учётом бюджета, сроков и целей — будь то дом для постоянного проживания или дача.
    back
    Расчёт предварительной стоимости
    Инженер делает первичный расчёт стоимости строительства по вашим параметрам: фундамент, коробка, кровля, отделка. Вы получаете смету с разбивкой по этапам.
    back
    Корректировка и утверждение сметы
    При необходимости вносим изменения — например, замену материалов или сокращение этапов. После согласования формируется окончательная фиксированная смета.
    back
    Заключение договора и старт работ
    После утверждения сметы заключаем официальный договор с гарантией. Вы получаете прозрачный график и точную стоимость — без скрытых расходов.

    Заказать конусльтацию по:БарнХаус — КМ61

    Фото 1 БарнХаус — КМ61


      Наши
      контакты

      Дмитров
      Опорный проезд 28Б
      (индустриальный парк Ниагара)
      9:00 до 18:00

      Корзина