4.9
Рейтинг на основании 120 отзывов
Дмитров
Опорный проезд 28Б
(индустриальный парк Ниагара)
Бренд "Дмитров-Дело" c 2008 года на рынке строительства в Дмитрове
Звоните 9:00 до 18:00 8 (915) 055-33-61
Бренд "Дмитров-Дело" c 2008 года на рынке строительства в Дмитрове

Дом с мансардным этажом «Лелия 2.0»

Стоимость проекта от:
42 300 ₽
Стоимость строительства от:
6 564 960 ₽
Артикул ART-14359
Дата 25.12.2025
Архитектурный стиль Европейский
Количество надземных этажей 2
Круглогодичное проживание Да
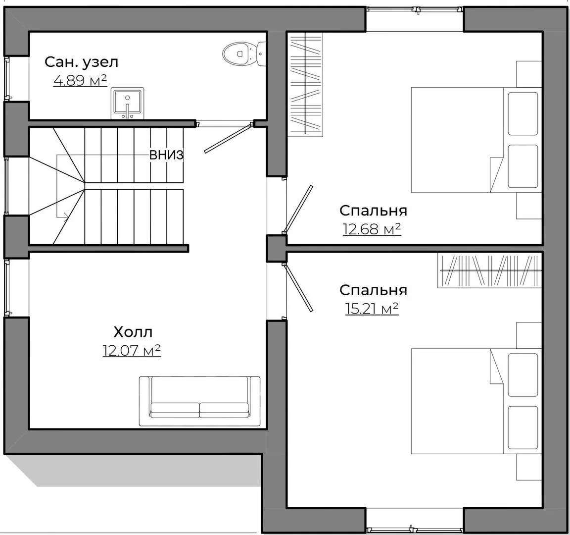
Площадь дома 94 м2
Санузлы 2
Спальни 2

Описание

Дом «Лелия 2.0» – это очарование европейской классики, переплетённая с современными решениями. Он расположен на двух надземных этажах, а мансардный этаж добавляет уникальной гибкости — просторные комнатные зоны, которые можно превратить в уютную гостиную, кабинет или детскую комнату. В доме предусмотрено круглогодичное проживание: тепло и теплоизоляция благодаря газобетонным блокам внешних стен и комбинированной кровле гарантируют комфорт даже в самые прохладные дни. Эстетика европейского стиля проявляется в аккуратных линиях фасада и тщательно продуманной детализации. Холодные отголоски стиля сочетает теплоту натуральных материалов, создавая неповторимую атмосферу уюта. Несмотря на отсутствие балконов, лоджий, веранд и крытых стоянок, пространство дома раскрывает свои возможности: светлые, открытые планировки, большие окна и плавные переходы между помещениями делают каждый момент жизни здесь особенным. «Лелия 2.0» – это не просто дом, а приглашение к жизни, где традиции встречаются с комфортом и функциональностью. Уютный мансардный этаж, качественные материалы и продуманный дизайн создают идеальные условия для семьи, где каждый день наполнен теплом и гармонией.

Характеристики дома

Архитектурный стиль
Европейский
Автоматизированное регулирование параметров теплоносителя
Нет
Балконы/лоджии
Отсутствуют
Чердачное помещение
Нет
Датчики протечки воды
Нет
Эксплуатируемая или зеленая кровля
Нет
Электроснабжение
Индивидуальное
Газоснабжение
Индивидуальное
Изоляция воздушного шума
Нет
Камин
Нет
Класс энергоэффективности
-
Класс энергосбережения
-
Количество надземных этажей
2
Круглогодичное проживание
Да
Материал кровли
Металлочерепица
Материал перекрытий
Сборные железобетонные многопустотные плиты
Материал внешних стен
Газобетонные блоки
Материал внутренних перегородок
Блочные
Модульное строительство с конструкциями заводского изготовления
Нет
Объем надземной части
-
Основной материал фасадов
Штукатурка
Отопление
Индивидуальное
Площадь дома
94 м2
Площадь застройки
133 м2
Подвальное помещение
Нет
Показатель компактности здания
-
Приборы учета тепловой энергии
Нет
Пристроенный гараж/крытая автостоянка
Нет
Противопожарная система
Нет
Санузлы
2
Совмещенная кухня-гостиная
Да
Спальни
2
Терраса
Нет
Тип фундамента
Плитный
Тип кровли
Комбинированная
Толщина внешних стен
375 мм
Толщина внутренних перегородок
100 мм
Улучшенные шумовые характеристики
Нет
Вентиляция
Естественная
Веранда
Нет
Водоотведение
Локальные очистные сооружения
Водоснабжение
Индивидуальное
Высота дома
7.12 м
Высота потолков
2.75 м

Планировка

Фасад дома

Александр

Закажите выезд инженера

Александр

Выездной инженер
Закажите выезд инженера для точной диагностики и профессиональной консультации по инженерным системам. Специалист приедет в удобное время, проведёт осмотр, рассчитает стоимость работ и подберёт оптимальные решения для вашего дома.


    Похожие проекты

    Ипотека и
    рассрочка
    Проект одноэтажного каменного дома с тремя спальнями S3-101-2 (Z332 D)
    Стоимость от:
    8 039 020
    Проект от: 45 450
    Этажей 1
    Санузлы 3
    Спальни 3
    Смотреть
    Ипотека и
    рассрочка
    Одноэтажный Дом Арти
    Стоимость от:
    6 748 170
    Проект от: 54 450
    Этажей 1
    Санузлы 2
    Спальни 2
    Смотреть
    Ипотека и
    рассрочка
    Индивидуальный жилой дом проекта БАРН 106
    Стоимость от:
    6 116 550
    Проект от: 49 500
    Этажей 1
    Санузлы 1
    Спальни 3
    Смотреть
    Ипотека и
    рассрочка
    SV-90M
    Стоимость от:
    8 865 560
    Проект от: 53 100
    Этажей 1
    Санузлы 2
    Спальни 3
    Смотреть
    Ипотека и
    рассрочка
    Проект Одноэтажный дом в Скандинавском стиле РК-120
    Стоимость от:
    8 347 240
    Проект от: 54 900
    Этажей 1
    Санузлы 2
    Спальни 3
    Смотреть
    Ипотека и
    рассрочка
    Дом из кирпича 140 м/2
    Стоимость от:
    11 136 400
    Проект от: 63 000
    Этажей 1
    Санузлы 2
    Спальни 3
    Смотреть

    Как узнать стоимость дома

    back
    Оставляете заявку
    Вы заполняете форму на сайте или звоните нам. Менеджер Лайвкрафт связывается с вами для уточнения деталей: тип дома, площадь, материалы, участок строительства.
    back
    Консультация и подбор решения
    Наш специалист помогает выбрать оптимальный тип дома и конструкцию с учётом бюджета, сроков и целей — будь то дом для постоянного проживания или дача.
    back
    Расчёт предварительной стоимости
    Инженер делает первичный расчёт стоимости строительства по вашим параметрам: фундамент, коробка, кровля, отделка. Вы получаете смету с разбивкой по этапам.
    back
    Корректировка и утверждение сметы
    При необходимости вносим изменения — например, замену материалов или сокращение этапов. После согласования формируется окончательная фиксированная смета.
    back
    Заключение договора и старт работ
    После утверждения сметы заключаем официальный договор с гарантией. Вы получаете прозрачный график и точную стоимость — без скрытых расходов.

    Заказать конусльтацию по:Дом с мансардным этажом «Лелия 2.0»

    Фото 1 Дом с мансардным этажом «Лелия 2.0»


      Наши
      контакты

      Дмитров
      Опорный проезд 28Б
      (индустриальный парк Ниагара)
      9:00 до 18:00