Индивидуальный жилой дом 4
Описание
Если вы мечтаете о просторном, цельном пространстве с современным обликом и при этом тёплой, уютной атмосферой — этот индивидуальный дом станет отличным выбором.
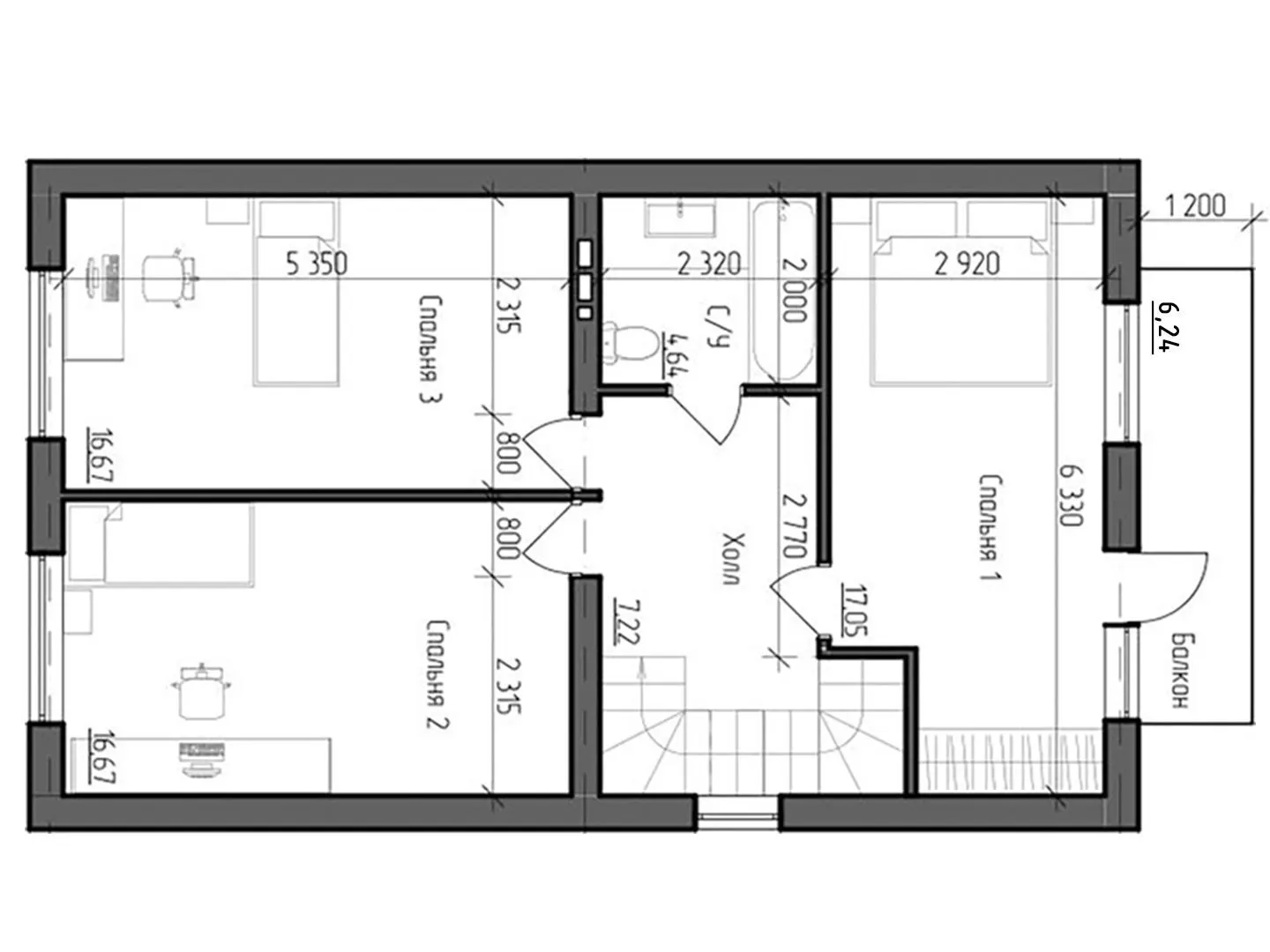
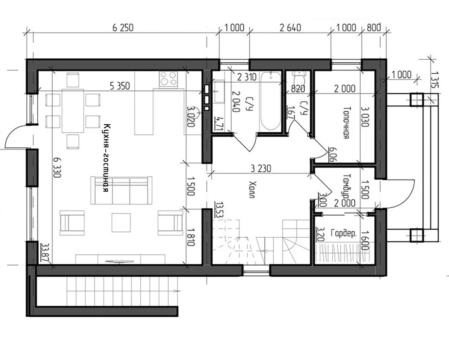
Два надземных этажа грамотно спланированы: каждый метр работает на комфорт. Открытая планировка гостиной и кухни располагает к общению и совместному отдыху, а увеличенная высота потолков усиливает ощущение свободы и воздуха.
Архитектурный стиль минимализм подчёркивает чистоту линий и лаконичность форм. Дом выглядит актуально и спокойно, без лишней визуальной нагрузки. Газобетонные блоки обеспечивают прочность, энергоэффективность и хорошую теплоизоляцию, благодаря чему в доме комфортно в любое время года.
Двускатная крыша придаёт характер и завершённость образу. Одна стильная балкон-лоджия открывает вид на улицу — отличное место, чтобы подышать свежим воздухом или провести вечер за наблюдением заката.
В проекте отсутствуют веранда, гараж и чердачное помещение. За счёт этого полезная площадь максимально ориентирована на жилые зоны и повседневные потребности.
Этот дом — сочетание современного минимализма, практичности и тёплой атмосферы. Он легко адаптируется под ваши желания и оставляет простор для индивидуальных решений. Если вы ищете не просто жильё, а комфортную среду для жизни каждый день — этот проект станет удачным и продуманным выбором.
Характеристики дома
Категории проекта
Закажите выезд инженера
Александр
Выездной инженерКак узнать стоимость дома
Заказать конусльтацию по:Индивидуальный жилой дом 4
Наши
контакты
Опорный проезд 28Б
(индустриальный парк Ниагара)