4.9
Рейтинг на основании 120 отзывов
Дмитров
Опорный проезд 28Б
(индустриальный парк Ниагара)
Бренд "Дмитров-Дело" c 2008 года на рынке строительства в Дмитрове
Звоните 9:00 до 18:00 8 (915) 055-33-61
Бренд "Дмитров-Дело" c 2008 года на рынке строительства в Дмитрове

Кирпичный шале

Стоимость проекта от:
62 100 ₽
БЕСПЛАТНО! ПРИ ЗАКАЗЕ СТРОИТЕЛЬСТВА
Стоимость строительства от:
9 472 320 ₽
Артикул ART-17173
Дата 26.12.2025
Архитектурный стиль Шале
Количество надземных этажей 2
Круглогодичное проживание Да
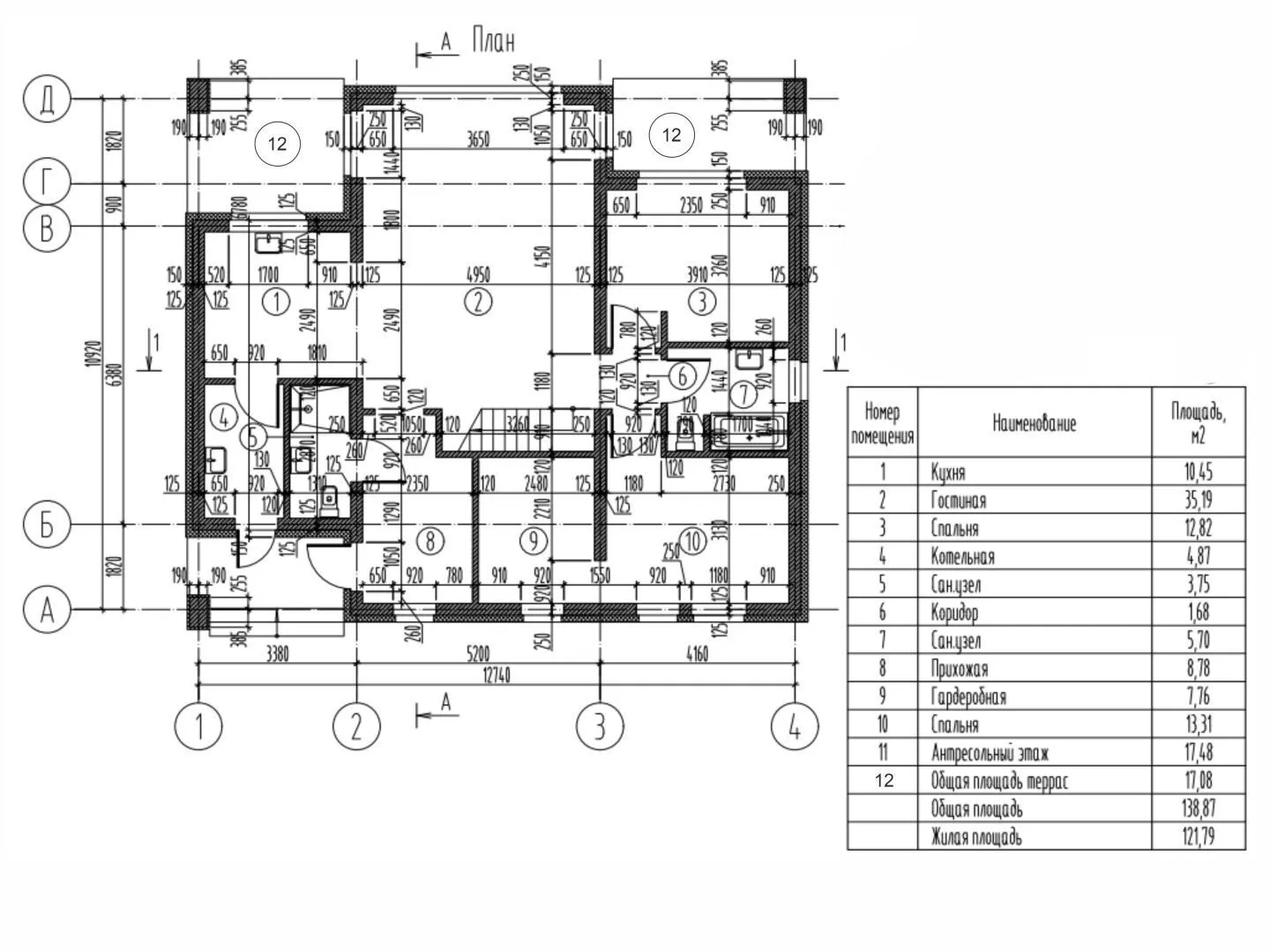
Площадь дома 138 м2
Санузлы 2
Спальни 3

Описание

Погрузитесь в уют и тепло настоящего шале, который превратит ваш дом в уголок сказки. Этот кирпичный шале сочетает в себе традиционный шарм европейского стиля и современную функциональность: два надземных этажа дают простор для каждой комнаты, а круглогодичное проживание обеспечит комфорт даже в самые прохладные дни. Классический двускатный крытый профиль, украшенный качественными материалами, создаёт ощущение устойчивости и гармонии с природой. Внутри дома каждая деталь продумана до мелочей: от теплых деревянных полок до уютных световых ниш, где будут располагаться ваши любимые предметы. Отсутствие лоджий и веранд не мешает почувствовать свежесть и лёгкость, ведь просторная терраса станет вашим личным балконом, открывающим великолепные виды и приглашая к непринуждённым разговорам под звёздами. На фасаде кирпич подчёркивает прочность и надёжность, а отсутствие прицепленного гаража позволяет использовать пространство полностью под ваши нужды. Этот шале – идеальный выбор для тех, кто ценит классический дизайн, желает жить в гармонии с природой и ищет идеальное сочетание уюта, практичности и эстетики. Добро пожаловать в ваш новый дом, где каждый уголок – это приглашение к уюту и радостным моментам.

Характеристики дома

Архитектурный стиль
Автоматизированное регулирование параметров теплоносителя
Нет
Балконы/лоджии
Отсутствуют
Чердачное помещение
Нет
Датчики протечки воды
Нет
Эксплуатируемая или зеленая кровля
Нет
Электроснабжение
Центральное
Газоснабжение
Не предусмотрено
Изоляция воздушного шума
Нет
Камин
Нет
Класс энергоэффективности
-
Класс энергосбережения
-
Количество надземных этажей
2
Круглогодичное проживание
Да
Материал кровли
Металлические листовые гофрированные профили
Материал перекрытий
Деревянные
Материал внешних стен
Материал внутренних перегородок
Кирпичные
Модульное строительство с конструкциями заводского изготовления
Нет
Объем надземной части
747 м3
Основной материал фасадов
Штукатурка
Отопление
Индивидуальное
Площадь дома
138 м2
Площадь застройки
138 м2
Подвальное помещение
Нет
Показатель компактности здания
-
Приборы учета тепловой энергии
Нет
Пристроенный гараж/крытая автостоянка
Нет
Противопожарная система
Нет
Санузлы
2
Совмещенная кухня-гостиная
Да
Спальни
3
Терраса
Да
Тип фундамента
Плитный
Тип кровли
Толщина внешних стен
400 мм
Толщина внутренних перегородок
120 мм
Улучшенные шумовые характеристики
Нет
Вентиляция
Естественная
Веранда
Нет
Водоотведение
Локальные очистные сооружения
Водоснабжение
Индивидуальное
Высота дома
6.4 м
Высота потолков
3.96 м

Планировка

Фасад дома

Александр

Закажите выезд инженера

Александр

Выездной инженер
Закажите выезд инженера для точной диагностики и профессиональной консультации по инженерным системам. Специалист приедет в удобное время, проведёт осмотр, рассчитает стоимость работ и подберёт оптимальные решения для вашего дома.


    Похожие проекты

    Ипотека и
    рассрочка
    Одноэтажный дом из бруса СЕМЕЙНЫЙ
    Стоимость от:
    5 444 230
    Проект от: 38 700
    Этажей 1
    Санузлы 1
    Спальни 3
    Смотреть
    Ипотека и
    рассрочка
    Индивидуальный жилой проект ОС-24-33
    Стоимость от:
    11 374 660
    Проект от: 64 350
    Этажей 1
    Санузлы 1
    Спальни 3
    Смотреть
    Ипотека и
    рассрочка
    Загородный дом Флокс
    Стоимость от:
    7 440 180
    Проект от: 44 550
    Этажей 1
    Санузлы 1
    Спальни 3
    Смотреть
    Ипотека и
    рассрочка
    Проект 80м2
    Стоимость от:
    5 838 800
    Проект от: 36 000
    Этажей 1
    Санузлы 2
    Спальни 3
    Смотреть
    Ипотека и
    рассрочка
    Загородный дом PRO-86
    Стоимость от:
    7 389 360
    Проект от: 48 600
    Этажей 1
    Санузлы 1
    Спальни 3
    Смотреть
    Ипотека и
    рассрочка
    П 1-95
    Стоимость от:
    6 355 800
    Проект от: 40 500
    Этажей 1
    Санузлы 1
    Спальни 3
    Смотреть

    Как узнать стоимость дома

    back
    Оставляете заявку
    Вы заполняете форму на сайте или звоните нам. Менеджер Лайвкрафт связывается с вами для уточнения деталей: тип дома, площадь, материалы, участок строительства.
    back
    Консультация и подбор решения
    Наш специалист помогает выбрать оптимальный тип дома и конструкцию с учётом бюджета, сроков и целей — будь то дом для постоянного проживания или дача.
    back
    Расчёт предварительной стоимости
    Инженер делает первичный расчёт стоимости строительства по вашим параметрам: фундамент, коробка, кровля, отделка. Вы получаете смету с разбивкой по этапам.
    back
    Корректировка и утверждение сметы
    При необходимости вносим изменения — например, замену материалов или сокращение этапов. После согласования формируется окончательная фиксированная смета.
    back
    Заключение договора и старт работ
    После утверждения сметы заключаем официальный договор с гарантией. Вы получаете прозрачный график и точную стоимость — без скрытых расходов.

    Заказать конусльтацию по:Кирпичный шале

    Фото 1 Кирпичный шале


      Наши
      контакты

      Дмитров
      Опорный проезд 28Б
      (индустриальный парк Ниагара)
      9:00 до 18:00

      Корзина