4.9
Рейтинг на основании 120 отзывов
Дмитров
Опорный проезд 28Б
(индустриальный парк Ниагара)
Бренд "Дмитров-Дело" c 2008 года на рынке строительства в Дмитрове
Звоните 9:00 до 18:00 8 (915) 055-33-61
Бренд "Дмитров-Дело" c 2008 года на рынке строительства в Дмитрове

Одноэтажный проект Эльм 91

Стоимость проекта от:
48 150 ₽
Стоимость строительства от:
7 320 940 ₽
Артикул ART-6564
Дата 26.12.2025
Архитектурный стиль Европейский
Количество надземных этажей 1
Круглогодичное проживание Да
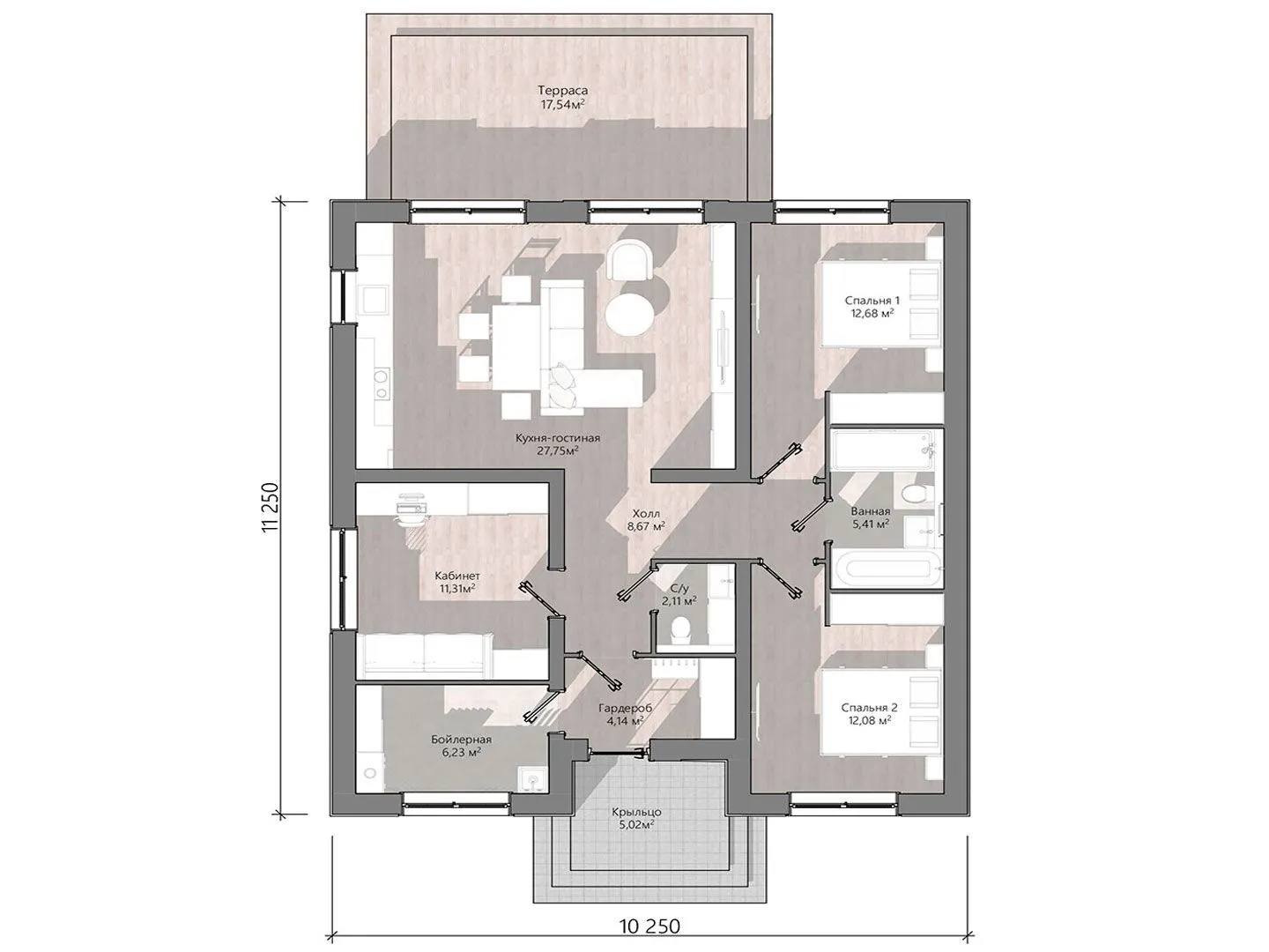
Площадь дома 107 м2
Санузлы 2
Спальни 2

Описание

Дом‑проект «Эльм 91» – это элегантное сочетание европейской классики и современного комфорта, созданное специально для тех, кто ценит уют и функциональность. Одноэтажная планировка и четыре‑скатная вальмовая крыша придают зданию строгую, но одновременно теплую структуру, способную адаптироваться к погодным условиям любого времени года. Газобетонные блоки наружных стен обеспечивают неприхотливое утепление, а ровные, аккуратные линии фасада смотрятся привлекательно даже с большим расстояния. Внутри каждый коридор, каждый уголок пронизан атмосферой спокойствия и уюта. Просторные, светлые помещения легко превращаются в индивидуальный дизайн‑студий, гостинные, рабочие зоны или детские игровые комнаты. Отсутствие гаража и привередливых веранд не отнимает комфорта – вы легко организуете хранение техники на прилегающей территории, а терраса, открывшаяся из крыша, предоставляет прекрасное место для отдыха на свежем воздухе и романтических вечеров в тени осенних деревьев. Проект «Эльм 91» – это идеальный выбор для семей, стремящихся к гармоничному сочетанию практичности и эстетики. Его универсальный план, безупречное качество материалов и продуманное расположение – всё, что нужно, чтобы превратить обычный дом в настоящее пространство для жизни, где каждый день начинается с улыбки. Ваш новый дом уже ждёт, чтобы рассказать эту историю, а вы — чтобы стать его главным героем.

Характеристики дома

Архитектурный стиль
Европейский
Автоматизированное регулирование параметров теплоносителя
Нет
Балконы/лоджии
Отсутствуют
Чердачное помещение
Нет
Датчики протечки воды
Нет
Эксплуатируемая или зеленая кровля
Нет
Электроснабжение
Индивидуальное
Газоснабжение
Индивидуальное
Изоляция воздушного шума
Нет
Камин
Нет
Класс энергоэффективности
-
Класс энергосбережения
-
Количество надземных этажей
1
Круглогодичное проживание
Да
Материал кровли
Керамическая черепица
Материал перекрытий
Деревянные
Материал внешних стен
Газобетонные блоки
Материал внутренних перегородок
Блочные
Модульное строительство с конструкциями заводского изготовления
Нет
Объем надземной части
523 м3
Основной материал фасадов
Штукатурка
Отопление
Индивидуальное
Площадь дома
107 м2
Площадь застройки
116 м2
Подвальное помещение
Нет
Показатель компактности здания
-
Приборы учета тепловой энергии
Нет
Пристроенный гараж/крытая автостоянка
Нет
Противопожарная система
Нет
Санузлы
2
Совмещенная кухня-гостиная
Да
Спальни
2
Терраса
Да
Тип фундамента
Плитный
Тип кровли
Четырехскатная (вальмовая)
Толщина внешних стен
450 мм
Толщина внутренних перегородок
100 мм
Улучшенные шумовые характеристики
Нет
Вентиляция
2 варианта
Веранда
Нет
Водоотведение
Локальные очистные сооружения
Водоснабжение
Индивидуальное
Высота дома
4.5 м
Высота потолков
3.7 м

Планировка

Фасад дома

Александр

Закажите выезд инженера

Александр

Выездной инженер
Закажите выезд инженера для точной диагностики и профессиональной консультации по инженерным системам. Специалист приедет в удобное время, проведёт осмотр, рассчитает стоимость работ и подберёт оптимальные решения для вашего дома.


    Похожие проекты

    Ипотека и
    рассрочка
    Одноэтажный барнхаус с сауной LATO-80 Sauna
    Стоимость от:
    3 558 720
    Проект от: 28 800
    Этажей 1
    Санузлы 1
    Спальни 2
    Смотреть
    Ипотека и
    рассрочка
    Каркасный дом по проекту Барн 5
    Стоимость от:
    4 995 000
    Проект от: 38 250
    Этажей 2
    Санузлы 2
    Спальни 3
    Смотреть
    Ипотека и
    рассрочка
    Дом из клееного бруса «Фрибур»
    Стоимость от:
    7 172 110
    Проект от: 50 850
    Этажей 1
    Санузлы 1
    Спальни 3
    Смотреть
    Ипотека и
    рассрочка
    Дом с баней из клееного бруса
    Стоимость от:
    12 059 300
    Проект от: 85 500
    Этажей 1
    Санузлы 2
    Спальни 2
    Смотреть
    Ипотека и
    рассрочка
    Фаворит 6х8
    Стоимость от:
    5 027 400
    Проект от: 37 800
    Этажей 2
    Санузлы 1
    Спальни 4
    Смотреть
    Ипотека и
    рассрочка
    Современный одноэтажный дом без гаража S3-147-5 (ZX103 bG)
    Стоимость от:
    16 619 900
    Проект от: 96 750
    Этажей 1
    Санузлы 2
    Спальни 3
    Смотреть

    Как узнать стоимость дома

    back
    Оставляете заявку
    Вы заполняете форму на сайте или звоните нам. Менеджер Лайвкрафт связывается с вами для уточнения деталей: тип дома, площадь, материалы, участок строительства.
    back
    Консультация и подбор решения
    Наш специалист помогает выбрать оптимальный тип дома и конструкцию с учётом бюджета, сроков и целей — будь то дом для постоянного проживания или дача.
    back
    Расчёт предварительной стоимости
    Инженер делает первичный расчёт стоимости строительства по вашим параметрам: фундамент, коробка, кровля, отделка. Вы получаете смету с разбивкой по этапам.
    back
    Корректировка и утверждение сметы
    При необходимости вносим изменения — например, замену материалов или сокращение этапов. После согласования формируется окончательная фиксированная смета.
    back
    Заключение договора и старт работ
    После утверждения сметы заключаем официальный договор с гарантией. Вы получаете прозрачный график и точную стоимость — без скрытых расходов.

    Заказать конусльтацию по:Одноэтажный проект Эльм 91

    Фото 1 Одноэтажный проект Эльм 91


      Наши
      контакты

      Дмитров
      Опорный проезд 28Б
      (индустриальный парк Ниагара)
      9:00 до 18:00

      Корзина