4.9
Рейтинг на основании 120 отзывов
Дмитров
Опорный проезд 28Б
(индустриальный парк Ниагара)
Бренд "Дмитров-Дело" c 2008 года на рынке строительства в Дмитрове
Звоните 9:00 до 18:00 8 (915) 055-33-61
Бренд "Дмитров-Дело" c 2008 года на рынке строительства в Дмитрове

П2

Стоимость проекта от:
38 250 ₽
БЕСПЛАТНО! ПРИ ЗАКАЗЕ СТРОИТЕЛЬСТВА
Стоимость строительства от:
6 389 900 ₽
Артикул ART-19047
Дата 26.12.2025
Архитектурный стиль Скандинавский
Количество надземных этажей 1
Круглогодичное проживание Да
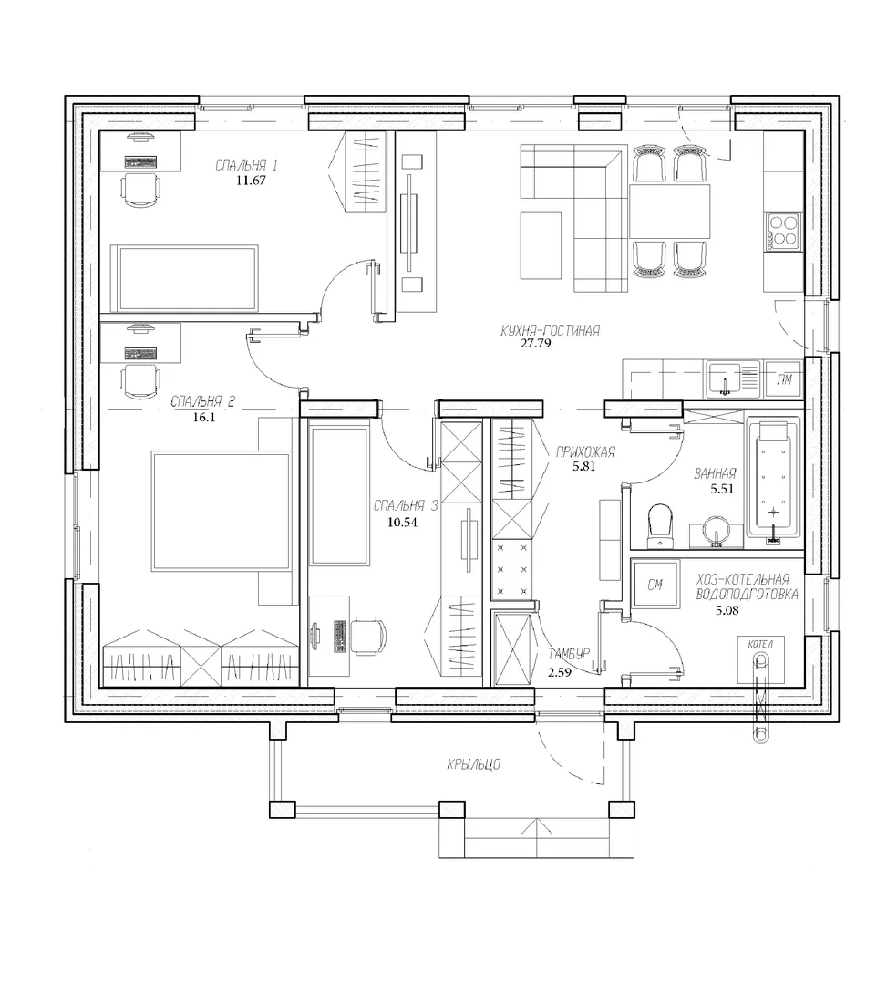
Площадь дома 85 м2
Санузлы 1
Спальни 3

Описание

Наслаждайтесь уютом шведской простоты в этом доме в стиле скандинавской архитектуры. Его один надземный этаж, выстроенный из прочного кирпича, создаёт ощущение надёжности и гармонии с природой. Стеклянные окна пропускают максимум естественного света, подчёркивая светлые, открытые интерьеры, где каждая деталь продумана до мелочей: от светлой отделки до функциональных планировок, позволяющих адаптировать пространство под любые нужды. Зима и лето одинаково теплы; качественная теплоизоляция и два крыла дома защищают от холодных ветров и жаркого летнего солнца, создавая в помещении комфорт в любое время года. На крыше открывается уютное чердачное помещение, идеальное для создания дополнительной мастерской, спальни для гостей или просто места для творчества. Больше, чем просто дом — это пространство, где каждая деталь говорит о желании простоты, чистоты линий и функциональности. Он приглашает к спокойному, но насыщенному проживанию, воплощая в себе все достоинства скандинавского стиля с практичностью и простотой. Приглашаем увидеть, как уют и стиль становятся вашими повседневными спутниками.

Характеристики дома

Архитектурный стиль
Автоматизированное регулирование параметров теплоносителя
Нет
Балконы/лоджии
Отсутствуют
Чердачное помещение
Да
Датчики протечки воды
Нет
Эксплуатируемая или зеленая кровля
Нет
Электроснабжение
Центральное
Газоснабжение
Центральное
Изоляция воздушного шума
Нет
Камин
Нет
Класс энергоэффективности
-
Класс энергосбережения
-
Количество надземных этажей
1
Круглогодичное проживание
Да
Материал кровли
Металлочерепица
Материал перекрытий
Деревянные
Материал внешних стен
Материал внутренних перегородок
Кирпичные
Модульное строительство с конструкциями заводского изготовления
Нет
Объем надземной части
-
Основной материал фасадов
Сайдинг
Отопление
Индивидуальное
Площадь дома
85 м2
Площадь застройки
93 м2
Подвальное помещение
Нет
Показатель компактности здания
-
Приборы учета тепловой энергии
Нет
Пристроенный гараж/крытая автостоянка
Нет
Противопожарная система
Нет
Санузлы
1
Совмещенная кухня-гостиная
Да
Спальни
3
Терраса
Нет
Тип фундамента
Свайно-ростверковый
Тип кровли
Толщина внешних стен
530 мм
Толщина внутренних перегородок
120 мм
Улучшенные шумовые характеристики
Да
Вентиляция
Принудительная
Веранда
Нет
Водоотведение
Локальные очистные сооружения
Водоснабжение
Индивидуальное
Высота дома
5 м
Высота потолков
2.8 м

Планировка

Фасад дома

Александр

Закажите выезд инженера

Александр

Выездной инженер
Закажите выезд инженера для точной диагностики и профессиональной консультации по инженерным системам. Специалист приедет в удобное время, проведёт осмотр, рассчитает стоимость работ и подберёт оптимальные решения для вашего дома.


    Похожие проекты

    Ипотека и
    рассрочка
    Дом с гаражом “HAVEN»
    Стоимость от:
    14 213 100
    Проект от: 87 750
    Этажей 1
    Санузлы 2
    Спальни 4
    Смотреть
    Ипотека и
    рассрочка
    Одноэтажный дом размером 9*12
    Стоимость от:
    8 594 960
    Проект от: 48 600
    Этажей 1
    Санузлы 1
    Спальни 3
    Смотреть
    Ипотека и
    рассрочка
    Одноэтажный дом Голландия
    Стоимость от:
    11 056 980
    Проект от: 62 550
    Этажей 1
    Санузлы 2
    Спальни 3
    Смотреть
    Ипотека и
    рассрочка
    Одноэтажный дом FIXPLANS — 2231
    Стоимость от:
    9 578 800
    Проект от: 63 000
    Этажей 1
    Санузлы 2
    Спальни 3
    Смотреть
    Ипотека и
    рассрочка
    Загородный дом из газобетона «S»
    Стоимость от:
    8 923 200
    Проект от: 58 500
    Этажей 2
    Санузлы 2
    Спальни 3
    Смотреть
    Ипотека и
    рассрочка
    Одноэтажный дом СКАЙ-75
    Стоимость от:
    5 296 500
    Проект от: 33 750
    Этажей 1
    Санузлы 2
    Спальни 2
    Смотреть

    Как узнать стоимость дома

    back
    Оставляете заявку
    Вы заполняете форму на сайте или звоните нам. Менеджер Лайвкрафт связывается с вами для уточнения деталей: тип дома, площадь, материалы, участок строительства.
    back
    Консультация и подбор решения
    Наш специалист помогает выбрать оптимальный тип дома и конструкцию с учётом бюджета, сроков и целей — будь то дом для постоянного проживания или дача.
    back
    Расчёт предварительной стоимости
    Инженер делает первичный расчёт стоимости строительства по вашим параметрам: фундамент, коробка, кровля, отделка. Вы получаете смету с разбивкой по этапам.
    back
    Корректировка и утверждение сметы
    При необходимости вносим изменения — например, замену материалов или сокращение этапов. После согласования формируется окончательная фиксированная смета.
    back
    Заключение договора и старт работ
    После утверждения сметы заключаем официальный договор с гарантией. Вы получаете прозрачный график и точную стоимость — без скрытых расходов.

    Заказать конусльтацию по:П2

    Фото 1 П2


      Наши
      контакты

      Дмитров
      Опорный проезд 28Б
      (индустриальный парк Ниагара)
      9:00 до 18:00

      Корзина