4.9
Рейтинг на основании 120 отзывов
Дмитров
Опорный проезд 28Б
(индустриальный парк Ниагара)
Бренд "Дмитров-Дело" c 2008 года на рынке строительства в Дмитрове
Звоните 9:00 до 18:00 8 (915) 055-33-61
Бренд "Дмитров-Дело" c 2008 года на рынке строительства в Дмитрове

Сказка

Стоимость проекта от:
98 550 ₽
БЕСПЛАТНО! ПРИ ЗАКАЗЕ СТРОИТЕЛЬСТВА
Стоимость строительства от:
15 038 160 ₽
Артикул ART-20422
Дата 26.12.2025
Архитектурный стиль Европейский
Количество надземных этажей 2
Круглогодичное проживание Да
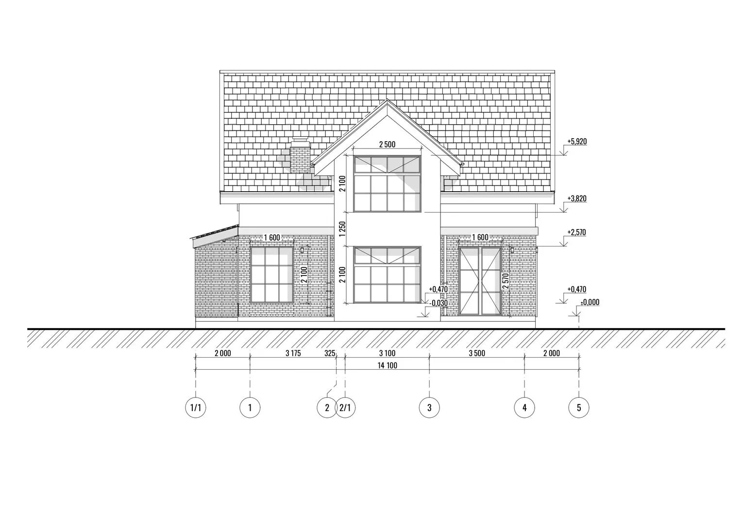
Площадь дома 219 м2
Санузлы 3
Спальни 5

Описание

В этот уютный двухэтажный дом, выполненный в строгом европейском стиле, каждый уголок пропитан теплом и уютом. Совершенно новые газобетонные блоки не только придают конструкции изысканную элегантность, но и гарантируют отличную теплоизоляцию, позволяя наслаждаться комфортом круглый год. Комплексное сочетание ровной и косой крыши создает визуальное разнообразие и защищает от всех погодных условий, добавляя элемент динамизма в архитектурный облик. Незамысловатые, но изящные фасады делают дом настоящим гостеприимным убежищем. Тотальная гармония и простота — залог уединения и спокойствия: отсутствуют балконы, лоджии, веранда и пристроенный гараж, а площадь дома не перегружена лишними деталями. Вдохновляющая терраса с видом на ухоженный сад — это идеальное место для вечерних бесед или чашки кофе, погружая вас в особую атмосферу уюта и спокойствия.

Характеристики дома

Архитектурный стиль
Автоматизированное регулирование параметров теплоносителя
Да
Балконы/лоджии
Отсутствуют
Чердачное помещение
Нет
Датчики протечки воды
Нет
Эксплуатируемая или зеленая кровля
Нет
Электроснабжение
Центральное
Газоснабжение
Центральное
Изоляция воздушного шума
Да
Камин
Нет
Класс энергоэффективности
B
Класс энергосбережения
A+
Количество надземных этажей
2
Круглогодичное проживание
Да
Материал кровли
Фальцевая кровля Кликфальц
Материал перекрытий
Монолитные железобетонные
Материал внешних стен
Материал внутренних перегородок
Блочные
Модульное строительство с конструкциями заводского изготовления
Нет
Объем надземной части
713 м3
Основной материал фасадов
Штукатурка
Отопление
2 варианта
Площадь дома
219 м2
Площадь застройки
147 м2
Подвальное помещение
Нет
Показатель компактности здания
0.87
Приборы учета тепловой энергии
Да
Пристроенный гараж/крытая автостоянка
Нет
Противопожарная система
Нет
Санузлы
3
Совмещенная кухня-гостиная
Да
Спальни
5
Терраса
Да
Тип фундамента
Плитный
Тип кровли
Толщина внешних стен
400 мм
Толщина внутренних перегородок
150 мм
Улучшенные шумовые характеристики
Да
Вентиляция
Естественная
Веранда
Нет
Водоотведение
2 варианта
Водоснабжение
2 варианта
Высота дома
8.95 м
Высота потолков
3.15 м

Планировка

Фасад дома

Александр

Закажите выезд инженера

Александр

Выездной инженер
Закажите выезд инженера для точной диагностики и профессиональной консультации по инженерным системам. Специалист приедет в удобное время, проведёт осмотр, рассчитает стоимость работ и подберёт оптимальные решения для вашего дома.


    Похожие проекты

    Ипотека и
    рассрочка
    Мансардный дом З-365
    Стоимость от:
    25 561 440
    Проект от: 164 700
    Этажей 2
    Санузлы 2
    Спальни 3
    Смотреть
    Ипотека и
    рассрочка
    ДОМ №2
    Стоимость от:
    17 186 400
    Проект от: 103 500
    Этажей 2
    Санузлы 1
    Спальни 3
    Смотреть
    Ипотека и
    рассрочка
    Одноэтажный кирпичный дом ЮЗЕМ
    Стоимость от:
    7 140 100
    Проект от: 42 750
    Этажей 1
    Санузлы 2
    Спальни 3
    Смотреть
    Ипотека и
    рассрочка
    Коттедж PG-4 «Alfa»
    Стоимость от:
    7 389 360
    Проект от: 48 600
    Этажей 1
    Санузлы 2
    Спальни 3
    Смотреть
    Ипотека и
    рассрочка
    Одноэтажный дом FIXPLANS — 1970
    Стоимость от:
    10 536 680
    Проект от: 69 300
    Этажей 1
    Санузлы 3
    Спальни 4
    Смотреть
    Ипотека и
    рассрочка
    Двухэтажный дом в стиле Barnhouse — 75 кв.м
    Стоимость от:
    4 850 760
    Проект от: 33 750
    Этажей 2
    Санузлы 1
    Спальни 2
    Смотреть

    Как узнать стоимость дома

    back
    Оставляете заявку
    Вы заполняете форму на сайте или звоните нам. Менеджер Лайвкрафт связывается с вами для уточнения деталей: тип дома, площадь, материалы, участок строительства.
    back
    Консультация и подбор решения
    Наш специалист помогает выбрать оптимальный тип дома и конструкцию с учётом бюджета, сроков и целей — будь то дом для постоянного проживания или дача.
    back
    Расчёт предварительной стоимости
    Инженер делает первичный расчёт стоимости строительства по вашим параметрам: фундамент, коробка, кровля, отделка. Вы получаете смету с разбивкой по этапам.
    back
    Корректировка и утверждение сметы
    При необходимости вносим изменения — например, замену материалов или сокращение этапов. После согласования формируется окончательная фиксированная смета.
    back
    Заключение договора и старт работ
    После утверждения сметы заключаем официальный договор с гарантией. Вы получаете прозрачный график и точную стоимость — без скрытых расходов.

    Заказать конусльтацию по:Сказка

    Фото 1 Сказка


      Наши
      контакты

      Дмитров
      Опорный проезд 28Б
      (индустриальный парк Ниагара)
      9:00 до 18:00

      Корзина