4.9
Рейтинг на основании 120 отзывов
Дмитров
Опорный проезд 28Б
(индустриальный парк Ниагара)
Бренд "Дмитров-Дело" c 2008 года на рынке строительства в Дмитрове
Звоните 9:00 до 18:00 8 (915) 055-33-61
Бренд "Дмитров-Дело" c 2008 года на рынке строительства в Дмитрове

Смоленская 111

Стоимость проекта от:
42 300 ₽
БЕСПЛАТНО! ПРИ ЗАКАЗЕ СТРОИТЕЛЬСТВА
Стоимость строительства от:
7 483 080 ₽
Артикул ART-17514
Дата 26.12.2025
Архитектурный стиль Классический
Количество надземных этажей 1
Круглогодичное проживание Да
Площадь дома 94 м2
Санузлы 2
Спальни 3

Описание

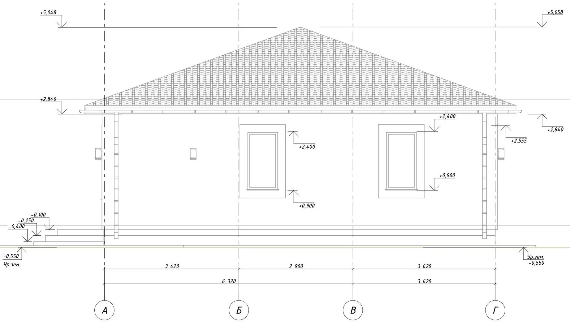
Расположенный в самом сердце Троицкой улицы, дом на Смоленской 111 восхищает своей простотой и одновременно элегантной классицизмом. Первый этаж – единственный, но он изобилует светом и уютом: большие окна впускают дневной свет в каждый уголок, а ровные линии и выдержанные формы придают ему нотки стиля и спокойствия. Изнутри дома вы сразу почувствуете чувство домашнего тепла: просторные комнаты, приятная планировка и приятная атмосфера делают этот дом идеальным для семьи, где каждый сможет открыть свою часть пространства для отдыха и работы. Внешняя часть построена из газобетонных блоков, гарантируя прочность и теплоизоляцию даже в холодные зимние дни. Четырёхскатная, вальмовая крыша не только придает дому характерный вид, но и эффективно отводит снег, сохраняя кровлю надёжной и без лишних хлопот. Отсутствие прилагаемых гаражей и чердачных помещений не мешают оценить потенциал участка: простор перед зданием может служить уютным садом, а в прохладные летние дни приглашать гостей к жаровне и барбекю. Дом рассчитан на круглогодичное проживание: изолированные стены сохраняют тепло, а просторный первый этаж предоставляет все удобства, необходимые для комфортной жизни. Это место, где классика встречается с практичностью, создавая идеальную среду для тех, кто ценит простоту, эстетическую гармонию и уютную атмосферу. Если вы ищете дома, где можно начать новую главу жизни в надежном и красивом месте, обратите внимание на эту жемчужину в Троицком районе.

Характеристики дома

Архитектурный стиль
Автоматизированное регулирование параметров теплоносителя
Нет
Балконы/лоджии
Отсутствуют
Чердачное помещение
Нет
Датчики протечки воды
Нет
Эксплуатируемая или зеленая кровля
Нет
Электроснабжение
Центральное
Газоснабжение
Индивидуальное
Изоляция воздушного шума
Нет
Камин
Нет
Класс энергоэффективности
-
Класс энергосбережения
-
Количество надземных этажей
1
Круглогодичное проживание
Да
Материал кровли
Металлочерепица
Материал перекрытий
Деревянные
Материал внешних стен
Материал внутренних перегородок
Блочные
Модульное строительство с конструкциями заводского изготовления
Нет
Объем надземной части
100 м3
Основной материал фасадов
Штукатурка
Отопление
Индивидуальное
Площадь дома
94 м2
Площадь застройки
111 м2
Подвальное помещение
Нет
Показатель компактности здания
-
Приборы учета тепловой энергии
Нет
Пристроенный гараж/крытая автостоянка
Нет
Противопожарная система
Нет
Санузлы
2
Совмещенная кухня-гостиная
Да
Спальни
3
Терраса
Нет
Тип фундамента
Ленточный
Толщина внешних стен
360 мм
Толщина внутренних перегородок
150 мм
Улучшенные шумовые характеристики
Нет
Вентиляция
2 варианта
Веранда
Нет
Водоотведение
Центральное
Водоснабжение
Центральное
Высота дома
5.04 м
Высота потолков
2.9 м

Планировка

Фасад дома

Александр

Закажите выезд инженера

Александр

Выездной инженер
Закажите выезд инженера для точной диагностики и профессиональной консультации по инженерным системам. Специалист приедет в удобное время, проведёт осмотр, рассчитает стоимость работ и подберёт оптимальные решения для вашего дома.


    Похожие проекты

    Ипотека и
    рассрочка
    SV-123
    Стоимость от:
    9 694 560
    Проект от: 60 300
    Этажей 2
    Санузлы 2
    Спальни 4
    Смотреть
    Ипотека и
    рассрочка
    Одноэтажный дом Fixplans — 1016
    Стоимость от:
    188 760
    Проект от: 35 100
    Этажей 1
    Санузлы 1
    Спальни 1
    Смотреть
    Ипотека и
    рассрочка
    Проект №291
    Стоимость от:
    7 616 400
    Проект от: 54 000
    Этажей 1
    Санузлы 1
    Спальни 3
    Смотреть
    Ипотека и
    рассрочка
    Каркасный дом КД-24 8 х 10,5 метров
    Стоимость от:
    8 871 120
    Проект от: 66 600
    Этажей 2
    Санузлы 2
    Спальни 4
    Смотреть
    Ипотека и
    рассрочка
    Одноэтажный дом из Бруса 7х9
    Стоимость от:
    4 544 540
    Проект от: 25 650
    Этажей 1
    Санузлы 1
    Спальни 3
    Смотреть
    Ипотека и
    рассрочка
    «Индивидуальный жилой дом 24-08-08»
    Стоимость от:
    6 203 890
    Проект от: 44 100
    Этажей 1
    Санузлы 1
    Спальни 2
    Смотреть

    Как узнать стоимость дома

    back
    Оставляете заявку
    Вы заполняете форму на сайте или звоните нам. Менеджер Лайвкрафт связывается с вами для уточнения деталей: тип дома, площадь, материалы, участок строительства.
    back
    Консультация и подбор решения
    Наш специалист помогает выбрать оптимальный тип дома и конструкцию с учётом бюджета, сроков и целей — будь то дом для постоянного проживания или дача.
    back
    Расчёт предварительной стоимости
    Инженер делает первичный расчёт стоимости строительства по вашим параметрам: фундамент, коробка, кровля, отделка. Вы получаете смету с разбивкой по этапам.
    back
    Корректировка и утверждение сметы
    При необходимости вносим изменения — например, замену материалов или сокращение этапов. После согласования формируется окончательная фиксированная смета.
    back
    Заключение договора и старт работ
    После утверждения сметы заключаем официальный договор с гарантией. Вы получаете прозрачный график и точную стоимость — без скрытых расходов.

    Заказать конусльтацию по:Смоленская 111

    Фото 1 Смоленская 111


      Наши
      контакты

      Дмитров
      Опорный проезд 28Б
      (индустриальный парк Ниагара)
      9:00 до 18:00

      Корзина