4.9
Рейтинг на основании 120 отзывов
Дмитров
Опорный проезд 28Б
(индустриальный парк Ниагара)
Бренд "Дмитров-Дело" c 2008 года на рынке строительства в Дмитрове
Звоните 9:00 до 18:00 8 (915) 055-33-61
Бренд "Дмитров-Дело" c 2008 года на рынке строительства в Дмитрове

Суксун-59

Стоимость проекта от:
54 900 ₽
БЕСПЛАТНО! ПРИ ЗАКАЗЕ СТРОИТЕЛЬСТВА
Стоимость строительства от:
8 374 080 ₽
Артикул ART-16983
Дата 26.12.2025
Архитектурный стиль Классический
Количество надземных этажей 2
Круглогодичное проживание Да
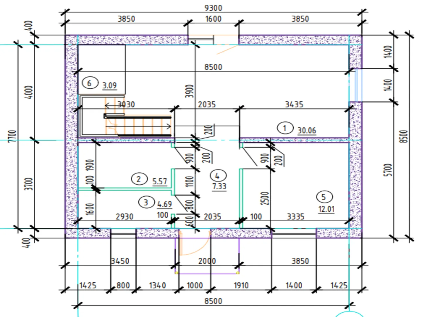
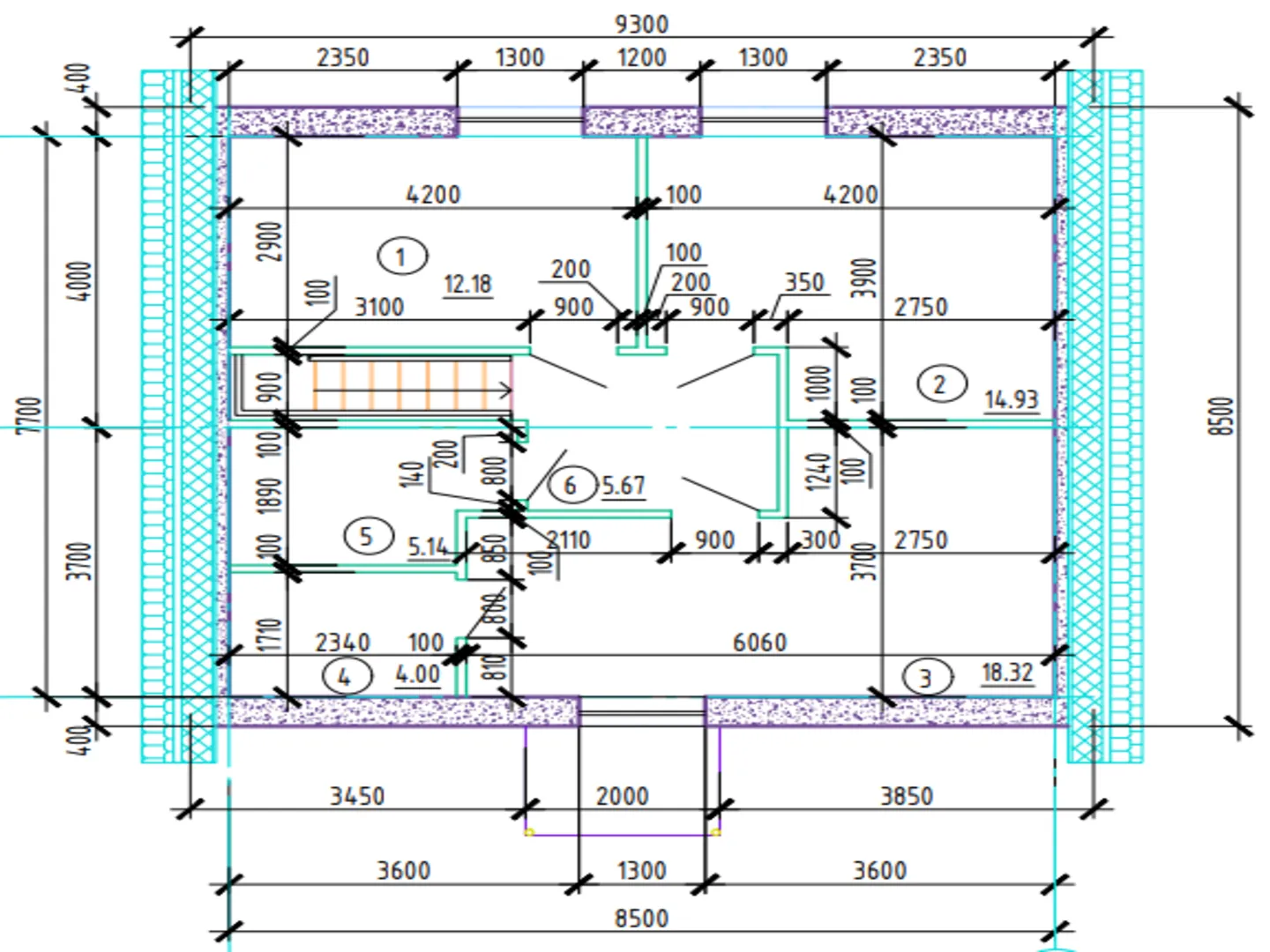
Площадь дома 122 м2
Санузлы 2
Спальни 4

Описание

Дом «Суксун‑59» – это воплощение уютного классического стиля, который легко впишется в любой загородный пейзаж или тихий городский район. За два надземных этажа вы получите просторную, гармоничную квартиру, где каждая комната раскрывает свои функциональные возможности, сохраняя при этом неповторимый традиционный шарм. Внутреннее пространство обретает тепло благодаря современную теплоизоляцию газобетонных блоков, а двускатная крыша придаёт всему зданию строгую, но элегантную линию, отлично отводящую влагу и создающую ощущение «домашней защищённости». Такой дом рассчитан на круглогодичное проживание: утеплённые стены и современные оконные системы обеспечивают комфорт в любой погоде, а просторные коридоры и открытые планировки позволяют наслаждаться светом и воздухом даже в прохладные весенние и осенние дни. Его классический внешний облик – с тщательно отстроенными фасадами и симметричными чертежами – напоминает о традициях, при этом оставаясь актуальным и современным выбором для тех, кто ценит эстетический баланс. Хотя «Суксун‑59» не имеет балконов, веранд и прибрежных гаражей, он компенсирует это обширными внутренними площадями, где в семье можно проводить радостный отдых, а детские комнаты можно легко преобразовать под любые нужды. Это воплощает идею «маленькой роскоши» внутри, предлагая клиенту чувство уединённости и безопасности, при этом оставляя место для расширения в зависимости от ваших пожеланий. Если вы ищете дом, где каждый уголок пропитан уютом и надежностью, Суксун‑59 – ваш выбор.

Характеристики дома

Архитектурный стиль
Автоматизированное регулирование параметров теплоносителя
Нет
Балконы/лоджии
Отсутствуют
Чердачное помещение
Нет
Датчики протечки воды
Нет
Эксплуатируемая или зеленая кровля
Нет
Электроснабжение
Индивидуальное
Газоснабжение
Центральное
Изоляция воздушного шума
Нет
Камин
Нет
Класс энергоэффективности
-
Класс энергосбережения
-
Количество надземных этажей
2
Круглогодичное проживание
Да
Материал кровли
Металлические листовые гофрированные профили
Материал перекрытий
Деревянные
Материал внешних стен
Материал внутренних перегородок
Блочные
Модульное строительство с конструкциями заводского изготовления
Нет
Объем надземной части
-
Основной материал фасадов
Штукатурка
Отопление
Индивидуальное
Площадь дома
122 м2
Площадь застройки
83 м2
Подвальное помещение
Нет
Показатель компактности здания
-
Приборы учета тепловой энергии
Нет
Пристроенный гараж/крытая автостоянка
Нет
Противопожарная система
Нет
Санузлы
2
Совмещенная кухня-гостиная
Да
Спальни
4
Терраса
Нет
Тип фундамента
Плитный
Тип кровли
Толщина внешних стен
400 мм
Толщина внутренних перегородок
100 мм
Улучшенные шумовые характеристики
Нет
Вентиляция
Естественная
Веранда
Нет
Водоотведение
Локальные очистные сооружения
Водоснабжение
Индивидуальное
Высота дома
6.7 м
Высота потолков
2.8 м

Планировка

Фасад дома

Александр

Закажите выезд инженера

Александр

Выездной инженер
Закажите выезд инженера для точной диагностики и профессиональной консультации по инженерным системам. Специалист приедет в удобное время, проведёт осмотр, рассчитает стоимость работ и подберёт оптимальные решения для вашего дома.


    Похожие проекты

    Ипотека и
    рассрочка
    Каркасный дом D130-1
    Стоимость от:
    6 475 920
    Проект от: 43 200
    Этажей 1
    Санузлы 2
    Спальни 3
    Смотреть
    Ипотека и
    рассрочка
    ПРОЕКТ А014
    Стоимость от:
    10 065 360
    Проект от: 62 550
    Этажей 2
    Санузлы 2
    Спальни 4
    Смотреть
    Ипотека и
    рассрочка
    ДОМ СП-123 GD
    Стоимость от:
    6 214 560
    Проект от: 39 600
    Этажей 1
    Санузлы 1
    Спальни 2
    Смотреть
    Ипотека и
    рассрочка
    SV-107Б
    Стоимость от:
    9 840 820
    Проект от: 58 950
    Этажей 1
    Санузлы 2
    Спальни 3
    Смотреть
    Ипотека и
    рассрочка
    Иркут
    Стоимость от:
    7 203 240
    Проект от: 45 900
    Этажей 1
    Санузлы 2
    Спальни 3
    Смотреть
    Ипотека и
    рассрочка
    Дом с навесом для машины и террасой ,в стиле «PLAIN»
    Стоимость от:
    11 373 120
    Проект от: 70 200
    Этажей 1
    Санузлы 2
    Спальни 3
    Смотреть

    Как узнать стоимость дома

    back
    Оставляете заявку
    Вы заполняете форму на сайте или звоните нам. Менеджер Лайвкрафт связывается с вами для уточнения деталей: тип дома, площадь, материалы, участок строительства.
    back
    Консультация и подбор решения
    Наш специалист помогает выбрать оптимальный тип дома и конструкцию с учётом бюджета, сроков и целей — будь то дом для постоянного проживания или дача.
    back
    Расчёт предварительной стоимости
    Инженер делает первичный расчёт стоимости строительства по вашим параметрам: фундамент, коробка, кровля, отделка. Вы получаете смету с разбивкой по этапам.
    back
    Корректировка и утверждение сметы
    При необходимости вносим изменения — например, замену материалов или сокращение этапов. После согласования формируется окончательная фиксированная смета.
    back
    Заключение договора и старт работ
    После утверждения сметы заключаем официальный договор с гарантией. Вы получаете прозрачный график и точную стоимость — без скрытых расходов.

    Заказать конусльтацию по:Суксун-59

    Фото 1 Суксун-59


      Наши
      контакты

      Дмитров
      Опорный проезд 28Б
      (индустриальный парк Ниагара)
      9:00 до 18:00

      Корзина