4.9
Рейтинг на основании 120 отзывов
Дмитров
Опорный проезд 28Б
(индустриальный парк Ниагара)
Бренд "Дмитров-Дело" c 2008 года на рынке строительства в Дмитрове
Звоните 9:00 до 18:00 8 (915) 055-33-61
Бренд "Дмитров-Дело" c 2008 года на рынке строительства в Дмитрове

ЮС-О-121-1

Стоимость проекта от:
54 450 ₽
БЕСПЛАТНО! ПРИ ЗАКАЗЕ СТРОИТЕЛЬСТВА
Стоимость строительства от:
9 627 420 ₽
Артикул ART-16765
Дата 26.12.2025
Архитектурный стиль Классический
Количество надземных этажей 1
Круглогодичное проживание Да
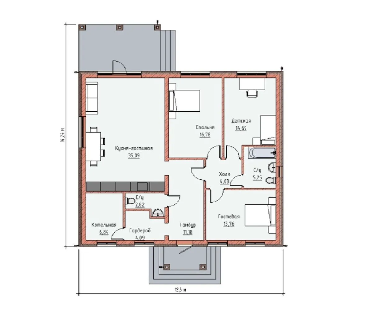
Площадь дома 121 м2
Санузлы 2
Спальни 3

Описание

**ЮС‑О‑121‑1 – уют и надёжность в одном образе** Величественный, но при этом открытый, классический дом «ЮС‑О‑121‑1» впечатляет своей гармонией и простотой. Стены, покрытые качественной кирпичной кладкой, придают ему тёплый внешний вид, а ровно изогнутая двускатная крыша подчёркивает традиционность построения. Один надземный этаж – это идеальный вариант для семейной жизни: пространство ровно распределено, а тепло сохраняется круглый год благодаря продуманному утеплению и климатическому контролю. Отсутствие балконов и террас не мешает вам наслаждаться свежим воздухом – уютная веранда, обрамленная живой растительностью, станет вашим личным оазисом для прогулок и уединённых вечеров у камина. Просторные окна дарят яркость и свет в каждый уголок, а безмятежность приоткрытого пространства гарантирует спокойствие после дня, проведенного вне дома. Поскольку дом спроектирован без пристроенного гаража и крытых стоянок, вы обретёте более открытый, свободный ландшафт вокруг недвижимости. Этот дом – идеальное сочетание простоты, надёжности и эстетической привлекательности для тех, кто ценит классический стиль жизни, но хочет обрести практичность и комфорт. Присоединяйтесь к списку тех, кто уже выбрал уют и функциональность «ЮС‑О‑121‑1» как свой новый оазис.

Характеристики дома

Архитектурный стиль
Автоматизированное регулирование параметров теплоносителя
Нет
Балконы/лоджии
Отсутствуют
Чердачное помещение
Нет
Датчики протечки воды
Нет
Эксплуатируемая или зеленая кровля
Нет
Электроснабжение
Центральное
Газоснабжение
Центральное
Изоляция воздушного шума
Нет
Камин
Нет
Класс энергоэффективности
-
Класс энергосбережения
-
Количество надземных этажей
1
Круглогодичное проживание
Да
Материал кровли
Металлочерепица
Материал перекрытий
Монолитные железобетонные
Материал внешних стен
Материал внутренних перегородок
Кирпичные
Модульное строительство с конструкциями заводского изготовления
Нет
Объем надземной части
-
Основной материал фасадов
Облицовочный кирпич
Отопление
Индивидуальное
Площадь дома
121 м2
Площадь застройки
159 м2
Подвальное помещение
Нет
Показатель компактности здания
-
Приборы учета тепловой энергии
Нет
Пристроенный гараж/крытая автостоянка
Нет
Противопожарная система
Нет
Санузлы
2
Совмещенная кухня-гостиная
Да
Спальни
3
Терраса
Нет
Тип фундамента
Ленточный
Тип кровли
Толщина внешних стен
420 мм
Толщина внутренних перегородок
120 мм
Улучшенные шумовые характеристики
Нет
Вентиляция
Естественная
Веранда
Да
Водоотведение
Центральное
Водоснабжение
Центральное
Высота дома
-
Высота потолков
3 м

Планировка

Фасад дома

Александр

Закажите выезд инженера

Александр

Выездной инженер
Закажите выезд инженера для точной диагностики и профессиональной консультации по инженерным системам. Специалист приедет в удобное время, проведёт осмотр, рассчитает стоимость работ и подберёт оптимальные решения для вашего дома.


    Похожие проекты

    Ипотека и
    рассрочка
    Двухэтажный Садовый-131
    Стоимость от:
    8 997 840
    Проект от: 58 950
    Этажей 2
    Санузлы 2
    Спальни 3
    Смотреть
    Ипотека и
    рассрочка
    S.Dom-70-1
    Стоимость от:
    5 024 140
    Проект от: 36 900
    Этажей 1
    Санузлы 1
    Спальни 2
    Смотреть
    Ипотека и
    рассрочка
    Каркасный жилой дом «СУМАТРА»
    Стоимость от:
    9 929 160
    Проект от: 76 050
    Этажей 2
    Санузлы 2
    Спальни 3
    Смотреть
    Ипотека и
    рассрочка
    ГРАНД К
    Стоимость от:
    6 990 060
    Проект от: 41 850
    Этажей 1
    Санузлы 1
    Спальни 3
    Смотреть
    Ипотека и
    рассрочка
    Проект 3
    Стоимость от:
    9 745 560
    Проект от: 62 100
    Этажей 1
    Санузлы 1
    Спальни 2
    Смотреть
    Ипотека и
    рассрочка
    Дом из кирпича S061
    Стоимость от:
    7 140 100
    Проект от: 42 750
    Этажей 1
    Санузлы 2
    Спальни 3
    Смотреть

    Как узнать стоимость дома

    back
    Оставляете заявку
    Вы заполняете форму на сайте или звоните нам. Менеджер Лайвкрафт связывается с вами для уточнения деталей: тип дома, площадь, материалы, участок строительства.
    back
    Консультация и подбор решения
    Наш специалист помогает выбрать оптимальный тип дома и конструкцию с учётом бюджета, сроков и целей — будь то дом для постоянного проживания или дача.
    back
    Расчёт предварительной стоимости
    Инженер делает первичный расчёт стоимости строительства по вашим параметрам: фундамент, коробка, кровля, отделка. Вы получаете смету с разбивкой по этапам.
    back
    Корректировка и утверждение сметы
    При необходимости вносим изменения — например, замену материалов или сокращение этапов. После согласования формируется окончательная фиксированная смета.
    back
    Заключение договора и старт работ
    После утверждения сметы заключаем официальный договор с гарантией. Вы получаете прозрачный график и точную стоимость — без скрытых расходов.

    Заказать конусльтацию по:ЮС-О-121-1

    Фото 1 ЮС-О-121-1


      Наши
      контакты

      Дмитров
      Опорный проезд 28Б
      (индустриальный парк Ниагара)
      9:00 до 18:00

      Корзина