4.9
Рейтинг на основании 120 отзывов
Дмитров
Опорный проезд 28Б
(индустриальный парк Ниагара)
Бренд "Дмитров-Дело" c 2008 года на рынке строительства в Дмитрове
Звоните 9:00 до 18:00 8 (915) 055-33-61
Бренд "Дмитров-Дело" c 2008 года на рынке строительства в Дмитрове

Загородный дом из клееного бруса «Рея»

Стоимость проекта от:
169 200 ₽
БЕСПЛАТНО! ПРИ ЗАКАЗЕ СТРОИТЕЛЬСТВА
Стоимость строительства от:
25 808 640 ₽
Артикул ART-19520
Дата 26.12.2025
Архитектурный стиль Европейский
Количество надземных этажей 2
Круглогодичное проживание Да
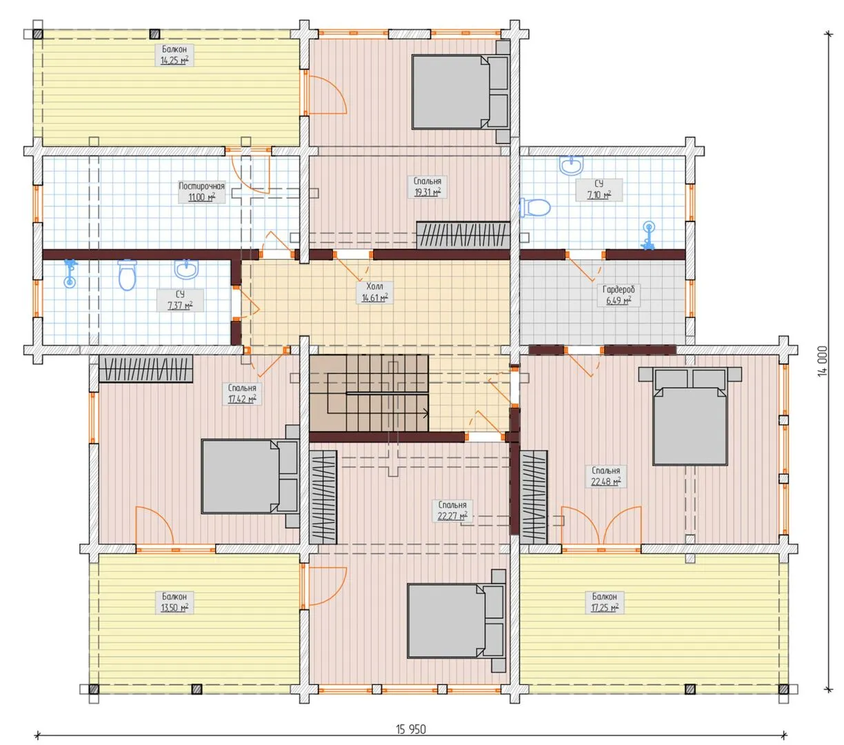
Площадь дома 376 м2
Санузлы 4
Спальни 5

Описание

Уникальный загородный дом «Рея» – воплощение европейского уюта и современного комфорта. Из клееного бруса, выполненный в элегантном стиле, он с теплом обнимает гостей на каждом шагу. Двухуровневый план, рассчитанный на круглогодичную жизнь, предлагает просторные комнаты, большие окна и светлые акценты, которые делают этот дом идеальным местом для релакса и гармоничного семейного быта. Ключевой особенностью «Реи» является сочетание практичности и эстетики: изысканные три лоджии, просторная терраса и уютный пригоршень зелёного вида превращают каждый момент в маленькое приключение. Пристроенный гараж с крытой автостойкой избавляет от лишних забот, а многощипковая крыша, выполненная с душой, защищает от всех погодных сюрпризов. Тепло, свет и уют, которые дарит этот дом, создают особенную атмосферу, которая будет вдохновлять вас каждое утро. Откройте для себя «Рей» – ваш новый уголок семейного счастья, где каждый элемент продуман до мелочей, чтобы вы чувствовали себя дома уже с первых мгновений.

Характеристики дома

Архитектурный стиль
Автоматизированное регулирование параметров теплоносителя
Да
Балконы/лоджии
3
Чердачное помещение
Нет
Датчики протечки воды
Да
Эксплуатируемая или зеленая кровля
Нет
Электроснабжение
Центральное
Газоснабжение
Индивидуальное
Изоляция воздушного шума
Нет
Камин
Нет
Класс энергоэффективности
-
Класс энергосбережения
-
Количество надземных этажей
2
Круглогодичное проживание
Да
Материал кровли
Битумная черепица
Материал перекрытий
Деревянные
Материал внешних стен
Материал внутренних перегородок
Деревянные
Модульное строительство с конструкциями заводского изготовления
Нет
Объем надземной части
1895 м3
Основной материал фасадов
Дерево
Отопление
Индивидуальное
Площадь дома
376 м2
Площадь застройки
345 м2
Подвальное помещение
Нет
Показатель компактности здания
-
Приборы учета тепловой энергии
Да
Пристроенный гараж/крытая автостоянка
Да
Противопожарная система
Да
Санузлы
4
Совмещенная кухня-гостиная
Да
Спальни
5
Терраса
Да
Тип фундамента
Плитный
Тип кровли
Толщина внешних стен
200 мм
Толщина внутренних перегородок
200 мм
Улучшенные шумовые характеристики
Нет
Вентиляция
Естественная
Веранда
Нет
Водоотведение
Локальные очистные сооружения
Водоснабжение
Индивидуальное
Высота дома
8.4 м
Высота потолков
3.1 м

Планировка

Фасад дома

Александр

Закажите выезд инженера

Александр

Выездной инженер
Закажите выезд инженера для точной диагностики и профессиональной консультации по инженерным системам. Специалист приедет в удобное время, проведёт осмотр, рассчитает стоимость работ и подберёт оптимальные решения для вашего дома.


    Похожие проекты

    Ипотека и
    рассрочка
    Дом из клееного бруса «Углич»
    Стоимость от:
    14 957 040
    Проект от: 103 950
    Этажей 2
    Санузлы 3
    Спальни 4
    Смотреть
    Ипотека и
    рассрочка
    Проект А021
    Стоимость от:
    6 308 880
    Проект от: 39 150
    Этажей 2
    Санузлы 2
    Спальни 3
    Смотреть
    Ипотека и
    рассрочка
    Одноэтажный дом Fixplans-8216
    Стоимость от:
    10 818 720
    Проект от: 61 200
    Этажей 1
    Санузлы 2
    Спальни 3
    Смотреть
    Ипотека и
    рассрочка
    Скандия мини 3+ без террасы
    Стоимость от:
    5 437 740
    Проект от: 34 650
    Этажей 1
    Санузлы 1
    Спальни 3
    Смотреть
    Ипотека и
    рассрочка
    Жилой Дом HIT
    Стоимость от:
    4 238 520
    Проект от: 34 200
    Этажей 1
    Санузлы 1
    Спальни 3
    Смотреть
    Ипотека и
    рассрочка
    Дом Стрюкова
    Стоимость от:
    11 749 680
    Проект от: 70 650
    Этажей 2
    Санузлы 2
    Спальни 4
    Смотреть

    Как узнать стоимость дома

    back
    Оставляете заявку
    Вы заполняете форму на сайте или звоните нам. Менеджер Лайвкрафт связывается с вами для уточнения деталей: тип дома, площадь, материалы, участок строительства.
    back
    Консультация и подбор решения
    Наш специалист помогает выбрать оптимальный тип дома и конструкцию с учётом бюджета, сроков и целей — будь то дом для постоянного проживания или дача.
    back
    Расчёт предварительной стоимости
    Инженер делает первичный расчёт стоимости строительства по вашим параметрам: фундамент, коробка, кровля, отделка. Вы получаете смету с разбивкой по этапам.
    back
    Корректировка и утверждение сметы
    При необходимости вносим изменения — например, замену материалов или сокращение этапов. После согласования формируется окончательная фиксированная смета.
    back
    Заключение договора и старт работ
    После утверждения сметы заключаем официальный договор с гарантией. Вы получаете прозрачный график и точную стоимость — без скрытых расходов.

    Заказать конусльтацию по:Загородный дом из клееного бруса «Рея»

    Фото 1 Загородный дом из клееного бруса «Рея»


      Наши
      контакты

      Дмитров
      Опорный проезд 28Б
      (индустриальный парк Ниагара)
      9:00 до 18:00

      Корзина