4.9
Рейтинг на основании 120 отзывов
Дмитров
Опорный проезд 28Б
(индустриальный парк Ниагара)
Бренд "Дмитров-Дело" c 2008 года на рынке строительства в Дмитрове
Звоните 9:00 до 18:00 8 (915) 055-33-61
Бренд "Дмитров-Дело" c 2008 года на рынке строительства в Дмитрове

Дом с навесом для машины и террасой ,в стиле «PLAIN»

Стоимость проекта от:
70 200 ₽
БЕСПЛАТНО! ПРИ ЗАКАЗЕ СТРОИТЕЛЬСТВА
Стоимость строительства от:
11 373 120 ₽
Артикул ART-13280
Дата 25.12.2025
Архитектурный стиль Европейский
Количество надземных этажей 1
Круглогодичное проживание Да
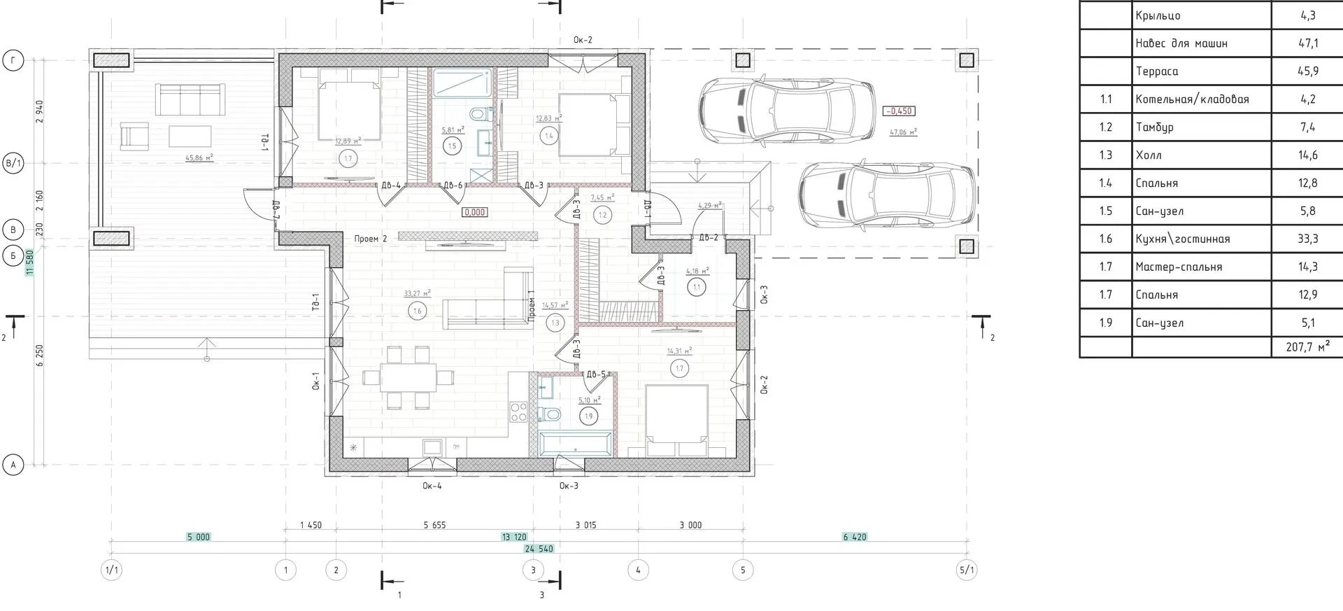
Площадь дома 156 м2
Санузлы 2
Спальни 3

Описание

Сердце этого восхитительного дома — простота и уют, которые легко вплетаются в гармоничную европейскую архитектуру. Одноэтажный дом, выполненный в стиле “PLAIN”, сразу после прибытия открывает просторный, светлый внутренний двор, где под надёжным навесом для машины в спокойном уголке создаётся ощущение защищённости и комфорта. Всё, что важно для повседневной жизни, — находится в удобной досягаемости: от гостиной до кухни, от спальни до ванной, а приёмный уголок в холле приятно удивит своим практичным планом и мягкими, натуральными материалами. Новый дом обещает не только круглогодичное проживание, но и душевное тепло, которое вы почувствуете с первых минут. Керамический блок, покрывающий внешние стены, придаёт фасаду прочность и элегантность, а вальмовая четырехскатная крыша мягко смягчает контуры, создавая ощущение открытого пространства и лёгкости. На крытом дворе, у окна, располагается элегантная терраса – идеальное место для летних барбекю, уютных вечеров с друзьями или просто для отдыха на солнце, наслаждаясь видом на окружающий ландшафт. Галерея в стиле европейского дизайна без лишних деталей, с отсутствием балконов и веранд, придаёт дому чистую и лаконичную эстетику, подчёркивая его современность. Пристроенный гараж с крышой гарантирует, что ваше авто всегда защищено от непогоды; а отсутствие чердачного помещения позволяет более гибко использовать внутреннее пространство, не ограждая его от света. Это дом, где скромность встречается с функциональностью, а комфорт становится вашим неизменным спутником в повседневной жизни.

Характеристики дома

Архитектурный стиль
Автоматизированное регулирование параметров теплоносителя
Да
Балконы/лоджии
Отсутствуют
Чердачное помещение
Нет
Датчики протечки воды
Нет
Эксплуатируемая или зеленая кровля
Нет
Электроснабжение
Центральное
Газоснабжение
Центральное
Изоляция воздушного шума
Да
Камин
Нет
Класс энергоэффективности
-
Класс энергосбережения
-
Количество надземных этажей
1
Круглогодичное проживание
Да
Материал кровли
Битумная черепица
Материал перекрытий
Деревянные по металлическим балкам
Материал внешних стен
Материал внутренних перегородок
Блочные
Модульное строительство с конструкциями заводского изготовления
Нет
Объем надземной части
1325 м3
Основной материал фасадов
Облицовочный кирпич
Отопление
Индивидуальное
Площадь дома
156 м2
Площадь застройки
242 м2
Подвальное помещение
Нет
Показатель компактности здания
-
Приборы учета тепловой энергии
Да
Пристроенный гараж/крытая автостоянка
Да
Противопожарная система
Да
Санузлы
2
Совмещенная кухня-гостиная
Да
Спальни
3
Терраса
Да
Тип фундамента
Свайно-ростверковый
Толщина внешних стен
380 мм
Толщина внутренних перегородок
120 мм
Улучшенные шумовые характеристики
Да
Вентиляция
Естественная
Веранда
Нет
Водоотведение
Локальные очистные сооружения
Водоснабжение
Индивидуальное
Высота дома
5.47 м
Высота потолков
3.2 м

Планировка

Фасад дома

Александр

Закажите выезд инженера

Александр

Выездной инженер
Закажите выезд инженера для точной диагностики и профессиональной консультации по инженерным системам. Специалист приедет в удобное время, проведёт осмотр, рассчитает стоимость работ и подберёт оптимальные решения для вашего дома.


    Похожие проекты

    Ипотека и
    рассрочка
    Загородный дом по проекту «mini — азарий».
    Стоимость от:
    9 959 040
    Проект от: 70 200
    Этажей 2
    Санузлы 2
    Спальни 2
    Смотреть
    Ипотека и
    рассрочка
    Партенит 114
    Стоимость от:
    6 524 880
    Проект от: 39 150
    Этажей 2
    Санузлы 2
    Спальни 3
    Смотреть
    Ипотека и
    рассрочка
    Жилой дом тип 28
    Стоимость от:
    5 939 780
    Проект от: 35 550
    Этажей 1
    Санузлы 2
    Спальни 2
    Смотреть
    Ипотека и
    рассрочка
    Быстровозводимый дом «EFFECT LIGHT 236»
    Стоимость от:
    15 278 640
    Проект от: 106 200
    Этажей 2
    Санузлы 5
    Спальни 4
    Смотреть
    Ипотека и
    рассрочка
    Загородный дом КВ-1-86
    Стоимость от:
    7 800 760
    Проект от: 44 100
    Этажей 1
    Санузлы 1
    Спальни 3
    Смотреть
    Ипотека и
    рассрочка
    ТП-153
    Стоимость от:
    10 440 980
    Проект от: 62 550
    Этажей 1
    Санузлы 2
    Спальни 4
    Смотреть

    Как узнать стоимость дома

    back
    Оставляете заявку
    Вы заполняете форму на сайте или звоните нам. Менеджер Лайвкрафт связывается с вами для уточнения деталей: тип дома, площадь, материалы, участок строительства.
    back
    Консультация и подбор решения
    Наш специалист помогает выбрать оптимальный тип дома и конструкцию с учётом бюджета, сроков и целей — будь то дом для постоянного проживания или дача.
    back
    Расчёт предварительной стоимости
    Инженер делает первичный расчёт стоимости строительства по вашим параметрам: фундамент, коробка, кровля, отделка. Вы получаете смету с разбивкой по этапам.
    back
    Корректировка и утверждение сметы
    При необходимости вносим изменения — например, замену материалов или сокращение этапов. После согласования формируется окончательная фиксированная смета.
    back
    Заключение договора и старт работ
    После утверждения сметы заключаем официальный договор с гарантией. Вы получаете прозрачный график и точную стоимость — без скрытых расходов.

    Заказать конусльтацию по:Дом с навесом для машины и террасой ,в стиле «PLAIN»

    Фото 1 Дом с навесом для машины и террасой ,в стиле «PLAIN»


      Наши
      контакты

      Дмитров
      Опорный проезд 28Б
      (индустриальный парк Ниагара)
      9:00 до 18:00

      Корзина